Скачать Типовой проект 223-1-544.87 Альбом II. Чертежи санитарно-технические, электрооборудования, связи и сигнализации, автоматики вентиляции, автоматики теплового узлаДата актуализации: 10.08.2017 Типовой проект 223-1-544.87
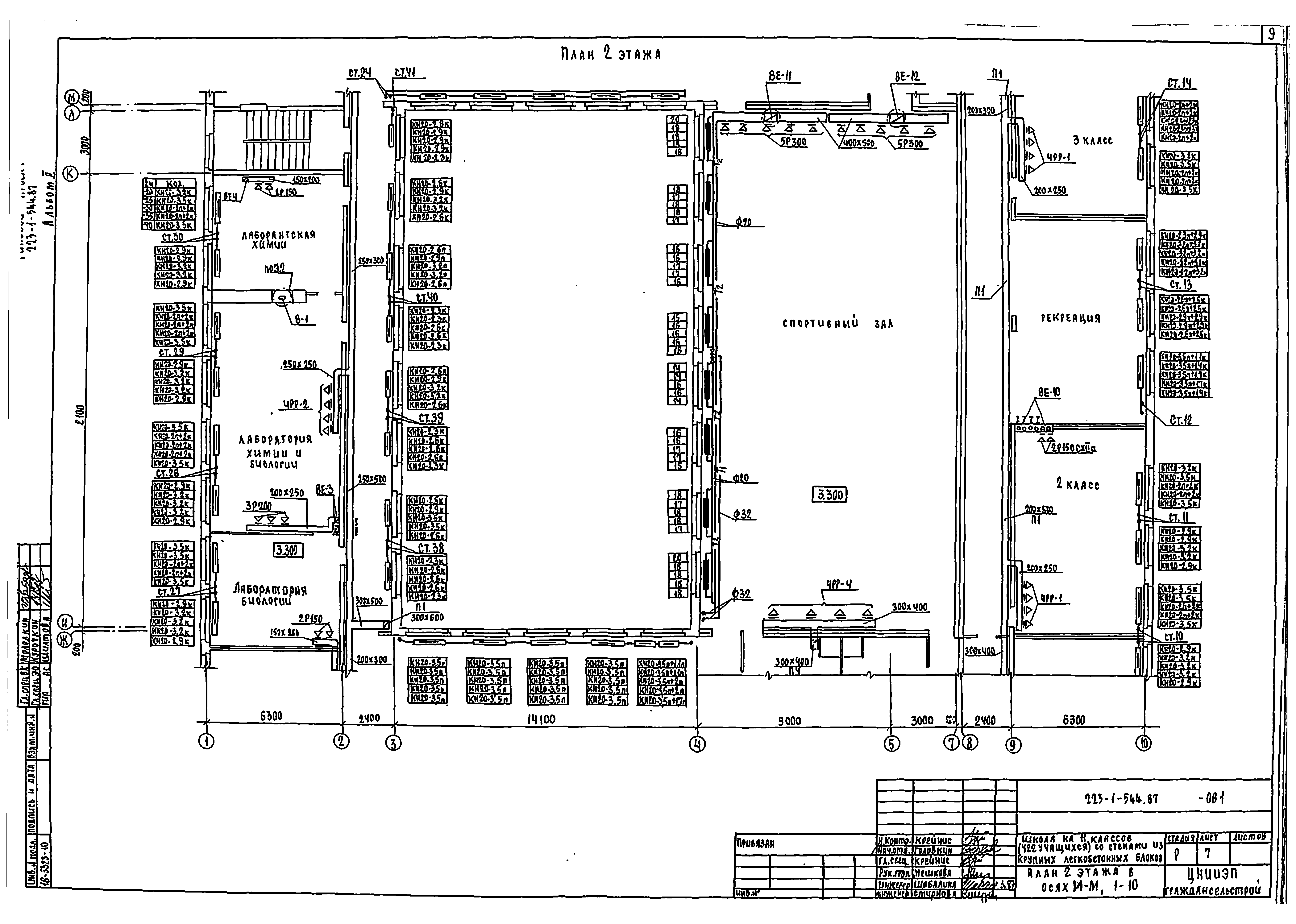
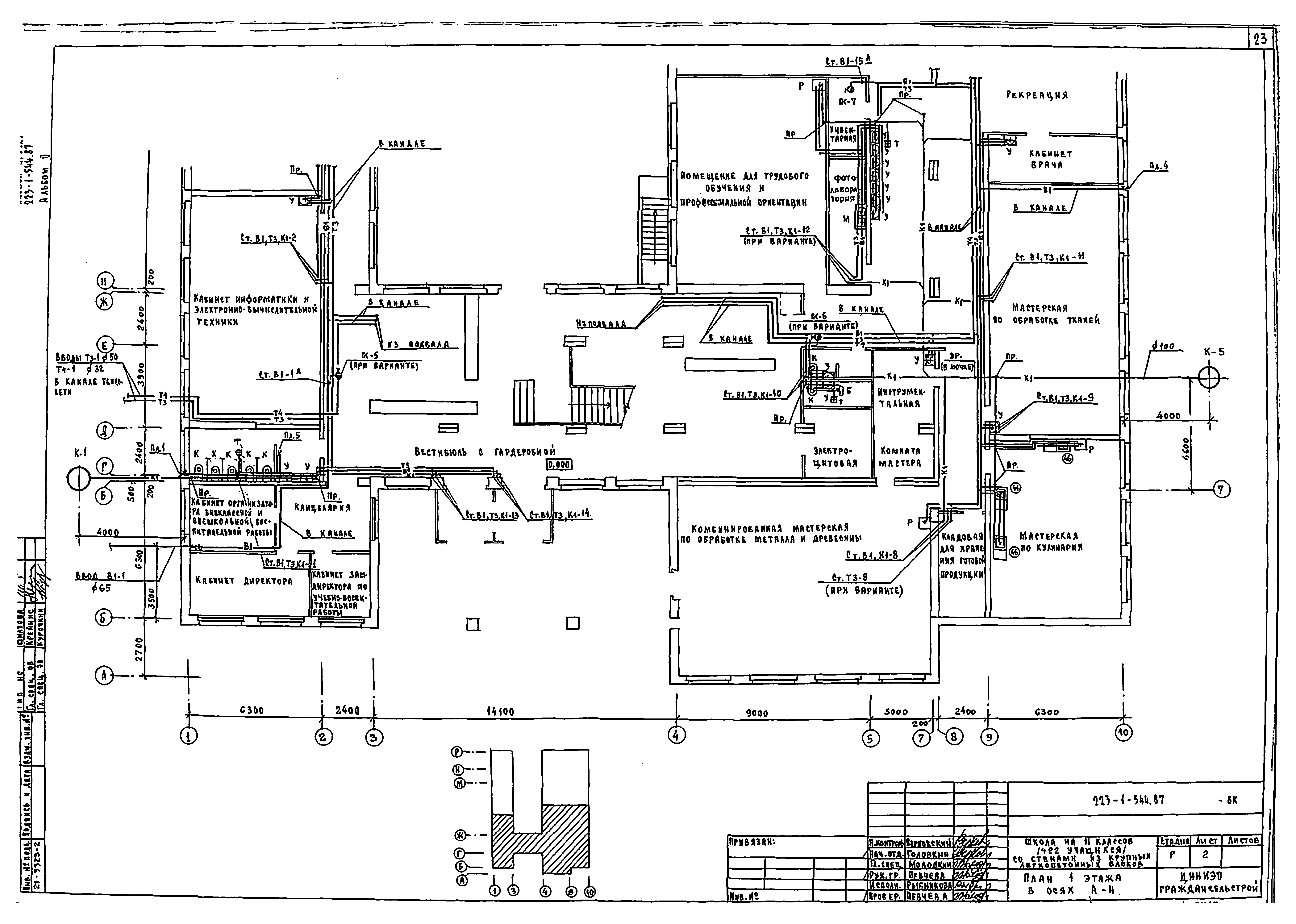
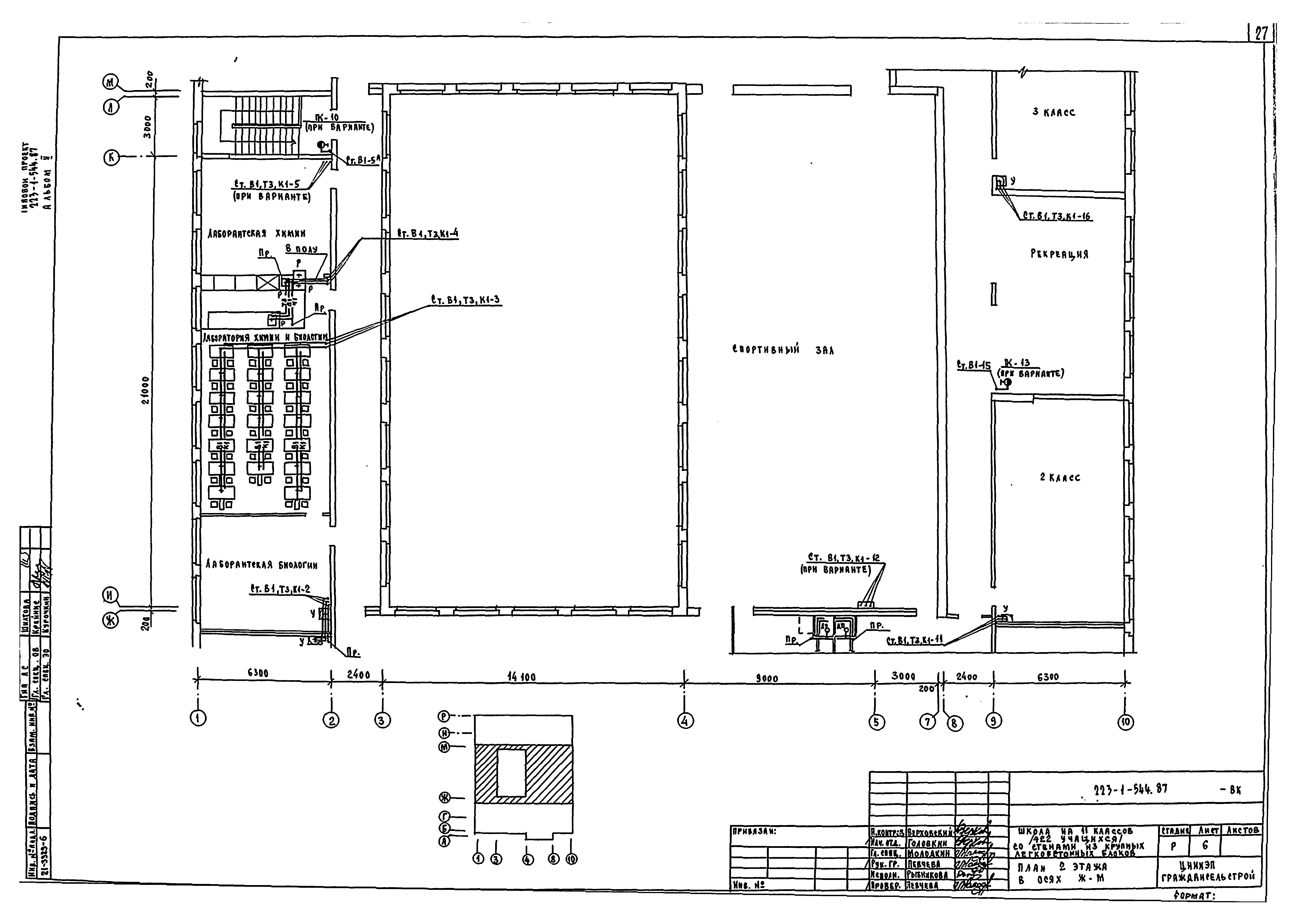
Альбом II. Чертежи санитарно-технические, электрооборудования, связи и сигнализации, автоматики вентиляции, автоматики теплового узлаОбозначение: | Типовой проект 223-1-544.87 | Обозначение англ: | 223-1-544.87 | Статус: | не определен законодательством | Название рус.: | Альбом II. Чертежи санитарно-технические, электрооборудования, связи и сигнализации, автоматики вентиляции, автоматики теплового узла | Дата добавления в базу: | 01.09.2013 | Дата актуализации: | 05.05.2017 | Дата введения: | 01.04.1986 | Оглавление: | Содержание альбома Отопление и вентиляция Общие данные План 1 этажа в осях "А - И"; "1 - 10" План 2 этажа в осях "А - И"; "1 - 10" План 1 этажа в осях "И - М"; "1 - 10" План 2 этажа в осях "И - М"; "1 - 10" План 1 этажа в осях "Л - Р"; "1 - 10" План 2 этажа в осях "Л - Р"; "1 - 10" План подвала. Узел управления. Схема системы теплоснабжения установок П1 - П4; ПЕ-1 Схемы системы отопления учебных помещений, спортивного зала, столовой Схема системы П1 Схемы систем П2 - П4; ВЕ10 - ВЕ20; ПЕ1 Схемы систем В1 - В8; ВЕ1 - ВЕ9 Установки систем В1, В2, В3 Установки систем П1, П2, П3, П4 Спецификация установок П1 - П4 Конструкция теплоизоляционная Внутренний водопровод и канализация Общие данные План 1 этажа в осях "А - И" План 1 этажа в осях "И - Н" План 1 этажа в осях "Л - Р" и план подвала План 2 этажа в осях "А - И" План 2 этажа в осях "Ж - М" План 2 этажа в осях "М - Р" Схема системы В1 Схема систем Т3, Т4 Схемы систем В1, Т3, Т4 Схемы систем К1, К3 Схема системы К1 Силовое оборудование и электроосвещение Общие данные Принципиальная схема питающей сети План расположения осветительных сетей 1 этажа в осях "А - И" План расположения осветительных сетей 1 этажа в осях "И - Н" План расположения осветительных сетей 1 этажа в осях "М - Р". План подвала План расположения осветительных сетей 2 этажа в осях "А - И" План расположения осветительных сетей 2 этажа в осях "Ж - М" План расположения осветительных сетей 2 этажа в осях "М - Р" Данные о групповых щитках План расположения силовых и питающих сетей 1 этажа в осях "А - И" План расположения силовых и питающих сетей 1 этажа в осях "М - Н" План расположения силовых и питающих сетей 1 этажа в осях "М - Р" План расположения силовых и питающих сетей 2 этажа в осях "А - И" План расположения силовых и питающих сетей 2 этажа в осях "К - Н" План расположения силовых и питающих сетей 2 этажа в осях "М - Р" Расчетная схема силовых сетей Опросный лист на вводно-распределительное устройство Связь и сигнализация Общие данные Схема расположения устройств связи План 1 этажа в осях "А - И" План 1 этажа в осях "И - Н" План 1 этажа в осях "Л - Р" План 2 этажа в осях "А - И" План 2 этажа в осях "Ж - М" План 2 этажа в осях "Л - Р" План кровли Автоматика вентиляционных систем Общие данные Вентсистемы П1 - П4. Схемы автоматизации Схема принципиальная электрическая управления П1 Схема принципиальная электрическая урегулирования П1 Схема принципиальная электрическая управления П3 Схема подключений П1 Схема подключений П3 Схема расположений П1 - П4 Автоматика задвижки АВК Общие данные Схема принципиальная электрическая управления задвижкой З-1 Схема подключений З-1. Схема расположений З-1 - З-3 Автоматика теплового пункта АТС Общие данные. Тепловой узел. Схема автоматизации Схема принципиальная электрическая регулирования и управления Схема подключений. Схема расположений. Схема питания | Разработан: | ЦНИИЭП граждансельстрой
| Утверждён: | 01.04.1986 Госгражданстрой (Gosgrazhdanstroy 117)
| Расположен в: |
|
                                                                         
|