Скачать Типовой проект 213-1-301.85 Альбом I. Архитектурно-строительные, санитарно-технические и электротехнические чертежиДата актуализации: 10.08.2017 Типовой проект 213-1-301.85
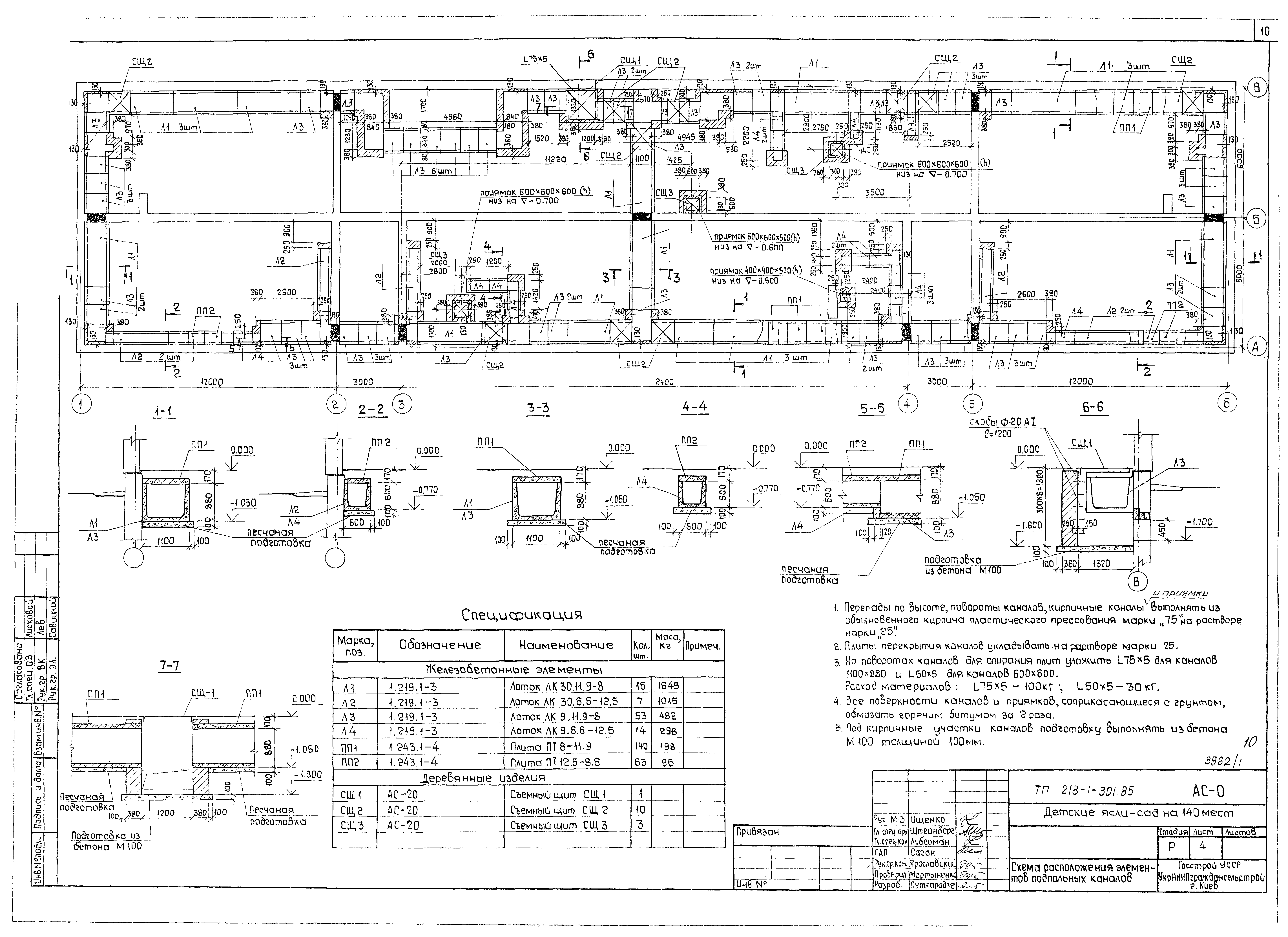
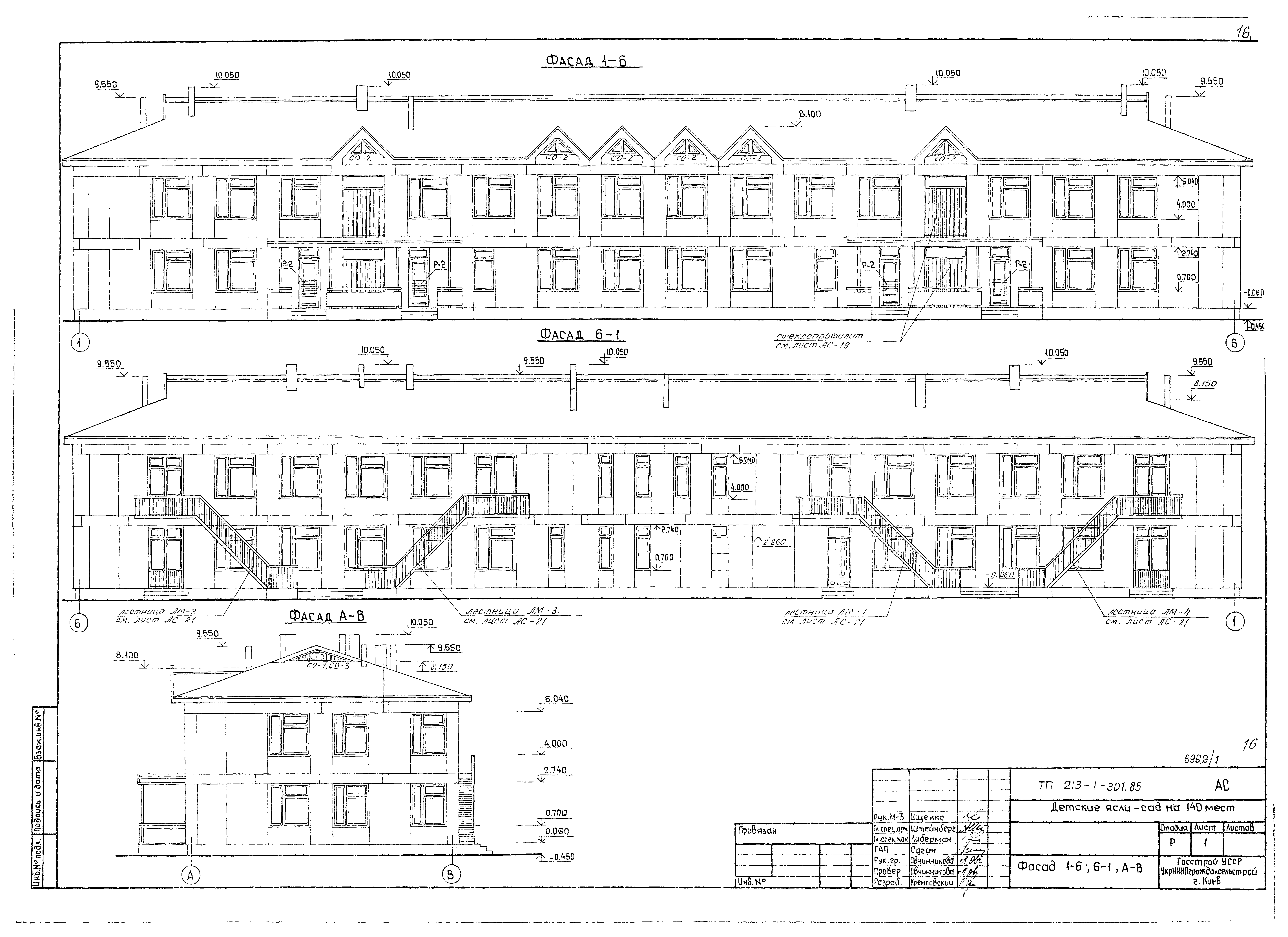
Альбом I. Архитектурно-строительные, санитарно-технические и электротехнические чертежиОбозначение: | Типовой проект 213-1-301.85 | Обозначение англ: | 213-1-301.85 | Статус: | действует | Название рус.: | Альбом I. Архитектурно-строительные, санитарно-технические и электротехнические чертежи | Дата добавления в базу: | 01.09.2013 | Дата актуализации: | 05.05.2017 | Оглавление: | Содержание альбома Пояснительная записка Схема генерального плана. Технические показатели Архитектурно-строительные чертежи ниже отм. 0.000 Общие данные План монолитных фундаментов Сечения монолитных фундаментов 1-1…6-6. Фундаменты технологического оборудования ФО-1…ФО-4 Схема расположения элементов подпольных каналов План техподполья. Разрез 1-1 Схема расположения элементов сборных ж/б фундаментов (вариант с техподпольем) Сечения сборных фундаментов. Схемы расположения элементов стен техподполья по осям А, Б, 1, 2 Схема расположения элементов перекрытия и перемычек техподполья Крыльца №1…№7 Архитектурно-строительные чертежи выше отм. 0.000 Фасады 1 - 6; 6 - 1; А - В Фасады 1 - 6; 6 - 1; А - В (вариант с техподпольем) План 1 этажа План 2 этажа Разрез 1-1. План скатного покрытия. План чердака Планы 1 и 2 этажей. Ведомость отделки помещений Экспликация полов. Спецификация деревянных изделий Развертка стены по оси А Развертка стены по оси В Развертки стен по осям 1 и 6 Развертки стен по осям Б, 5, 2 Развертки стен по осям 3 и 4. Развертки В-1, В-2, В-3 Детали крепления элементов стен 1…7 Схема расположения элементов перекрытия Схема расположения элементов покрытия Схема расположения элементов стропил. Разрезы 1-1, 2-2, 3-3. Узел 1 Узлы стропил 2…8 Узлы стропил 9…14. Вентиляционная камера Индивидуальные столярные изделия СО-1, СО-2, ОП-1, СД-1, ОК-1 Индивидуальные столярные изделия ИД-1, СЩ-1, СЩ-2, СЩ-3, Ф-1…Ф-3 Металлические лестницы ЛМ-1…ЛМ-4 Металлические элементы МС-1…МС-9, А-1, А-2, ЖМ-1, К-1, Р-1, Р-2 Технологические чертежи Планы 1-го и 2-го этажей. Расстановка мебели и оборудования Чертежи основного комплекта марки ВК Общие данные План на отм. 0.000. Схема К1 План 1 этажа. Схема К3 План 2 этажа. Схема К1 Схемы В1, Т3, Т4 План техподполья (вариант). Схема К1 Планы 1-го и 2-го этажей (вариант) Схемы В1, Т3, Т4 (вариант) Чертежи основного комплекта марки ОВ Общие данные План 1 этажа. Схемы систем П1, П2, В1 - В3 План 2 этажа. Схемы систем ВЕ1 - ВЕ3; ВЕ6 - ВЕ9 План техподполья (вариант). Схемы систем ВЕ4, ВЕ5, ВЕ10 - ВЕ13 План чердака. Вытяжные камеры. Узел М-9 Схема системы отопления и обогрева полов. Схема узла управления Вентиляционная камера с установками П1, П2. План, разрезы 1-1, 2-2 Вытяжные камеры. План, разрезы 1-1, 2-2 Вытяжные камеры. Узлы М-4 - М-7 Электрооборудование Общие данные Расчетная схема питающих сетей Планы осветительных сетей 1-го этажа, чердака и техподполья (вариант) План осветительных сетей 2-го этажа Планы силовых сетей 1 и 2 этажей Расчетные схемы силовых распределительных сетей. Принципиальная схема отключения вентсистем при пожаре Опросный лист на изготовление вводно-распределительного устройства ВРУ-1 Чертежи основного комплекта марки УС Общие данные План техподполья. Структурная схема. Условные обозначения Планы 1-го и 2-го этажей Чертежи основного комплекта марки ПС Общие данные Планы 1-го и 2-го этажей Чертежи основного комплекта марки АОВ Общие данные. Ведомость чертежей. Функциональная схема автоматизации Принципиальная электрическая схема управления Шкаф аппаратный. Эскиз общего вида Схема внешних соединений. План трубных проводок | Разработан: | УкрНИИграждансельстрой
| Утверждён: | 14.12.1983 Госстрой УССР (UkrSSR Gosstroy 119)
| Расположен в: |
|
                                                                      
|