Информационная система
«Ёшкин Кот»

Скачать базу одним архивом
Скачать обновления
История создания базы
Карта сайта

Скачать Типовой проект 271-28-13.84 Альбом I. Архитектурно-строительные решения. Технология и механизация. Холодоснабжение. Отопление и вентиляция. Водопровод и канализация. Электроснабжение и силовое электрооборудование. Автоматизация устройств инженерного оборудования. Связь и сигнализация

Дата актуализации: 10.08.2017

Типовой проект 271-28-13.84

Альбом I. Архитектурно-строительные решения. Технология и механизация. Холодоснабжение. Отопление и вентиляция. Водопровод и канализация. Электроснабжение и силовое электрооборудование. Автоматизация устройств инженерного оборудования. Связь и сигнализация

Обозначение: Типовой проект 271-28-13.84
Обозначение англ: 271-28-13.84
Статус:не определен законодательством
Название рус.:Альбом I. Архитектурно-строительные решения. Технология и механизация. Холодоснабжение. Отопление и вентиляция. Водопровод и канализация. Электроснабжение и силовое электрооборудование. Автоматизация устройств инженерного оборудования. Связь и сигнализация
Дата добавления в базу:01.10.2014
Дата актуализации:05.05.2017
Дата введения:08.10.1984
Оглавление:Чертежи основного комплекта марки АС
   Общие данные
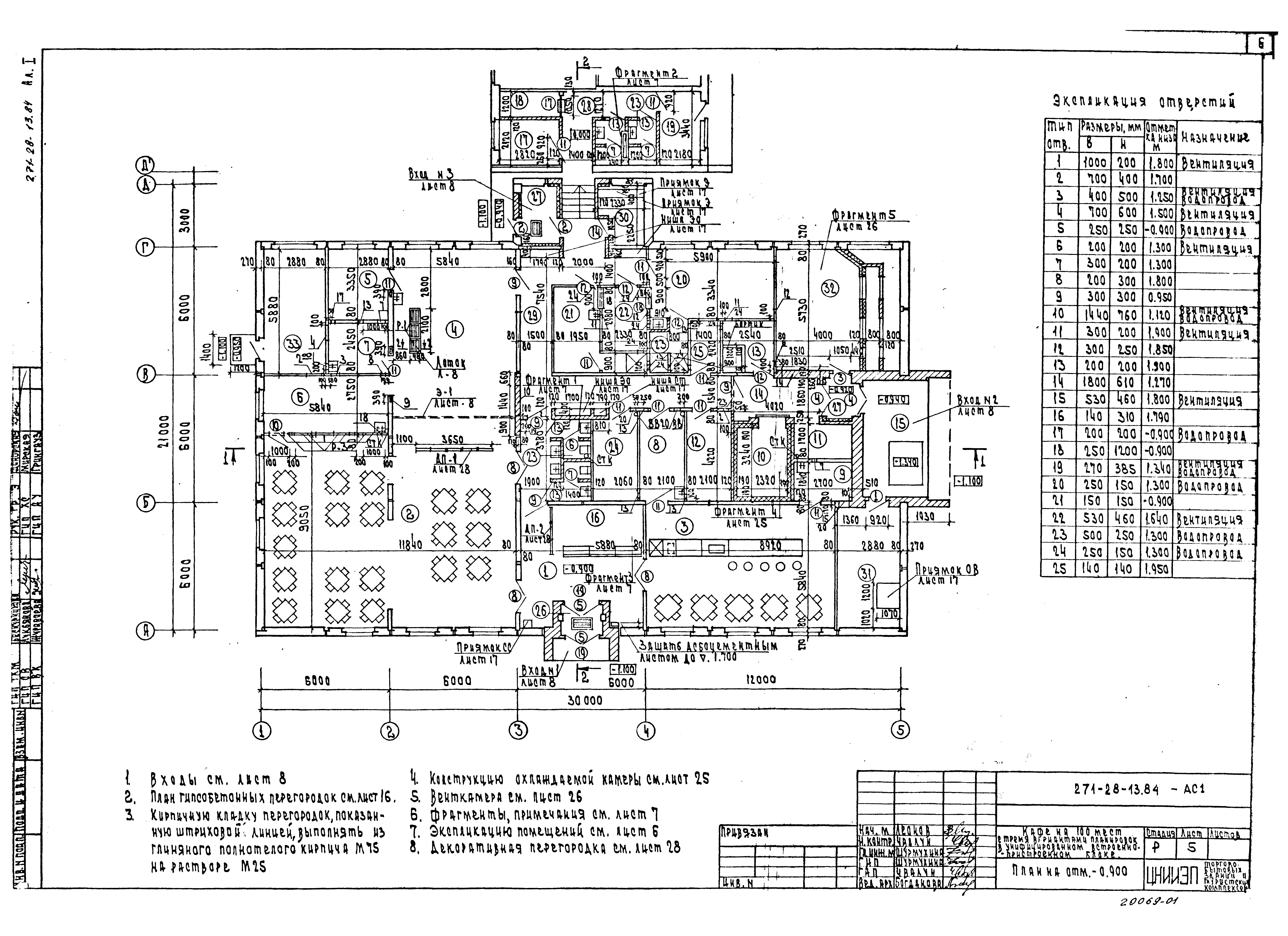
   План на отм. - 0.900
   План на отм. - 0.900 (варианты)
   Фрагменты, спецификация элементов плана
   Входы, развертки, узлы
   Разрезы 1-1, 2-2
   Фасады 1 - 5; 5 - 1
   Фасады А - Д; Д - А
   Фасады 1 - 5; 5 - 1 (вариант)
   Фасады А - Д; Д - А (вариант)
   Развертки стен зала кафе, план потолка зала кафе и бара
   Развертки стен бара, подвесной потолок
   Монтажный план гипсобетонных перегородок и перемычек
   Схема расположения элементов фундаментов. Схема нагрузок
   Сечения и развертки к схемам расположения элементов фундаментов
   Схема расположения элементов покрытия
   Схема расположения наружных и внутренних панелей на отм. - 0.900
   Схема расположения парапетных панелей. План крыши
   Конструкция звена асбестоцементного воздуховода
   Звено асбестоцементного воздуховода. Выборка материалов
   Охлаждаемая камера. Крепление местных отсосов
   Крепление двери охлаждаемой камеры
   Вентиляционная камера. Узлы
   Спецификация к схемам расположения панелей при толщине наружных стен 400 мм
   Декоративные перегородки ДП1, ДП2
Чертежи основного комплекта марки ТХМ
   Общие данные
   План на отм. - 0.900. Вариант А
   Фрагменты планов на отм. - 0.900 в осях А - Б; 1 - 3. Варианты Б, В, Г
   Подъемный стол ПС-500. Установочный чертеж
Чертежи основного комплекта марки ХС
   Общие данные
   План, разрезы и схема хладоновых трубопроводов охлаждаемой камеры
Чертежи основного комплекта марки ОВ
   Общие данные
   План 1 этажа
   План 1 этажа (варианты)
   Схемы систем отопления и теплоснабжения установок П1, П2, У1
   Схемы систем П1, П2
   Схемы систем У1, В1, В2, В3, В4, ВЕ1, ВЕ2
   Установка систем П1 - П2
   Установка систем В1, В2, У1
Чертежи основного комплекта марки ВК
   Общие данные
   Водопровод. План 1 этажа
   Канализация. План 1 этажа
   Схема системы В1, Т3
   Разрезы систем К1, К3
   Разрезы систем К3, К2
Чертежи основного комплекта марки ЭОМ
   Общие данные
   Экспликация помещений
   Схема питающих сетей. Принципиальная схема автоматического отключения вентиляции при пожаре
   План осветительных сетей этажа
   План силовых и питающих сетей основного проекта
   План силовых сетей для варианта кафе молочное
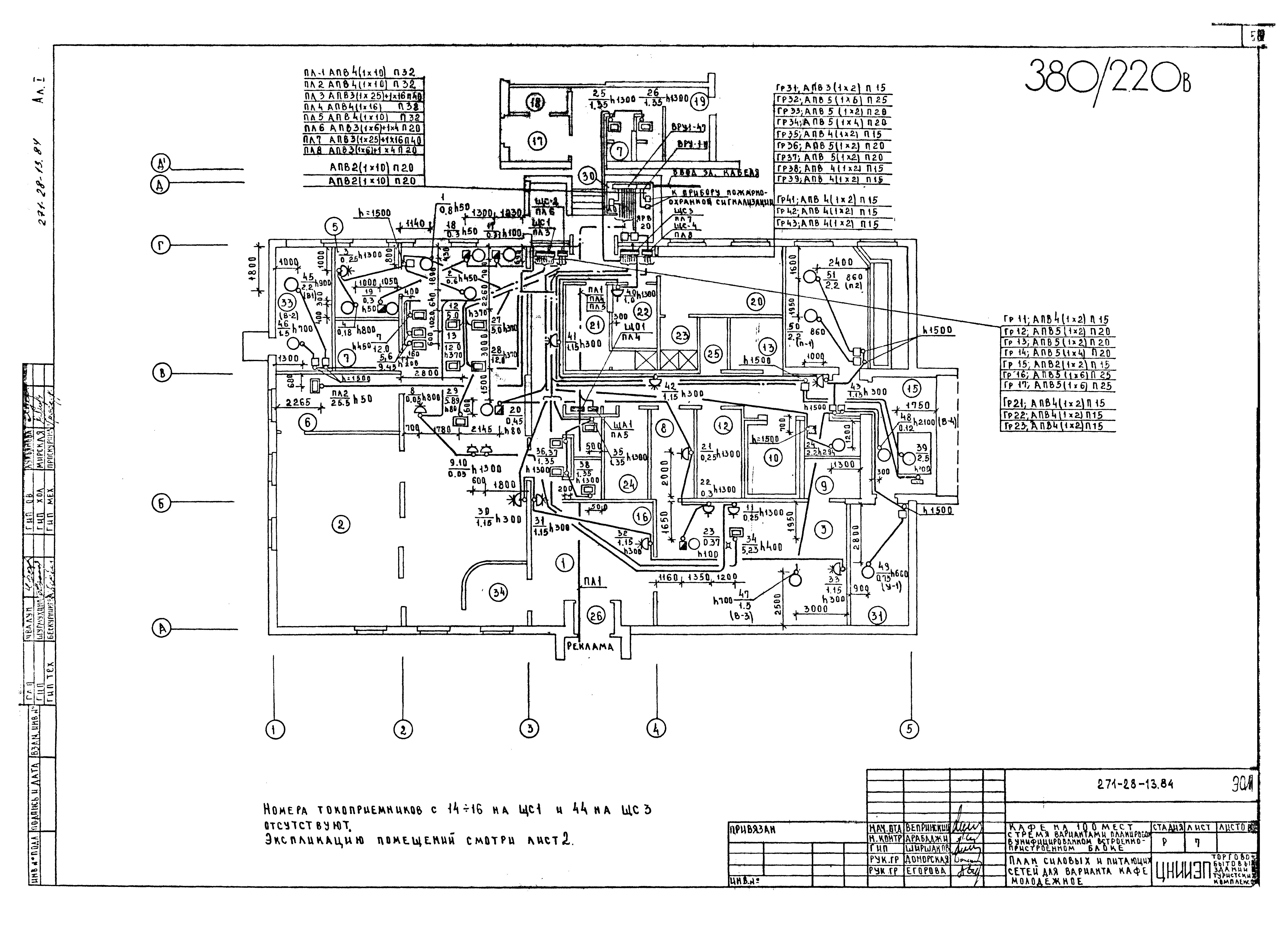
   План силовых сетей для варианта кафе молодежное
   План силовых сетей для варианта кафе детское
   Расчетная схема №1
   Расчетная схема №2
   Расчетная схема №3
   Расчетная схема №4
   Расчетная схема №5
   Расчетная схема №6
   Опросный лист
Чертежи основного комплекта марки АУ
   Общие данные
   Приточные системы П1, П2. Схемы функциональная и электрическая принципиальная
   Приточные системы П1, П2. Схема соединений внешних проводок
   Завеса У1. Схемы функциональная, электрическая принципиальная, соединений внешних проводок
   Приточные системы П1, П2. Завеса У1. План расположения
   Холодильная машина Х1 для камер. Схема соединений внешних проводок
   Холодильная машина Х1 для камер. План расположения
Чертежи основного комплекта марки СС
   Общие данные
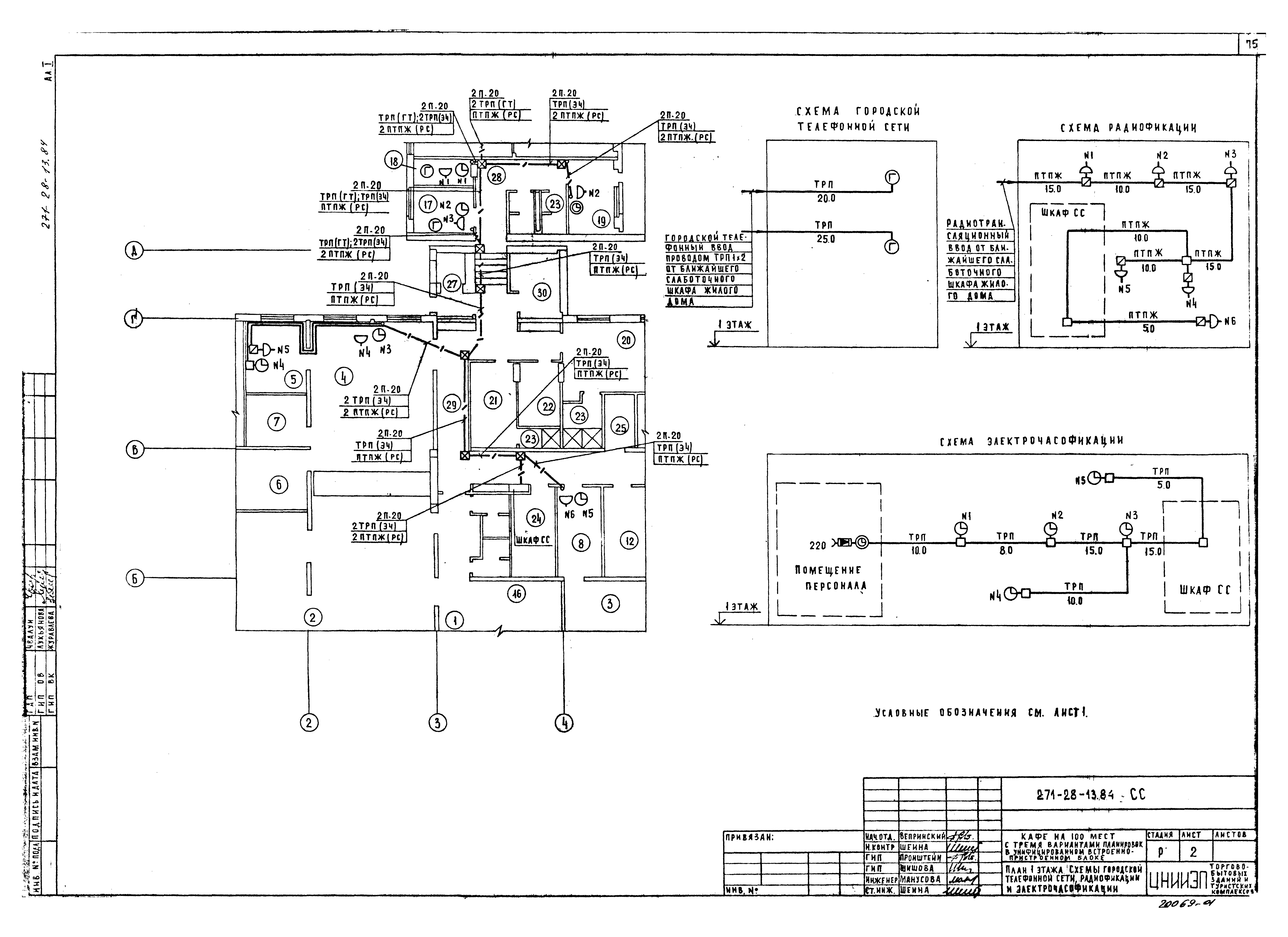
   План 1 этажа. Схемы городской телефонной сети радиофикации и электрочасофикации
   План 1 этажа. Схема озвучения. Экспликация помещений
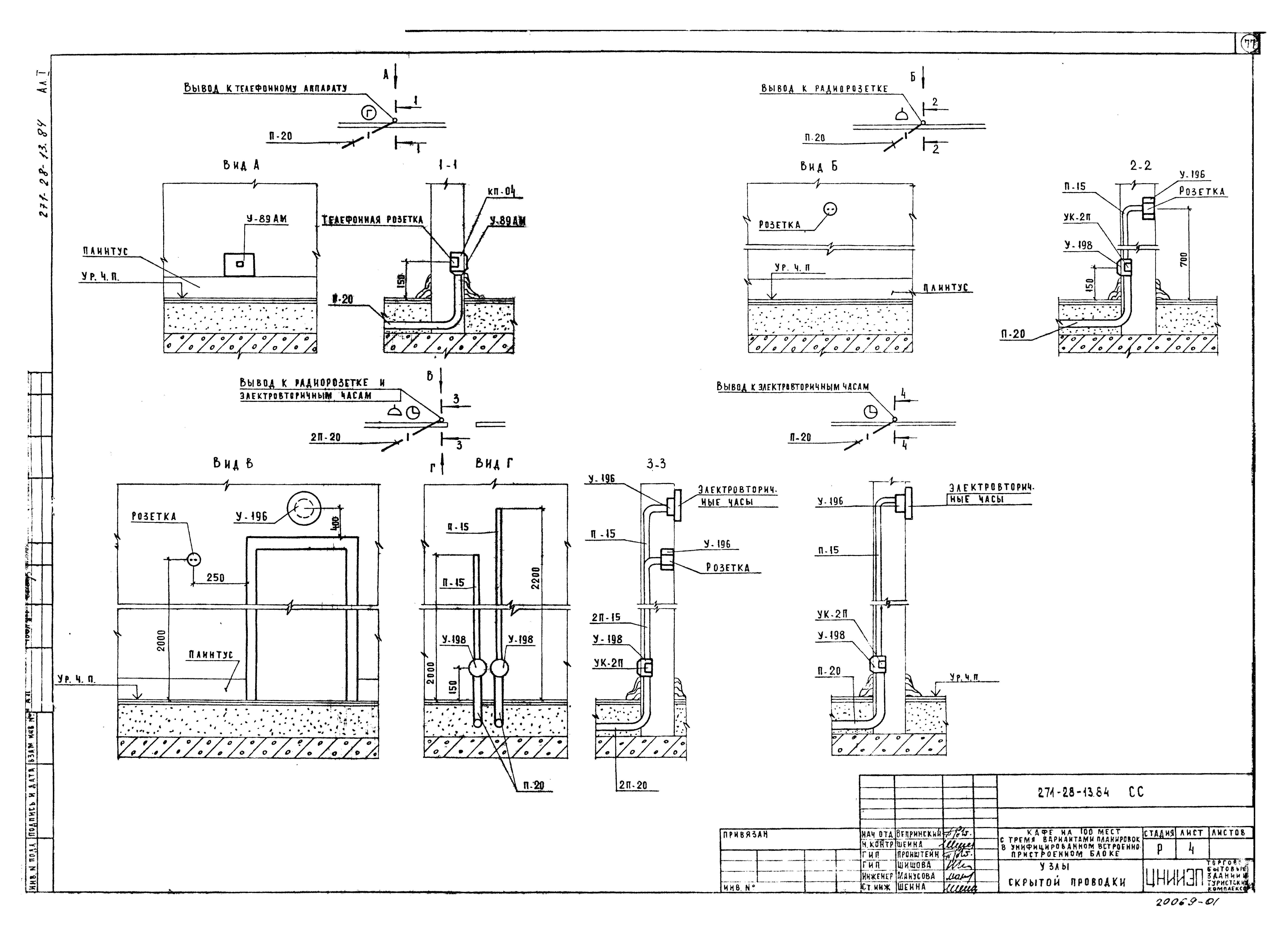
   Узлы скрытой проводки
Разработан: ЦНИИЭП торгово-бытовых зданий и туристских комплексов
Утверждён:30.07.1982 Госгражданстрой (Gosgrazhdanstroy 200)
Расположен в:Техническая документация Строительство Справочные документы Типовые строительные конструкции, изделия и узлы Общероссийский строительный каталог Общественные здания в городах и поселках городского типа Предприятия торговли и общественного питания. Общественные центры Блоки встроенно-пристроенные предприятий общественного питания
Типовой проект 271-28-13.84Типовой проект 271-28-13.84Типовой проект 271-28-13.84Типовой проект 271-28-13.84Типовой проект 271-28-13.84Типовой проект 271-28-13.84Типовой проект 271-28-13.84Типовой проект 271-28-13.84Типовой проект 271-28-13.84Типовой проект 271-28-13.84Типовой проект 271-28-13.84Типовой проект 271-28-13.84Типовой проект 271-28-13.84Типовой проект 271-28-13.84Типовой проект 271-28-13.84Типовой проект 271-28-13.84Типовой проект 271-28-13.84Типовой проект 271-28-13.84Типовой проект 271-28-13.84Типовой проект 271-28-13.84Типовой проект 271-28-13.84Типовой проект 271-28-13.84Типовой проект 271-28-13.84Типовой проект 271-28-13.84Типовой проект 271-28-13.84Типовой проект 271-28-13.84Типовой проект 271-28-13.84Типовой проект 271-28-13.84Типовой проект 271-28-13.84Типовой проект 271-28-13.84Типовой проект 271-28-13.84Типовой проект 271-28-13.84Типовой проект 271-28-13.84Типовой проект 271-28-13.84Типовой проект 271-28-13.84Типовой проект 271-28-13.84Типовой проект 271-28-13.84Типовой проект 271-28-13.84Типовой проект 271-28-13.84Типовой проект 271-28-13.84Типовой проект 271-28-13.84Типовой проект 271-28-13.84Типовой проект 271-28-13.84Типовой проект 271-28-13.84Типовой проект 271-28-13.84Типовой проект 271-28-13.84Типовой проект 271-28-13.84Типовой проект 271-28-13.84Типовой проект 271-28-13.84Типовой проект 271-28-13.84Типовой проект 271-28-13.84Типовой проект 271-28-13.84Типовой проект 271-28-13.84Типовой проект 271-28-13.84Типовой проект 271-28-13.84Типовой проект 271-28-13.84Типовой проект 271-28-13.84Типовой проект 271-28-13.84Типовой проект 271-28-13.84Типовой проект 271-28-13.84Типовой проект 271-28-13.84Типовой проект 271-28-13.84Типовой проект 271-28-13.84Типовой проект 271-28-13.84Типовой проект 271-28-13.84Типовой проект 271-28-13.84Типовой проект 271-28-13.84Типовой проект 271-28-13.84Типовой проект 271-28-13.84Типовой проект 271-28-13.84Типовой проект 271-28-13.84Типовой проект 271-28-13.84Типовой проект 271-28-13.84Типовой проект 271-28-13.84Типовой проект 271-28-13.84Типовой проект 271-28-13.84Типовой проект 271-28-13.84Типовой проект 271-28-13.84

© 2013 Ёшкин Кот :-) Карта сайта