Информационная система
«Ёшкин Кот»

Скачать базу одним архивом
Скачать обновления
История создания базы
Карта сайта

Скачать Типовой проект 222-1-193/75 Альбом I. Архитектурно-строительные и технологические чертежи

Дата актуализации: 10.08.2017

Типовой проект 222-1-193/75

Альбом I. Архитектурно-строительные и технологические чертежи

Обозначение: Типовой проект 222-1-193/75
Обозначение англ: 222-1-193/75
Статус:действует
Название рус.:Альбом I. Архитектурно-строительные и технологические чертежи
Дата добавления в базу:01.10.2014
Дата актуализации:05.05.2017
Оглавление:Содержание альбома. Пояснительная записка. Спецификация типовых деталей
Чертежи основного комплекта марки АС
   Блок 1. План 1-го этажа в осях 6 - 11. Лестница №1
   Блок 1. План 2-го этажа в осях 6 - 13. Лестница №2
   Блок 1. План 3-го этажа в осях 6 - 13. Лестница №3 (блок 2)
   Блок 2. План 1-го этажа в осях 1 - 6
   Блок 2. План 2-го этажа в осях 1 - 6
   Блок 2. План 3-го этажа в осях 1 - 6
   Блок 3. План 1-го этажа в осях 11 - 14
   Блок 3. План 2-го и 3-го этажей в осях 11 - 14
   Фасады в осях "1 - 14" и "11 - 6". Разрез 1-1. Раскладка стеновых панелей по оси "А" и по оси "Г"
   Фасады в осях "М - Л" и "Г - М". Разрез 2-2. Раскладка стеновых панелей по оси "1" и "6"
   Фасады в осях "14 - 1" и "6 - 11". Разрез 3-3. Раскладка стеновых панелей по оси "М" и "К"
   Фасады в осях "А - М" и "М - Г". Разрез 4-4. Раскладка стеновых панелей по оси "14" и "11"
   Узлы и детали лестниц
   Перекрытие 1-го этажа
   Перекрытие 2-го этажа
   План покрытия
   Утепление перекрытий 1-го этажа в осях "В - Г" между осями "7 - 10" и в осях "К - М" между осями "6 - 11"
   Интерьер вестибюля
   Установка сдвоенных окон и дверей
   План кровли. Раскладка парапетных плит и плит над венткамерами
   Сечение и детали венткоробов и шахт на кровле
   Узлы и детали кровли
   Охлаждаемая камера. Изоляция междуэтажного перекрытия и стен
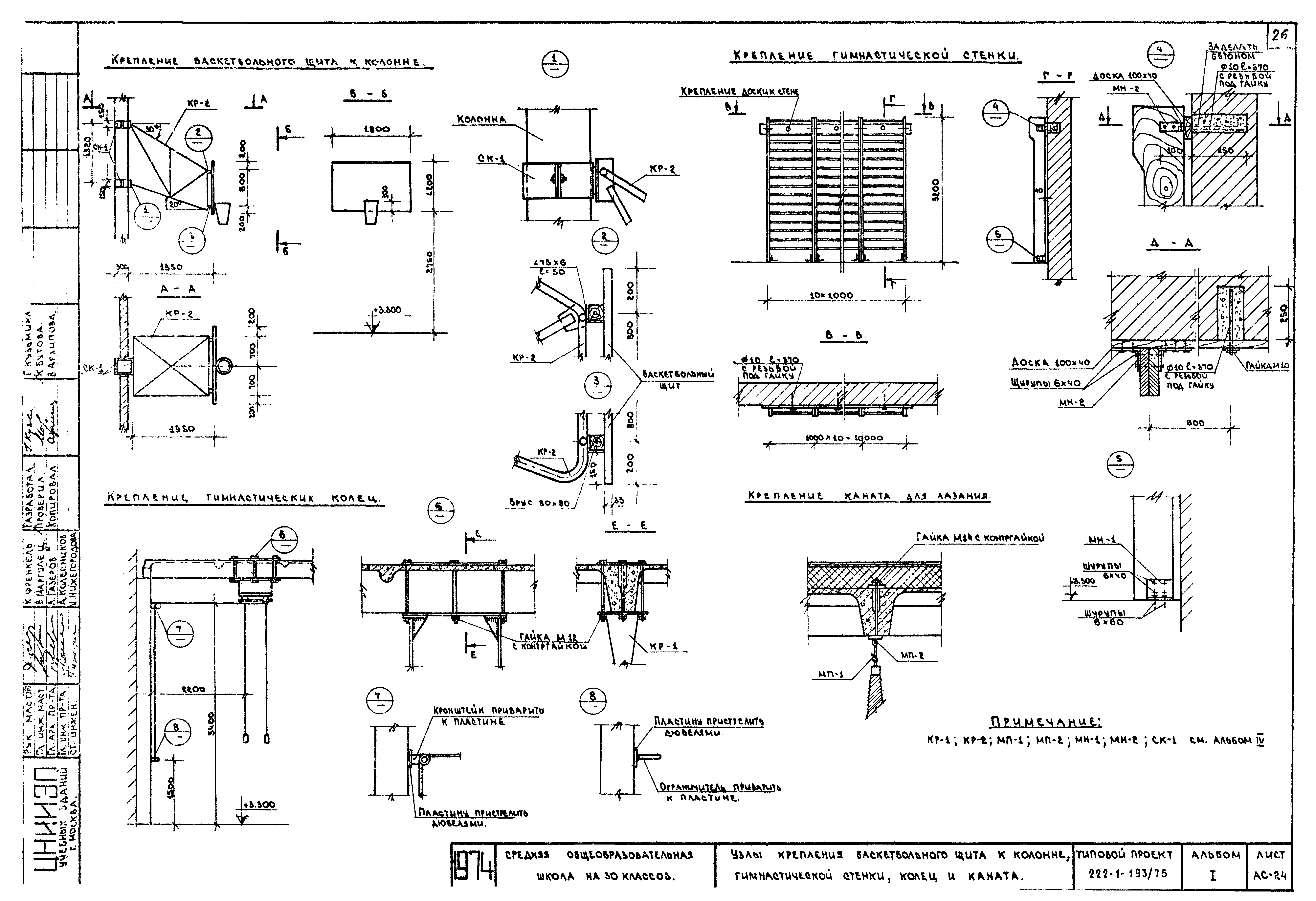
   Узлы крепления баскетбольного щита к колонне, каната, гимнастической сетки и колец
   Ограждение окон и радиаторов гимнастического зала. Крепление защитной сетки светильников гимнастического зала
Чертежи основного комплекта марки ТО
   Блок 1. План 1 этажа в осях "6" - "11". Расстановка технологического оборудования
   Блок 1. План 2 этажа в осях "6" - "13". Расстановка технологического оборудования
   Блок 1. План 3 этажа в осях "6" - "13". Расстановка технологического оборудования
   Блок 2. План 1 этажа в осях "1" - "6". Расстановка технологического оборудования
   Блок 2. План 2 этажа в осях "1" - "6". Расстановка технологического оборудования
   Блок 2. План 3 этажа в осях "1" - "6". Расстановка технологического оборудования
   Блок 3. План 1 этажа в осях "11" - "14". Расстановка технологического оборудования
   Блок 3. План 2 этажа в осях "11" - "14". План 3 этажа в осях "11" - "14". Расстановка технологического оборудования
   Сводная спецификация технологического оборудования
Чертежи основного комплекта марки КТ
   Пояснительная записка. Спецификация оборудования и материалов. Перечень чертежей
   План и разрезы актового зала и киноаппаратной. Раскладка стальных труб с проводами в кинопроекционной
   Схема внешних соединений киноустановки
Разработан: ЦНИИЭП учебных зданий
Утверждён:24.11.1975 ЦНИИЭП учебных зданий (TsNIIEP of Educational Buildings 147)
Расположен в:Техническая документация Строительство Справочные документы Типовые строительные конструкции, изделия и узлы Общероссийский строительный каталог Общественные здания для строительства в сельской местности Школы и внешкольные учреждения Общеобразовательные школы
Типовой проект 222-1-193/75Типовой проект 222-1-193/75Типовой проект 222-1-193/75Типовой проект 222-1-193/75Типовой проект 222-1-193/75Типовой проект 222-1-193/75Типовой проект 222-1-193/75Типовой проект 222-1-193/75Типовой проект 222-1-193/75Типовой проект 222-1-193/75Типовой проект 222-1-193/75Типовой проект 222-1-193/75Типовой проект 222-1-193/75Типовой проект 222-1-193/75Типовой проект 222-1-193/75Типовой проект 222-1-193/75Типовой проект 222-1-193/75Типовой проект 222-1-193/75Типовой проект 222-1-193/75Типовой проект 222-1-193/75Типовой проект 222-1-193/75Типовой проект 222-1-193/75Типовой проект 222-1-193/75Типовой проект 222-1-193/75Типовой проект 222-1-193/75Типовой проект 222-1-193/75Типовой проект 222-1-193/75Типовой проект 222-1-193/75Типовой проект 222-1-193/75Типовой проект 222-1-193/75Типовой проект 222-1-193/75Типовой проект 222-1-193/75Типовой проект 222-1-193/75Типовой проект 222-1-193/75Типовой проект 222-1-193/75Типовой проект 222-1-193/75Типовой проект 222-1-193/75Типовой проект 222-1-193/75Типовой проект 222-1-193/75Типовой проект 222-1-193/75Типовой проект 222-1-193/75

© 2013 Ёшкин Кот :-) Карта сайта