Информационная система
«Ёшкин Кот»

Скачать базу одним архивом
Скачать обновления
История создания базы
Карта сайта

Скачать Типовой проект 125-047/1.2 АС.0. Общие архитектурно-строительные решения

Дата актуализации: 10.08.2017

Типовой проект 125-047/1.2

АС.0. Общие архитектурно-строительные решения

Обозначение: Типовой проект 125-047/1.2
Обозначение англ: 125-047/1.2
Статус:не определен законодательством
Название рус.:АС.0. Общие архитектурно-строительные решения
Дата добавления в базу:01.09.2013
Дата актуализации:05.05.2017
Дата введения:29.11.1982
Оглавление:Общие данные
Секция 2Б-2Б-3Б-3Б. Типовой этаж. Санузлы из отдельных элементов
Секция 2Б-2Б-3Б-3Б. Типовой этаж. Санузлы объемные
Секция 2Б-2Б-2Б-3Б. Первый этаж. Санузлы из отдельных элементов
Фрагмент плана 1-го этажа. Секция 2А-2Б-2Б-3Б. Санузлы объемные
Фрагмент плана 1-го этажа. Наружные стены из ячеистого бетона
Элементы блокировки ЭБ-1п и ЭБ-1л (с рядовой); ЭБ-2п и ЭБ-2л (с торцовой)
Схемы фасадов 1с - 7с; Гс - Ас с однорядной разрезкой наружных стен (основное решение)
Схемы фасадов Дс - Ас; 7с - 4с с однорядной разрезкой наружных стен (основное решение)
Фрагмент и схемы фасадов 1с - 7с; Гс - Дс с двухрядной разрезкой наружных стен. Вариант 1 и 2
Фрагмент и схемы фасадов Дс - Ас; 7с - 4с с двухрядной разрезкой наружных стен. Вариант 1 и 2
Варианты блокировок блок-секций
Фрагмент плана. Вход с двойным тамбуром
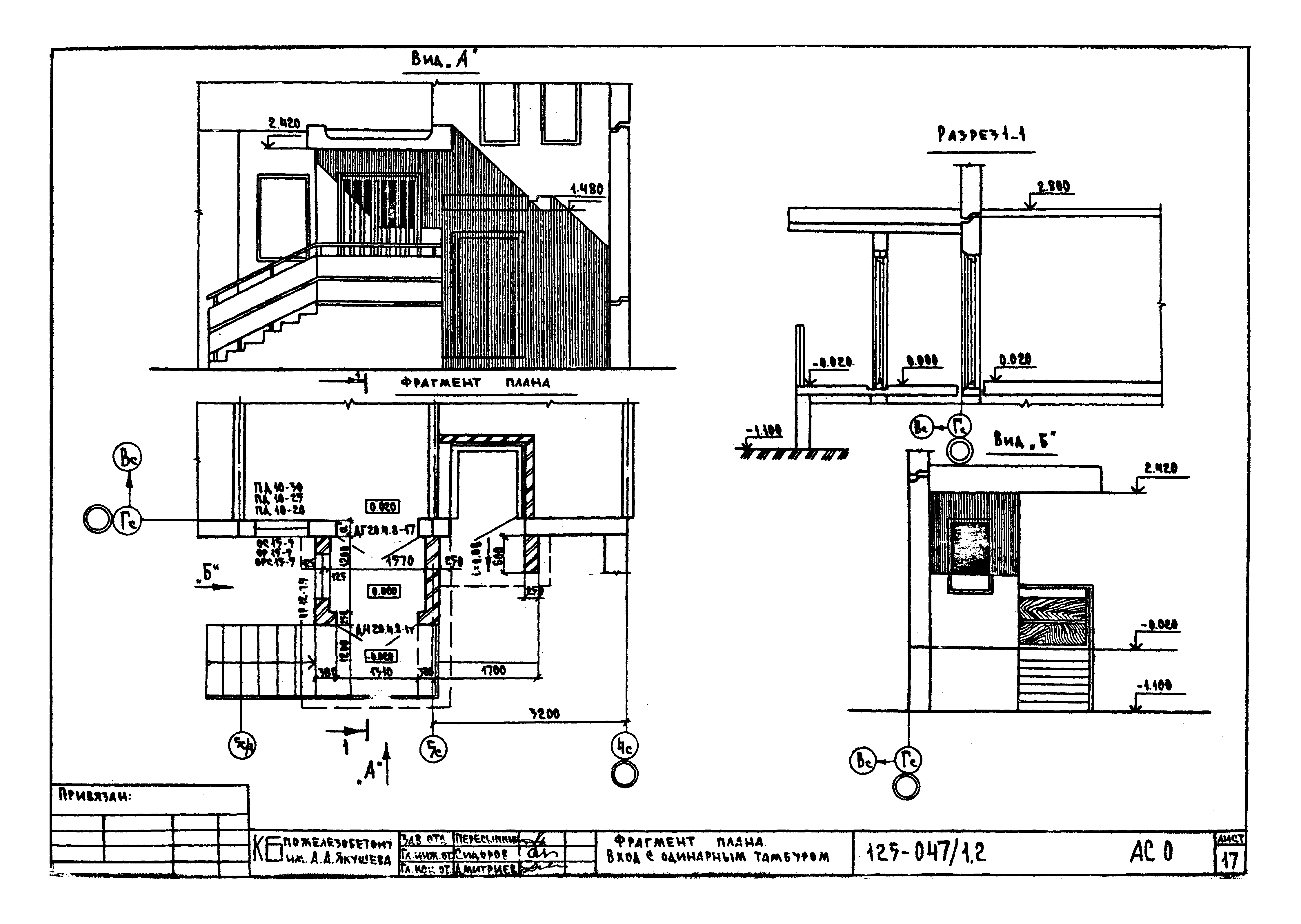
Фрагмент плана. Вход с одинарным тамбуром
Деталь фасада в осях 5с - 7с
Деталь фасада в осях 2с - 3с. Деталь фасада (торец)
Ведомость отделки помещений. Ведомость отделки фасадов
Варианты фасадов конструктивных решений и инженерного оборудования
Варианты фасадов конструктивных решений и инженерного оборудования. Объемно-планировочные показатели
Разработан: КБ по железобетону им. А.А. Якушева
Утверждён:18.04.1980 Госстрой РСФСР (Russian Federation Gosstroy 48)
Расположен в:Техническая документация Строительство Справочные документы Типовые строительные конструкции, изделия и узлы Общероссийский строительный каталог Жилые здания для строительства в городах и поселках городского типа Обычные условия Жилые дома панельные Серия 125
Типовой проект 125-047/1.2Типовой проект 125-047/1.2Типовой проект 125-047/1.2Типовой проект 125-047/1.2Типовой проект 125-047/1.2Типовой проект 125-047/1.2Типовой проект 125-047/1.2Типовой проект 125-047/1.2Типовой проект 125-047/1.2Типовой проект 125-047/1.2Типовой проект 125-047/1.2Типовой проект 125-047/1.2Типовой проект 125-047/1.2Типовой проект 125-047/1.2Типовой проект 125-047/1.2Типовой проект 125-047/1.2Типовой проект 125-047/1.2Типовой проект 125-047/1.2Типовой проект 125-047/1.2Типовой проект 125-047/1.2Типовой проект 125-047/1.2Типовой проект 125-047/1.2Типовой проект 125-047/1.2Типовой проект 125-047/1.2

© 2013 Ёшкин Кот :-) Карта сайта