Информационная система
«Ёшкин Кот»

Скачать базу одним архивом
Скачать обновления
История создания базы
Карта сайта

Скачать Типовой проект 125-04/1.2 Э.5. Электрооборудование

Дата актуализации: 10.08.2017

Типовой проект 125-04/1.2

Э.5. Электрооборудование

Обозначение: Типовой проект 125-04/1.2
Обозначение англ: 125-04/1.2
Статус:не определен законодательством
Название рус.:Э.5. Электрооборудование
Дата добавления в базу:01.09.2013
Дата актуализации:05.05.2017
Дата введения:01.09.1983
Оглавление:Общие данные
Спецификация
Схема однолинейная расчетная
Схема однолинейная расчетная. Фрагмент плана 1-го этажа
Опросный лист. Задание заводу-изготовителю на изготовление ВРУ1-12-48-07
Питающие и осветительные сети техподполья в осях 1с - 6с
План типового этажа в осях 1с - 6с
Электроосвещение машинного помещения. Вариант люминесцентного освещения лестничных площадок
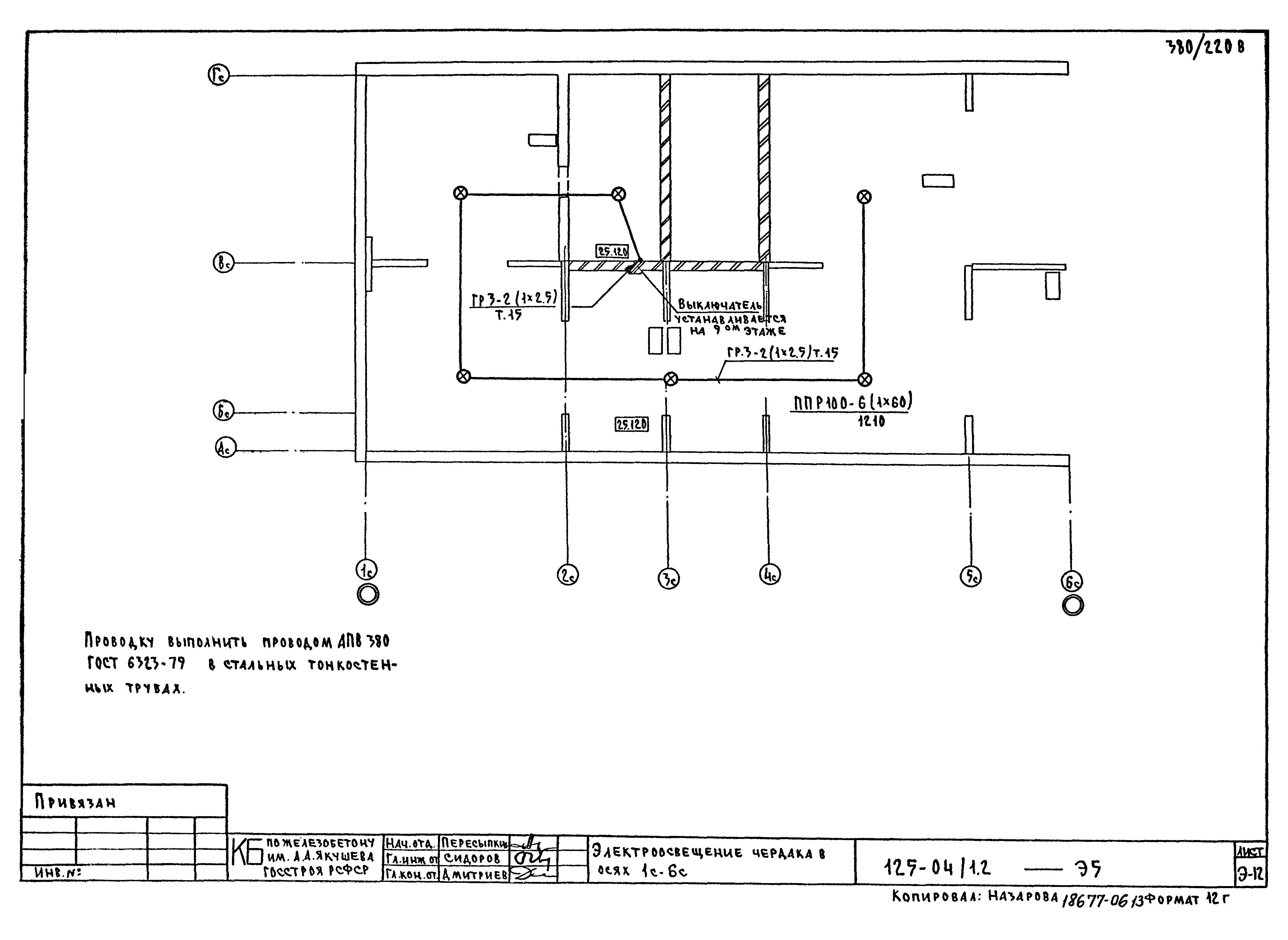
Электроосвещение чердака в осях 1с - 6с
Узлы прокладки групповой электросети. Размещение вводно-распределительного устройства
Разработан: КБ по железобетону им. А.А. Якушева
Утверждён:01.09.1983 Госстрой РСФСР (Russian Federation Gosstroy )
Расположен в:Техническая документация Строительство Справочные документы Типовые строительные конструкции, изделия и узлы Общероссийский строительный каталог Жилые здания для строительства в городах и поселках городского типа Обычные условия Жилые дома панельные Серия 125
Типовой проект 125-04/1.2Типовой проект 125-04/1.2Типовой проект 125-04/1.2Типовой проект 125-04/1.2Типовой проект 125-04/1.2Типовой проект 125-04/1.2Типовой проект 125-04/1.2Типовой проект 125-04/1.2Типовой проект 125-04/1.2Типовой проект 125-04/1.2Типовой проект 125-04/1.2Типовой проект 125-04/1.2Типовой проект 125-04/1.2Типовой проект 125-04/1.2Типовой проект 125-04/1.2

© 2013 Ёшкин Кот :-) Карта сайта