Информационная система
«Ёшкин Кот»

Скачать базу одним архивом
Скачать обновления
История создания базы
Карта сайта

Скачать Типовой проект 407-9-32.90 Альбом 3. Строительные изделия (из ТП 407-9-31.90)

Дата актуализации: 10.08.2017

Типовой проект 407-9-32.90

Альбом 3. Строительные изделия (из ТП 407-9-31.90)

Обозначение: Типовой проект 407-9-32.90
Обозначение англ: 407-9-32.90
Статус:не определен законодательством
Название рус.:Альбом 3. Строительные изделия (из ТП 407-9-31.90)
Дата добавления в базу:01.09.2013
Дата актуализации:05.05.2017
Дата введения:24.05.1990
Оглавление:407-9-31.90-АС.И-ТТ Технические требования
407-9-31.90-АС.И-1 Панель торцевая ПТО
407-9-31.90-АС.И-2 Плита покрытия Пу
407-9-31.90-АС.И-3 Секция С1
407-9-31.90-АС.И-4 Секции С2, С3
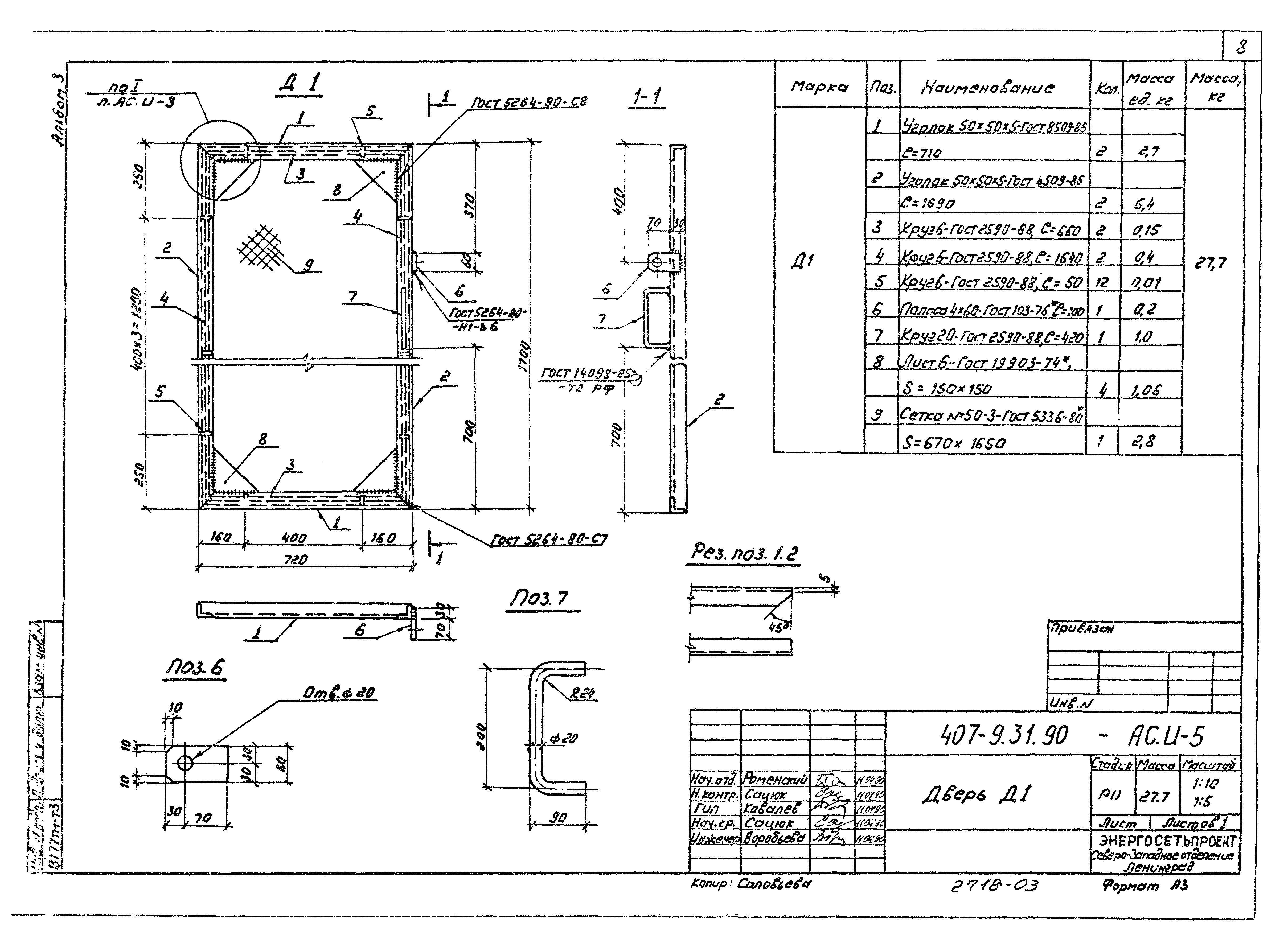
407-9-31.90-АС.И-5 Дверь Д1
407-9-31.90-АС.И-6 Стойки СМ1, СМ2
407-9-31.90-АС.И-7 Стойки СМ3…СМ7
407-9-31.90-АС.И-8 Стойка СМ8. Изделия опорные М1, М2. Изделия закладные Б1, Б2
407-9-31.90-АС.И-9 Изделия закладные МН1…МН4
407-9-31.90-АС.И-10 Изделия закладные МН5…МН7
407-9-31.90-АС.И-11 Изделия закладные МН8…МН10
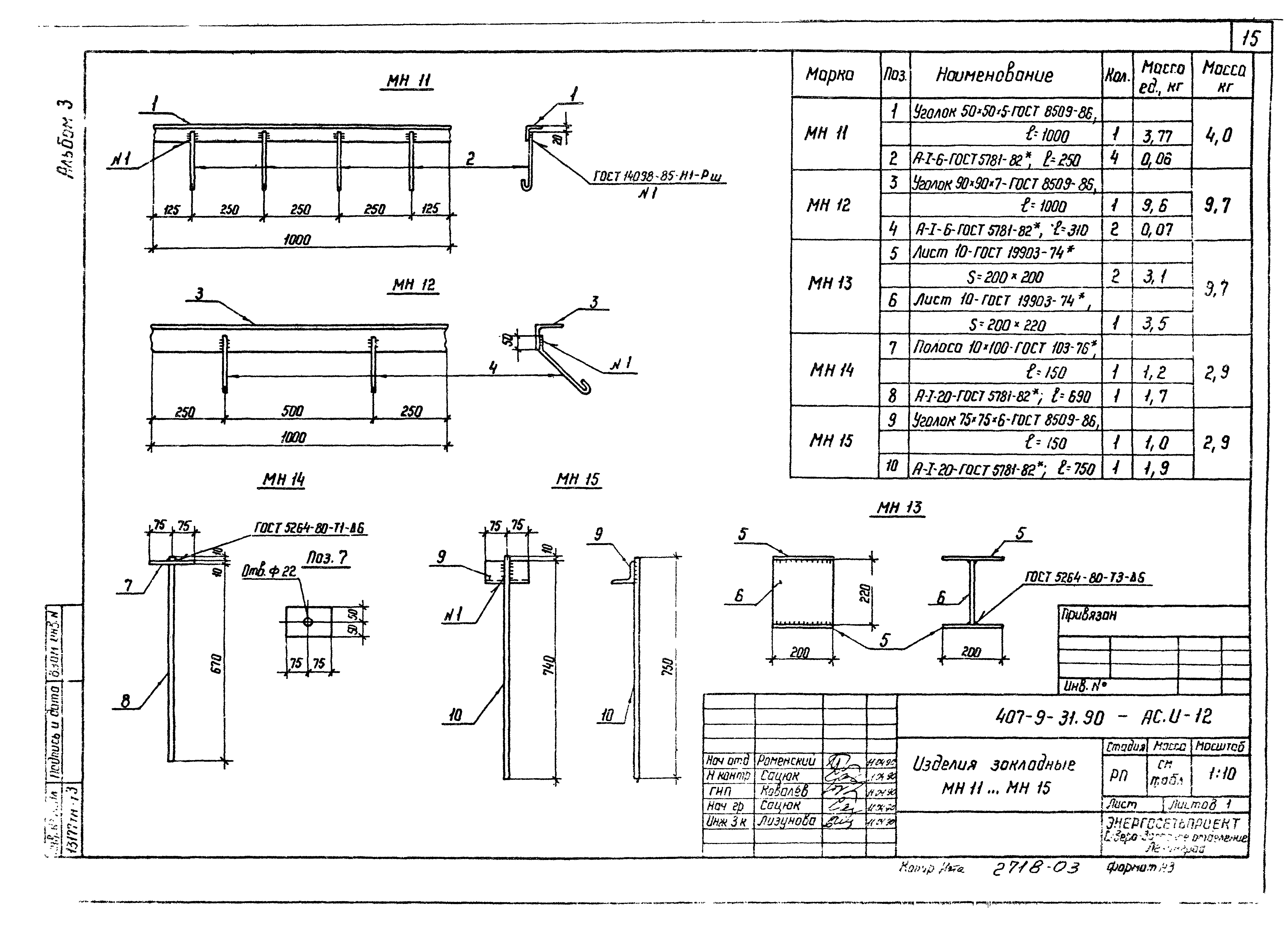
407-9-31.90-АС.И-12 Изделия закладные МН11…МН15
407-9-31.90-АС.И-13 Изделия закладные МН16…МН20
407-9-31.90-АС.И-14 Изделия закладные МН21…МН24
407-9-31.90-АС.И-15 Изделия закладные МН25…МН31
407-9-31.90-АС.И-16 Щиты покрытия каналов Щ1…Щ6
Разработан: Северо-западное отделение института Энергосетьпроект
Утверждён:24.05.1990 Минэнерго СССР (USSR Minenergo 35)
Издан: СЗО Энергосетьпроект (1990 г. )
Расположен в:Техническая документация Строительство Справочные документы Типовые строительные конструкции, изделия и узлы Общероссийский строительный каталог Промышленные предприятия, здания и сооружения Предприятия, здания и сооружения промышленности и электроэнергетики Электроэнергетика Здания и сооружения разные
Типовой проект 407-9-32.90Типовой проект 407-9-32.90Типовой проект 407-9-32.90Типовой проект 407-9-32.90Типовой проект 407-9-32.90Типовой проект 407-9-32.90Типовой проект 407-9-32.90Типовой проект 407-9-32.90Типовой проект 407-9-32.90Типовой проект 407-9-32.90Типовой проект 407-9-32.90Типовой проект 407-9-32.90Типовой проект 407-9-32.90Типовой проект 407-9-32.90Типовой проект 407-9-32.90Типовой проект 407-9-32.90Типовой проект 407-9-32.90Типовой проект 407-9-32.90Типовой проект 407-9-32.90Типовой проект 407-9-32.90Типовой проект 407-9-32.90

© 2013 Ёшкин Кот :-) Карта сайта