Информационная система
«Ёшкин Кот»

Скачать базу одним архивом
Скачать обновления
История создания базы
Карта сайта

Скачать Типовой проект 501-260 Часть II. Свайные и стоечные опоры

Дата актуализации: 10.08.2017

Типовой проект 501-260

Часть II. Свайные и стоечные опоры

Обозначение: Типовой проект 501-260
Обозначение англ: 501-260
Статус:отменен
Название рус.:Часть II. Свайные и стоечные опоры
Дата добавления в базу:01.09.2013
Дата актуализации:05.05.2017
Дата введения:01.10.2000
Оглавление:Основные данные применяемых типовых конструкций
   Пролетные строения
   Сваи
   Элементы опор
   Тротуарные консоли
Свайные опоры
   Устои. Сборочные чертежи (основные данные)
   Промежуточные опоры. Сборочные чертежи (основные данные)
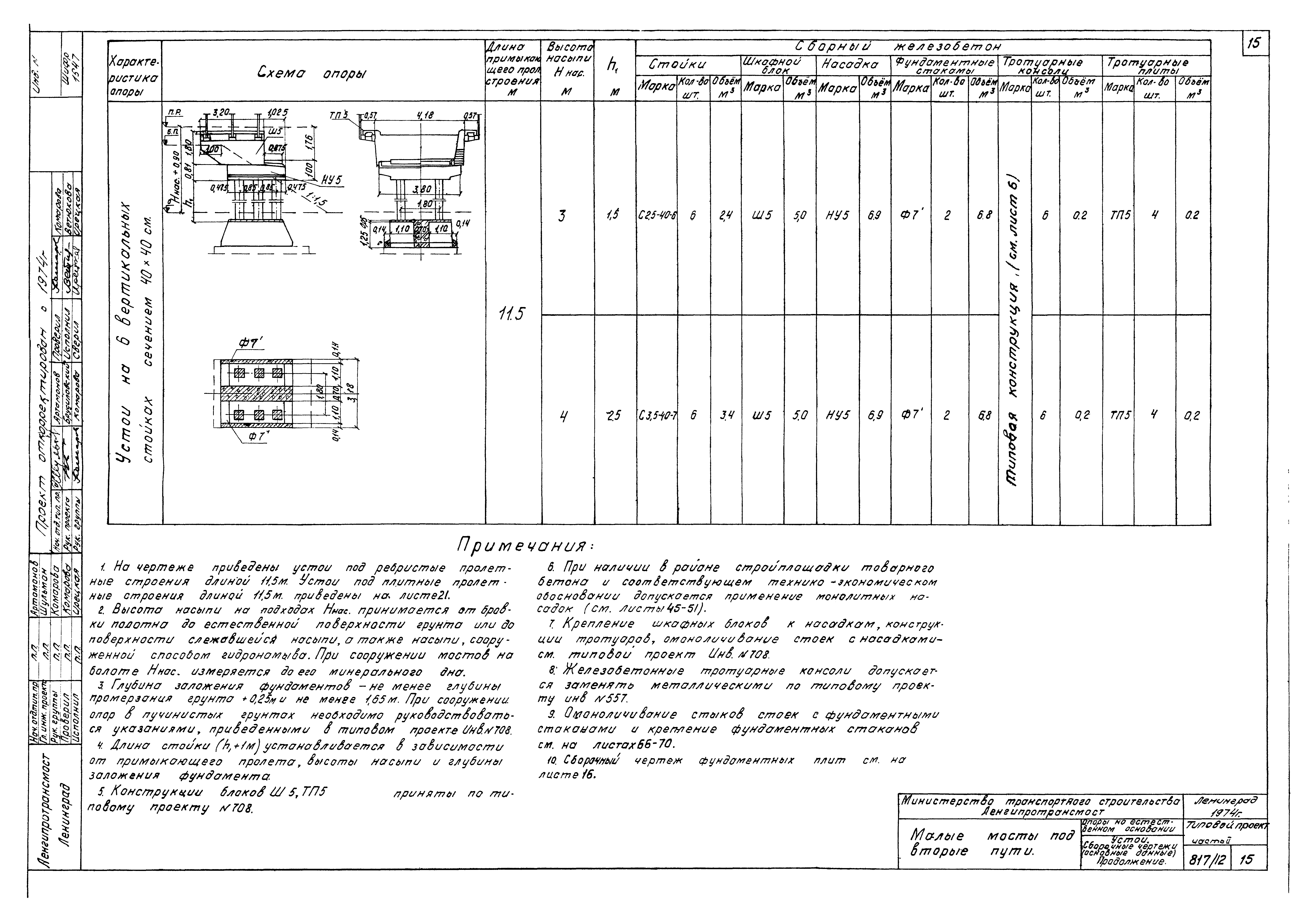
Опоры на естественном основании
    Устои. Сборочные чертежи (основные данные)
    Устои. Сборочные чертежи. Фундаментные плиты
   Промежуточные опоры. Сборочные чертежи (основные данные)
   Промежуточные опоры. Сборочные чертежи. Фундаментные плиты
Опоры од плитные пролетные строения
Маркировочная ведомость блоков опор
Стойки сечением 40х40 см. Опалубочный и арматурный чертежи
Блок НУ3. Опалубочный чертеж
Блок НУ4. Опалубочный чертеж
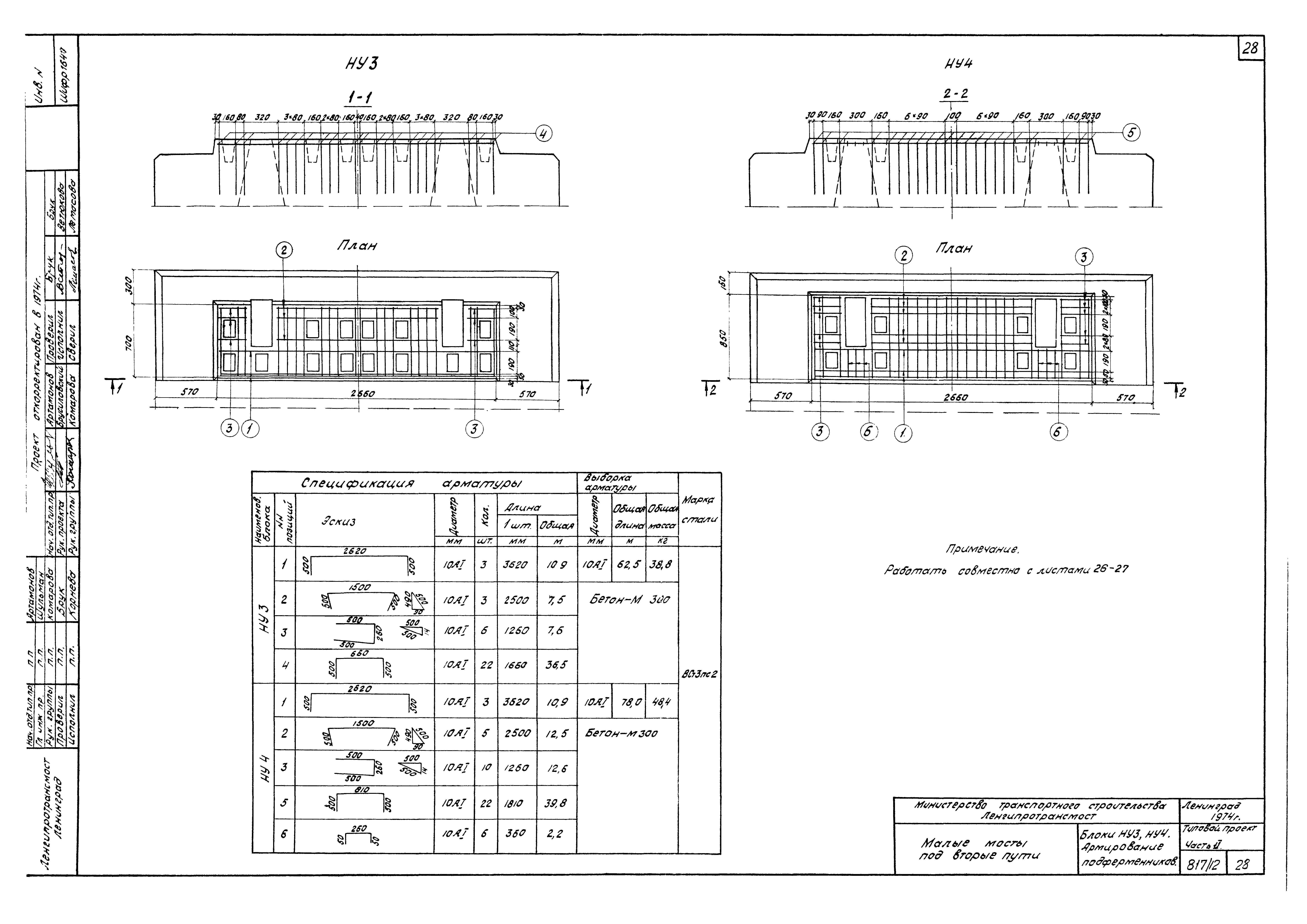
Блоки НУ3, НУ4. Арматурные чертежи
Блоки НУ3, НУ4. Армирование подферменников
Блок НУ5. Опалубочный чертеж
Блок НУ5. Арматурный чертеж
Блоки Н3, Н4. Опалубочные чертежи
Блок Н3. Арматурный чертеж
Блок Н4. Арматурный чертеж
Блок Н5. Опалубочный чертеж
Блок Н5. Арматурный чертеж
Блок Ф3-3`. Опалубочный и арматурный чертежи
Блок Ф7`. Опалубочный и арматурный чертежи
Блоки ФП5, ФП5`, ФП7. Опалубочный и арматурный чертежи
Блоки ФП6, ФП6`, ФП8. Опалубочный и арматурный чертежи
Насадка НУм6. Опалубочный чертеж
Насадки НУм7, НУм8. Опалубочные чертежи
Насадки НУм9, НУм10. Опалубочные чертежи
Насадки НУм6, НУм7, НУм9. Арматурные чертежи
Насадки НУм8, НУм10. Арматурные чертежи
Насадки НУм6 - НУм10. Армирование подферменников
Насадки Нм10 - Нм15. Опалубочные чертежи
Насадка Нм10. Арматурный чертеж
Насадки Нм11, Нм16-4. Арматурные чертежи
Насадки Нм12, Нм16-1. Арматурные чертежи
Насадки Нм13, Нм17-4, Нм17-5. Арматурные чертежи
Насадки Нм14, Нм15, Нм17-1 - Нм17-3. Арматурные чертежи
Насадки Нм10 - Нм15. Армирование подферменников
Насадки Нм16-1, Нм16-4, Нм17-1 - Нм17-5. Опалубочные чертежи. Армирование подферменников
Насадки Нм16-1, Нм16-4, Нм17-1 - Нм17-5. Армирование переходных подферменников
Омоноличивание блоков фундамента
Расчет устоев. Нагрузки и усилия
Расчет устоев. Усилия в сваях (стойках)
Расчет устоев. Расчет фундаментов
Расчет свайных промежуточных опор
Расчет промежуточных опор на естественном основании. Усилия в стойках
Расчет промежуточных опор на естественном основании. Расчет фундаментов
Разработан: Ленгипротрансмост
Утверждён:28.03.1975 МПС (Ministry of Railroads П-8758)
Расположен в:Техническая документация Строительство Справочные документы Типовые строительные конструкции, изделия и узлы Общероссийский строительный каталог Строительные конструкции, изделия и узлы зданий и сооружений для всех видов строительства Конструкции и изделия сооружений и оборудования зданий Надземные сооружения Конструкции и сооружения транспорта Пролетные строения мостов, мосты и путепроводы
Типовой проект 501-260Типовой проект 501-260Типовой проект 501-260Типовой проект 501-260Типовой проект 501-260Типовой проект 501-260Типовой проект 501-260Типовой проект 501-260Типовой проект 501-260Типовой проект 501-260Типовой проект 501-260Типовой проект 501-260Типовой проект 501-260Типовой проект 501-260Типовой проект 501-260Типовой проект 501-260Типовой проект 501-260Типовой проект 501-260Типовой проект 501-260Типовой проект 501-260Типовой проект 501-260Типовой проект 501-260Типовой проект 501-260Типовой проект 501-260Типовой проект 501-260Типовой проект 501-260Типовой проект 501-260Типовой проект 501-260Типовой проект 501-260Типовой проект 501-260Типовой проект 501-260Типовой проект 501-260Типовой проект 501-260Типовой проект 501-260Типовой проект 501-260Типовой проект 501-260Типовой проект 501-260Типовой проект 501-260Типовой проект 501-260Типовой проект 501-260Типовой проект 501-260Типовой проект 501-260Типовой проект 501-260Типовой проект 501-260Типовой проект 501-260Типовой проект 501-260Типовой проект 501-260Типовой проект 501-260Типовой проект 501-260Типовой проект 501-260Типовой проект 501-260Типовой проект 501-260Типовой проект 501-260Типовой проект 501-260Типовой проект 501-260Типовой проект 501-260Типовой проект 501-260Типовой проект 501-260Типовой проект 501-260Типовой проект 501-260Типовой проект 501-260Типовой проект 501-260Типовой проект 501-260Типовой проект 501-260Типовой проект 501-260Типовой проект 501-260Типовой проект 501-260Типовой проект 501-260Типовой проект 501-260Типовой проект 501-260Типовой проект 501-260Типовой проект 501-260Типовой проект 501-260Типовой проект 501-260Типовой проект 501-260Типовой проект 501-260

© 2013 Ёшкин Кот :-) Карта сайта