Информационная система
«Ёшкин Кот»

Скачать базу одним архивом
Скачать обновления
История создания базы
Карта сайта

Скачать Типовой проект 121-014/1.2 АС.1-1. Архитектурно-строительные чертежи выше отм. 0.00

Дата актуализации: 10.08.2017

Типовой проект 121-014/1.2

АС.1-1. Архитектурно-строительные чертежи выше отм. 0.00

Обозначение: Типовой проект 121-014/1.2
Обозначение англ: 121-014/1.2
Статус:не определен законодательством
Название рус.:АС.1-1. Архитектурно-строительные чертежи выше отм. 0.00
Дата добавления в базу:01.09.2013
Дата актуализации:05.05.2017
Дата введения:30.11.1983
Оглавление:Общие данные
Схема расположения стен 1 этажа при санузлах россыпью. I тип планировочного решения - основной
Схема расположения стен 1 этажа при санузлах россыпью. II тип планировочного решения - электрощитовая или колясочная
Схема расположения стен 1 этажа при санузлах россыпью. III тип планировочного решения - со сквозным проходом
Схема расположения стен типового этажа при санузлах россыпью
Схема расположения стен 1 этажа при сантехкабинах. (I тип планировочного решения - основной)
Схема расположения стен 1 этажа при сантехкабинах. (II тип планировочного решения - электрощитовая или колясочная)
Схема расположения стен 1 этажа при сантехкабинах. III тип планировочного решения - со сквозным проходом
Схема расположения стен типового этажа при сантехкабинах
Схема расположения стен этажей. Элементы блокировки
Монтажные схемы фасадов между осями 1с - 8с
Монтажные схемы фасадов между осями 8с - 1с; Ас - Ес; Ес - Ас
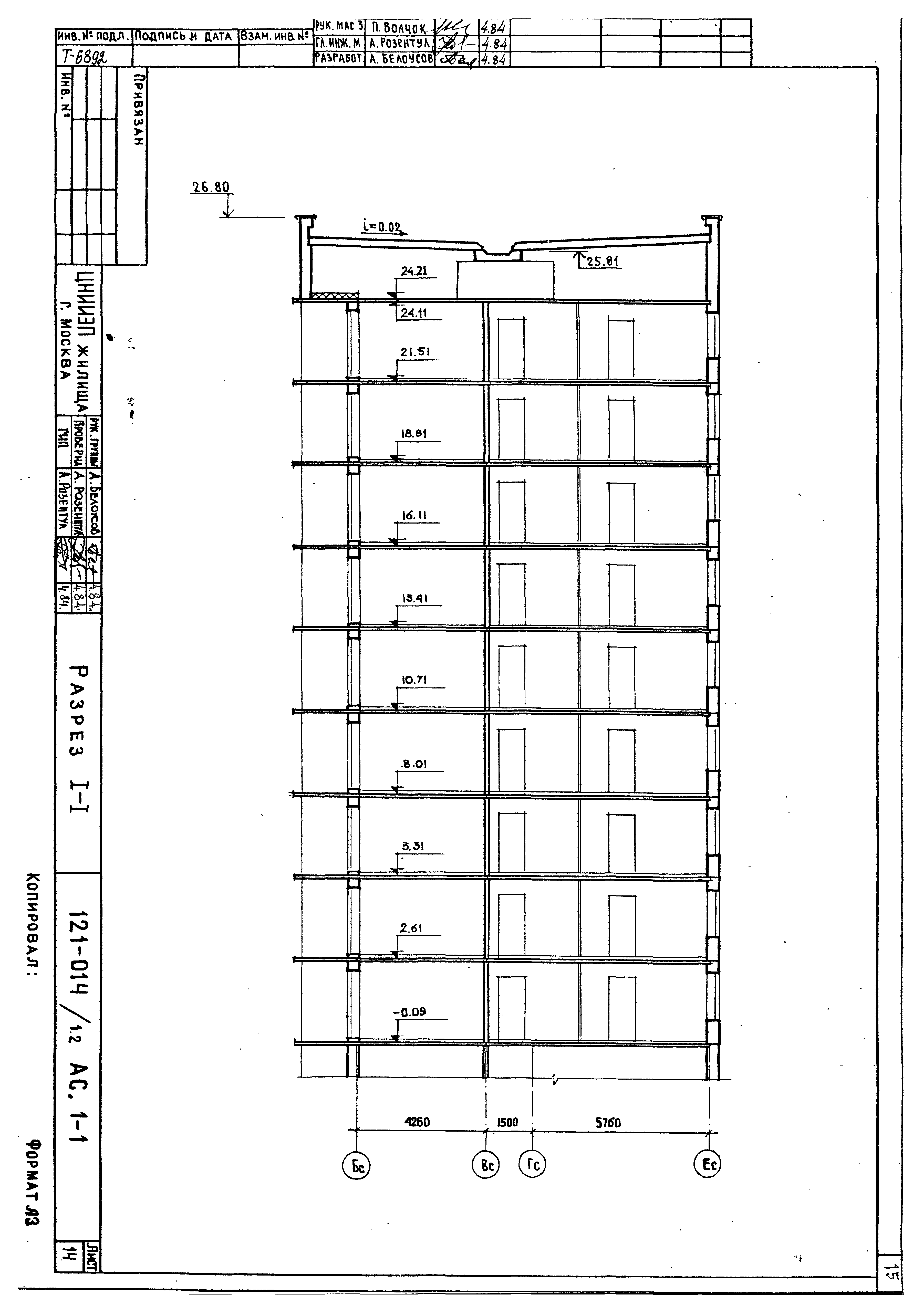
Разрез I-I
Разрез II-II по лестничной клетке
Схема расположения панелей перекрытия над типовым и 9 этажами
Схема расположения панелей перекрытия над типовыми этажами (вариант перекрытия из панелей толщиной 160 мм) и схема крыши
Схема расположения вентиляционных блоков и сантехнических поддонов
Схема расположения вентиляционных блоков и сантехнических кабин
Схема расположения панелей покрытия
Схема расположения элементов чердака
Разрезы IV-IV; V-V по теплому чердаку
Схема расположения элементов чердака перекрытия и покрытия. Элементы блокировки
Монтажное отделение лифта. Планы стен, перекрытия и покрытия
Планы лифтовой шахты и приямка
Схема развертки стен лифтовой шахты и приямка
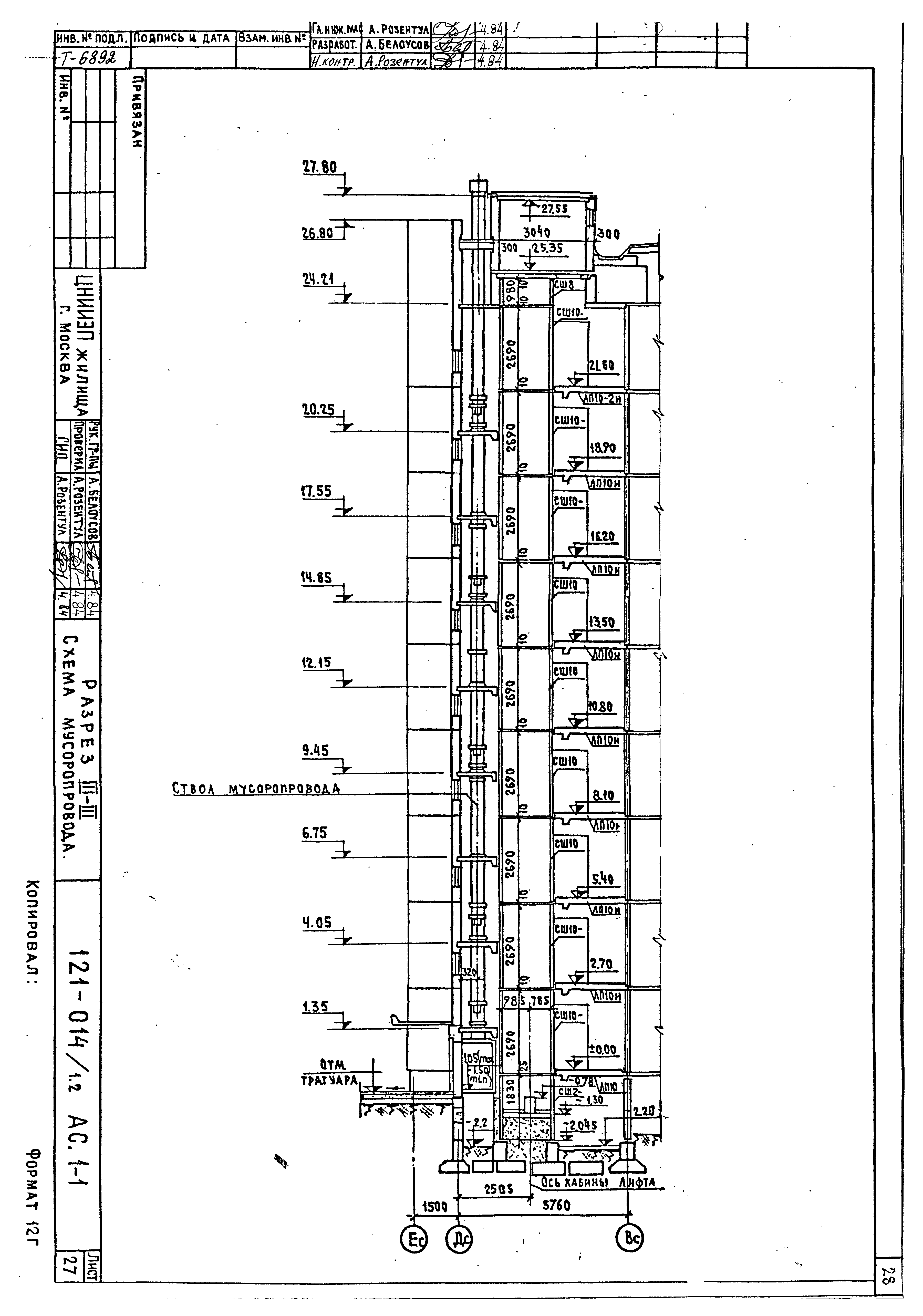
Разрез III-III. Схема мусоропровода
План для отделочных работ 1 этажа при санузлах россыпью. I тип планировочного решения 1 этажа - основной
План для отделочных работ 1 этажа при санузлах россыпью. II тип планировочного решения 1 этажа - электрощитовая или колясочная
План для отделочных работ 1 этажа при санузлах россыпью. III тип планировочного решения 1 этажа - со сквозным проходом
План для отделочных работ типового этажа при санузлах россыпью
План для отделочных работ 1 этажа при сантехкабинах. I тип планировочного решения 1 этажа - основной
План для отделочных работ 1 этажа при сантехкабинах. II тип планировочного решения 1 этажа - электрощитовая или колясочная
План для отделочных работ 1 этажа при сантехкабинах. III тип планировочного решения 1 этажа - со сквозным проходом
План для отделочных работ типового этажа при сантехкабинах
Сводная таблица площадей полов
Спецификация на железобетонные изделия выше отм. 0.000 на неизменяемую часть
Спецификация на железобетонные изделия выше отм. 0.000 на элементы блокировки
Спецификация на железобетонные изделия выше отм. 0.000 на неизменяемую часть
Спецификация на железобетонные изделия выше отм. 0.000 на элементы блокировки
Спецификация на железобетонные изделия выше отм. 0.000 на неизменяемую часть
Спецификация металлических изделий
Спецификация деревянных изделий
Элемент плана 1. Вход. Двойной тамбур. Узлы 1 - 3
Вход. Разрез 1-1. Узлы
Вход в мусорокамеру. Разрез 2-2. Узлы 6, 11, 12
Элемент плана 2. Вход. Одинарный тамбур
Вход. Разрез 1-1. Узлы
Разработан: ЦНИИЭП жилища
Утверждён:23.12.1985 Госгражданстрой (Gosgrazhdanstroy 429)
Расположен в:Техническая документация Строительство Справочные документы Типовые строительные конструкции, изделия и узлы Общероссийский строительный каталог Жилые здания для строительства в городах и поселках городского типа Обычные условия Жилые дома панельные Серия 121
Типовой проект 121-014/1.2Типовой проект 121-014/1.2Типовой проект 121-014/1.2Типовой проект 121-014/1.2Типовой проект 121-014/1.2Типовой проект 121-014/1.2Типовой проект 121-014/1.2Типовой проект 121-014/1.2Типовой проект 121-014/1.2Типовой проект 121-014/1.2Типовой проект 121-014/1.2Типовой проект 121-014/1.2Типовой проект 121-014/1.2Типовой проект 121-014/1.2Типовой проект 121-014/1.2Типовой проект 121-014/1.2Типовой проект 121-014/1.2Типовой проект 121-014/1.2Типовой проект 121-014/1.2Типовой проект 121-014/1.2Типовой проект 121-014/1.2Типовой проект 121-014/1.2Типовой проект 121-014/1.2Типовой проект 121-014/1.2Типовой проект 121-014/1.2Типовой проект 121-014/1.2Типовой проект 121-014/1.2Типовой проект 121-014/1.2Типовой проект 121-014/1.2Типовой проект 121-014/1.2Типовой проект 121-014/1.2Типовой проект 121-014/1.2Типовой проект 121-014/1.2Типовой проект 121-014/1.2Типовой проект 121-014/1.2Типовой проект 121-014/1.2Типовой проект 121-014/1.2Типовой проект 121-014/1.2Типовой проект 121-014/1.2Типовой проект 121-014/1.2Типовой проект 121-014/1.2Типовой проект 121-014/1.2Типовой проект 121-014/1.2Типовой проект 121-014/1.2Типовой проект 121-014/1.2Типовой проект 121-014/1.2Типовой проект 121-014/1.2Типовой проект 121-014/1.2Типовой проект 121-014/1.2Типовой проект 121-014/1.2Типовой проект 121-014/1.2Типовой проект 121-014/1.2Типовой проект 121-014/1.2Типовой проект 121-014/1.2Типовой проект 121-014/1.2Типовой проект 121-014/1.2Типовой проект 121-014/1.2Типовой проект 121-014/1.2Типовой проект 121-014/1.2Типовой проект 121-014/1.2Типовой проект 121-014/1.2Типовой проект 121-014/1.2Типовой проект 121-014/1.2

© 2013 Ёшкин Кот :-) Карта сайта