| ||||||||||||||||||||||||
Скачать Серия ПК-01-17 Выпуск VII. Подстропильные балки с пучковой арматурой для цехов с подвесным транспортным оборудованием. Рабочие чертежиДата актуализации: 10.08.2017
|
| Обозначение: | Серия ПК-01-17 |
| Обозначение англ: | Series ПК-01-17 |
| Статус: | действует |
| Название рус.: | Выпуск VII. Подстропильные балки с пучковой арматурой для цехов с подвесным транспортным оборудованием. Рабочие чертежи |
| Дата добавления в базу: | 01.09.2013 |
| Дата актуализации: | 05.05.2017 |
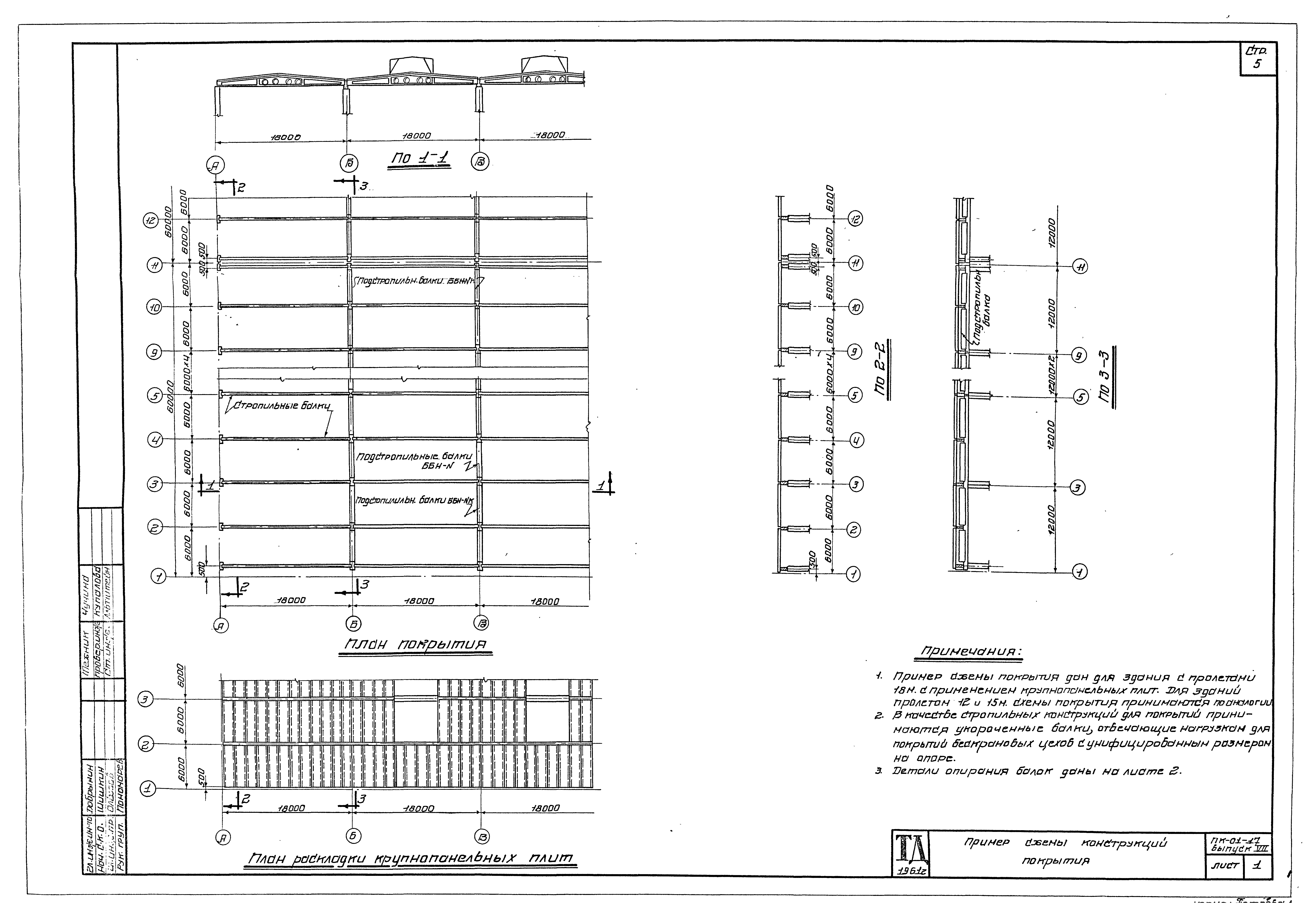
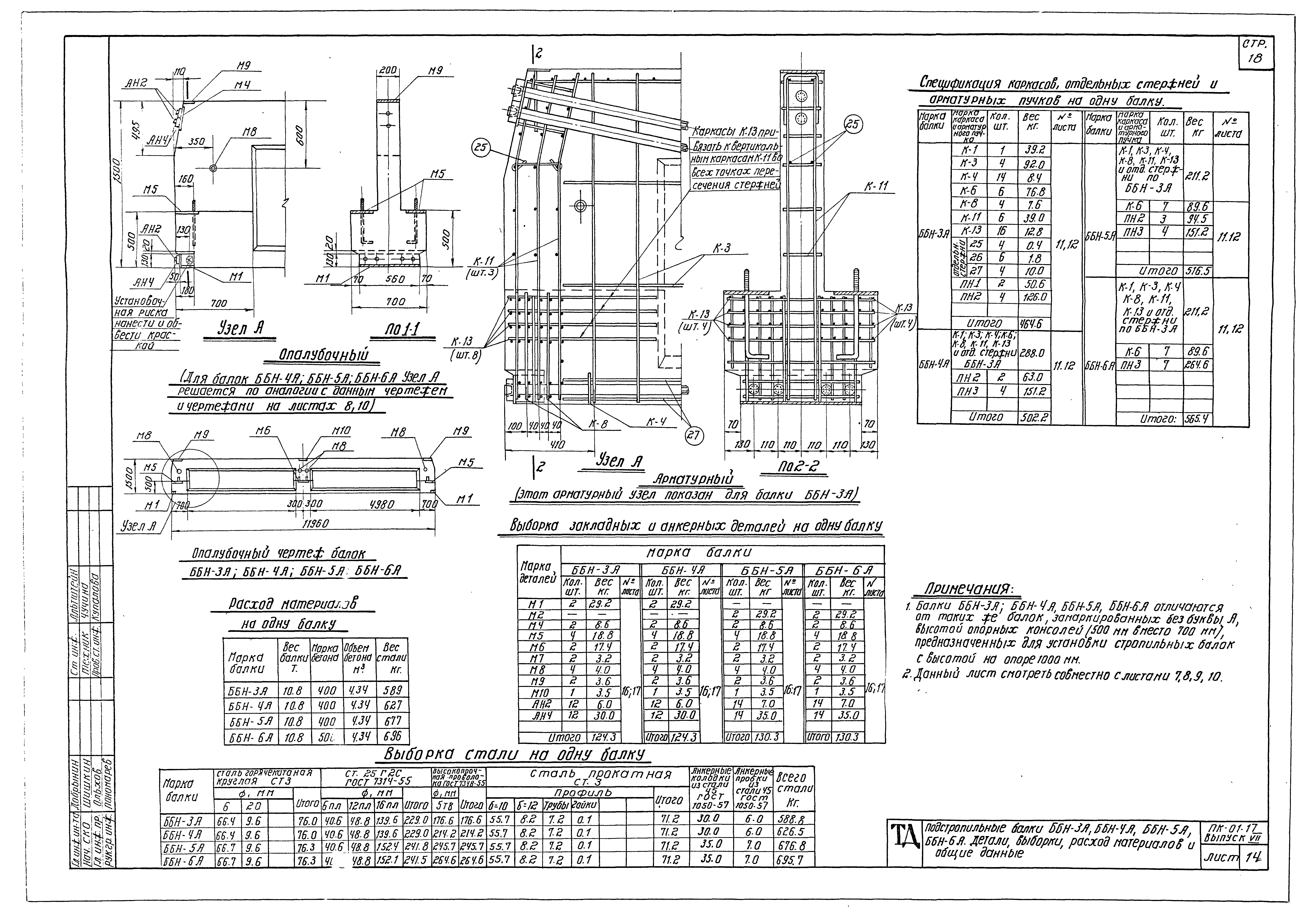
| Оглавление: | Пояснительная записка Пример схемы конструкций покрытия Узлы опирания стропильных и подстропильных балок Подстропильная балка ББН-1. Опалубочно-маркировочный чертеж, детали, выборки, расход материалов и общие данные Подстропильная балка ББН-1. Арматурный чертеж Подстропильная балка ББН-2. Опалубочно-маркировочный чертеж, детали, выборки, расход материалов и общие данные Подстропильная балка ББН-2. Арматурный чертеж Подстропильные балки ББН-3, ББН-4. Опалубочно-маркировочный чертеж, детали, выборки, расход материалов и общие данные Подстропильные балки ББН-3, ББН-4. Арматурный чертеж Подстропильные балки ББН-5, ББН-6. Опалубочно-маркировочный чертеж, детали, выборки, расход материалов и общие данные Подстропильные балки ББН-5, ББН-6. Арматурный чертеж Арматурные каркасы с К-1 по К-9. Спецификация Арматурные каркасы с К-10 по К-13. Арматурные пучки с ПН1 по ПН3. Спецификация Подстропильные балки ББН-1к, ББН-2к, ББН-3к, ББН-4к, ББН-5к, ББН-6к. Детали, выборки, расход материалов и общие данные Подстропильные балки ББН-3а, ББН-4а, ББН-5а, ББН-6а. Детали, выборки, расход материалов и общие данные Подстропильные балки ББН-3ак, ББН-4ак, ББН-5ак, ББН-6ак. Детали, выборки, расход материалов и общие данные Закладные детали с М-1 по М-6 Закладные детали с М-7 по М-11 и анкерные детали АН-2, АН-4 |
| Разработан: | Промстройпроект Госстроя СССР НИИЖБ АСиА СССР |
| Утверждён: | 08.03.1960 Госстрой СССР (Государственный комитет Совета Министров СССР по делам строительства) (USSR Gosstroy 134) |
| Расположен в: |






















