Информационная система
«Ёшкин Кот»

Скачать базу одним архивом
Скачать обновления
История создания базы
Карта сайта

Скачать Типовой проект 903-1-158 Альбом X. Силовое электрооборудование и электроосвещение котельной

Дата актуализации: 10.08.2017

Типовой проект 903-1-158

Альбом X. Силовое электрооборудование и электроосвещение котельной

Обозначение: Типовой проект 903-1-158
Обозначение англ: 903-1-158
Статус:заменен
Название рус.:Альбом X. Силовое электрооборудование и электроосвещение котельной
Дата добавления в базу:01.09.2013
Дата актуализации:05.05.2017
Дата введения:01.12.1987
Оглавление:Общие данные
Пояснительная записка
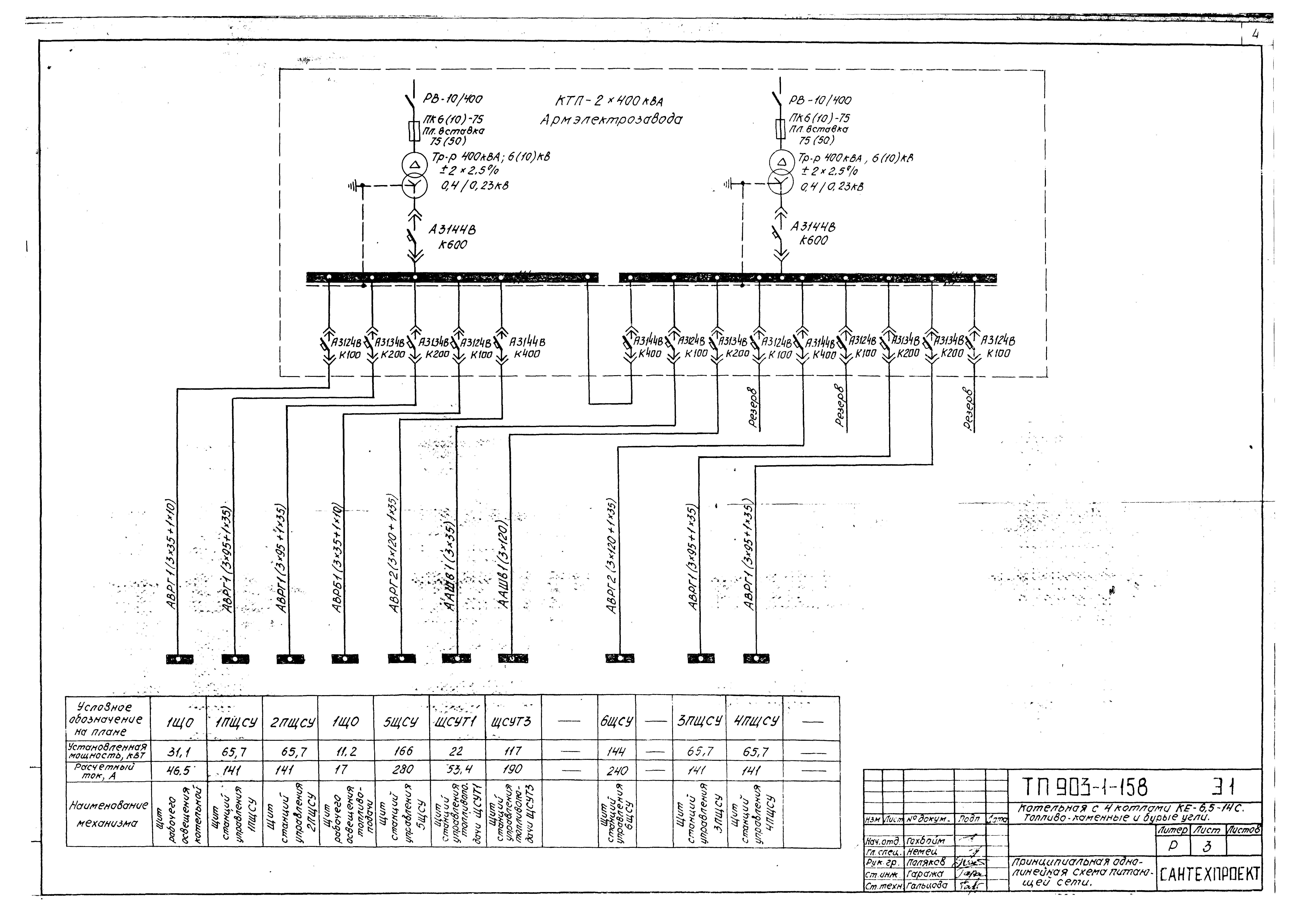
Принципиальная однолинейная схема питающей сети
КТП2х400 кВА Армэлектрозавода. Опросный лист для заказа
Щит станций управления 1ПЩСУ (2ПЩСУ - 4ПЩСУ). Схема принципиальная однолинейная
Щит станций управления 5ЩСУ. Схема принципиальная однолинейная
Щит станций управления 6ЩСУ. Схема принципиальная однолинейная
КТП2х400 кВА Армэлектрозавода. Установочный чертеж. Заземление
План силовой сети на отм. 0.000
План силовой сети на отм. 0.000; 3.300; 3.600; 7.200
Внутриплощадочные кабельные сети. Молниезащита
Кабельный журнал
План раскладки труб
План сети электроосвещения на отм. 0.000 в осях 3 - 13
План сети электроосвещения на отм. 3.600
План сети электроосвещения на отм. 0.000; 3.300; 6.600 в осях 1 - 2
План сети электроосвещения на отм. 7.200; 15.600
План сети электроосвещения площадок котла КЕ-6,5-14С и блоков КБУГВ-50, КБРПУ-50
План сети электроосвещения на отм. 10.800 и 11.400. Расчетная схема
План сети наружного электроосвещения
Слаботочные устройства. План на отм. 0.000; 6.600; 3.300; 7.200; 10.800; 15.600. Скелетные схемы
Ведомость электрооборудования кабельных изделий и материалов, поставляемых заказчиком
Уточненная ведомость изделий и материалов, поставляемых Генподрядчиком и электромонтажной организацией
Разработан: ГПИ Сантехпроект Госстроя СССР
Минтяжмаш СССР
Союзпроммеханизация
Утверждён:23.03.1979 ГПИ Сантехпроект (46)
Расположен в:Техническая документация Строительство Справочные документы Типовые строительные конструкции, изделия и узлы Общероссийский строительный каталог Промышленные предприятия, здания и сооружения Здания и сооружения санитарно-технические Теплоснабжение Котельные установки Закрытые системы теплоснабжения Топливо - каменные и бурые угли
Заменяет собой:
  • Типовой проект 903-1-107
Чем заменён:
Типовой проект 903-1-158Типовой проект 903-1-158Типовой проект 903-1-158Типовой проект 903-1-158Типовой проект 903-1-158Типовой проект 903-1-158Типовой проект 903-1-158Типовой проект 903-1-158Типовой проект 903-1-158Типовой проект 903-1-158Типовой проект 903-1-158Типовой проект 903-1-158Типовой проект 903-1-158Типовой проект 903-1-158Типовой проект 903-1-158Типовой проект 903-1-158Типовой проект 903-1-158Типовой проект 903-1-158Типовой проект 903-1-158Типовой проект 903-1-158Типовой проект 903-1-158Типовой проект 903-1-158Типовой проект 903-1-158Типовой проект 903-1-158Типовой проект 903-1-158Типовой проект 903-1-158Типовой проект 903-1-158Типовой проект 903-1-158Типовой проект 903-1-158Типовой проект 903-1-158Типовой проект 903-1-158Типовой проект 903-1-158Типовой проект 903-1-158Типовой проект 903-1-158Типовой проект 903-1-158Типовой проект 903-1-158Типовой проект 903-1-158Типовой проект 903-1-158Типовой проект 903-1-158Типовой проект 903-1-158Типовой проект 903-1-158

© 2013 Ёшкин Кот :-) Карта сайта