Скачать Типовой проект 903-1-158 Альбом I. Архитектурно-строительные решения, конструкции железобетонные и металлическиеДата актуализации: 10.08.2017 Типовой проект 903-1-158
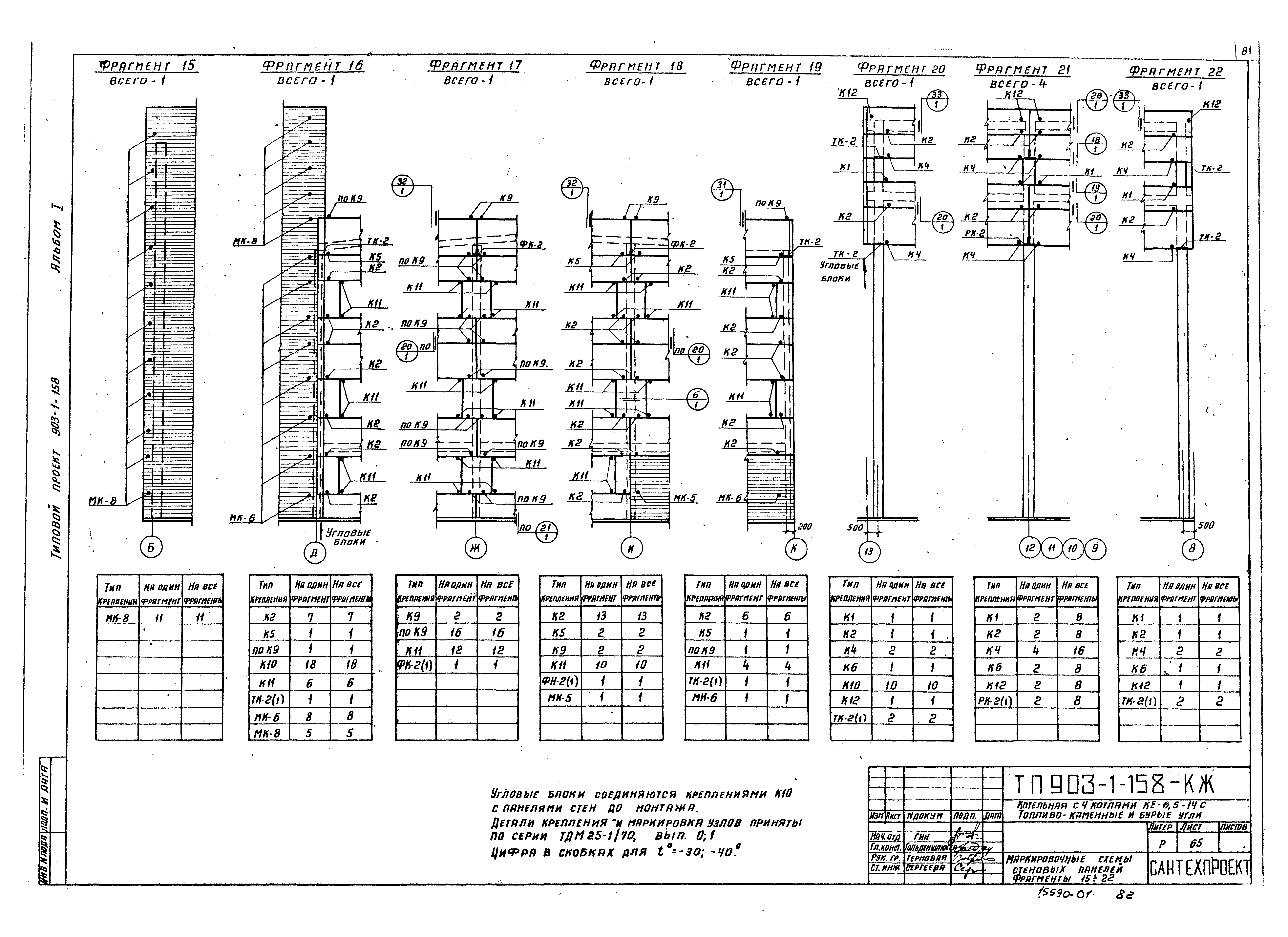
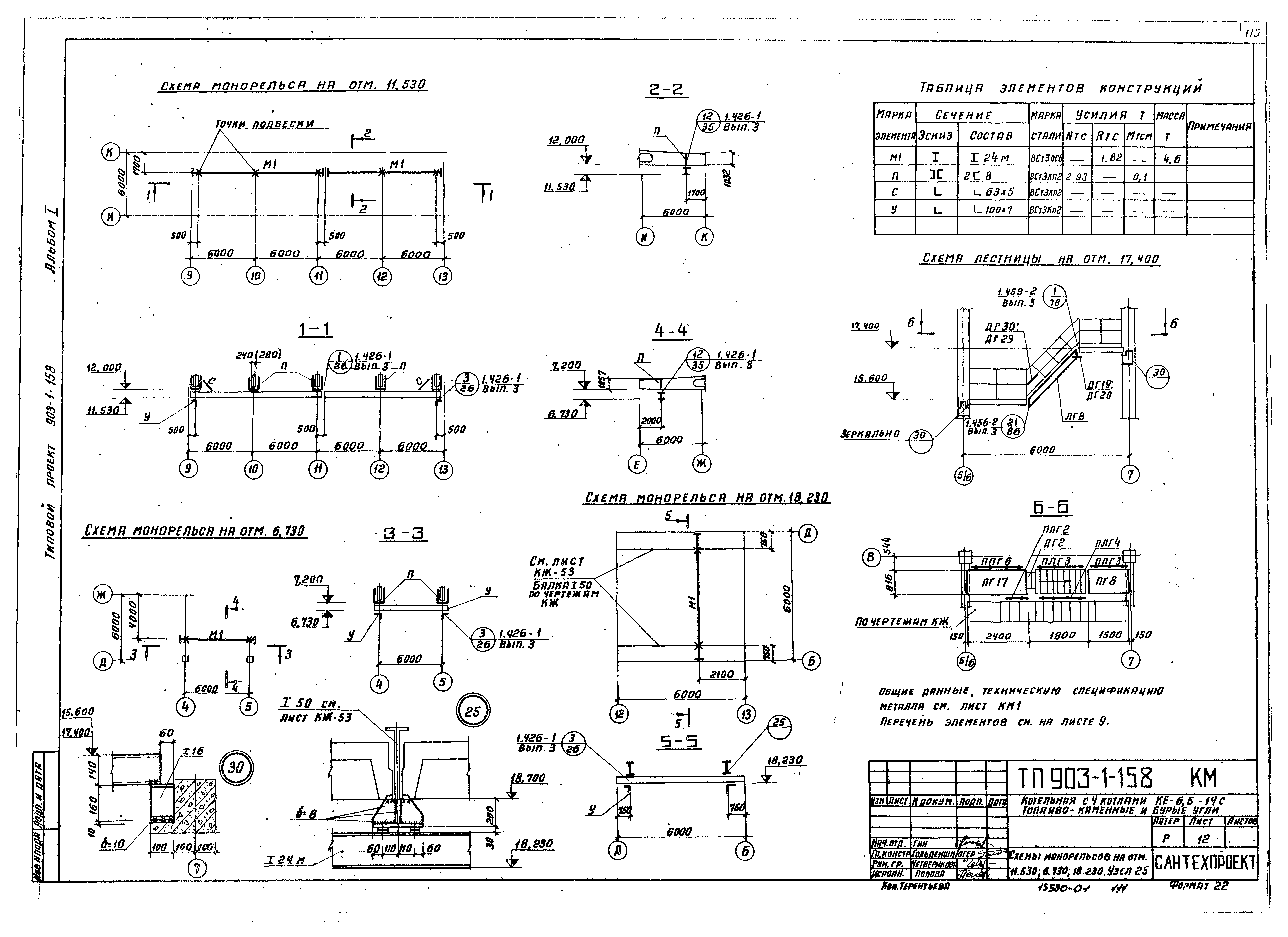
Альбом I. Архитектурно-строительные решения, конструкции железобетонные и металлическиеОбозначение: | Типовой проект 903-1-158 | Обозначение англ: | 903-1-158 | Статус: | заменен | Название рус.: | Альбом I. Архитектурно-строительные решения, конструкции железобетонные и металлические | Дата добавления в базу: | 01.09.2013 | Дата актуализации: | 05.05.2017 | Дата введения: | 01.12.1987 | Оглавление: | Содержание альбома Пояснительная записка Схема генерального плана Архитектурные решения Общие данные План на отм. 0.000. Спецификации План на отм. 3.300 и 3.600. Спецификации Фрагменты планов 1 и 2. План на отм. 6.600 Фрагмент плана 3. Планы на отм. 7.200; 11.400; 15.600 и 19.200 Разрезы 1-1 - 3-3. Узлы 1 и 2 Разрез 4-4, узел 3 Фасад 1 - 13. Схемы заполнения оконных проемов. Спецификация Фасады К - А; Б - К; 13 - 1 Планы полов Железобетонные конструкции Общие данные Маркировочная схема фундаментов и фундаментных балок. Фрагменты 1, 1а Фрагменты 2, 3. Узел 8 Узлы 1 - 7 Узлы 9 - 10 Монолитные ж/б фундаменты Фм1, 1а, 1б, 1в, Фм2, Фм4, 4а, 4б. Схемы армирования Монолитные ж/б фундаменты Фм3, Фм3а, Фм5, Фм5а Монолитные ж/б фундаменты Фм6, Фм6а, Фм7, Фм7а, Фм8 Монолитные ж/б фундаменты Фм10, Фм13 Монолитные ж/б фундаменты Фм11, Фм12 Монолитный ж/б фундамент Фм9 Маркировочный план подземных конструкций в осях 3 - 9 Маркировочный план подземных конструкций в осях 9 - 13 Узел 1. Сечения 1-1 - 7-7 Фундамент под котел ФКм-1. Маркировочный план фундамента ФКм-1 на отм. 3.600. Разрезы 1-1 Фундамент под котел ФКм-1. Схема нагрузок. Маркировочная схема опор и колонн Фундамент под котел ФКм-1. Опалубка и армирование ОПМ1, ОПМ2, КМ1 Фундамент под котел ФКм-1. Опалубка и армирование КМ2, КМ2а Фундамент под котел ФКм-1. Опалубка и армирование БМ1 и БМ1а Фундамент под котел ФКм-1. Опалубка и армирование БМ2 - БМ4 Фундамент под котел ФКм-1. Опалубка и армирование Пм1 Фундамент под котел ФКм-1. Ведомость стержней. Выборка стали Бм5 (армирование) Маркировочный план КТП2х400; КВА и ЩСУ. Разрез 1-1 КТП2х400 КВА и ЩСУ. Сечения 2-2 - 10-10 КТП2х400 КВА и ЩСУ. Балки Бм6 - Бм9 Канал шлакозолоудаления БТм1 Канал шлакозолоудаления БТм1. Схема армирования Маркировочная схема колонн, ригелей и связей Маркировочная схема элементов каркаса. Разрезы 1-1 - 4-4. Маркировочные элементы связей Маркировочная схема элементов каркаса. Спецификация Маркировочная схема элементов каркаса в осях "1 - 2" Разрезы 1-1 - Б-Б каркаса в осях "1 - 2" Маркировочные планы каркаса в осях "5/6 - 7" и "А - Г" Маркировочные схемы каркаса в осях "5/6 - 7" и "А - Г" Маркировочные схемы фундаментов под оборудование на отм. 3.600 Маркировочная схема плит перекрытия на отм. 3.600. Армирование Пм1, Пм2 Маркировочная схема плит перекрытия на отм. 3.600. Армирование Пм3, Пм4 Маркировочная схема плит перекрытия на отм. 3.600. Армирование Пм5, Пм6 Фундамент под оборудование ФОм1, ФОМ1а, ФОм2 Маркировочная схема закладных деталей и ограждений на отм. 7.200 Маркировочная схема перекрытия на отм. 7.200. Армирование Пм7 Монолитная плита Пм8. Армирование Блоки монолитные Бм10 - Бм15. Схемы армирования Маркировочная схема закладных деталей на отм. 15.600 Маркировочные схемы перекрытия и покрытия на отм. 15.600 Армирование монолитных плит Пм9, Пм10 на отм. 15.600 Маркировочные схемы плит перекрытия и покрытия в осях "1 - 2" Маркировочные схемы плит перекрытия и покрытия в осях "5/6 - 7" и "А - В". Маркировочные планы накладных проступей Бункер шлакозолоудаления БУм1 Бункер шлакозолоудаления БУм1. Схема армирования Бункер шлакозолоудаления БУм1. Узлы и детали Маркировочная схема лестницы в осях "5/6 - 7" по оси "А" Маркировочная схема лестницы в осях "Е - Ж" по оси "1" Маркировочные схемы стеновых панелей Маркировочные схемы стеновых панелей. Фрагменты 1 - 7 Маркировочные схемы стеновых панелей. Фрагменты 8 - 14 Маркировочные схемы стеновых панелей. Фрагменты 15 - 22 Маркировочная схема стеновых панелей по оси В. Маркировочная схема стальных стоек. Фрагменты 1 - 4 Маркировочная схема стеновых панелей по осям Е, А - Б, Е - Г. Узлы 1 - 3 Узлы 1 - 5 Спецификация стеновых панелей и соединительных элементов Маркировочные схемы стеновых панелей и перегородок в осях 1 - 2 Маркировочные схемы стеновых панелей в осях "5/6 - 7" Маркировочная схема перегородок в осях "5 - 8" и "К" Узлы 1, 2. Сечения 3-3 - 4-4 Маркировочная схема перегородок на отм. 0.000. Спецификация План газоходов на отм. 4.000. Разрезы 1-1 - 5-5. Узлы 1, 2 Маркировочные схемы фундаментов и колонн газоходов. Сечение 1-1 Фундаменты газоходов ФГм1, ФГм2, ФГм6 Фундаменты ФГм3 - ФГм5. Опалубка и армирование Маркировочные схемы плит перекрытия и покрытия газоходов Армирование монолитных участков Ум4 - Ум15. Узел 1 Маркировочные схемы лотков, плит покрытия и опор под трубопроводы. Продувочный колодец Приямок на отм. - 2.500. Опалубка и армирование Металлические конструкции Общие данные Техническая спецификация металла Схема балок перекрытия на отм. 3.600 Разрезы 2-2 - 12-12 Схема балок перекрытия на отм. 7.200. Схема балок на отм. 11.900 Схема балок перекрытия на отм. 15.600 Схема балок площадки и ограждений на отм. 10.000. Узлы 14 - 18 Схема балок и ограждений на отм. 3.600. Схема лестницы на отм. 7.150 Схема стоек фахверка на отм. 0.000. Схема оконных переплетов в осях 13 - 8 Схема стоек и балок на отм. 4.000; 11.400. Узлы 19, 20 Схема монорельсов на отм. 11.530; 6.730; 18.230. Узел 25 Схема наружной лестницы на отм. 15.550, стремянки на отм. 10.485; 14.385 Газоходы. Схемы балок, площадок и ограждений. Узлы 21 - 24 Узлы 1 - 5 Узлы 6 - 8; 26 - 28 Узлы 9 - 13, 30 | Разработан: | ГПИ Сантехпроект Госстроя СССР Минтяжмаш СССР Союзпроммеханизация
| Утверждён: | 23.03.1979 ГПИ Сантехпроект (46)
| Расположен в: |
| Заменяет собой: | | Чем заменён: | |
                                                                                                                 
|