Скачать Типовой проект 903-1-289.91 Альбом 17. Воздуховоды и газоходы котлоагрегата. Топливо - бурые угли. Конструкторская документацияДата актуализации: 10.08.2017 Типовой проект 903-1-289.91
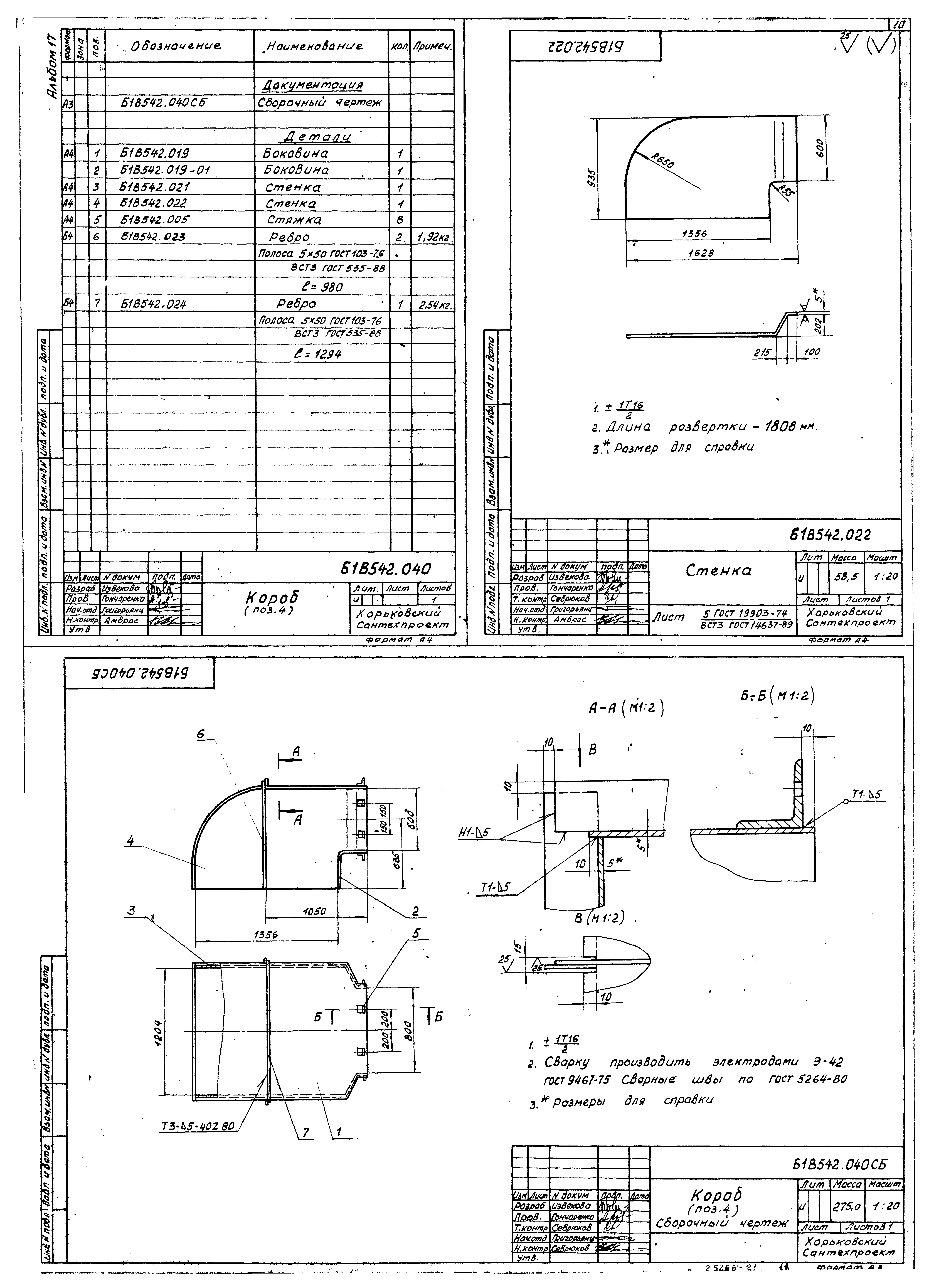
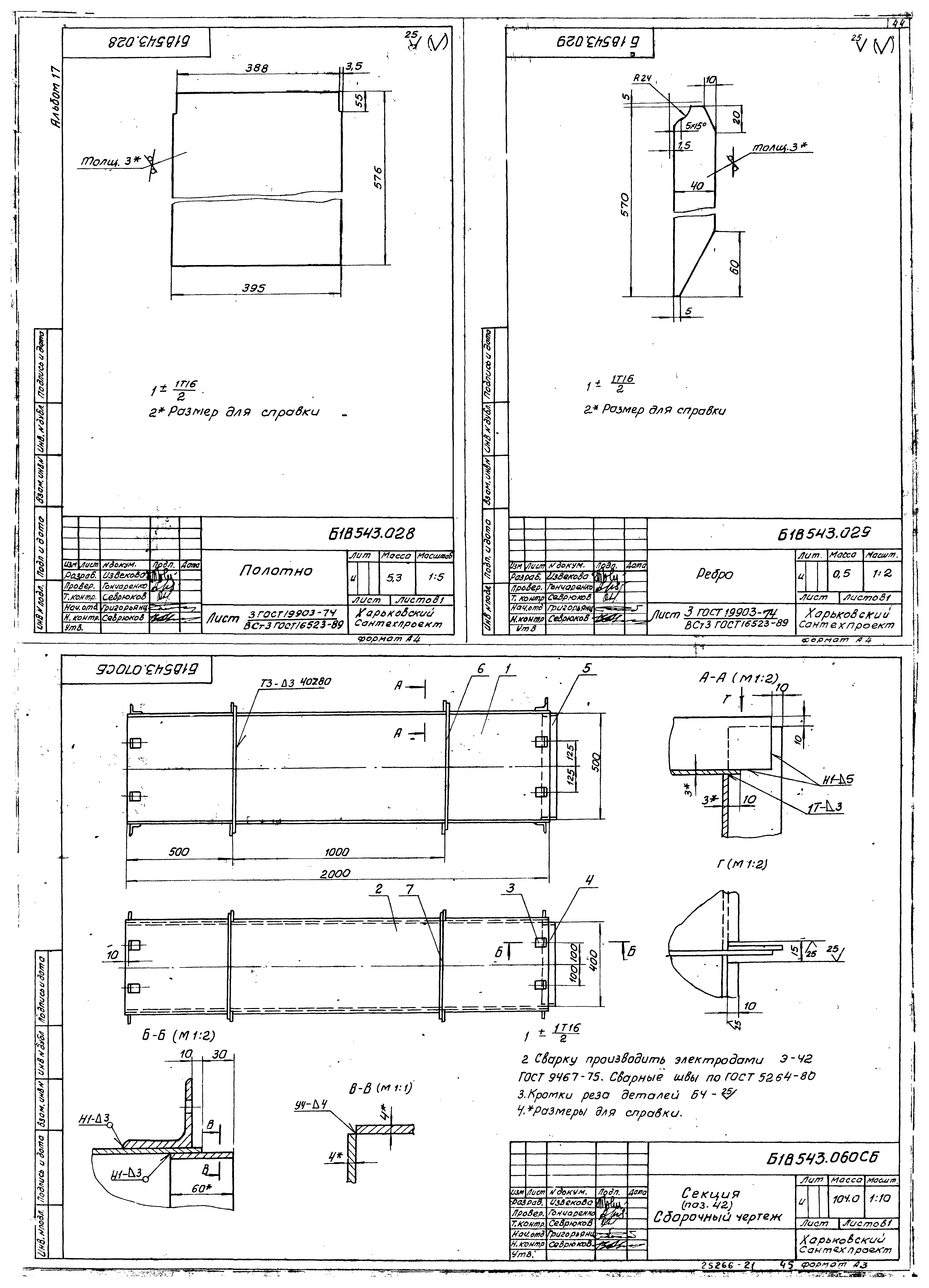
Альбом 17. Воздуховоды и газоходы котлоагрегата. Топливо - бурые угли. Конструкторская документацияОбозначение: | Типовой проект 903-1-289.91 | Обозначение англ: | 903-1-289.91 | Статус: | не определен законодательством | Название рус.: | Альбом 17. Воздуховоды и газоходы котлоагрегата. Топливо - бурые угли. Конструкторская документация | Дата добавления в базу: | 01.09.2013 | Дата актуализации: | 05.05.2017 | Дата введения: | 22.08.1991 | Оглавление: | Содержание Б1В542.010 Переход (поз. 1) Б1В542.010СБ Переход (поз. 1). Сборочный чертеж Б1В542.001 Стенка Б1В542.002 Стенка Б1В542.003 Боковина Б1В542.004 Боковина Б1В542.005 Стяжка Б1В542.020 Отвод (поз. 2) Б1В542.020СБ Отвод (поз. 2). Сборочный чертеж Б1В542.008 Стенка Б1В542.009 Боковина Б1В542.030 Отвод (поз. 3) Б1В542.030СБ Отвод (поз. 3). Сборочный чертеж Б1В542.013 Стенка Б1В542.014 Боковина Б1В542.019 Боковина Б1В542.021 Стенка Б1В542.022 Стенка Б1В542.040 Короб (поз. 4) Б1В542.040СБ Короб (поз. 4). Сборочный чертеж Б1В542.050 Отвод (поз. 5) Б1В542.050 Отвод (поз. 5). Сборочный чертеж Б1В542.025 Боковина Б1В542.026 Ребро Б1В542.060СБ Колено (поз. 6) Б1В542.060СБ Колено (поз. 6). Сборочный чертеж Б1В542.029 Стенка Б1В542.032 Ребро Б1В542.031 Боковина Б1В542.070 Переход (поз. 7) Б1В542.035 Стенка Б1В542.036 Боковина Б1В542.070СБ Переход (поз. 7). Сборочный чертеж Б1В542.080 Колено (поз. 8) Б1В542.080СБ Колено (поз. 8). Сборочный чертеж Б1В542.039 Боковина Б1В542.090 Отвод (поз. 9) Б1В542.090СБ Отвод (поз. 9). Сборочный чертеж Б1В542.100 Диффузор (поз. 10) Б1В542.100СБ Диффузор (поз. 10). Сборочный чертеж Б1В542.043 Боковина Б1В542.044 Стенка Б1В542.110 Конфузор (поз. 11) Б1В542.110СБ Конфузор (поз. 11). Сборочный чертеж Б1В542.048 Боковина Б1В542.049 Боковина Б1В542.051 Стенка Б1В542.052 Стенка Б1В542.120 Колено (поз. 12) Б1В542.120СБ Колено (поз. 12). Сборочный чертеж Б1В542.053 Ребро Б1В542.059 Стенка Б1В542.061 Боковина Б1В542.130СБ Отвод (поз. 13). Сборочный чертеж Б1В542.130 Отвод (поз. 13) Б1В542.140 Переход (поз. 14) Б1В542.140СБ Переход (поз. 14). Сборочный чертеж Б1В542.066 Стенка Б1В542.067 Боковина Б1В542.150СБ Переход (поз. 15). Сборочный чертеж Б1В542.160СБ Фланец. Сборочный чертеж Б1В542.160 Фланец Б1В542.150 Переход (поз. 15) Б1В542.073 Прокладка Б1В542.071 Стенка Б1В542.072 Боковина Б1В542.076 Стенка Б1В542.180СБ Фланец. Сборочный чертеж Б1В542.170 Переход (поз. 16) Б1В542.170СБ Переход (поз. 16). Сборочный чертеж Б1В542.180 Фланец Б1В542.190 Переход (поз. 17) Б1В542.190СБ Переход (поз. 17). Сборочный чертеж Б1В542.077 Боковина Б1В542.081 Стенка Б1В542.082 Боковина Б1В542.200СБ Секция (поз. 18). Сборочный чертеж Б1В542.200 Секция (поз. 18) Б1В542.210 Опора кармана (поз. 19) Б1В542.210СБ Опора кармана (поз. 19). Сборочный чертеж Б1В542.089 Подушка Б1В542.091 Угольник Б1В542.095 Кронштейн Б1В542.102 Пружина Б1В542.220 Подвеска (поз. 20 - 24, 71) Б1В542.230 Блок пружины Б1В542.270СБ Тяга подвески. Сборочный чертеж Б1В542.220СБ Подвеска (поз. 20 - 24, 71). Сборочный чертеж Б1В542.230СБ Блок пружины. Сборочный чертеж Б1В542.093 Проушина Б1В542.094 Ушко Б1В542.240СБ Траверса. Сборочный чертеж Б1В542.103 Траверса Б1В542.104 Тяга Б1В542.250СБ Стакан. Сборочный чертеж Б1В542.240 Траверса Б1В542.250 Стакан Б1В542.260СБ Тяга блока. Сборочный чертеж Б1В542.105 Основание Б1В542.260 Тяга блока Б1В542.270 Тяга подвески Б1В542.280СБ Опора (оз. 25, 26, 67, 70). Сборочный чертеж Б1В542.107 Тяга Б1В542.280 Опора (оз. 25, 26, 67, 70) Б1В543.010 Короб всасывающий (поз. 40) Б1В543.010СБ Короб всасывающий (поз. 40). Сборочный чертеж Б1В543.020СБ Фланец. Сборочный чертеж Б1В543.001 Стенка Б1В543.002 Боковина Б1В543.020 Фланец Б1В543.050СБ Заслонка. Сборочный чертеж Б1В543.030СБ Короб всасывающий (поз. 41). Сборочный чертеж Б1В543.040 Корпус Б1В543.003 Стенка Б1В543.030 Короб всасывающий (поз. 41) Б1В543.040СБ Корпус. Сборочный чертеж Б1В543.017 Стенка Б1В543.013 Кольцо Б1В543.014 Бобышка Б1В543.015 Бобышка Б1В543.026 Ось Б1В543.027 Ось Б1В543.072 Стенка Б1В543.050 Заслонка Б1В543.060СБ Секция (поз. 42). Сборочный чертеж Б1В543.028 Полотно Б1В543.029 Ребро Б1В543.060 Секция (поз. 42) Б1В543.038 Стенка Б1В543.070 Переход (поз. 43) Б1В543.080 Фланец Б1В543.080СБ Фланец. Сборочный чертеж Б1В543.070СБ Переход (поз. 43). Сборочный чертеж Б1В543.039 Стенка Б1В543.041 Боковина Б1В543.042 Боковина Б1В543.043 Прокладка Б1В543.090 Переход (поз. 44) Б1В543.100 Фланец Б1В543.090СБ Переход (поз. 44). Сборочный чертеж Б1В543.100СБ Фланец. Сборочный чертеж Б1В543.046 Стенка Б1В543.047 Боковина Б1В543.110 Отвод (поз. 45) Б1В543.053 Стенка Б1В543.054 Боковина Б1В543.110СБ Отвод (поз. 45). Сборочный чертеж Б1В543.120 Переход (поз. 46) Б1В543.120СБ Переход (поз. 46). Сборочный чертеж Б1В543.130 Фланец Б1В543.057 Стенка Б1В543.058 Боковина Б1В543.130СБ Фланец. Сборочный чертеж Б1В543.140 Переход (поз. 47) Б1В543.062 Стенка Б1В543.063 Боковина Б1В543.140СБ Переход (поз. 47). Сборочный чертеж Б1В543.150СБ Секция (поз. 48). Сборочный чертеж Б1В543.160СБ Переход (поз. 49). Сборочный чертеж Б1В543.150 Секция (поз. 48) Б1В543.073 Боковина Б1В543.160 Отвод (поз. 49) Б1В543.170 Секция (поз. 50) Б1В543.180 Отвод (поз. 51) Б1В543.170СБ Секция (поз. 50). Сборочный чертеж Б1В543.190 Короб (поз. 52) Б1В543.081 Боковина Б1В543.180СБ Отвод (поз. 51). Сборочный чертеж Б1В543.084 Стенка Б1В543.085 Стенка Б1В543.190СБ Короб (поз. 52). Сборочный чертеж Б1В543.086 Боковина Б1В543.087 Боковина Б1В543.089 Ребро Б1В543.093 Ребро Б1В543.200 Короб (поз. 53) Б1В543.200СБ Короб (поз. 53). Сборочный чертеж Б1В543.091 Стенка Б1В543.092 Боковина Б1В543.210СБ Секция (поз. 54). Сборочный чертеж Б1В543.210 Секция (поз. 54) Б1В543.220 Секция (поз. 55) Б1В543.220СБ Секция (поз. 55). Сборочный чертеж Б1В543.230 Секция (поз. 56) Б1В543.230СБ Секция (поз. 56). Сборочный чертеж Б1В543.240 Секция (поз. 57) Б1В543.240СБ Секция (поз. 57). Сборочный чертеж Б1В543.250СБ Секция (поз. 58). Сборочный чертеж Б1В543.260СБ Фланец. Сборочный чертеж Б1В543.121 Стенка Б1В543.250 Секция (поз. 58) Б1В543.260 Фланец Б1В543.270 Секция (поз. 59) Б1В543.270СБ Секция (поз. 59). Сборочный чертеж Б1В543.156 Косынка Б1В543.290 Отвод (поз. 60) Б1В543.290СБ Отвод (поз. 60). Сборочный чертеж Б1В543.131 Стенка Б1В543.132 Боковина Б1В543.300СБ Отвод (поз. 61). Сборочный чертеж Б1В543.300 Отвод (поз. 61) Б1В543.310 Секция (поз. 62) Б1В543.310СБ Секция (поз. 62). Сборочный чертеж Б1В543.330СБ Отвод (поз. 63). Сборочный чертеж Б1В543.320СБ Фланец. Сборочный чертеж Б1В543.320 Фланец Б1В543.330 Отвод (поз. 63) Б1В543.142 Стенка Б1В543.143 Боковина Б1В543.340 Короб (поз. 64) Б1В543.350 Фланец Б1В543.350СБ Фланец. Сборочный чертеж Б1В543.144 Стенка Б1В543.340СБ Короб (поз. 64). Сборочный чертеж Б1В543.145 Боковина Б1В543.162 Фланец Б1В543.360СБ Шибер (поз. 65). Сборочный чертеж Б1В543.360 Шибер (поз. 65) Б1В543.153 Рамка Б1В543.154 Полотно Б1В543.370СБ Опора (поз. 66). Сборочный чертеж Б1В543.370 Опора (поз. 66) Б1В543.380СБ Опора под карман (поз. 67). Сборочный чертеж Б1В543.158 Подушка Б1В543.390СБ Подвеска (поз. 69, 70, 73). Сборочный чертеж Б1В543.390 Подвеска (поз. 69, 70, 73) Б1В543.159 Угольник Б1В543.380 Опора под карман (поз. 67) | Разработан: | Харьковский Сантехпроект
| Утверждён: | 22.08.1991 Сантехниипроект (25)
| Издан: | АПП ЦИТП (1992 г. )
| Расположен в: |
| Заменяет собой: | |
                                                                          
|