Информационная система
«Ёшкин Кот»

Скачать базу одним архивом
Скачать обновления
История создания базы
Карта сайта

Скачать Типовой проект 903-1-289.91 Альбом 13. Часть 1. Строительные изделия

Дата актуализации: 10.08.2017

Типовой проект 903-1-289.91

Альбом 13. Часть 1. Строительные изделия

Обозначение: Типовой проект 903-1-289.91
Обозначение англ: 903-1-289.91
Статус:не определен законодательством
Название рус.:Альбом 13. Часть 1. Строительные изделия
Дата добавления в базу:01.09.2013
Дата актуализации:05.05.2017
Дата введения:22.08.1991
Оглавление:903-1-289.91.КЖ.И Содержание
903-1-289.91.КЖ.И-ТУ Технические условия
903-1-289.91.КЖ.И-1 Колонна К1-1
903-1-289.91.КЖ.И-1-01 Колонна К1-1-1
903-1-289.91.КЖ.И-1-02 Колонна К1-1-2
903-1-289.91.КЖ.И-1-03 Колонна К1-1-3
903-1-289.91.КЖ.И-1-04 Колонна К1-1-4
903-1-289.91.КЖ.И-1-05 Колонна К1-1-5
903-1-289.91.КЖ.И-1-06 Колонна К1-1-6
903-1-289.91.КЖ.И-2 Колонна К1-2-1
903-1-289.91.КЖ.И-2-01 Колонна К1-2-2
903-1-289.91.КЖ.И-2-02 Колонна К1-2-3
903-1-289.91.КЖ.И-2-03 Колонна К1-2-4
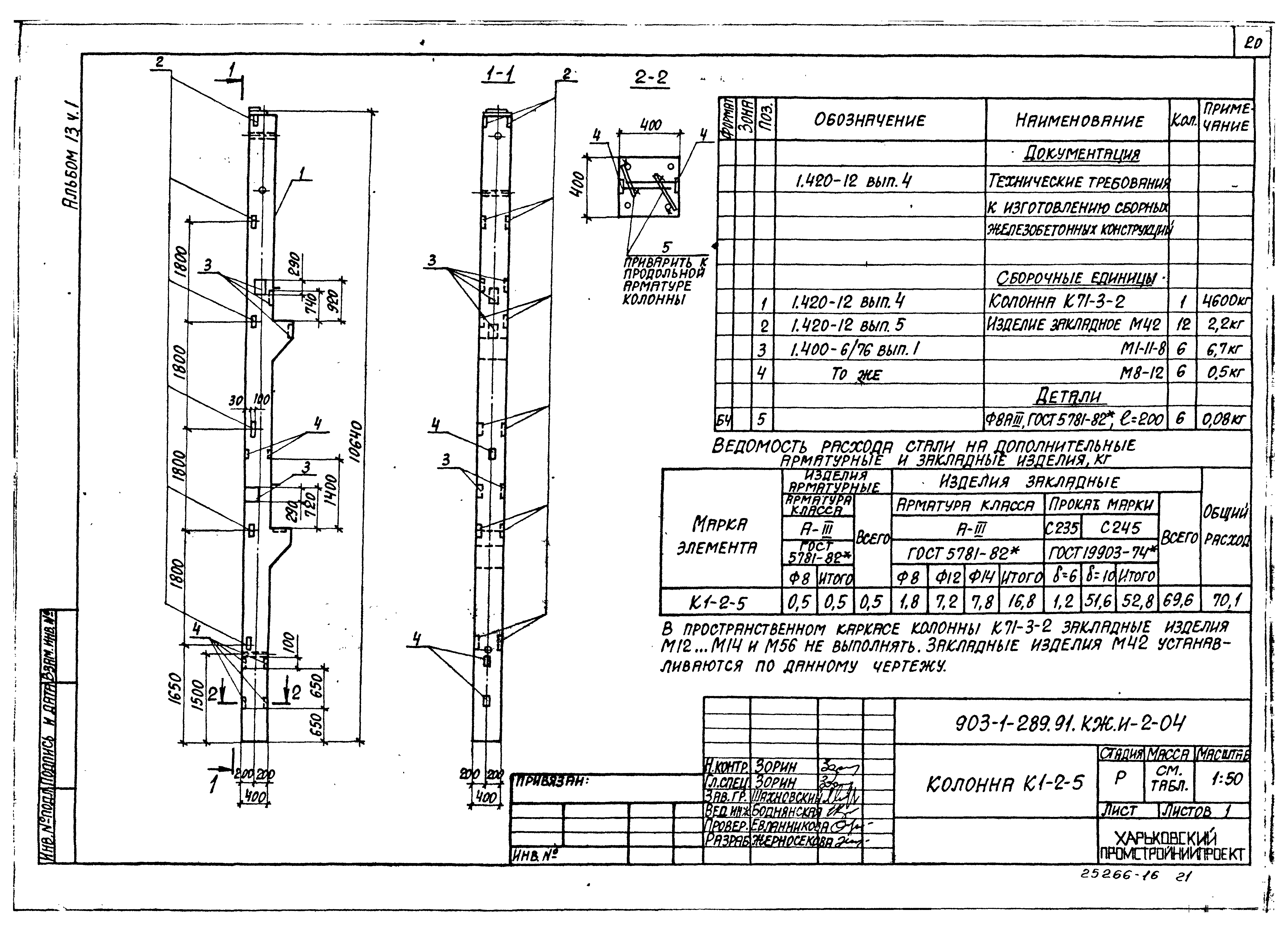
903-1-289.91.КЖ.И-2-04 Колонна К1-2-5
903-1-289.91.КЖ.И-2-05 Колонна К1-2-6
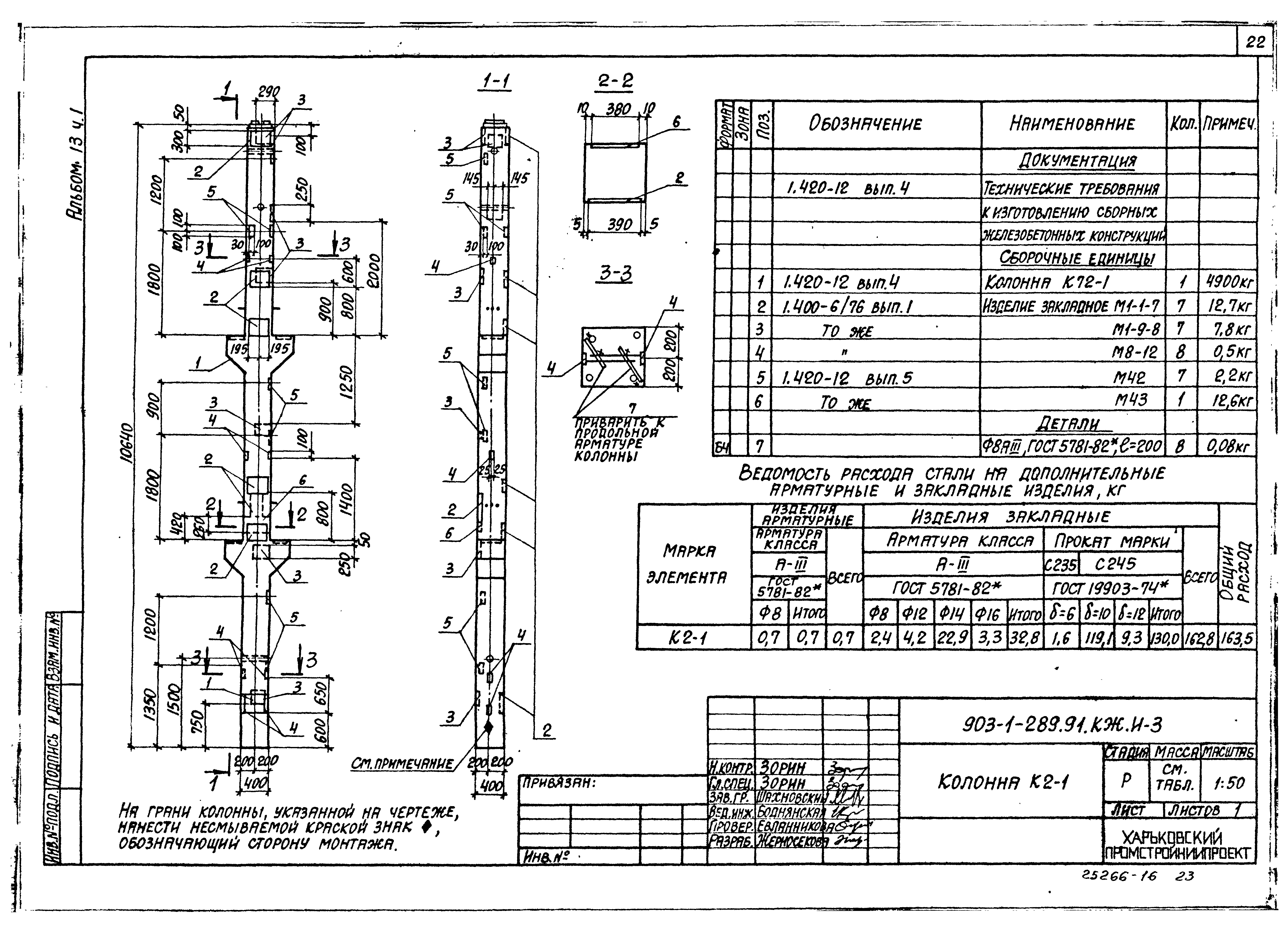
903-1-289.91.КЖ.И-3 Колонна К2-1
903-1-289.91.КЖ.И-3-01 Колонна К2-1-1
903-1-289.91.КЖ.И-3-02 Колонна К2-1-2
903-1-289.91.КЖ.И-3-03 Колонна К2-1-3
903-1-289.91.КЖ.И-4 Колонна К2-2
903-1-289.91.КЖ.И-4-01 Колонна К2-2-1
903-1-289.91.КЖ.И-4-02 Колонна К2-2-2
903-1-289.91.КЖ.И-4-03 Колонна К2-2-3
903-1-289.91.КЖ.И-4-04 Колонна К2-2-4
903-1-289.91.КЖ.И-4-05 Колонна К2-2-5
903-1-289.91.КЖ.И-4-06 Колонна К2-2-6
903-1-289.91.КЖ.И-5; -5-01 Колонна К3-1; К3-1-1
903-1-289.91.КЖ.И-5-02; -5-03 Колонна К3-1-2; К3-1-3
903-1-289.91.КЖ.И-6; -7; -7-01; -7-02 Ригель Р1, Р2, Р2-1, Р2-2
903-1-289.91.КЖ.И-6-01; -6-02; -7-03…-7-05 Ригель Р1-1, Р1-2, Р2-3…Р2-5
903-1-289.91.КЖ.И--7-06; -7-07 Ригель Р2-6, Р2-7
903-1-289.91.КЖ.И-6-03; -7-08; -8; -8-01 Ригель Р1-3, Р2-8, Р3, Р3-1
903-1-289.91.КЖ.И-8-02...-8-05 Ригель Р3-2…Р3-5
903-1-289.91.КЖ.И-7-09; -9; -9-02 Ригель Р2-9, Р4, Р4-1, Р4-2
903-1-289.91.КЖ.И-9-03; -10; -10-01 Ригель Р4-3, Р5, Р5-1
903-1-289.91.КЖ.И-11…11-02; -12…12-02 Балка Б1, Б1-1, Б1-2, Б2, Б2-1, Б2-2
903-1-289.91.КЖ.И-13; - 14 Стойка Ст1, Ст2
903-1-289.91.КЖ.И-15 Стойка Ст3
903-1-289.91.КЖ.И-16…-18 Плита перекрытия П1…П3
903-1-289.91.КЖ.И-19; -20 Плита перекрытия П4, П5
903-1-289.91.КЖ.И-21; -22 Плита перекрытия П6, П7
903-1-289.91.КЖ.И-23…-25 Плита перекрытия канала П8…П10
903-1-289.91.КЖ.И-26; -27 Плита перекрытия П12, П13
903-1-289.91.КЖ.И-28 Плита перекрытия канала П14
903-1-289.91.КЖ.И-29…-31 Плита покрытия П1-1…П1-3
903-1-289.91.КЖ.И-32; -33 Плита покрытия П3-1, П3-2
903-1-289.91.КЖ.И-34; -35 Плита покрытия П4-1, П4-2
903-1-289.91.КЖ.И-36; -37 Плита покрытия П5-1, П5-2
903-1-289.91.КЖ.И-38; -39 Плита покрытия П6-1, П6-2
903-1-289.91.КЖ.И-40; -41 Плита покрытия П7-1, П7-2
903-1-289.91.КЖ.И-42; -43 Плита покрытия П8-1, П8-2
903-1-289.91.КЖ.И-44; -44-01; -45; 45-01 Плита покрытия П9-1, П9-2, П10-1, П10-2
903-1-289.91.КЖ.И-46; -47 Плита покрытия П11-1, П11-2
903-1-289.91.КЖ.И-48 Траверса Т1-1
903-1-289.91.КЖ.И-49 Траверса Т1-2
903-1-289.91.КЖ.И-50; -51 Панель стеновая ПС2, ПС61
903-1-289.91.КЖ.И-52 Панель стеновая ПС4
903-1-289.91.КЖ.И-53 Панель стеновая ПС5
903-1-289.91.КЖ.И-54; -55 Панель стеновая ПС6, ПС7
903-1-289.91.КЖ.И-56 Панель стеновая ПС8
903-1-289.91.КЖ.И-57 Панель стеновая ПС10
903-1-289.91.КЖ.И-58 Панель стеновая ПС12
903-1-289.91.КЖ.И-59 Панель стеновая ПС13
903-1-289.91.КЖ.И-60… -62 Панель стеновая ПС15…ПС17
903-1-289.91.КЖ.И-63; -64 Панель стеновая ПС18, ПС22
903-1-289.91.КЖ.И-65 Панель стеновая ПС23
903-1-289.91.КЖ.И-66 Панель стеновая ПС24
903-1-289.91.КЖ.И-67; -68 Панель стеновая ПС25, ПС26
903-1-289.91.КЖ.И-69 Панель стеновая ПС28
903-1-289.91.КЖ.И-69СБ Панель стеновая ПС28. Сборочный чертеж
903-1-289.91.КЖ.И-70 Панель стеновая ПС29
903-1-289.91.КЖ.И-71 Панель стеновая ПС33
903-1-289.91.КЖ.И-72; -73 Панель стеновая ПС37, ПС38
903-1-289.91.КЖ.И-74; -75 Панель стеновая ПС39, ПС44
903-1-289.91.КЖ.И-76; -77 Панель стеновая ПС40, ПС45
903-1-289.91.КЖ.И-78 Панель стеновая ПС46
903-1-289.91.КЖ.И-78СБ Панель стеновая ПС46. Сборочный чертеж
903-1-289.91.КЖ.И-79 Панель стеновая ПС41
903-1-289.91.КЖ.И-80; -81 Панель стеновая ПС43, ПС47
903-1-289.91.КЖ.И-82; -83 Панель стеновая ПС50, ПС51
903-1-289.91.КЖ.И-84 Панель стеновая ПС52
903-1-289.91.КЖ.И-85; -86 Панель стеновая ПС56, ПС57
903-1-289.91.КЖ.И-87 Панель стеновая ПС59
903-1-289.91.КЖ.И-88 Панель стеновая ПС62
903-1-289.91.КЖ.И-89 Панель стеновая ПС6-А
903-1-289.91.КЖ.И-90 Панель стеновая ПС11-А
903-1-289.91.КЖ.И-91 Панель стеновая ПС23-А
903-1-289.91.КЖ.И-92 Панель стеновая ПС49-А
903-1-289.91.КЖ.И-93 Панель стеновая ПС70-А
903-1-289.91.КЖ.И-94… -99 Блок Бл1…Бл6
903-1-289.91.КЖ.И-ТБ1 Главный корпус. Ведомость расхода стали на закладные изделия к серийным стеновым панелям
903-1-289.91.КЖ.И-100… -102 Панель стеновая ПС71…ПС73
903-1-289.91.КЖ.И-103; -104 Панель стеновая ПС71-А; ПС72-А
903-1-289.91.КЖ.И-105… -107 Панель стеновая ПС74…ПС76
903-1-289.91.КЖ.И-108; -109 Панель стеновая ПС74-А; ПС75-А
903-1-289.91.КЖ.И-110… -112 Панель стеновая ПС77…ПС79
903-1-289.91.КЖ.И-113; -114 Панель стеновая ПС77-А; ПС78-А
903-1-289.91.КЖ.И-115… -117 Панель стеновая ПС80…ПС82
903-1-289.91.КЖ.И-118; -119 Панель стеновая ПС80-А; ПС81-А
903-1-289.91.КЖ.И-120… -122 Панель стеновая ПС83…ПС85
903-1-289.91.КЖ.И-123; -124 Панель стеновая ПС83-А; ПС84-А
903-1-289.91.КЖ.И-125… -127 Панель стеновая ПС86…ПС88
903-1-289.91.КЖ.И-128; -129 Панель стеновая ПС86-А; ПС87-А
903-1-289.91.КЖ.И-130; -131 Панель стеновая ПС89-А; ПС90-А
903-1-289.91.КЖ.И-132… -134 Панель карнизная ПС91…ПС93
903-1-289.91.КЖ.И-ТБ2 Галерея топливоподачи. Ведомость расхода стали на закладные изделия к серийным стеновым панелям
903-1-289.91.КЖ.И-135… - 137 Перемычка ПБ1…ПБ3
903-1-289.91.КЖ.И-138 Перемычка ПБ4
Разработан: Харьковский Сантехпроект
Утверждён:22.08.1991 Сантехниипроект (25)
Издан: АПП ЦИТП (1992 г. )
Расположен в:Техническая документация Строительство Справочные документы Типовые строительные конструкции, изделия и узлы Общероссийский строительный каталог Промышленные предприятия, здания и сооружения Здания и сооружения санитарно-технические Теплоснабжение Котельные установки Закрытые системы теплоснабжения Топливо - каменные и бурые угли
Заменяет собой:
Типовой проект 903-1-289.91Типовой проект 903-1-289.91Типовой проект 903-1-289.91Типовой проект 903-1-289.91Типовой проект 903-1-289.91Типовой проект 903-1-289.91Типовой проект 903-1-289.91Типовой проект 903-1-289.91Типовой проект 903-1-289.91Типовой проект 903-1-289.91Типовой проект 903-1-289.91Типовой проект 903-1-289.91Типовой проект 903-1-289.91Типовой проект 903-1-289.91Типовой проект 903-1-289.91Типовой проект 903-1-289.91Типовой проект 903-1-289.91Типовой проект 903-1-289.91Типовой проект 903-1-289.91Типовой проект 903-1-289.91Типовой проект 903-1-289.91Типовой проект 903-1-289.91Типовой проект 903-1-289.91Типовой проект 903-1-289.91Типовой проект 903-1-289.91Типовой проект 903-1-289.91Типовой проект 903-1-289.91Типовой проект 903-1-289.91Типовой проект 903-1-289.91Типовой проект 903-1-289.91Типовой проект 903-1-289.91Типовой проект 903-1-289.91Типовой проект 903-1-289.91Типовой проект 903-1-289.91Типовой проект 903-1-289.91Типовой проект 903-1-289.91Типовой проект 903-1-289.91Типовой проект 903-1-289.91Типовой проект 903-1-289.91Типовой проект 903-1-289.91Типовой проект 903-1-289.91Типовой проект 903-1-289.91Типовой проект 903-1-289.91Типовой проект 903-1-289.91Типовой проект 903-1-289.91Типовой проект 903-1-289.91Типовой проект 903-1-289.91Типовой проект 903-1-289.91Типовой проект 903-1-289.91Типовой проект 903-1-289.91Типовой проект 903-1-289.91Типовой проект 903-1-289.91Типовой проект 903-1-289.91Типовой проект 903-1-289.91Типовой проект 903-1-289.91Типовой проект 903-1-289.91Типовой проект 903-1-289.91Типовой проект 903-1-289.91Типовой проект 903-1-289.91Типовой проект 903-1-289.91Типовой проект 903-1-289.91Типовой проект 903-1-289.91Типовой проект 903-1-289.91Типовой проект 903-1-289.91Типовой проект 903-1-289.91Типовой проект 903-1-289.91Типовой проект 903-1-289.91Типовой проект 903-1-289.91Типовой проект 903-1-289.91Типовой проект 903-1-289.91Типовой проект 903-1-289.91Типовой проект 903-1-289.91Типовой проект 903-1-289.91Типовой проект 903-1-289.91Типовой проект 903-1-289.91Типовой проект 903-1-289.91Типовой проект 903-1-289.91Типовой проект 903-1-289.91Типовой проект 903-1-289.91Типовой проект 903-1-289.91Типовой проект 903-1-289.91Типовой проект 903-1-289.91Типовой проект 903-1-289.91Типовой проект 903-1-289.91Типовой проект 903-1-289.91Типовой проект 903-1-289.91Типовой проект 903-1-289.91Типовой проект 903-1-289.91Типовой проект 903-1-289.91Типовой проект 903-1-289.91Типовой проект 903-1-289.91Типовой проект 903-1-289.91Типовой проект 903-1-289.91Типовой проект 903-1-289.91Типовой проект 903-1-289.91Типовой проект 903-1-289.91Типовой проект 903-1-289.91Типовой проект 903-1-289.91Типовой проект 903-1-289.91Типовой проект 903-1-289.91Типовой проект 903-1-289.91Типовой проект 903-1-289.91Типовой проект 903-1-289.91Типовой проект 903-1-289.91Типовой проект 903-1-289.91Типовой проект 903-1-289.91Типовой проект 903-1-289.91Типовой проект 903-1-289.91Типовой проект 903-1-289.91Типовой проект 903-1-289.91Типовой проект 903-1-289.91Типовой проект 903-1-289.91Типовой проект 903-1-289.91Типовой проект 903-1-289.91Типовой проект 903-1-289.91Типовой проект 903-1-289.91Типовой проект 903-1-289.91Типовой проект 903-1-289.91Типовой проект 903-1-289.91Типовой проект 903-1-289.91Типовой проект 903-1-289.91Типовой проект 903-1-289.91Типовой проект 903-1-289.91Типовой проект 903-1-289.91Типовой проект 903-1-289.91

© 2013 Ёшкин Кот :-) Карта сайта