Скачать Типовой проект 903-1-289.91 Альбом 12. Часть 2. Конструкции железобетонныеДата актуализации: 10.08.2017 Типовой проект 903-1-289.91
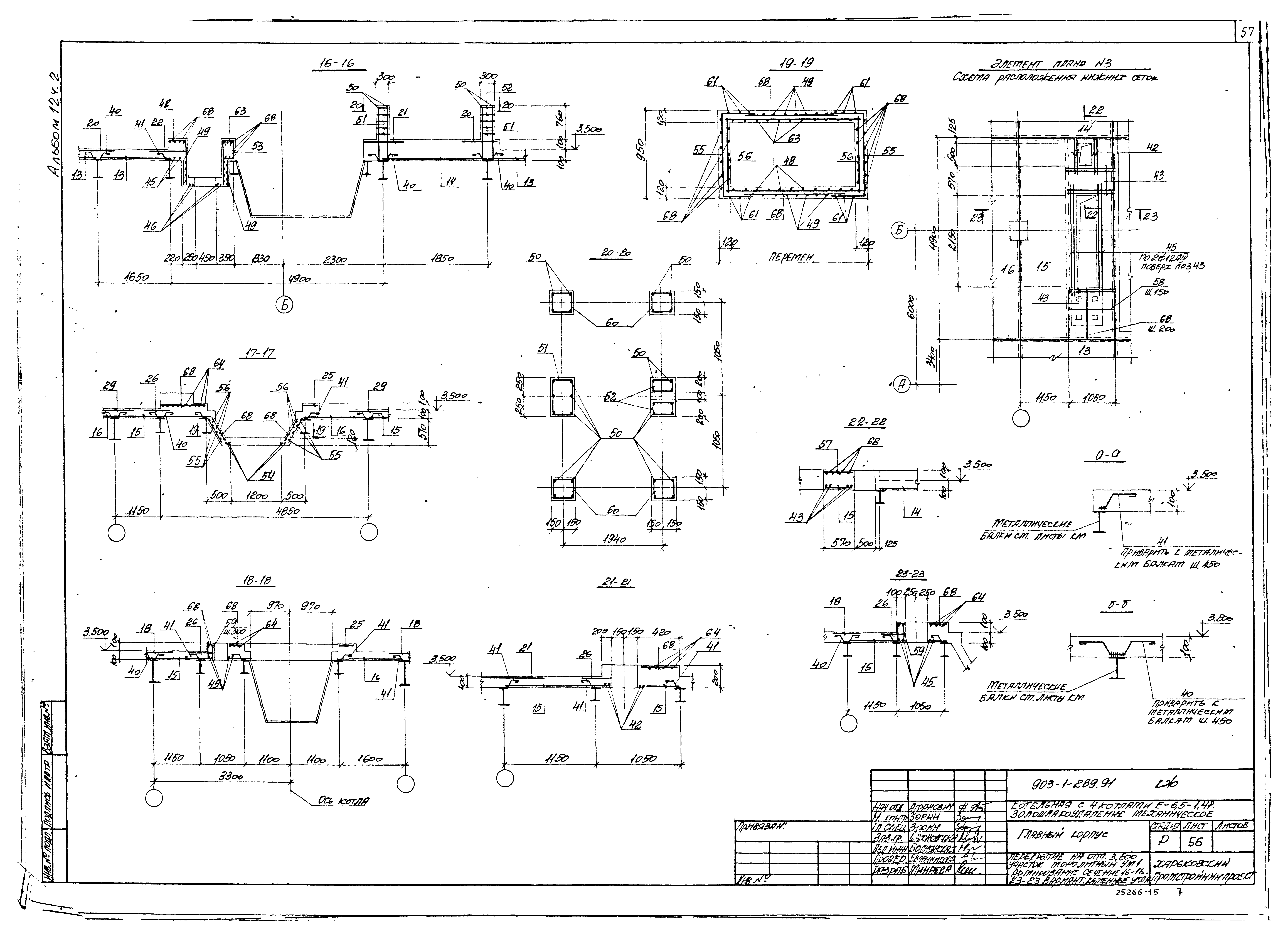
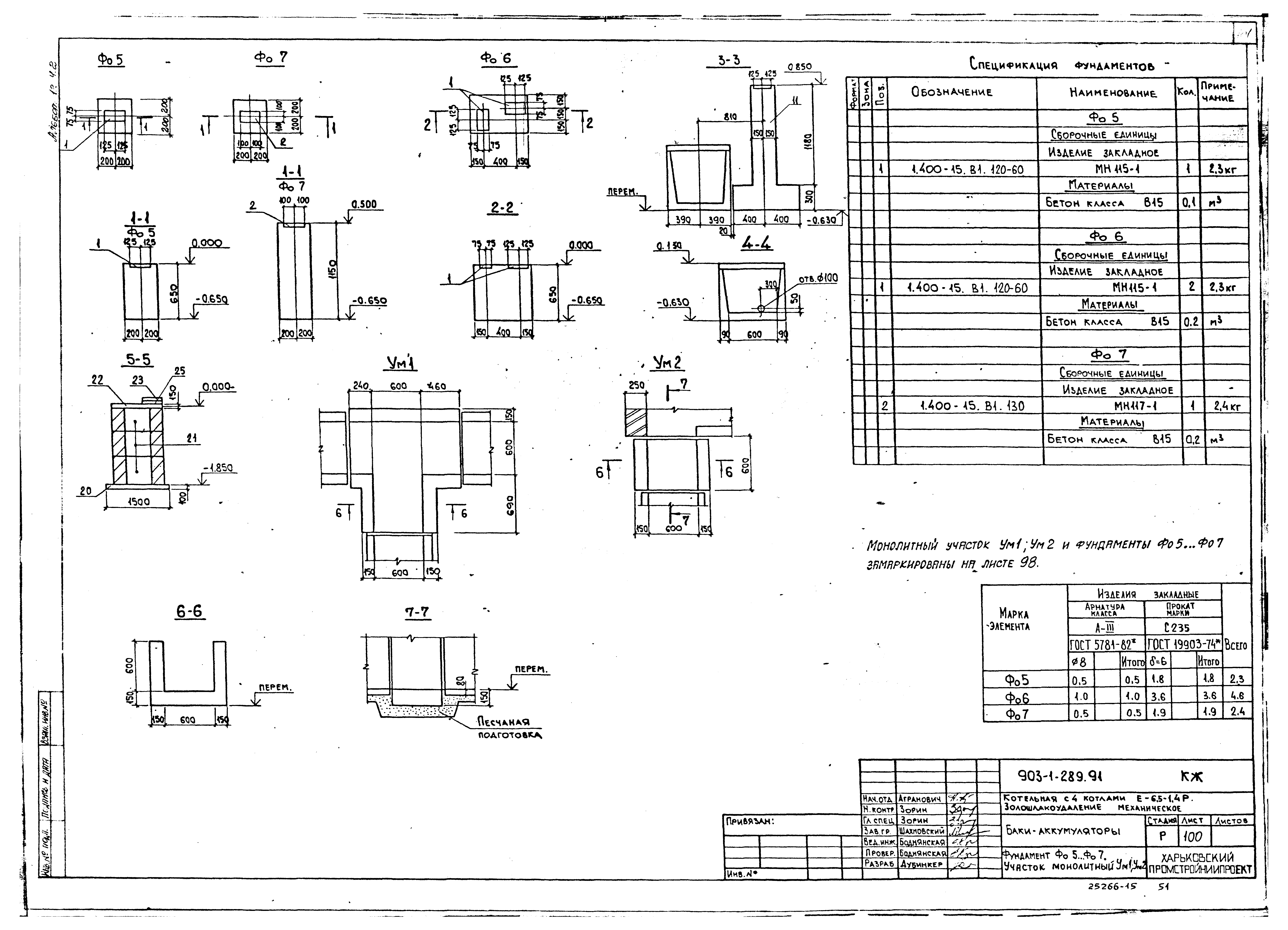
Альбом 12. Часть 2. Конструкции железобетонныеОбозначение: | Типовой проект 903-1-289.91 | Обозначение англ: | 903-1-289.91 | Статус: | не определен законодательством | Название рус.: | Альбом 12. Часть 2. Конструкции железобетонные | Дата добавления в базу: | 01.09.2013 | Дата актуализации: | 05.05.2017 | Дата введения: | 22.08.1991 | Оглавление: | Главный корпус Перекрытие на отм. 3.600. Участок монолитный Ум1. Опалубка. Вариант: каменные угли Перекрытие на отм. 3.600. Участок монолитный Ум1. Элемент плана №1 и №2. Опалубка. Вариант: каменные угли Перекрытие на отм. 3.600. Участок монолитный Ум1. Элемент плана №1 и №2. Опалубка. Сечение 1-1…11-11. Вариант: каменные угли Перекрытие на отм. 3.600. Участок монолитный Ум1. Армирование. Вариант: каменные угли Перекрытие на отм. 3.600. Участок монолитный Ум1. Армирование. Сечение 16-16…23-23. Вариант: каменные угли Перекрытие на отм. 3.600. Спецификация участка монолитного Ум1. Вариант: каменные угли Перекрытие на отм. 3.600. Участок монолитный Ум1. Опалубка. Вариант: бурые угли Перекрытие на отм. 3.600. Участок монолитный Ум1. Элемент плана №1 и №2. Опалубка. Вариант: бурые угли Перекрытие на отм. 3.600. Участок монолитный Ум1. Элемент плана №1 и №2. Опалубка. Сечение 1-1…12-12. Вариант: бурые угли Перекрытие на отм. 3.600. Участок монолитный Ум1. Армирование. Вариант: бурые угли Перекрытие на отм. 3.600. Участок монолитный Ум1. Армирование. Сечение 16-16…23-23. Вариант: бурые угли Перекрытие на отм. 3.600. Спецификация участка монолитного Ум1. Вариант: бурые угли Перекрытие на отм. 3.600. Участок монолитный Ум2, Ум3 Перекрытие на отм. 7.200. Участок монолитный Ум4. Опалубка Перекрытие на отм. 7.200. Участок монолитный Ум4. Армирование Покрытие. Участок монолитный Ум5 Участок монолитный Ум6. Опалубка. Узел I Участок монолитный Ум6. Опалубка. Узел II - IV Участок монолитный Ум6. Армирование Спецификация участка монолитного Ум6 Участок монолитный Ум7, Ум8. Опалубка Участок монолитный Ум7, Ум8. Армирование Спецификация участка монолитного Ум7, Ум8 Галерея топливоподачи Схема расположения фундаментов, стоек, плит перекрытия и покрытия Схема расположения стеновых панелей. Спецификация Участок монолитный Ум1. Сечение 1-1…3-3. Опалубка Участок монолитный Ум1. Сечение 4-4…8-8. Опалубка Участок монолитный Ум1. Армирование Участок монолитный Ум1. Армирование. Спецификация Участок монолитный Ум2, Ум3. Фундамент монолитный Фм1 Приемно-дробильное отделение Схема расположения плит на отм. 0.470. Перекрытие на отм. - 2.580. Опалубка Плита днища Пм1. Сечение 1-1…10-10. Опалубка Плита днища Пм1. Стены. Армирование Стены. Армирование Плита перекрытия Пм2 на отм. - 2.560. Армирование Участок монолитный Ум1, Ум2 на отм. 0.470. Балка Бм1 Спецификация Ведомость деталей и расхода стали Продувочный колодец Схема расположения конструктивных элементов Схема армирования. Спецификация Канал КЛМ2 Баки-аккумуляторы Схема расположения конструктивных элементов Фундамент ФО1…ФО4 Фундамент ФО5…ФО7. Участок монолитный Ум1, Ум2 Газоходы Схема расположения конструктивных элементов Сечение 1-1…3-3. Фундамент Фм1 Участок монолитный Ум1…Ум3 Трасса к складу мокрого хранения хлористого натрия и к бакам сточных вод Схема расположения конструктивных элементов Фундамент ФО6…ФО14, Фм14, Фм15. Ведомость расхода стали Спецификация к схеме расположения конструктивных элементов. Спецификация фундаментов | Разработан: | Харьковский Сантехпроект
| Утверждён: | 22.08.1991 Сантехниипроект (25)
| Издан: | АПП ЦИТП (1992 г. )
| Расположен в: |
| Заменяет собой: | |
                                                       
|