Информационная система
«Ёшкин Кот»

Скачать базу одним архивом
Скачать обновления
История создания базы
Карта сайта

Скачать Типовой проект 903-1-289.91 Альбом 10. Электроосвещение

Дата актуализации: 10.08.2017

Типовой проект 903-1-289.91

Альбом 10. Электроосвещение

Обозначение: Типовой проект 903-1-289.91
Обозначение англ: 903-1-289.91
Статус:не определен законодательством
Название рус.:Альбом 10. Электроосвещение
Дата добавления в базу:01.09.2013
Дата актуализации:05.05.2017
Дата введения:22.08.1991
Оглавление:Чертежи основного комплекта марки ЭО
   Общие данные
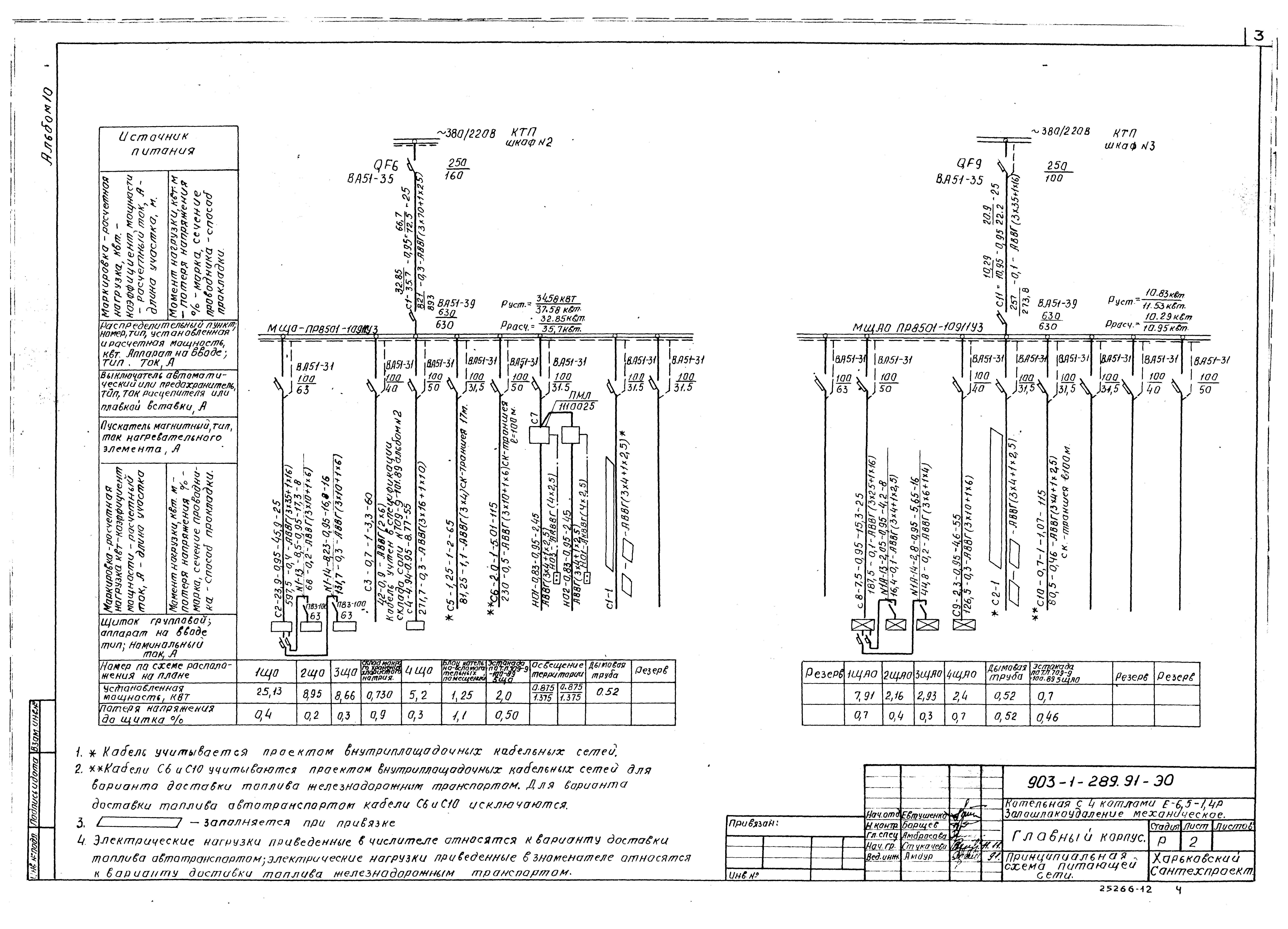
   Принципиальная схема питающей сети
   План расположения электрического оборудования и прокладки электрических сетей на отм. 0.000. Разрез 1-1
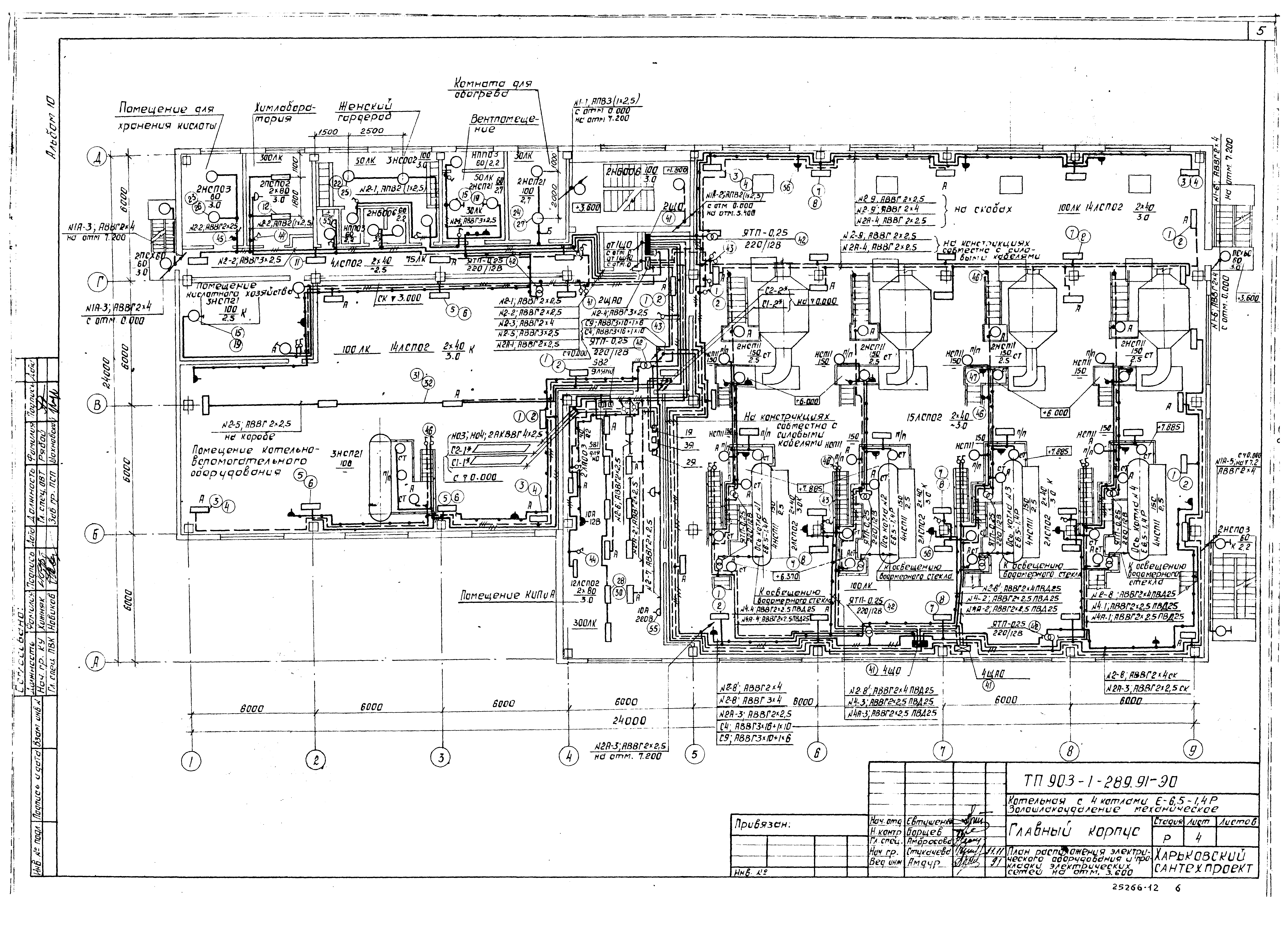
   План расположения электрического оборудования и прокладки электрических сетей на отм. 3.600
   План расположения электрического оборудования и прокладки электрических сетей на отм. 7.200
   План расположения электрического оборудования и прокладки электрических сетей на отм. 11.350. Разрез 2-2
   Топливоподача. План расположения электрического оборудования и прокладки электрических сетей
   План расположения электрооборудования и прокладки кабелей. Спецификация
   План освещения территории (вариант - доставка топлива автотранспортом)
   План освещения территории (вариант - доставка топлива железнодорожным транспортом)
   Ведомость электромонтажных конструкций, подлежащих изготовлению в МЭЗ
   Ведомость изделий и материалов для изготовления электромонтажных конструкций и деталей в МЭЗ
Разработан: Харьковский Сантехпроект
Утверждён:22.08.1991 Сантехниипроект (25)
Издан: АПП ЦИТП (1992 г. )
Расположен в:Техническая документация Строительство Справочные документы Типовые строительные конструкции, изделия и узлы Общероссийский строительный каталог Промышленные предприятия, здания и сооружения Здания и сооружения санитарно-технические Теплоснабжение Котельные установки Закрытые системы теплоснабжения Топливо - каменные и бурые угли
Заменяет собой:
Типовой проект 903-1-289.91Типовой проект 903-1-289.91Типовой проект 903-1-289.91Типовой проект 903-1-289.91Типовой проект 903-1-289.91Типовой проект 903-1-289.91Типовой проект 903-1-289.91Типовой проект 903-1-289.91Типовой проект 903-1-289.91Типовой проект 903-1-289.91Типовой проект 903-1-289.91Типовой проект 903-1-289.91Типовой проект 903-1-289.91Типовой проект 903-1-289.91Типовой проект 903-1-289.91Типовой проект 903-1-289.91Типовой проект 903-1-289.91

© 2013 Ёшкин Кот :-) Карта сайта