Скачать Типовой проект 903-1-289.91 Альбом 8. Часть 2. Автоматизация. Связь и сигнализацияДата актуализации: 10.08.2017 Типовой проект 903-1-289.91
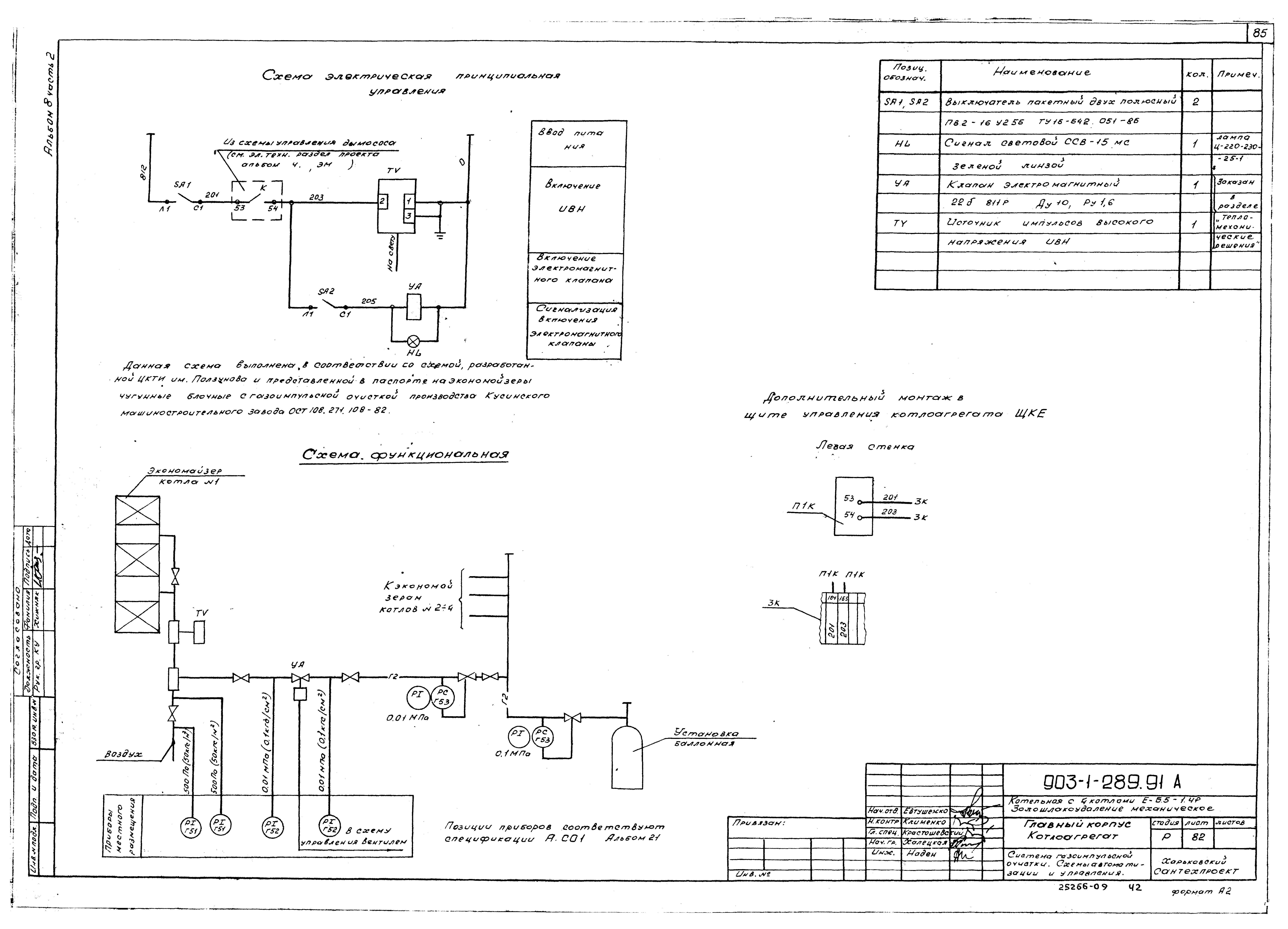
Альбом 8. Часть 2. Автоматизация. Связь и сигнализацияОбозначение: | Типовой проект 903-1-289.91 | Обозначение англ: | 903-1-289.91 | Статус: | не определен законодательством | Название рус.: | Альбом 8. Часть 2. Автоматизация. Связь и сигнализация | Дата добавления в базу: | 01.09.2013 | Дата актуализации: | 05.05.2017 | Дата введения: | 22.08.1991 | Оглавление: | Автоматизация - А Котлоагрегат. Схема соединений внешних проводок Деаэрационно-питательная установка и общекотельные трубопроводы. Схема соединений внешних проводок Водоподогревательная установка. Схема соединений внешних проводок Установка горячего водоснабжения. Схема соединений внешних проводок Водоподготовительная установка. Схема 1. Схема соединений внешних проводок Водоподготовительная установка. Схема 2. Схема соединений внешних проводок Котлоагрегат. Щит управления котлоагрегата ЩКЕ. Схема подключения Котлоагрегат. Щит общих замеров. Схема подключения Деаэрационно-питательная установка и общекотельное оборудование. Щит управления №1. Схема подключения Деаэрационно-питательная установка и общекотельное оборудование. Щит управления №4. Схема подключения Водоподогревательная установка. Щит управления №2. Схема подключения Установка горячего водоснабжения. Щит управления №3. Схема подключения Котлоагрегат. План расположения средств автоматизации, кабельных и трубных проводок Общекотельное оборудование. План расположения средств автоматизации, кабельных и трубных проводок Деаэрационно-питательная установка и общекотельные трубопроводы. План расположения средств автоматизации, кабельных и трубных проводок Водоподогревательная установка. План расположения средств автоматизации, кабельных и трубных проводок Установка горячего водоснабжения. План расположения средств автоматизации, кабельных и трубных проводок Водоподготовительная установка. Схема 1. План расположения средств автоматизации, кабельных и трубных проводок Водоподготовительная установка. Схема 2. План расположения средств автоматизации, кабельных и трубных проводок План расположения средств автоматизации, кабельных и трубных проводок Котлоагрегат. Система газоимпульсной очистки. Схемы функциональная и управления Котлоагрегат. Система газоимпульсной очистки. План расположения Связь и сигнализация - СС Общие данные Планы на отм. 0.000; 3.600; 7.200 и 10.900 с сетями связи и сигнализации Скелетные схемы сетей связи и сигнализации Схема сигнализации связи. Спецификация Планы на отм. 0.000; 3.600 и 7.200 с сетью пожарной сигнализации План надбункерной галереи с сетью пожарной сигнализации Схема включения датчиков в "ТОПАЗ" и схема кабельных соединений "ТОПАЗ" Шкаф для аккумуляторных батарей. Общий вид | Разработан: | Харьковский Сантехпроект
| Утверждён: | 22.08.1991 Сантехниипроект (25)
| Издан: | АПП ЦИТП (1992 г. )
| Расположен в: |
| Заменяет собой: | |
                                                 
|