Информационная система
«Ёшкин Кот»

Скачать базу одним архивом
Скачать обновления
История создания базы
Карта сайта

Скачать Типовой проект 903-1-277.90 Альбом 16. Генеральный план. Наружные сети водоснабжения и канализации. Кабельные линии. Электрическое освещение территории. Связь и сигнализация. Тепловые сети. Конструкции железобетонные

Дата актуализации: 10.08.2017

Типовой проект 903-1-277.90

Альбом 16. Генеральный план. Наружные сети водоснабжения и канализации. Кабельные линии. Электрическое освещение территории. Связь и сигнализация. Тепловые сети. Конструкции железобетонные

Обозначение: Типовой проект 903-1-277.90
Обозначение англ: 903-1-277.90
Статус:не определен законодательством
Название рус.:Альбом 16. Генеральный план. Наружные сети водоснабжения и канализации. Кабельные линии. Электрическое освещение территории. Связь и сигнализация. Тепловые сети. Конструкции железобетонные
Дата добавления в базу:01.09.2013
Дата актуализации:05.05.2017
Дата введения:30.04.1990
Оглавление:Генеральный план ГП
   Общие данные
   Разбивочный план. План благоустройства территории
   Объемы работ. Конструктивные поперечные профили автодорог, площадок и тротуаров
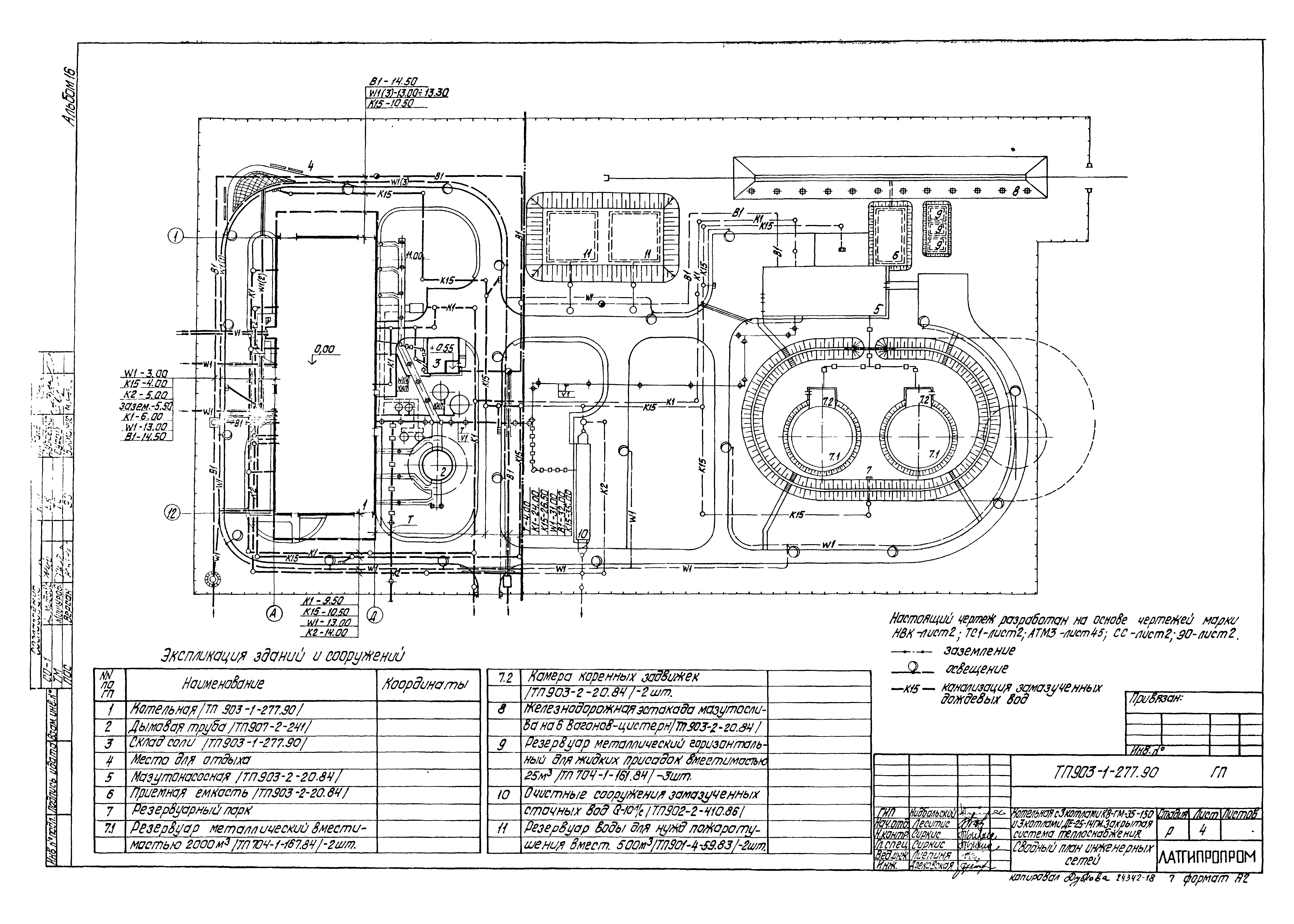
   Сводный план инженерных сетей
Наружные сети водоснабжения и канализации НВК
   Общие данные
   Сети водоснабжения и канализации
Кабельные линии ЭК
   Общие данные
   План расположения кабельных трасс электропередач
Электрическое освещение территории ЭН
   Общие данные
   План освещения территории
Связь и сигнализация СС2
   Общие данные
   План расположения кабельных трасс связи и сигнализации
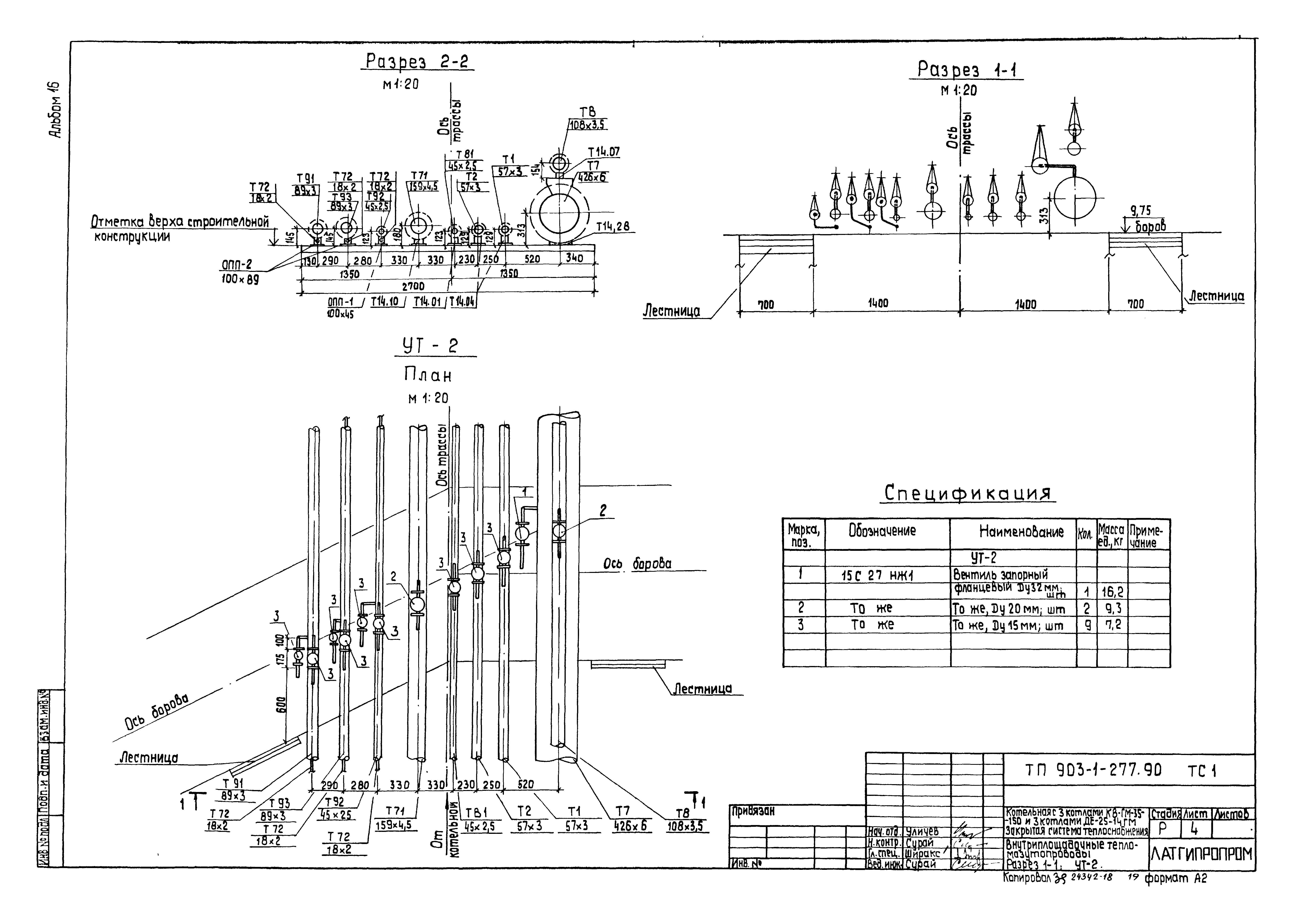
Тепловые сети ТС1
   Общие данные
   Внутриплощадочные тепломазутопроводы. План. Разрезы 3-3, 4-4, 5-5
   Внутриплощадочные тепломазутопроводы. Схема. Разрез 1-1
   Внутриплощадочные тепломазутопроводы. Разрез 1-1. Ут-2
   Внутриплощадочные тепломазутопроводы. Ут-3, Ут-4
   Внутриплощадочные тепломазутопроводы. Ведомость теплоизоляционных конструкций
Конструкции железобетонные КЖ4
   Трасса паромазутопроводов. Общие данные
   Трасса паромазутопроводов. Схемы расположения трасс. Фм3
   Трасса паромазутопроводов. Разрезы 1-1…4-4
   Трасса паромазутопроводов. Узлы 1…4. Разрезы 5-5, 6-6
   Трасса паромазутопроводов. Узел 5. Разрезы 7-7, 8-8, д-д
   Трасса паромазутопроводов. Фм1, Фм2. Опалубка и армирование. Узел 7
Разработан: Латгипропром
Утверждён:30.04.1990 Сантехниипроект (3)
Издан: ЦИТП Госстроя СССР (CITP, Gosstroy (USSR) 1990 г. )
Расположен в:Техническая документация Строительство Справочные документы Типовые строительные конструкции, изделия и узлы Общероссийский строительный каталог Промышленные предприятия, здания и сооружения Здания и сооружения санитарно-технические Теплоснабжение Котельные установки Закрытые системы теплоснабжения Топливо - газ и мазут
Типовой проект 903-1-277.90Типовой проект 903-1-277.90Типовой проект 903-1-277.90Типовой проект 903-1-277.90Типовой проект 903-1-277.90Типовой проект 903-1-277.90Типовой проект 903-1-277.90Типовой проект 903-1-277.90Типовой проект 903-1-277.90Типовой проект 903-1-277.90Типовой проект 903-1-277.90Типовой проект 903-1-277.90Типовой проект 903-1-277.90Типовой проект 903-1-277.90Типовой проект 903-1-277.90Типовой проект 903-1-277.90Типовой проект 903-1-277.90Типовой проект 903-1-277.90Типовой проект 903-1-277.90Типовой проект 903-1-277.90Типовой проект 903-1-277.90Типовой проект 903-1-277.90Типовой проект 903-1-277.90Типовой проект 903-1-277.90Типовой проект 903-1-277.90Типовой проект 903-1-277.90Типовой проект 903-1-277.90

© 2013 Ёшкин Кот :-) Карта сайта