Скачать Типовой проект 903-1-277.90 Альбом 4. Строительно-технологическая блок-секция котлоагрегата КВ-ГМ-35-150. Тепломеханические решения. Газоснабжение. Конструкции железобетонные. АвтоматизацияДата актуализации: 10.08.2017 Типовой проект 903-1-277.90
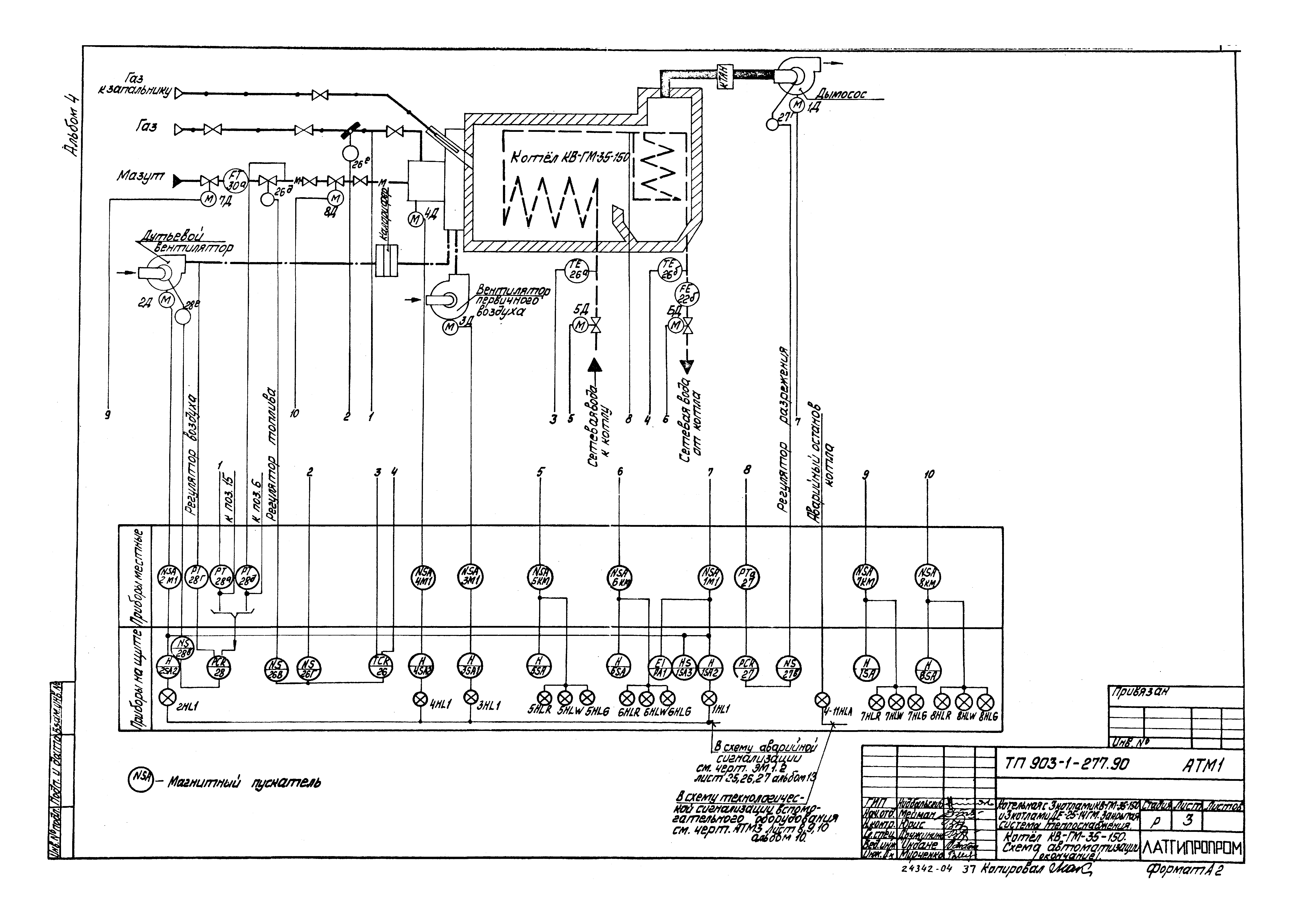
Альбом 4. Строительно-технологическая блок-секция котлоагрегата КВ-ГМ-35-150. Тепломеханические решения. Газоснабжение. Конструкции железобетонные. АвтоматизацияОбозначение: | Типовой проект 903-1-277.90 | Обозначение англ: | 903-1-277.90 | Статус: | не определен законодательством | Название рус.: | Альбом 4. Строительно-технологическая блок-секция котлоагрегата КВ-ГМ-35-150. Тепломеханические решения. Газоснабжение. Конструкции железобетонные. Автоматизация | Дата добавления в базу: | 01.09.2013 | Дата актуализации: | 05.05.2017 | Дата введения: | 30.04.1990 | Оглавление: | Тепломеханические решения ТМ3 Общие данные Компоновка оборудования. Вид сверху. План В-В. Разрез Б-Б Компоновка оборудования. Разрез А-А Газоходы котла КВ-ГМ-35-150. Разрез А-А. Узел I Газоходы котла КВ-ГМ-35-150. Вид сверху. Разрезы В-В, Г-Г Газоходы котла КВ-ГМ-35-150. Разрез Б-Б Воздуховоды котла КВ-ГМ-35-150. Разрезы А-А, Б-Б Воздуховоды котла КВ-ГМ-35-150. План В-В. Разрез Г-Г, Д-Д Воздуховоды котла КВ-ГМ-35-150. Спецификация Трубопроводы сетевой воды. План. Разрезы А-А, Б-Б Паромазутопроводы в пределах котла. План. Разрезы А-А, Б-Б Трубопроводы обвязки калорифера КСК3-10-02ХЛЗ. План А-А. Разрезы Б-Б, В-В Трубопроводы обвязки КТАНа-0,8УГ. План Б-Б. План на отм. 0.000. Разрезы А-А, В-В Трубопроводы дробеочистки. Разрезы А-А, Б-Б. Вид сверху Трубопроводы дробеочистки. Разрез В-В. Узел Схема дренажей и отвода воздуха от трубопроводов сетевой воды и котла Продувочное устройство Ду32. Разрез А-А. Детали Общий вид тепловой изоляции для участка плоской стенки. Задание на разработку Газоснабжение ГСВЗ Общие данные Газооборудование котла КВ-ГМ-35-150. Вид сбоку. Вид А Спецификация на газооборудование котла КВ-ГМ-35-150 Конструкции железобетонные КЖ1 Схема расположения подвесок. Общие данные Схема расположения подземных конструкций Разрезы 1-1…9-9 ФОм1, ФОм2, ОП1. Опалубка и армирование ФОм3, ФОм4. Опалубка и армирование Автоматизация АТМ1 Котел КВ-ГМ-35-150. Общие данные Котел КВ-ГМ-35-150. Схема автоматизации Котел КВ-ГМ-35-150. Схемы электрические принципиальные питания и сигнализации Котел КВ-ГМ-35-150. Схема электрическая принципиальная автоматики безопасности Котел КВ-ГМ-35-150. Схема электрическая принципиальная регулятора топлива Котел КВ-ГМ-35-150. Схема электрическая принципиальная регулятора воздуха Котел КВ-ГМ-35-150. Схема электрическая принципиальная регулятора разряжения Котел КВ-ГМ-35-150. Схемы электрические принципиальные управления задвижками на воде Котел КВ-ГМ-35-150. Схема электрическая принципиальная управления задвижкой на мазутопроводе Котел КВ-ГМ-35-150. Схема соединений внешних проводок Котел КВ-ГМ-35-150. Схема подключения внешних проводок Котел КВ-ГМ-35-150. План расположения Котел КВ-ГМ-35-150. Установка МЭО-100/25-0,25У к клапану 9с-4-2 на мазутопроводе к котлу Котел КВ-ГМ-35-150. Установка МЭО-250/63-0,25У к дымососу ДН-17 Котел КВ-ГМ-35-150. Установка МЭО-100/25-0,25У к вентилятору ВДН-15 Котел КВ-ГМ-35-150. Установка МЭО-100/25-0,25У к затвору дисковому регулирующему 32ч022БК Ду200 Котел КВ-ГМ-35-150. Установка электромагнита МИС-4100 на клапане предохранительном запорного типа ПКН Ду100 | Разработан: | Латгипропром
| Утверждён: | 30.04.1990 Сантехниипроект (3)
| Издан: | ЦИТП Госстроя СССР (CITP, Gosstroy (USSR) 1990 г. )
| Расположен в: |
|
                                                          
|