Информационная система
«Ёшкин Кот»

Скачать базу одним архивом
Скачать обновления
История создания базы
Карта сайта

Скачать Типовой проект 903-1-269.89 Альбом 8. Автоматизация. Щиты

Дата актуализации: 10.08.2017

Типовой проект 903-1-269.89

Альбом 8. Автоматизация. Щиты

Обозначение: Типовой проект 903-1-269.89
Обозначение англ: 903-1-269.89
Статус:не определен законодательством
Название рус.:Альбом 8. Автоматизация. Щиты
Дата добавления в базу:01.09.2013
Дата актуализации:05.05.2017
Дата введения:04.04.1989
Оглавление:Чертежи основного комплекта марки АТМ
   Общие данные
   Котел "Факел" №1 (2…6). Схема автоматизации
   Котел "Факел" №1 (2…6). Схема соединений внешних проводок
   Котел "Факел" №1 (2…6). Блок БКЭ. Схема подключения внешних проводок
   Котел "Факел" №1 (2…6). План расположения
   Вспомогательное оборудование. Схема автоматизации
   Водоподготовка. Схема автоматизации
   Газоснабжение. Схема автоматизации
   Вспомогательное оборудование. Схема соединений внешних проводок
   Водоподготовка. Схема соединений внешних проводок
   Газоснабжение. Схема соединений внешних проводок
   Вспомогательное оборудование. Щит оператора. Схема подключения внешних проводок
   Вспомогательное оборудование. План расположения
   Блок сетевых насосов. Схема автоматизации
   Блок сетевых насосов. Схема соединений внешних проводок
   Блок сетевых насосов. План расположения
   Блок насосов горячего водоснабжения. Схема автоматизации
   Блок насосов горячего водоснабжения. Схема соединений внешних проводок
   Блок насосов горячего водоснабжения. План расположения
   Блок циркуляции горячей воды
   Блок приготовления горячей воды. Схема автоматизации
   Блок приготовления горячей воды. Схема соединений внешних проводок
   Блок приготовления горячей воды. План расположения
   Блок силикатной обработки воды
   Установка ВДПУ-3. Схема автоматизации. Схема соединений внешних проводок
   ГРУ. Схема автоматизации
   ГРУ. Схема соединений внешних проводок
   ГРУ. План расположения
   Система №П1. Схема автоматизации. Схема соединений внешних проводок
   Узел управления. Схема автоматизации. Схема соединений внешних проводок
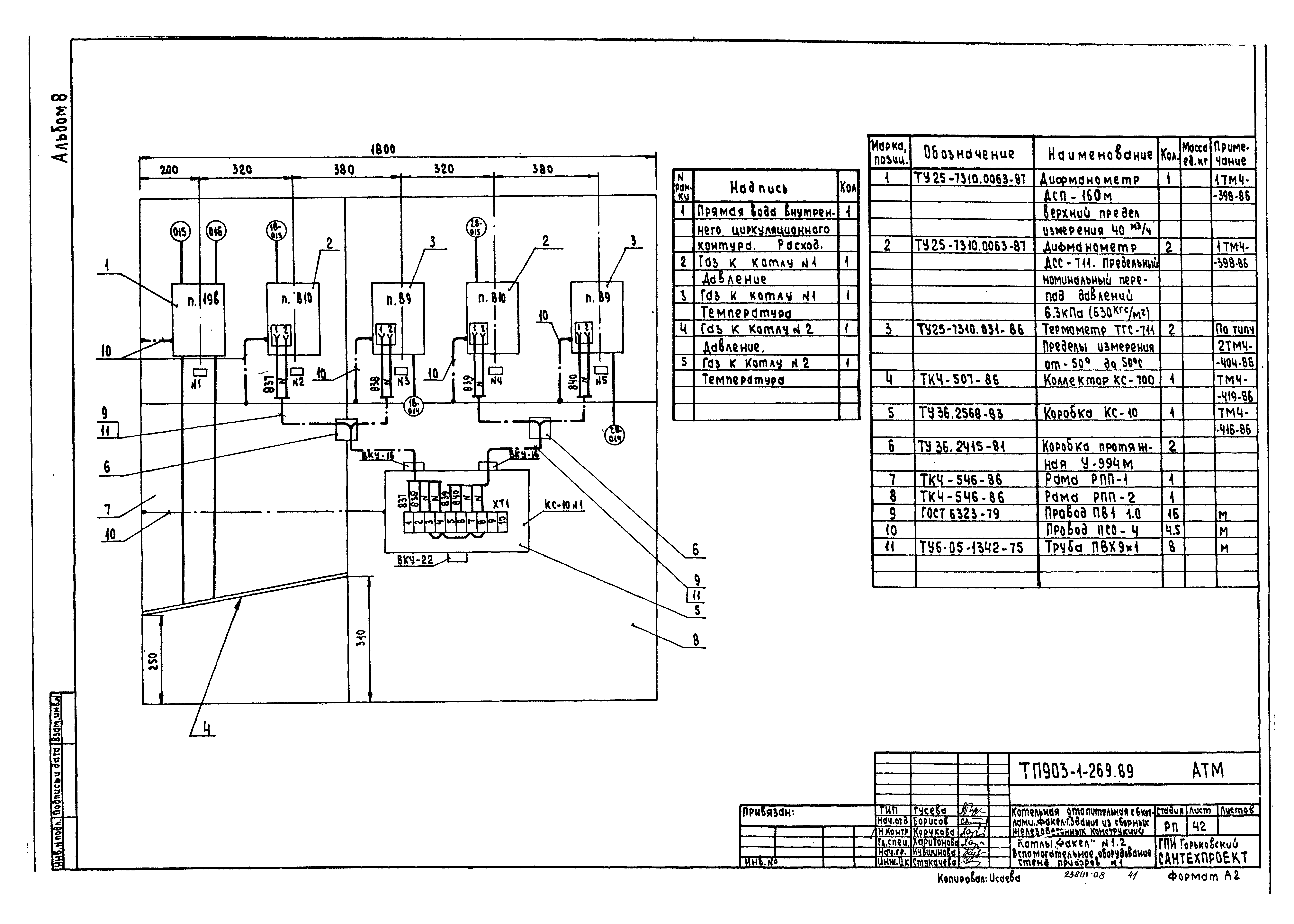
   Котлы "Факел" №1, 2. Вспомогательное оборудование. Стенд приборов №1
   Вспомогательное оборудование. Стенд приборов №1
   Вспомогательное оборудование. Стенд приборов №2
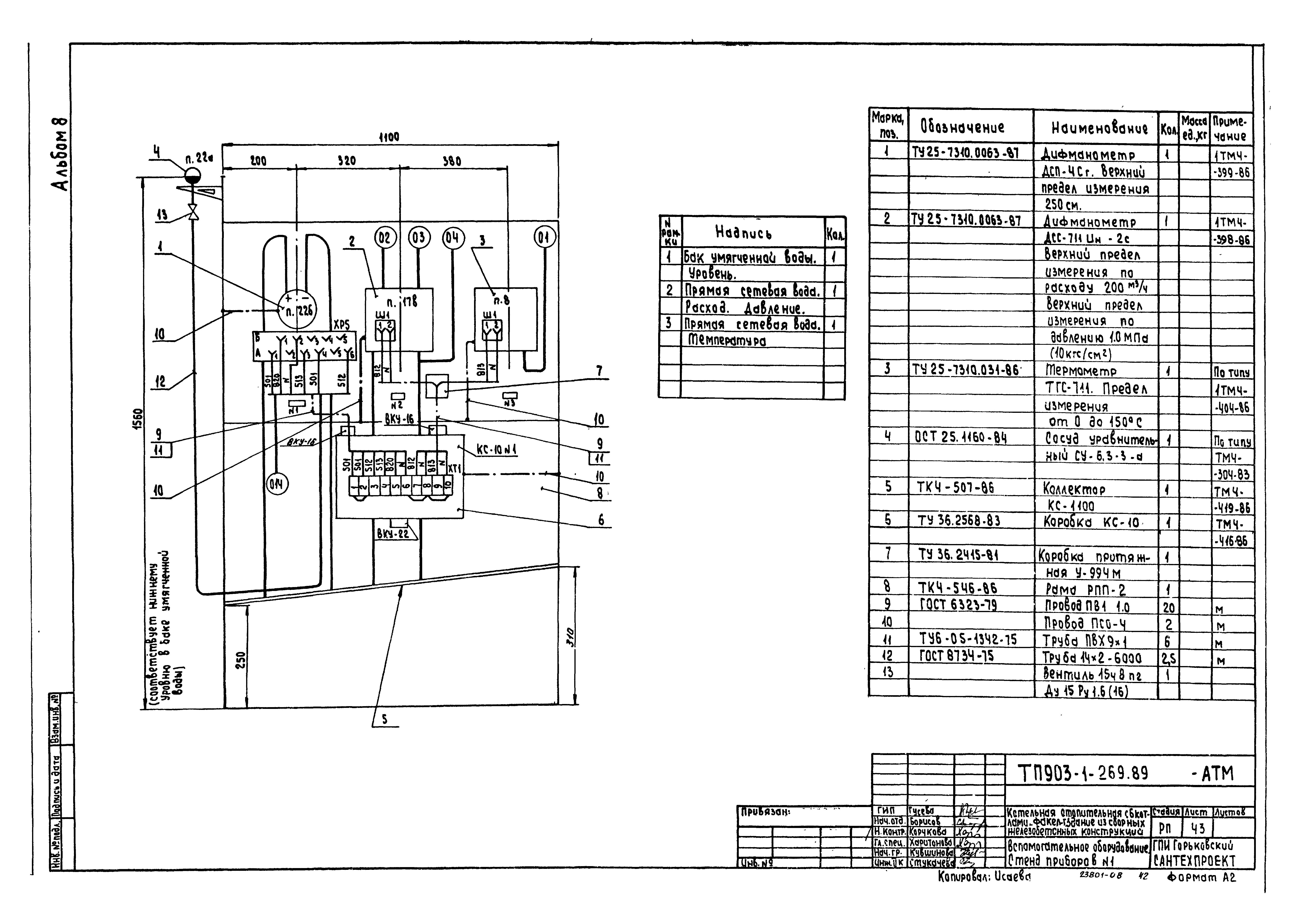
   Водоподготовка. Стенд приборов №1
   ГРУ. Стенд приборов №1
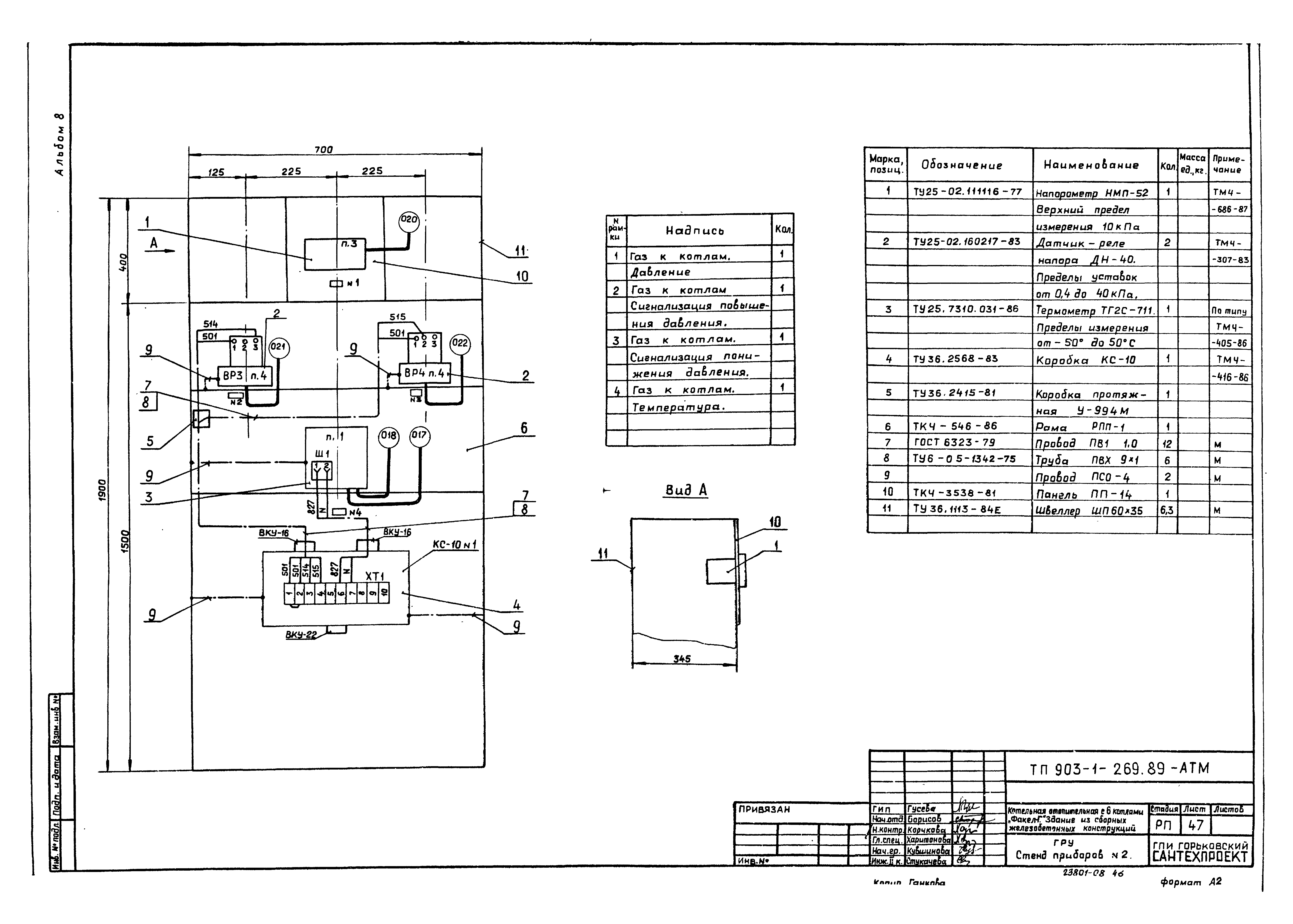
   ГРУ. Стенд приборов №2
   Котел "Факел" №1 (2…6). Схема защиты и сигнализации
   Вспомогательное оборудование. Схема электрическая принципиальная питания
   Вспомогательное оборудование. Схема электрическая принципиальная технологической сигнализации
   Вспомогательное оборудование. Схема электрическая принципиальная измерения параметров
   Система №П1. Схема электрическая принципиальная
Чертежи основного комплекта марки АТМН
   Перечень технической документации для задания заводу-изготовителю щитов
   Спецификация щитов
   Щит оператора. Общий вид
   Щит оператора. Таблица соединений
   Щит оператора. Таблица подключения
Разработан: Горьковский Сантехпроект
Утверждён:04.04.1989 Госстрой СССР (Государственный комитет Совета Министров СССР по делам строительства) (USSR Gosstroy 13)
Издан: ЦИТП Госстроя СССР (CITP, Gosstroy (USSR) 1989 г. )
Расположен в:Техническая документация Строительство Справочные документы Типовые строительные конструкции, изделия и узлы Общероссийский строительный каталог Промышленные предприятия, здания и сооружения Здания и сооружения санитарно-технические Теплоснабжение Котельные установки Закрытые системы теплоснабжения Топливо - газ
Заменяет собой:
Типовой проект 903-1-269.89Типовой проект 903-1-269.89Типовой проект 903-1-269.89Типовой проект 903-1-269.89Типовой проект 903-1-269.89Типовой проект 903-1-269.89Типовой проект 903-1-269.89Типовой проект 903-1-269.89Типовой проект 903-1-269.89Типовой проект 903-1-269.89Типовой проект 903-1-269.89Типовой проект 903-1-269.89Типовой проект 903-1-269.89Типовой проект 903-1-269.89Типовой проект 903-1-269.89Типовой проект 903-1-269.89Типовой проект 903-1-269.89Типовой проект 903-1-269.89Типовой проект 903-1-269.89Типовой проект 903-1-269.89Типовой проект 903-1-269.89Типовой проект 903-1-269.89Типовой проект 903-1-269.89Типовой проект 903-1-269.89Типовой проект 903-1-269.89Типовой проект 903-1-269.89Типовой проект 903-1-269.89Типовой проект 903-1-269.89Типовой проект 903-1-269.89Типовой проект 903-1-269.89Типовой проект 903-1-269.89Типовой проект 903-1-269.89Типовой проект 903-1-269.89Типовой проект 903-1-269.89Типовой проект 903-1-269.89Типовой проект 903-1-269.89Типовой проект 903-1-269.89Типовой проект 903-1-269.89Типовой проект 903-1-269.89Типовой проект 903-1-269.89Типовой проект 903-1-269.89Типовой проект 903-1-269.89Типовой проект 903-1-269.89Типовой проект 903-1-269.89Типовой проект 903-1-269.89Типовой проект 903-1-269.89Типовой проект 903-1-269.89Типовой проект 903-1-269.89Типовой проект 903-1-269.89Типовой проект 903-1-269.89Типовой проект 903-1-269.89Типовой проект 903-1-269.89Типовой проект 903-1-269.89Типовой проект 903-1-269.89Типовой проект 903-1-269.89Типовой проект 903-1-269.89Типовой проект 903-1-269.89Типовой проект 903-1-269.89Типовой проект 903-1-269.89Типовой проект 903-1-269.89Типовой проект 903-1-269.89Типовой проект 903-1-269.89Типовой проект 903-1-269.89Типовой проект 903-1-269.89Типовой проект 903-1-269.89

© 2013 Ёшкин Кот :-) Карта сайта