Информационная система
«Ёшкин Кот»

Скачать базу одним архивом
Скачать обновления
История создания базы
Карта сайта

Скачать Типовой проект 903-1-269.89 Альбом 2. Тепломеханические решения. Газоснабжение

Дата актуализации: 10.08.2017

Типовой проект 903-1-269.89

Альбом 2. Тепломеханические решения. Газоснабжение

Обозначение: Типовой проект 903-1-269.89
Обозначение англ: 903-1-269.89
Статус:не определен законодательством
Название рус.:Альбом 2. Тепломеханические решения. Газоснабжение
Дата добавления в базу:01.09.2013
Дата актуализации:05.05.2017
Дата введения:04.04.1989
Оглавление:Содержание альбома
Чертежи основного комплекта марки ТМ
   Общие данные
   Компоновка оборудования. План
   Компоновка оборудования. Разрезы 1-1, 2-2, 3-3
   Газоходы котлоагрегата
   Газоходы сборные
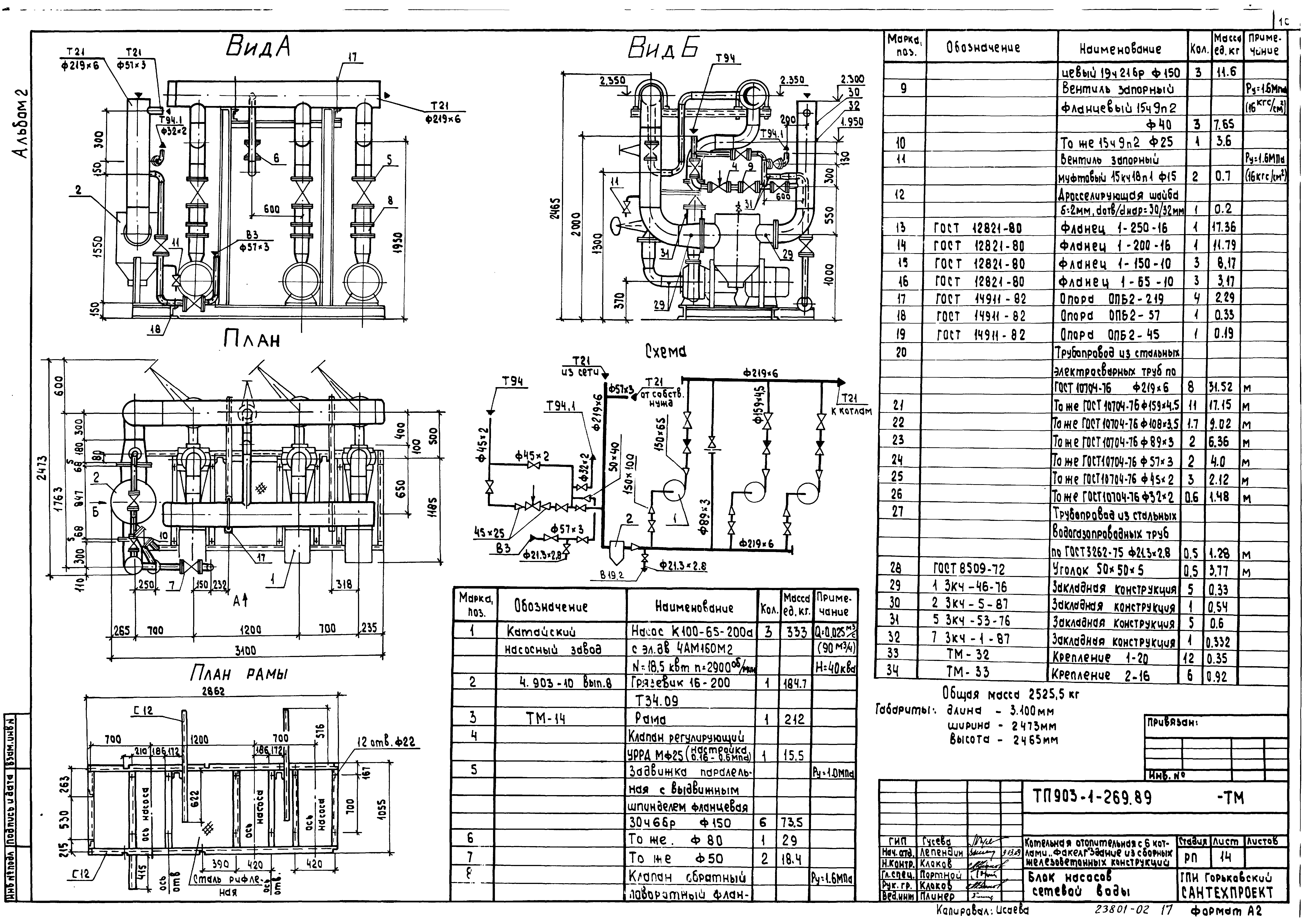
   Блок насосов сетевой воды
   Блок приготовления горячей воды. План. Виды А, Б, В, Г. Схема
   Блок приготовления горячей воды. Рама. Спецификация
   Блок насосов горячего водоснабжения
   Блок циркуляции горячей воды
   Блок силикатной обработки воды
   Бак-аккумулятор V = 75 куб. м
   Схема трубопроводов
   Трубопроводы котельного зала. План. Разрезы 1-1, 2-2. Сечения а-а
   Трубопроводы котельного зала. Разрезы 3-3, 4-4, 5-5, 6-6
   Трубопроводы насосной. План. Разрезы 1-1, 2-2, 3-3, 4-4, 5-5. Сечения а-а, б-б, в-в
   Трубопроводы наружные. План. Разрезы 1-1, 2-2
   Трубопроводы наружные. Разрезы 3-3, 4-4, 5-5, 6-6, 7-7. Сечения а-а, б-б
   Спецификация трубопроводов
   Крепление 1
   Крепление 2
Чертежи основного комплекта марки ТМН
   Содержание
   Теплоизоляция бака-аккумулятора
   Теплоизоляция газоходов котлоагрегата, включая дымосос и калориферы
   Теплоизоляция бака умягченной воды
   Общая теплоизоляция четырех трубопроводов
Чертежи основного комплекта марки ГС
   Общие данные
   Аксонометрическая схема трубопроводов
   Трубопроводы. План. Разрезы 1-1, 2-2, 3-3, 4-4
   Трубопроводы. Спецификация
Разработан: Горьковский Сантехпроект
Утверждён:04.04.1989 Госстрой СССР (Государственный комитет Совета Министров СССР по делам строительства) (USSR Gosstroy 13)
Издан: ЦИТП Госстроя СССР (CITP, Gosstroy (USSR) 1989 г. )
Расположен в:Техническая документация Строительство Справочные документы Типовые строительные конструкции, изделия и узлы Общероссийский строительный каталог Промышленные предприятия, здания и сооружения Здания и сооружения санитарно-технические Теплоснабжение Котельные установки Закрытые системы теплоснабжения Топливо - газ
Заменяет собой:
Типовой проект 903-1-269.89Типовой проект 903-1-269.89Типовой проект 903-1-269.89Типовой проект 903-1-269.89Типовой проект 903-1-269.89Типовой проект 903-1-269.89Типовой проект 903-1-269.89Типовой проект 903-1-269.89Типовой проект 903-1-269.89Типовой проект 903-1-269.89Типовой проект 903-1-269.89Типовой проект 903-1-269.89Типовой проект 903-1-269.89Типовой проект 903-1-269.89Типовой проект 903-1-269.89Типовой проект 903-1-269.89Типовой проект 903-1-269.89Типовой проект 903-1-269.89Типовой проект 903-1-269.89Типовой проект 903-1-269.89Типовой проект 903-1-269.89Типовой проект 903-1-269.89Типовой проект 903-1-269.89Типовой проект 903-1-269.89Типовой проект 903-1-269.89Типовой проект 903-1-269.89Типовой проект 903-1-269.89Типовой проект 903-1-269.89Типовой проект 903-1-269.89Типовой проект 903-1-269.89Типовой проект 903-1-269.89Типовой проект 903-1-269.89Типовой проект 903-1-269.89Типовой проект 903-1-269.89Типовой проект 903-1-269.89Типовой проект 903-1-269.89Типовой проект 903-1-269.89Типовой проект 903-1-269.89Типовой проект 903-1-269.89Типовой проект 903-1-269.89Типовой проект 903-1-269.89

© 2013 Ёшкин Кот :-) Карта сайта