Скачать Типовой проект 503-3-27.90 Альбом 4. Силовое электрооборудование. Электрическое освещение. Связь и сигнализация. Автоматическая пожарная сигнализацияДата актуализации: 10.08.2017 Типовой проект 503-3-27.90
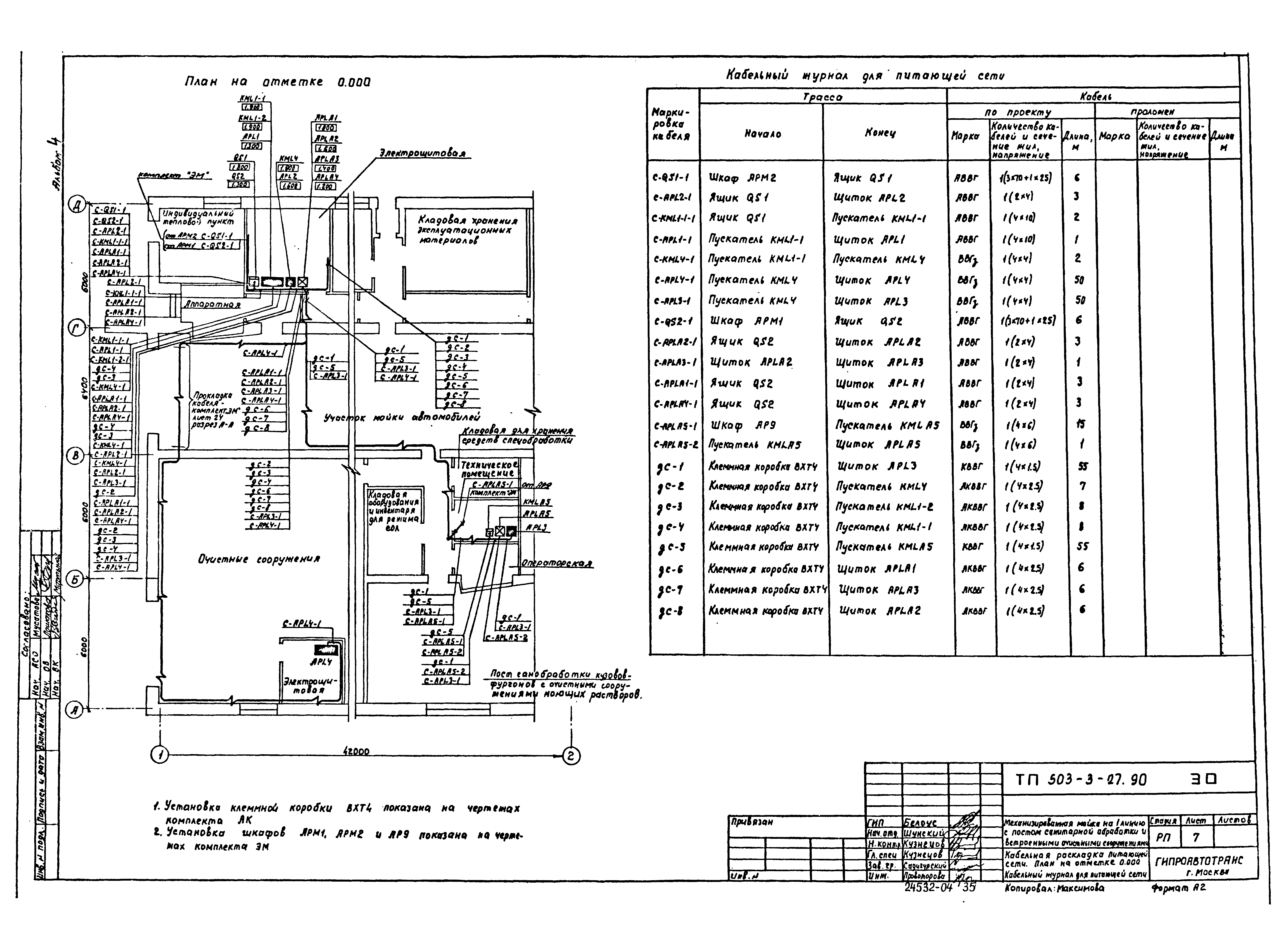
Альбом 4. Силовое электрооборудование. Электрическое освещение. Связь и сигнализация. Автоматическая пожарная сигнализацияОбозначение: | Типовой проект 503-3-27.90 | Обозначение англ: | 503-3-27.90 | Статус: | не определен законодательством | Название рус.: | Альбом 4. Силовое электрооборудование. Электрическое освещение. Связь и сигнализация. Автоматическая пожарная сигнализация | Дата добавления в базу: | 01.09.2013 | Дата актуализации: | 05.05.2017 | Дата введения: | 22.10.1990 | Оглавление: | Содержание альбома Силовое электрооборудование Общие данные Питающая и распределительная сеть 380/220 В. Шкаф АРМ-1. Схема принципиальная однолинейная Питающая и распределительная сеть 380/220 В. Шкаф АРМ-2. Схема принципиальная однолинейная Распределительная сеть 380/220 В. Шкаф АР1. Схема принципиальная однолинейная Распределительная сеть 380/220 В. Шкаф АР2. Схема принципиальная однолинейная Распределительная сеть 380/220 В. Шкаф АР3. Схема принципиальная однолинейная Распределительная сеть 380/220 В. Шкаф АР4. Схема принципиальная однолинейная Распределительная сеть 380/220 В. Шкафы АР5, АР6. Схема принципиальная однолинейная Распределительная сеть 380/220 В. Шкаф АР7. Схема принципиальная однолинейная Распределительная сеть 380/220 В. Шкафы АР8, АР9. Схема принципиальная однолинейная Блокировка работы оборудования с системой контроля газовой среды. Схема электрическая принципиальная Вентилятор М76. Схема принципиальная управления. Цепи управления. Схема подключения Ворота М3, М4 (М17, М18). Схема принципиальная управления Вентиляторы М67 - М74; М79 - М84. Схема принципиальная управления Вентиляторы М77, М78. Схема принципиальная управления. Цепи управления. Схема подключения Ворота М3, М4 (М17, М18). Цепи управления. Схема подключения Вентиляторы М67 - М74; М79 - М84. Цепи управления. Схема подключения Кабельно-трубный журнал Кабельная раскладка. Венткамера 1. Планы на отм. 0.150 и на отм. 6.800. Плита проходная Кабельная раскладка. План на отм. 0.000 Кабельная раскладка. Очистные сооружения. План на отм. 0.000 Кабельная раскладка. Очистные сооружения. План на отм. 3.000. Разрезы Б-Б, Г-Г Кабельная раскладка. Венткамера 2. План на отм. 3.000. Разрезы А-А, В-В План расположения лотков. Разрезы Молниезащита. План и разрез Электрическое освещение Общие данные План расположения на отм. 0.000 между осями А - В; 1 - 2 План расположения на отм. 0.000 между осями В - Д; 1 - 2. Фрагмент 1 плана План расположения на отм. 3.000 Принципиальная схема питающей сети Схемы принципиальные управления. Схема подключения Кабельная раскладка питающей сети. План на отм. 0.000. Кабельный журнал для питающей сети Связь и сигнализация Общие данные План расположения сетей на отм. 0.000 между осями 1 - 2; А - Д Автоматическая пожарная сигнализация Общие данные План на отм. 0.000. Расстановка оборудования и разводка кабельной сети Схема электрическая принципиальная включения ПС1. Кабельный журнал | Разработан: | Гипроавтотранс
| Утверждён: | 22.10.1990 Минавтотранс РСФСР (Russian Federation Minavtotrans 7)
| Издан: | ЦИТП Госстроя СССР (CITP, Gosstroy (USSR) 1990 г. )
| Расположен в: |
|
                                      
|