Информационная система
«Ёшкин Кот»

Скачать базу одним архивом
Скачать обновления
История создания базы
Карта сайта

Скачать Типовой проект 409-23-56.87 Альбом 8. Обеспыливание и аспирация

Дата актуализации: 10.08.2017

Типовой проект 409-23-56.87

Альбом 8. Обеспыливание и аспирация

Обозначение: Типовой проект 409-23-56.87
Обозначение англ: 409-23-56.87
Статус:не определен законодательством
Название рус.:Альбом 8. Обеспыливание и аспирация
Дата добавления в базу:01.09.2013
Дата актуализации:05.05.2017
Дата введения:04.12.1985
Оглавление:Содержание альбома
Пояснительная записка
Общие данные
Характеристика работы систем аспирации и обеспыливания
Санитарно-защитная зона и предложения по ПДВ
Спецификация
Схема аспирации и обеспыливания
План приямков
План на отм. 0.000
План площадок
Разрезы 1-1, 5-5
Разрезы 2-2, 6-6
Разрезы 3-3, 7-7
Разрез 4-4
План площадок. Сечение А-А (АС-1)
Сечение Б-Б (АС-1)
План площадок. Сечение В-В (АС-2)
Сечения Г-Г, Д-Д (АС-2)
План площадок. Сечение Е-Е (АС-3)
Сечение Ж-Ж. Сечение И-И. Сечение К-К (АС-3)
План площадок (АС-4)
Сечения Л-Л, Н-Н (АС-4)
Сечения М-М, П-П (АС-4)
План площадок (АС-5)
Сечение Р-Р (АС-5)
Сечения Т-Т, С-С (АС-5)
Сечения У-У, Ф-Ф (АС-5)
План площадок (АС-6)
Сечения Ц-Ц, Ш-Ш (АС-6)
Сечение Ч-Ч (АС-6)
План площадок. Сечение Э-Э (АС-7)
Сечение Ю-Ю. Сечение Я-Я (АС-7)
План площадок. Сечение А1-А1 (АС-8)
Сечение Б1-Б1. Сечение В1-В1 (АС-8)
План площадок (АС-9)
Сечение Г1-Г1. Сечение Д1-Д1 (АС-9)
Сечение Е1-Е1 (АС-9)
План площадок (АС-10)
Сечение Ж1-Ж1 (АС-10)
Сечения Л1-Л1, К1-К1, И1-И1 (АС-10)
План площадок (АС-11)
Сечение М1-М1 (АС-11)
Сечения Р1-Р1, П1-П1, Н1-Н1 (АС-11)
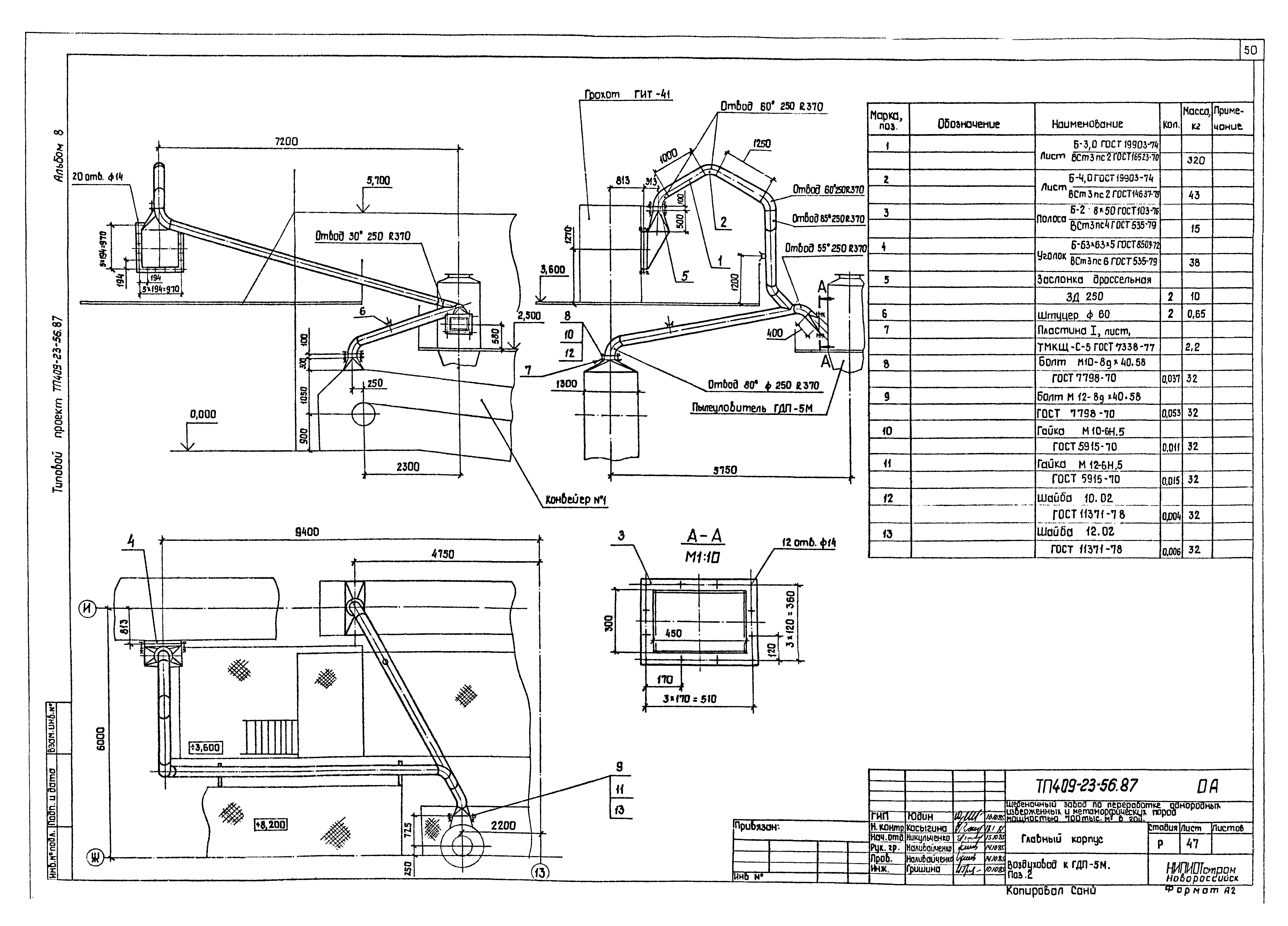
Воздуховод к ГДП-5М. Поз. 2
Воздуховод к дымососу ДН-9. Поз. 3
Воздуховод в атмосферу. Поз. 4
Воздуховод к ГДП-10М. Поз. 6
Воздуховод к дымососу ДН-9. Поз. 7
Воздуховод в атмосферу. Поз. 8
Воздуховод к пылеуловителю ГДП-10М. Поз. 10
Воздуховод к пылеуловителю ГДП-5М. Поз. 11
Воздуховод к дымососу ДН-10. Поз. 12
Воздуховод в атмосферу. Поз. 13
Воздуховод от дробилки к коллектору БП-3. Поз. 17
Воздуховод к коллектору БП-3. Поз. 18
Воздуховод к СИОТ №6. Поз. 19
Воздуховод к ГДП-10М. Поз. 20
Воздуховод к дымососу ДН-11,2. Поз. 21
Рама под коллектор БП-3. Поз. 22
Воздуховод к коллектору БП-3. Поз. 23
Воздуховод к коллектору БП-3. Поз. 24
Воздуховод к коллектору БП-3. Поз. 25
Воздуховод к коллектору БП-3. Поз. 26
Воздуховод к промывателю СИОТ №6. Поз. 27
Воздуховод к пылеуловителям ГДП-10М. Поз. 28
Воздуховод к дымососу ДН-11,2. Поз. 29
Воздуховод в атмосферу. Поз. 30
Воздуховод к пылеуловителю ГДП-5М. Поз. 32
Воздуховод к дымососу ДН-9. Поз. 33
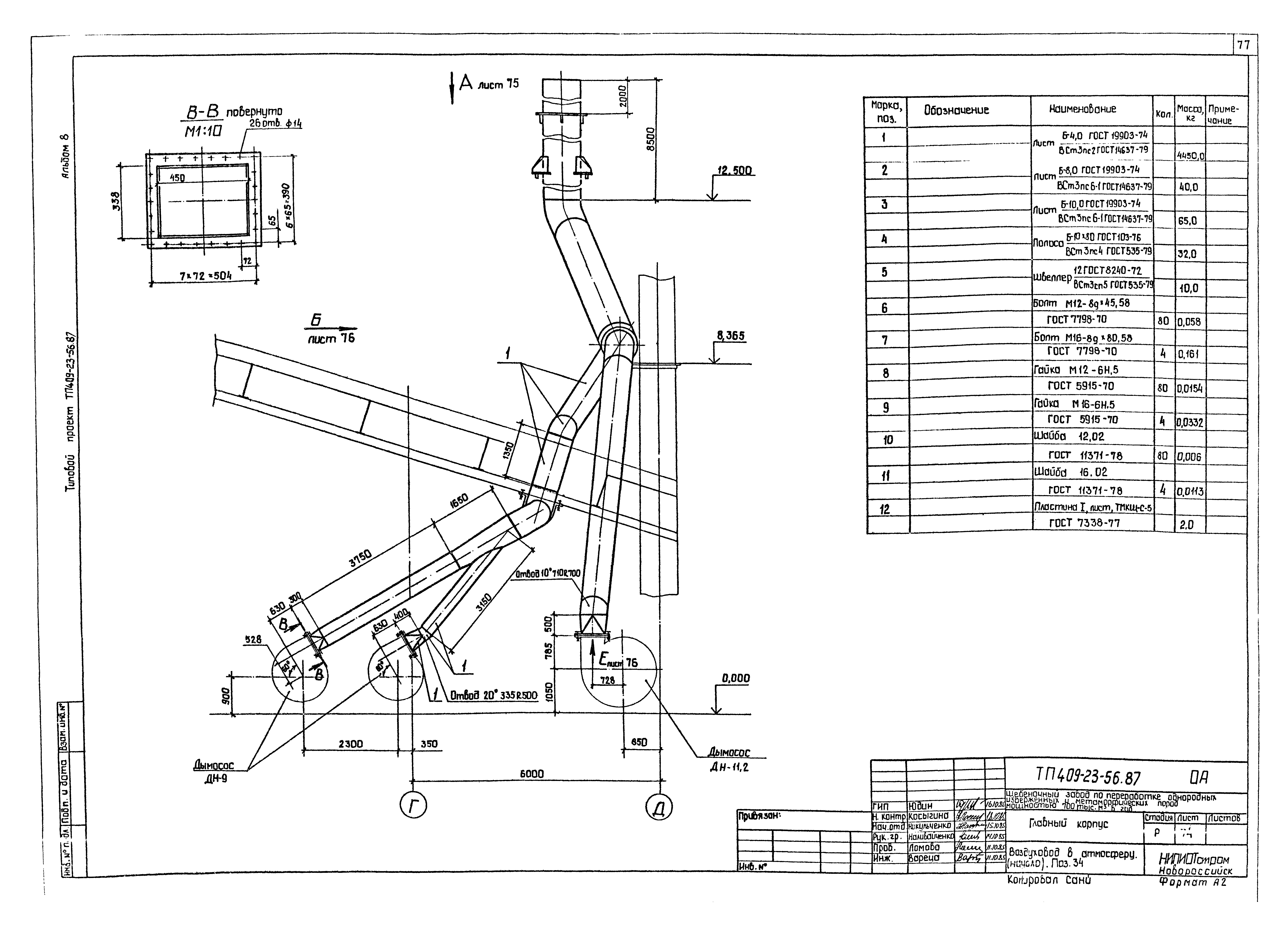
Воздуховод в атмосферу. Поз. 34
Воздуховод к пылеуловителю ГДП-5М. Поз. 35
Воздуховод к дымососу ДН-9. Поз. 36
Воздуховод в атмосферу. Поз. 37
Воздуховод к пылеуловителю ГДП-10М. Поз. 39
Воздуховод к дымососу ДН-9. Поз. 40
Воздуховод к пылеуловителю ГДП-10М. Поз. 41
Воздуховод к дымососу ДН-9. Поз. 42
Воздуховод от грохота к коллектору ВК-3. Поз. 46
Воздуховод от грохота к коллектору ВК-3. Поз. 47
Воздуховод от конвейера №14 к коллектору ВК-3. Поз. 48
Воздуховод от конвейеров №15, 16 к коллектору ВК-3. Поз. 49
Воздуховод к пылеуловителям ГДП-10. Поз. 50
Воздуховод к дымососу ДН-10. Поз. 51
Воздуховод в атмосферу. Поз. 52
Течка от коллектора ВК-3 на конвейер №15. Поз. 53
Опора под коллектор ВК-3. Поз. 54
Воздуховод от грохота к коллектору ВК-3. Поз. 55
Воздуховод от грохота к коллектору ВК-3. Поз. 56
Воздуховод от конвейера №14 к коллектору ВК-3. Поз. 57
Воздуховод от конвейера №15 к коллектору ВК-3. Поз. 58
Воздуховод от конвейера №16 к коллектору ВК-3. Поз. 59
Воздуховод к пылеуловителям ГДП-10М. Поз. 60
Воздуховод к дымососу ДН-10. Поз. 61
Воронка. Поз. 78
Рама под привод дымососа ДН-9. Поз. 79
Рама под привод дымососа ДН-10. Поз. 80
Рама под привод дымососа ДН-11,2. Поз. 81
Разработан: Союзгипронеруд
Утверждён:19.07.1982 Минстройматериалов СССР (USSR Minstroymaterialov 28-154/81)
Расположен в:Техническая документация Строительство Справочные документы Типовые строительные конструкции, изделия и узлы Общероссийский строительный каталог Промышленные предприятия, здания и сооружения Предприятия, здания и сооружения промышленности и электроэнергетики Строительная индустрия и промышленность строительных материалов Производство строительных материалов и изделий Производство тяжелых заполнителей
Типовой проект 409-23-56.87Типовой проект 409-23-56.87Типовой проект 409-23-56.87Типовой проект 409-23-56.87Типовой проект 409-23-56.87Типовой проект 409-23-56.87Типовой проект 409-23-56.87Типовой проект 409-23-56.87Типовой проект 409-23-56.87Типовой проект 409-23-56.87Типовой проект 409-23-56.87Типовой проект 409-23-56.87Типовой проект 409-23-56.87Типовой проект 409-23-56.87Типовой проект 409-23-56.87Типовой проект 409-23-56.87Типовой проект 409-23-56.87Типовой проект 409-23-56.87Типовой проект 409-23-56.87Типовой проект 409-23-56.87Типовой проект 409-23-56.87Типовой проект 409-23-56.87Типовой проект 409-23-56.87Типовой проект 409-23-56.87Типовой проект 409-23-56.87Типовой проект 409-23-56.87Типовой проект 409-23-56.87Типовой проект 409-23-56.87Типовой проект 409-23-56.87Типовой проект 409-23-56.87Типовой проект 409-23-56.87Типовой проект 409-23-56.87Типовой проект 409-23-56.87Типовой проект 409-23-56.87Типовой проект 409-23-56.87Типовой проект 409-23-56.87Типовой проект 409-23-56.87Типовой проект 409-23-56.87Типовой проект 409-23-56.87Типовой проект 409-23-56.87Типовой проект 409-23-56.87Типовой проект 409-23-56.87Типовой проект 409-23-56.87Типовой проект 409-23-56.87Типовой проект 409-23-56.87Типовой проект 409-23-56.87Типовой проект 409-23-56.87Типовой проект 409-23-56.87Типовой проект 409-23-56.87Типовой проект 409-23-56.87Типовой проект 409-23-56.87Типовой проект 409-23-56.87Типовой проект 409-23-56.87Типовой проект 409-23-56.87Типовой проект 409-23-56.87Типовой проект 409-23-56.87Типовой проект 409-23-56.87Типовой проект 409-23-56.87Типовой проект 409-23-56.87Типовой проект 409-23-56.87Типовой проект 409-23-56.87Типовой проект 409-23-56.87Типовой проект 409-23-56.87Типовой проект 409-23-56.87Типовой проект 409-23-56.87Типовой проект 409-23-56.87Типовой проект 409-23-56.87Типовой проект 409-23-56.87Типовой проект 409-23-56.87Типовой проект 409-23-56.87Типовой проект 409-23-56.87Типовой проект 409-23-56.87Типовой проект 409-23-56.87Типовой проект 409-23-56.87Типовой проект 409-23-56.87Типовой проект 409-23-56.87Типовой проект 409-23-56.87Типовой проект 409-23-56.87Типовой проект 409-23-56.87Типовой проект 409-23-56.87Типовой проект 409-23-56.87Типовой проект 409-23-56.87Типовой проект 409-23-56.87Типовой проект 409-23-56.87Типовой проект 409-23-56.87Типовой проект 409-23-56.87Типовой проект 409-23-56.87Типовой проект 409-23-56.87Типовой проект 409-23-56.87Типовой проект 409-23-56.87Типовой проект 409-23-56.87Типовой проект 409-23-56.87Типовой проект 409-23-56.87Типовой проект 409-23-56.87Типовой проект 409-23-56.87Типовой проект 409-23-56.87Типовой проект 409-23-56.87Типовой проект 409-23-56.87Типовой проект 409-23-56.87Типовой проект 409-23-56.87Типовой проект 409-23-56.87Типовой проект 409-23-56.87Типовой проект 409-23-56.87Типовой проект 409-23-56.87Типовой проект 409-23-56.87Типовой проект 409-23-56.87Типовой проект 409-23-56.87Типовой проект 409-23-56.87

© 2013 Ёшкин Кот :-) Карта сайта