Информационная система
«Ёшкин Кот»

Скачать базу одним архивом
Скачать обновления
История создания базы
Карта сайта

Скачать Типовой проект 409-23-56.87 Альбом 5. Конструкции железобетонные

Дата актуализации: 10.08.2017

Типовой проект 409-23-56.87

Альбом 5. Конструкции железобетонные

Обозначение: Типовой проект 409-23-56.87
Обозначение англ: 409-23-56.87
Статус:не определен законодательством
Название рус.:Альбом 5. Конструкции железобетонные
Дата добавления в базу:01.09.2013
Дата актуализации:05.05.2017
Дата введения:04.12.1985
Оглавление:Канал КЛ1
Канал КЛ2, КЛ3
Канал КЛ2, КЛ3. Разрезы 1-1 - 10-10
Каналы КЛ4, КЛ5, КЛ6
Канал КЛ7
Каналы КЛ8 - КЛ10
Каналы. Участки монолитные Ум1 - Ум3
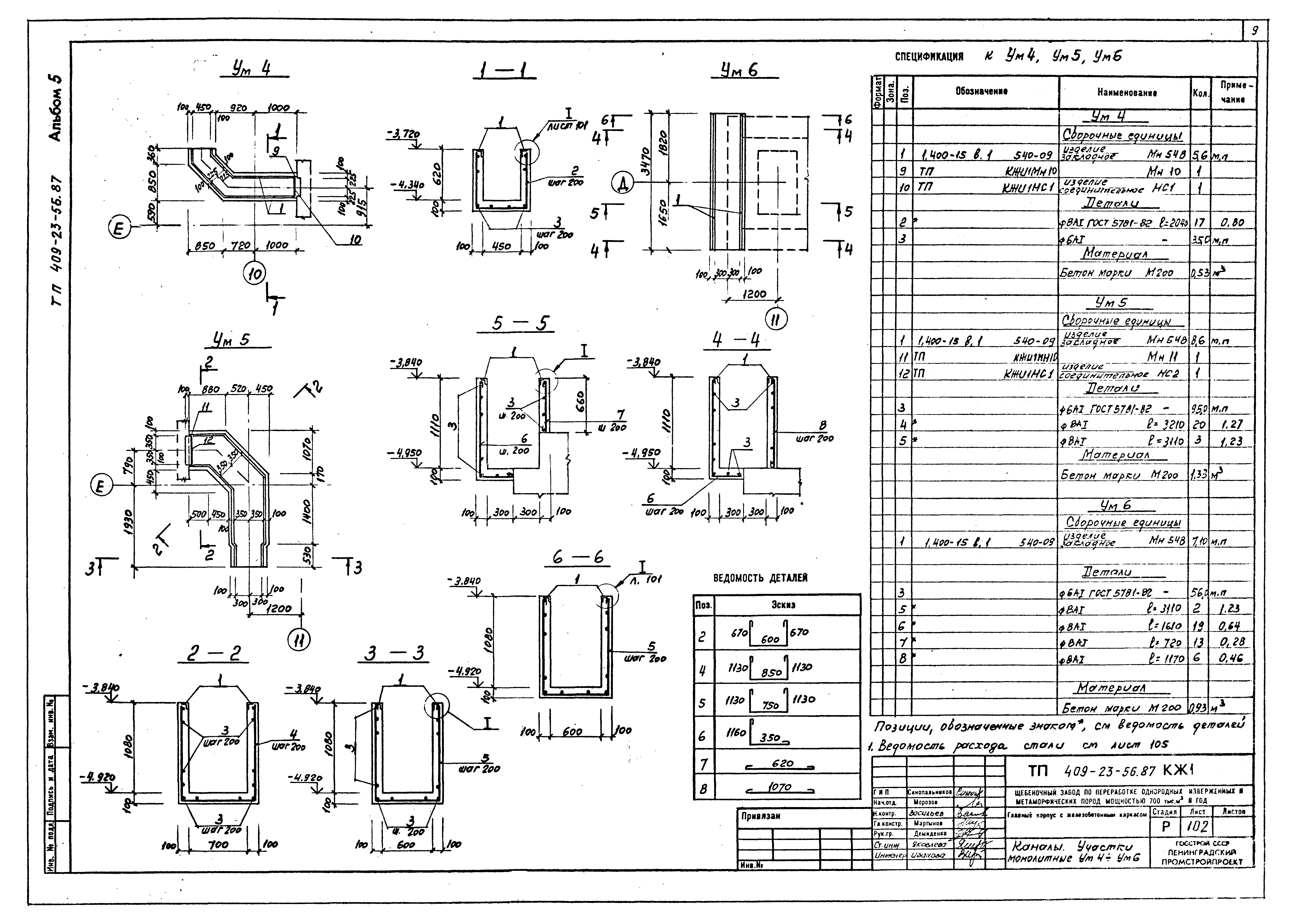
Каналы. Участки монолитные Ум4 - Ум6
Каналы. Участки монолитные Ум7, Ум8, Ум10
Каналы. Участки монолитные Ум11, Ум12
Каналы. Участки монолитные Ум13, Ум14
Фундамент под оборудование ФОм1. План на отм. 1.050. Разрезы 1-1, 13-13. Узел I, II
Фундамент под оборудование ФОм1. Разрезы 2-2 - 5-5. Узел III
Фундамент под оборудование ФОм1. Раскладки арматуры на отм. 0.000; 1.050. Разрез 6-6
Фундамент под оборудование ФОм1. Разрезы 7-7 - 11-11. Узлы IV - VII
Фундамент под оборудование ФОм1. Раскладка арматуры на отм. - 5.000; - 5.600. План выпусков на отм. - 5.000. Разрез 12-12
Фундамент под оборудование ФОм1. Разрезы 14-14 - 17-17. Узел VIII. Ведомость деталей
Фундамент под оборудование ФОм1. Разрезы 18-18 - 21-21
Фундамент под оборудование ФОм1. Спецификация элементов на фундамент
Фундамент под оборудование ФОм2. Планы на отм. 0.290; 0.150; 1.240. Вид А. Разрез 1-1
Фундамент под оборудование ФОм2. Разрезы 2-2 - 6-6. Узлы I - IV
Фундамент под оборудование ФОм2. План на отм. - 3.700. Разрезы 7-7 - 9-9; 23-23; 24-24
Фундамент под оборудование ФОм2. Раскладки арматуры на отм. 0.090; - 0.600; 0.290; - 0.150; 1.240. Разрез 10-10
Фундамент под оборудование ФОм2. Раскладки арматуры на отм. - 3.700; - 4.500. План выпусков на отм. - 3.700
Фундамент под оборудование ФОм2. Разрезы 11-11 - 13-13
Фундамент под оборудование ФОм2. Разрезы 14-14 - 16-16. Узел VI
Фундамент под оборудование ФОм2. Разрезы 17-17, 18-18, 25-25, 26-26
Фундамент под оборудование ФОм2. Разрезы 19-19 - 22-22
Фундамент под оборудование ФОм2. Ведомость деталей, ведомость расхода стали
Фундамент под оборудование ФОм2. Спецификация элементов на фундамент
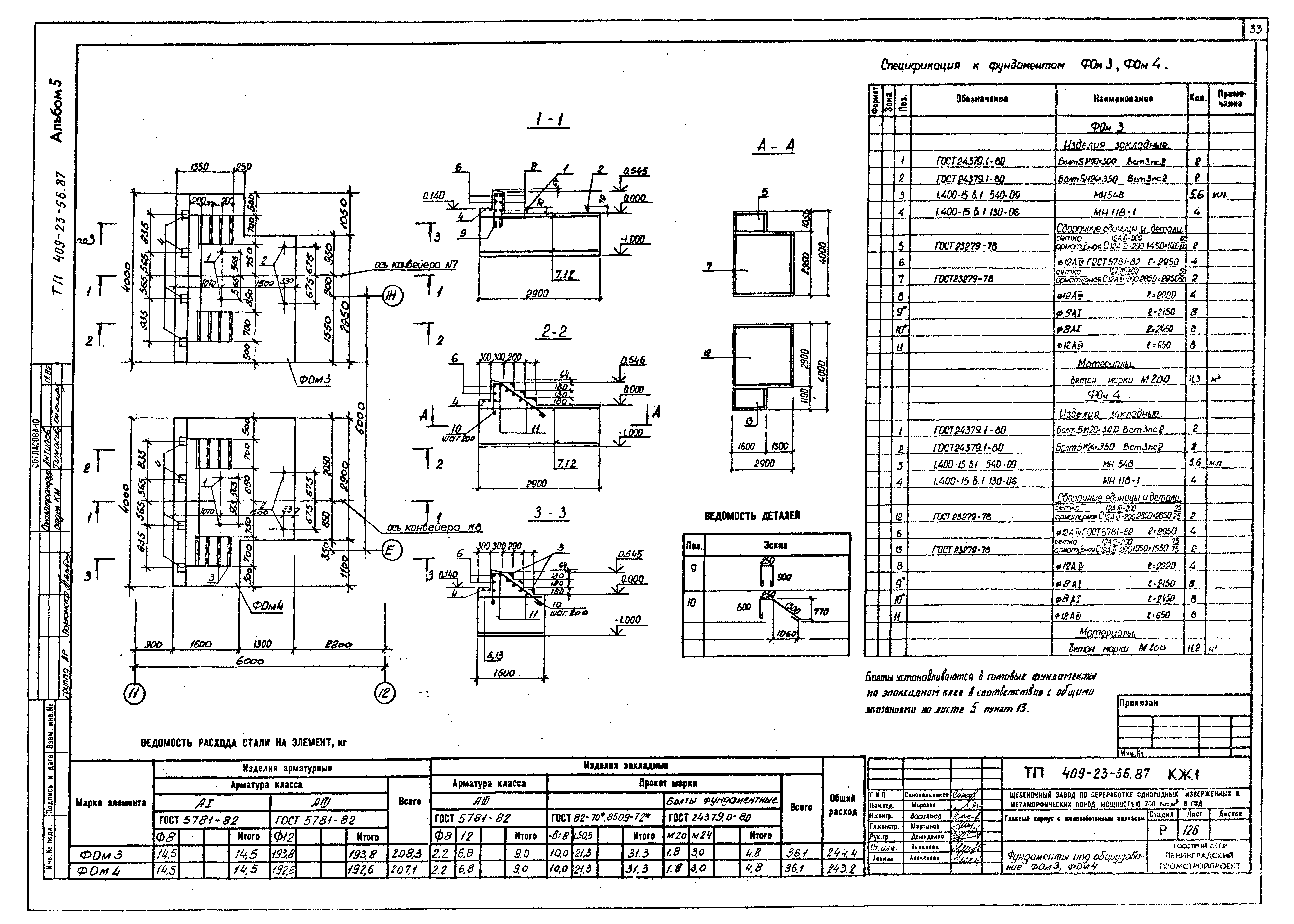
Фундаменты под оборудование ФОм3, ФОм4
Фундаменты под оборудование ФОм5, ФОм6
Фундаменты под оборудование ФОм7, ФОм41
Фундаменты под оборудование ФОм8, ФОм9
Фундаменты под оборудование ФОм10 - ФОм14
Фундаменты под оборудование ФОм15 - ФОм19
Фундаменты под оборудование ФОм20 - ФОм24
Фундаменты под оборудование ФОм25 - ФОм29
Фундаменты под оборудование ФОм30 - ФОм34
Фундаменты под оборудование ФОм35 - ФОм37
Передаточная тележка. Фундаменты под оборудование ФОм38, ФОм39
Передаточная тележка. Фундаменты под оборудование ФОм38, ФОм39. Армирование
РКм1. Перекрытие на отм. -0.150 в осях 1 - 4
РКм1. Схема расположения плит перекрытия на отм. - 0.270. Деталь 1
РКм1. Плита монолитная Пм1. Армирование
Перекрытие Пм2 на отм. - 0.150 в осях 9 - 12
Перекрытие Пм2. Узлы 1 - 3; 23
Перекрытие Пм2. Узлы 4 - 7; 22
Перекрытие Пм2. Узлы 8 - 13; 25
Перекрытие Пм2. Узлы 14 - 21; 24
Перекрытие Пм2. Армирование
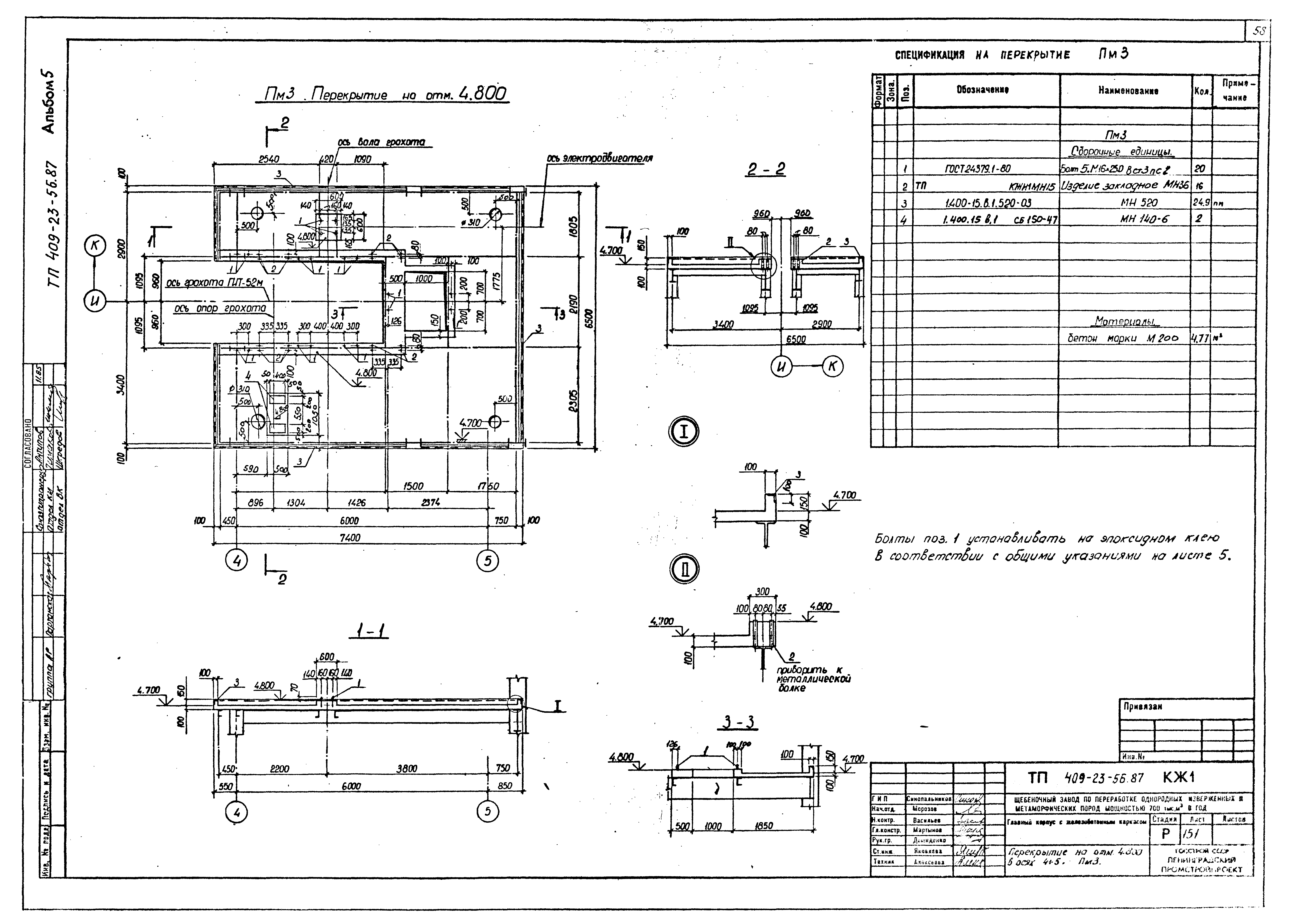
Перекрытие Пм3 на отм. 4.800 в осях 4 - 5
Перекрытие Пм3. Армирование
Перекрытие Пм4 на отм. 7.200 по оси 5
Перекрытие Пм5 на отм. 6.000 в осях 4 - 5
Перекрытие Пм5. Разрезы 1-1 - 3-3
Перекрытие Пм6. Разрезы 4-4 - 6-6
Перекрытие Пм5. Армирование
Перекрытие Пм6 на отм. 8.400 у оси 5
Перекрытие Пм7 на отм. 3.600 по оси 12
Перекрытие Пм8 на отм. 5.700 в осях 12 - 13
Перекрытие Пм9 на отм. 2.400 в осях 11 - 12
Перекрытие Пм9. Армирование
Перекрытие Пм10 на отм. 4.200 в осях 9 - 10
Перекрытие Пм10. Армирование
Перекрытие Пм11 на отм. 7.800 в осях 9 - 10
Перекрытия Пм8, Пм11. Армирование
Перекрытие Пм12 на отм. 4.200 по оси 12
Перекрытие Пм13 на отм. 7.400 по оси 12
Схема расположения элементов эстакады №2
Схема расположения элементов эстакады №5
Схемы расположения элементов эстакад №3, №6, №10
Схемы расположения элементов эстакад №7, №8
Схемы расположения элементов эстакад №11, №12
Эстакады. Участки монолитные Ум1 - Ум4
ПСУ. Схемы расположения элементов каркаса
ПСУ. Схемы расположения балок, опорных столбиков на отм. 0.800 и 4.900
ПСУ. Схемы расположения балок, опорных столбиков на отм. 0.800 и 4.900. Узлы 1 - 5
ПСУ. Участки монолитные Ум1 - Ум5
Схема расположения элементов вентшахты. Плиты покрытия тамбуров Пм14, Пм15
Схема расположения элементов перекрытия на отм. 3.600 в осях А - Г
Венткамера ВК1
Венткамера ВК2
Схема расположения колонн, связей, подкрановых балок
Схемы расположения стропильных и подстропильных ферм и плит покрытия
Схемы расположения элементов каркаса здания. Разрезы 1-1 - 4-4
Схемы расположения элементов каркаса здания. Разрез 5-5. Узлы
Схемы расположения стеновых панелей по осям А и К
Схемы расположения стеновых панелей по осям 1 и 13. Фрагменты 1, 2
Схемы расположения стеновых панелей. Фрагменты 3 - 5. Узлы I - IV
Спецификация элементов к схемам расположения стеновых панелей, перегородок
Разработан: Союзгипронеруд
Утверждён:19.07.1982 Минстройматериалов СССР (USSR Minstroymaterialov 28-154/81)
Расположен в:Техническая документация Строительство Справочные документы Типовые строительные конструкции, изделия и узлы Общероссийский строительный каталог Промышленные предприятия, здания и сооружения Предприятия, здания и сооружения промышленности и электроэнергетики Строительная индустрия и промышленность строительных материалов Производство строительных материалов и изделий Производство тяжелых заполнителей
Типовой проект 409-23-56.87Типовой проект 409-23-56.87Типовой проект 409-23-56.87Типовой проект 409-23-56.87Типовой проект 409-23-56.87Типовой проект 409-23-56.87Типовой проект 409-23-56.87Типовой проект 409-23-56.87Типовой проект 409-23-56.87Типовой проект 409-23-56.87Типовой проект 409-23-56.87Типовой проект 409-23-56.87Типовой проект 409-23-56.87Типовой проект 409-23-56.87Типовой проект 409-23-56.87Типовой проект 409-23-56.87Типовой проект 409-23-56.87Типовой проект 409-23-56.87Типовой проект 409-23-56.87Типовой проект 409-23-56.87Типовой проект 409-23-56.87Типовой проект 409-23-56.87Типовой проект 409-23-56.87Типовой проект 409-23-56.87Типовой проект 409-23-56.87Типовой проект 409-23-56.87Типовой проект 409-23-56.87Типовой проект 409-23-56.87Типовой проект 409-23-56.87Типовой проект 409-23-56.87Типовой проект 409-23-56.87Типовой проект 409-23-56.87Типовой проект 409-23-56.87Типовой проект 409-23-56.87Типовой проект 409-23-56.87Типовой проект 409-23-56.87Типовой проект 409-23-56.87Типовой проект 409-23-56.87Типовой проект 409-23-56.87Типовой проект 409-23-56.87Типовой проект 409-23-56.87Типовой проект 409-23-56.87Типовой проект 409-23-56.87Типовой проект 409-23-56.87Типовой проект 409-23-56.87Типовой проект 409-23-56.87Типовой проект 409-23-56.87Типовой проект 409-23-56.87Типовой проект 409-23-56.87Типовой проект 409-23-56.87Типовой проект 409-23-56.87Типовой проект 409-23-56.87Типовой проект 409-23-56.87Типовой проект 409-23-56.87Типовой проект 409-23-56.87Типовой проект 409-23-56.87Типовой проект 409-23-56.87Типовой проект 409-23-56.87Типовой проект 409-23-56.87Типовой проект 409-23-56.87Типовой проект 409-23-56.87Типовой проект 409-23-56.87Типовой проект 409-23-56.87Типовой проект 409-23-56.87Типовой проект 409-23-56.87Типовой проект 409-23-56.87Типовой проект 409-23-56.87Типовой проект 409-23-56.87Типовой проект 409-23-56.87Типовой проект 409-23-56.87Типовой проект 409-23-56.87Типовой проект 409-23-56.87Типовой проект 409-23-56.87Типовой проект 409-23-56.87Типовой проект 409-23-56.87Типовой проект 409-23-56.87Типовой проект 409-23-56.87Типовой проект 409-23-56.87Типовой проект 409-23-56.87Типовой проект 409-23-56.87Типовой проект 409-23-56.87Типовой проект 409-23-56.87Типовой проект 409-23-56.87Типовой проект 409-23-56.87Типовой проект 409-23-56.87Типовой проект 409-23-56.87Типовой проект 409-23-56.87Типовой проект 409-23-56.87Типовой проект 409-23-56.87Типовой проект 409-23-56.87Типовой проект 409-23-56.87Типовой проект 409-23-56.87Типовой проект 409-23-56.87Типовой проект 409-23-56.87Типовой проект 409-23-56.87Типовой проект 409-23-56.87

© 2013 Ёшкин Кот :-) Карта сайта