Скачать Типовой проект Серия 85 85-УАС.1-4. Узлы архитектурно-строительных решенийДата актуализации: 10.08.2017 Типовой проект Серия 85
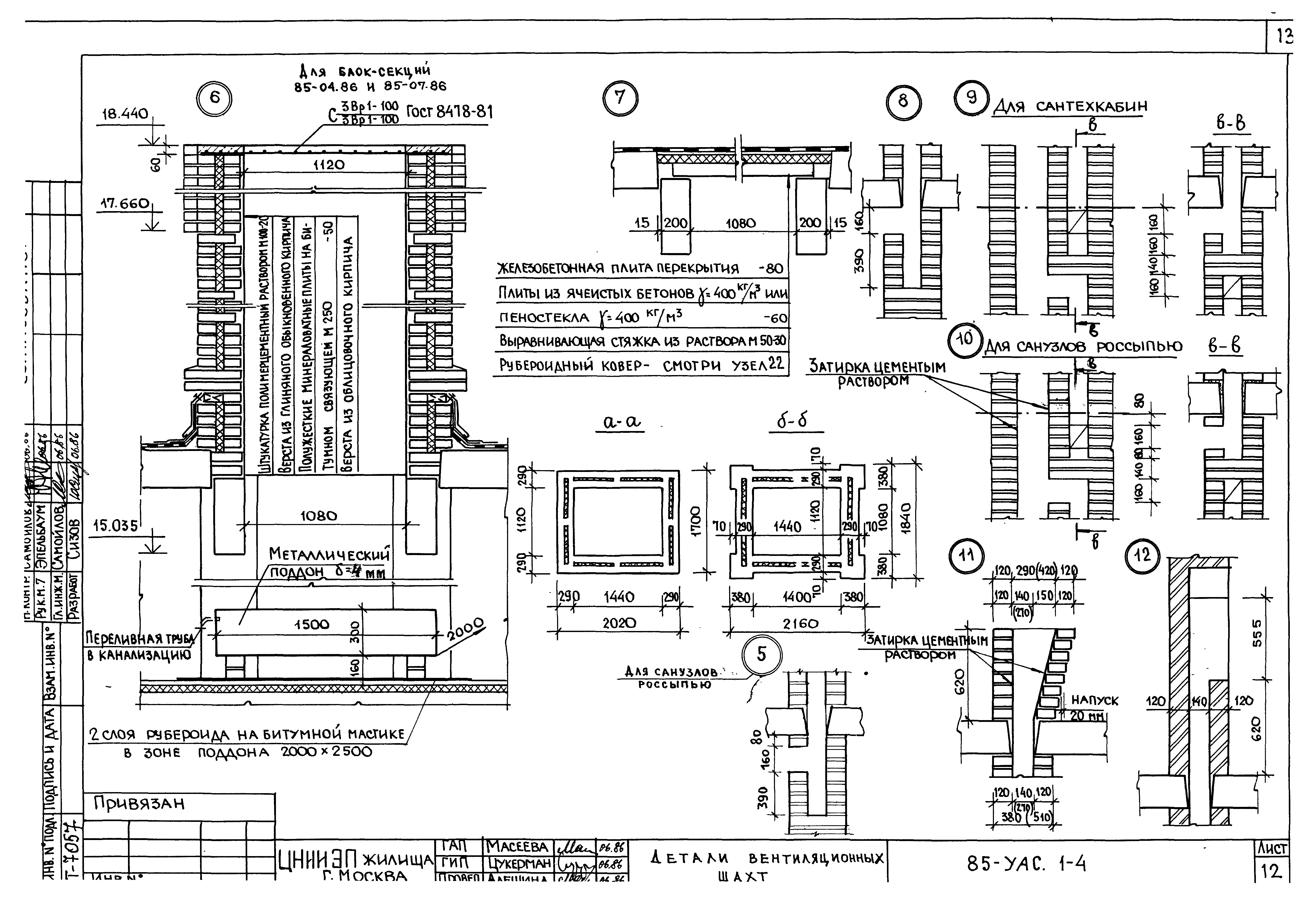
85-УАС.1-4. Узлы архитектурно-строительных решенийОбозначение: | Типовой проект Серия 85 | Обозначение англ: | Серия 85 | Статус: | не действует | Название рус.: | 85-УАС.1-4. Узлы архитектурно-строительных решений | Дата добавления в базу: | 01.09.2013 | Дата актуализации: | 05.05.2017 | Оглавление: | Общие данные Порядовка стены по окнам, кирпич Н = 65 мм Порядовка стены по балконной двери, кирпич Н = 65 мм Порядовка стены по окнам, кирпич Н = 88 мм Порядовка стены по балконной двери, кирпич Н = 88 мм Разрез I-I для блок-секций 85-04.86 и 85-07.86 Разрез I-I для блок-секций 85-08.86 и 85-09.86 Ведомость перемычек Развертки стен с вентиляционными каналами Р1…Р5 Детали вентиляционных шахт Ограждения и завершения лоджий. Детали Ограждения балконов. Детали Детали крыш Выход на крышу Мусоропровод Входы для блок-секций 85-04.86 и 85-07.86 Входы для блок-секций 85-08.86 и 85-09.86 Детали установки окон и балконных дверей Шкафы и антресоли Детали кладки Детали вентиляционных шахт Монтажные схемы перегородок МРМ-1, фланец переходной, фланец дефлектора | Разработан: | ЦНИИЭП жилища
| Утверждён: | Госкомитет по гражданскому строительству и архитектуре при Госстрое СССР (National Committee on Nonindustrial Construction and Architecture, USSR Gosstroy )
| Расположен в: |
|
                            
|