| ||||||||||||||||||||||||||||
Скачать Типовые проектные решения 416-9-031.87 Альбом I. Пояснительная записка. Технология производстваДата актуализации: 10.08.2017
|
| Обозначение: | Типовые проектные решения 416-9-031.87 |
| Обозначение англ: | 416-9-031.87 |
| Статус: | cправочные материалы, мп, тпр |
| Название рус.: | Альбом I. Пояснительная записка. Технология производства |
| Дата добавления в базу: | 01.09.2013 |
| Дата актуализации: | 05.05.2017 |
| Дата введения: | 30.03.1987 |
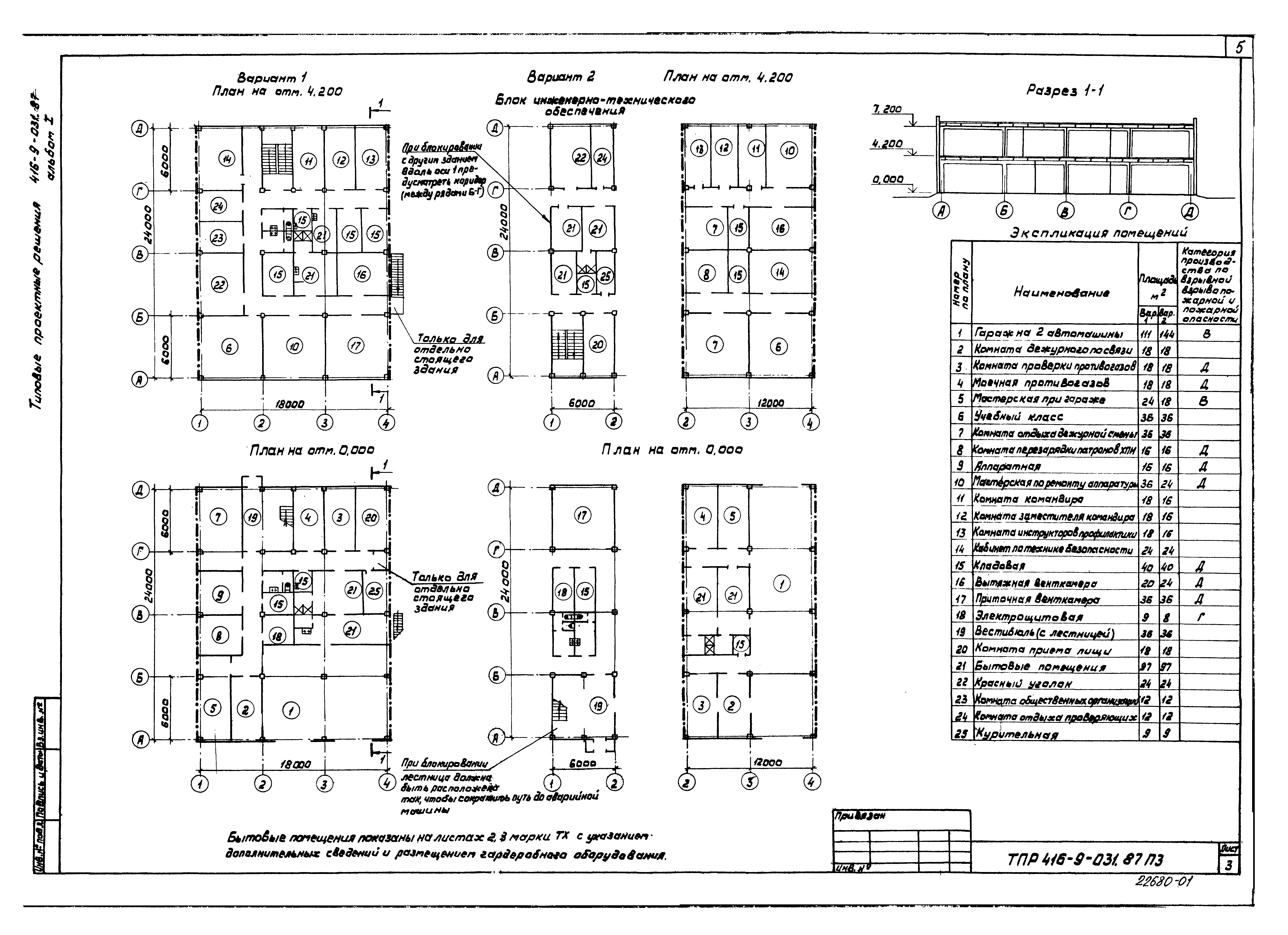
| Оглавление: | Содержание Пояснительная записка Общие данные Размещение технологического оборудования. Планы на отм. 0.000 и 4.200. Вариант 1 Размещение технологического оборудования. Планы на отм. 0.000 и 4.200. Вариант 2 Спецификация оборудования |
| Разработан: | ГИАП |
| Утверждён: | 30.03.1987 Министерство по производству минеральных удобрений СССР (USSR Ministry of Mineral Fertilizer Production 25-156) |
| Издан: | ЦИТП Госстроя СССР (CITP, Gosstroy (USSR) 1988 г. ) |
| Расположен в: |














