| ||||||||||||||||||||||||
Скачать Серия ПК-01-28 Выпуск II. Фермы пролетом 18 м. Рабочие чертежиДата актуализации: 10.08.2017
|
| Обозначение: | Серия ПК-01-28 |
| Обозначение англ: | Series ПК-01-28 |
| Статус: | действует |
| Название рус.: | Выпуск II. Фермы пролетом 18 м. Рабочие чертежи |
| Дата добавления в базу: | 01.09.2013 |
| Дата актуализации: | 05.05.2017 |
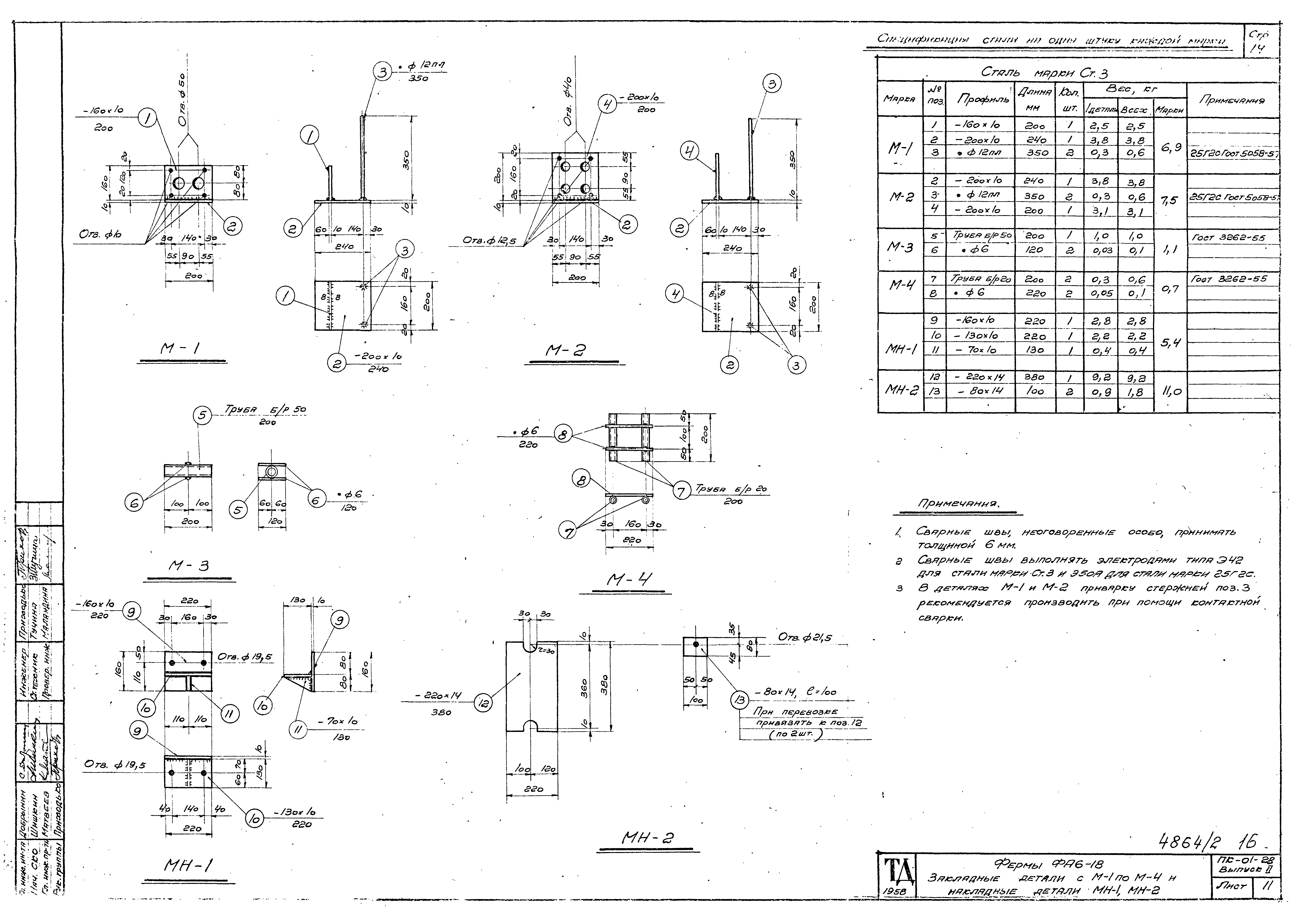
| Оглавление: | Пояснительная записка Сортамент ферм, нагрузки, технико-экономические показатели, схема перевозки строповки ферм Фермы ФА6-18-1, ФА6-18-2. Сборочный чертеж и расход материалов Фермы ФА6-18-1, ФА6-18-2. Опалубочный чертеж Фермы ФА6-18-1, ФА6-18-2. Арматурный чертеж Фермы ФА6-18-3, ФА6-18-4, ФА6-18-5. Сборочный чертеж и расход материалов Фермы ФА6-18-3, ФА6-18-4, ФА6-18-5. Опалубочный чертеж Фермы ФА6-18-3, ФА6-18-4, ФА6-18-5. Арматурный чертеж Фермы ФА6-18. Арматурный чертеж. Узлы Фермы ФА6-18. Арматурные каркасы с К-1 по К-7 Фермы ФА6-18. Арматурные каркасы К-8, К-9, К-10 и спецификация арматуры Фермы ФА6-18. Закладные детали с М-1 по М-4 и накладные детали МН-1, МН-2 Фермы ФА6-18. Пучковая арматура и анкерные детали |
| Разработан: | Промстройпроект Госстроя СССР НИИЖБ АСиА СССР |
| Утверждён: | 05.11.1958 Госстрой СССР (Государственный комитет Совета Министров СССР по делам строительства) (USSR Gosstroy 419) |
| Расположен в: |
















