| 
 | ||||||||||||||||||||||||||
| 
 Скачать Альбом РС-6161-88 Лестничные марши шириной 1,35 м на пролет 6,0 м и высоту этажа 3,0 м и 3,3 м для изготовления на ЗЖБИ № 18 для работы в условиях госприемкиДата актуализации: 10.08.2017
 | 
| Обозначение: |  Альбом РС-6161-88 | 
| Обозначение англ: |  РС-6161-88 | 
| Статус: | действует | 
| Название рус.: | Лестничные марши шириной 1,35 м на пролет 6,0 м и высоту этажа 3,0 м и 3,3 м для изготовления на ЗЖБИ № 18 для работы в условиях госприемки | 
| Дата добавления в базу: | 01.09.2013 | 
| Дата актуализации: | 05.05.2017 | 
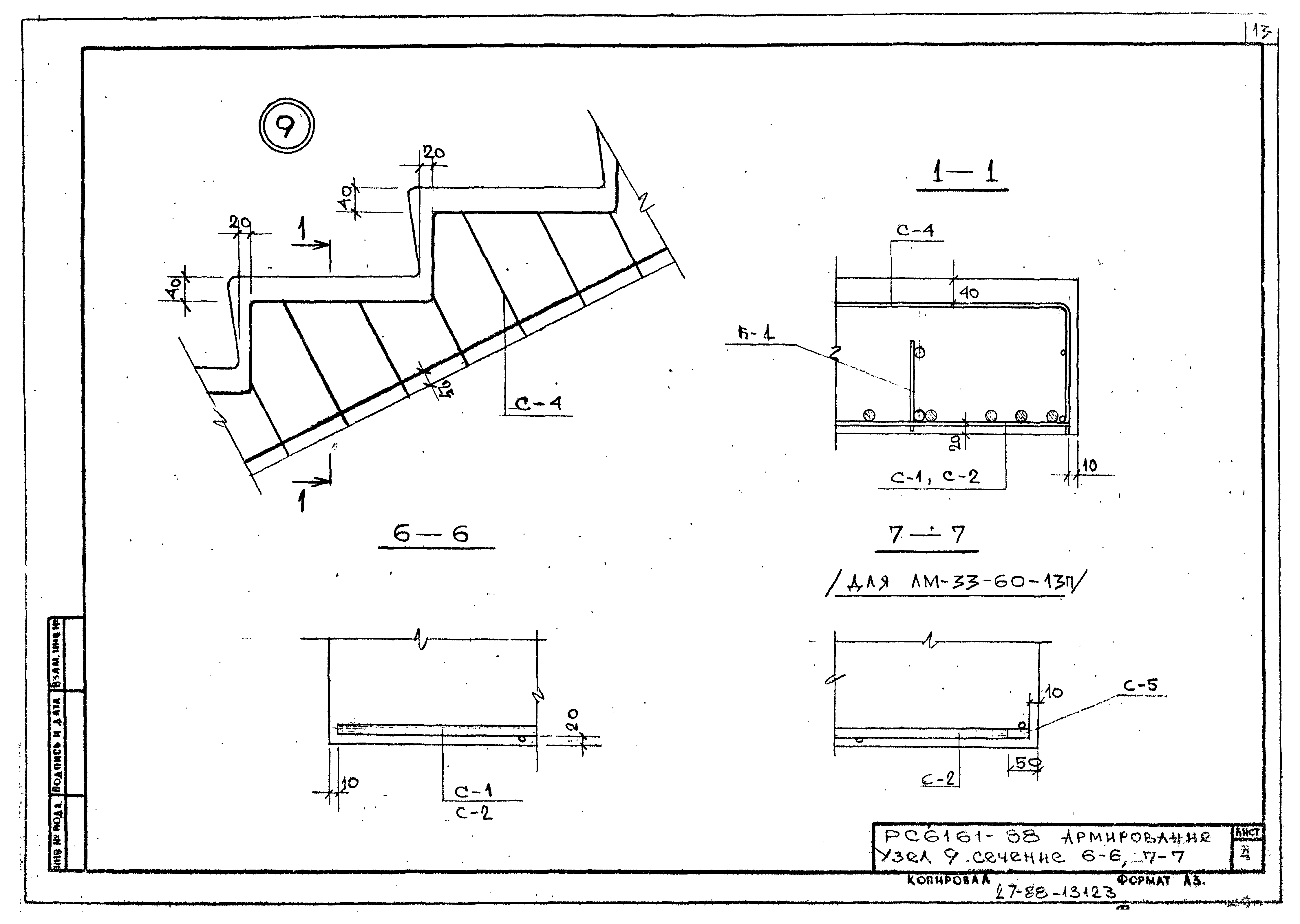
| Оглавление: | Содержание альбома Пояснительная записка Показатели изделий Спецификация и выборка стали на изделие Общий вид ЛМ-30-60-13П Общий вид ЛМ-33-60-13П Армирование ЛМ-30-60-13П; ЛМ-33-60-13П Узлы опалубки 1, 2, 3 Узлы опалубки 4, 5, 6 Узлы армирования 7, 8 Узел 9, сечение 6-6, 7-7 Сечения 3-3, 4-4, 5-5 Сетки арматурные С-1, С-2 Сетка арматурная С-3. Каркасы арматурные К-1, К-2. Стержень отдельный ОС-5 Сетки арматурные С-4, С-5 Детали закладные МО-2, МД-4. Петля строповочная Д-3 Расчетная схема и схема испытаний Узлы 4а и 5а для последующего проектирования новых форм | 
| Разработан: | Моспроект-1 | 
| Утверждён: | 27.03.1989 Моспроект-1 (80) | 
| Расположен в: | |
| Заменяет собой: | 
 | 



















