| ||||||||||||||||||||||||
Скачать Серия ХТР1-1 Сборные железобетонные элементы каналов высотой 1500, 1800 и 2100 мм. Рабочие чертежиДата актуализации: 10.08.2017
|
| Обозначение: | Серия ХТР1-1 |
| Обозначение англ: | Series ХТР1-1 |
| Статус: | действует |
| Название рус.: | Сборные железобетонные элементы каналов высотой 1500, 1800 и 2100 мм. Рабочие чертежи |
| Дата добавления в базу: | 01.09.2013 |
| Дата актуализации: | 05.05.2017 |
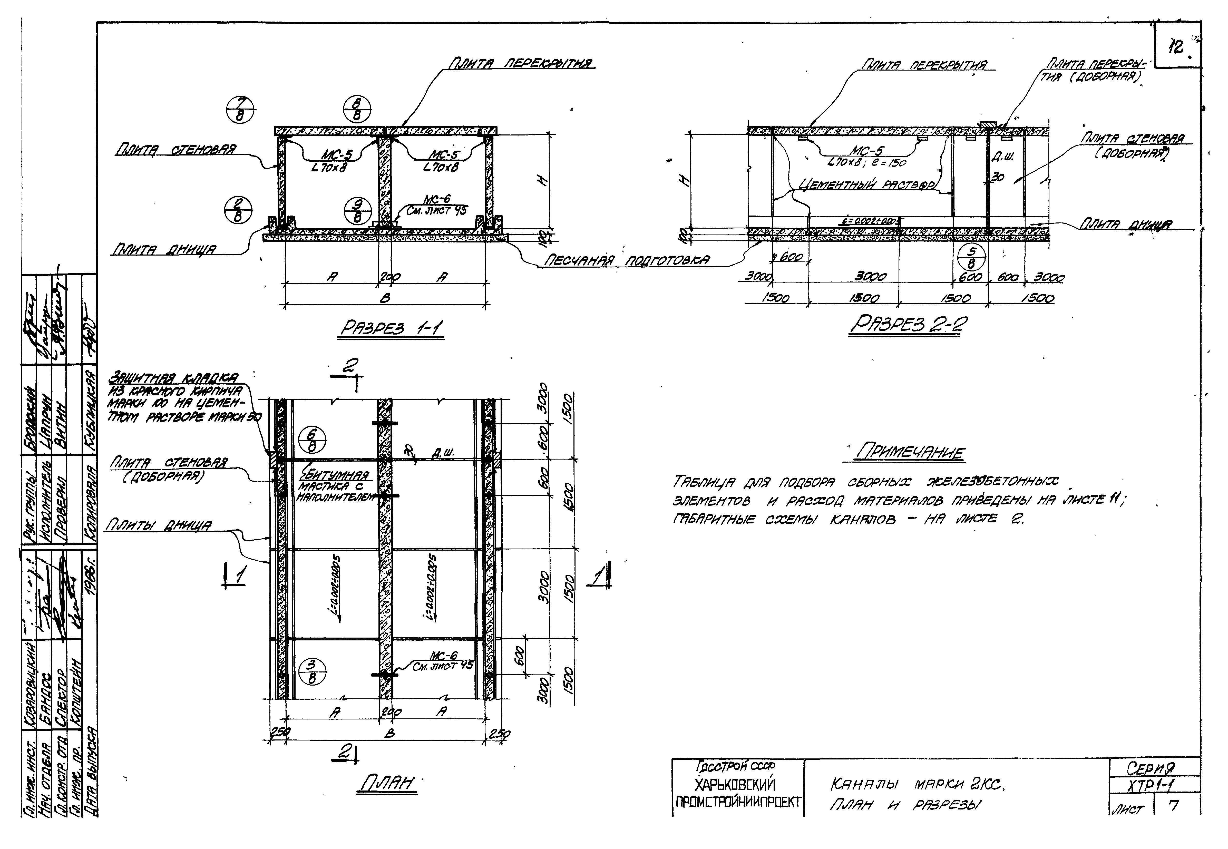
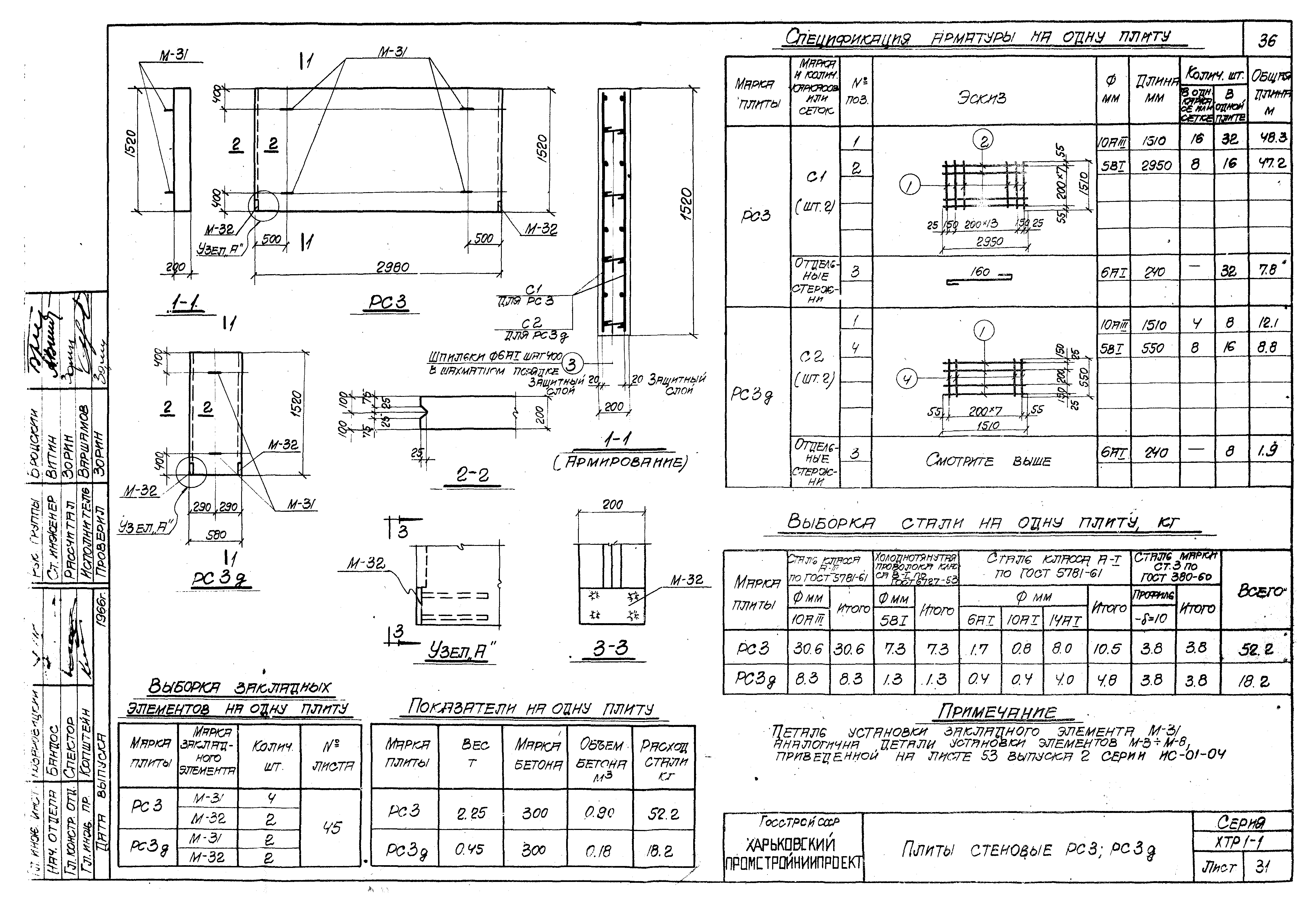
| Оглавление: | Пояснительная записка Расчетные схемы и нагрузки Габаритные схемы каналов Номенклатура сборных железобетонных изделий каналов и расход материалов на 1 изделие Каналы. План и разрезы. Детали Монтажные схемы и деталь крепления элементов МС-5 к плитам перекрытий каналов Таблица для подбора сборных железобетонных элементов и расход материалов на 3 погонных метра подземных каналов (прямые участки) Таблица для подбора сборных железобетонных элементов и расход материалов на 3 погонных метра полуподземных каналов (прямые участки) Плиты днища. Арматурные сетки и спецификация арматуры. Опалубочные и арматурные чертежи Плиты стеновые Плиты перекрытия Лоток Опорные подушки Закладные элементы |
| Разработан: | Харьковский Промстройниипроект НИИЖБ |
| Утверждён: | 28.02.1967 Госстрой СССР (Государственный комитет Совета Министров СССР по делам строительства) (USSR Gosstroy ) |
| Расположен в: |


















































