Скачать Типовой проект 407-3-467.87 Альбом II. Электротехнические, строительные и сантехнические чертежиДата актуализации: 10.08.2017 Типовой проект 407-3-467.87
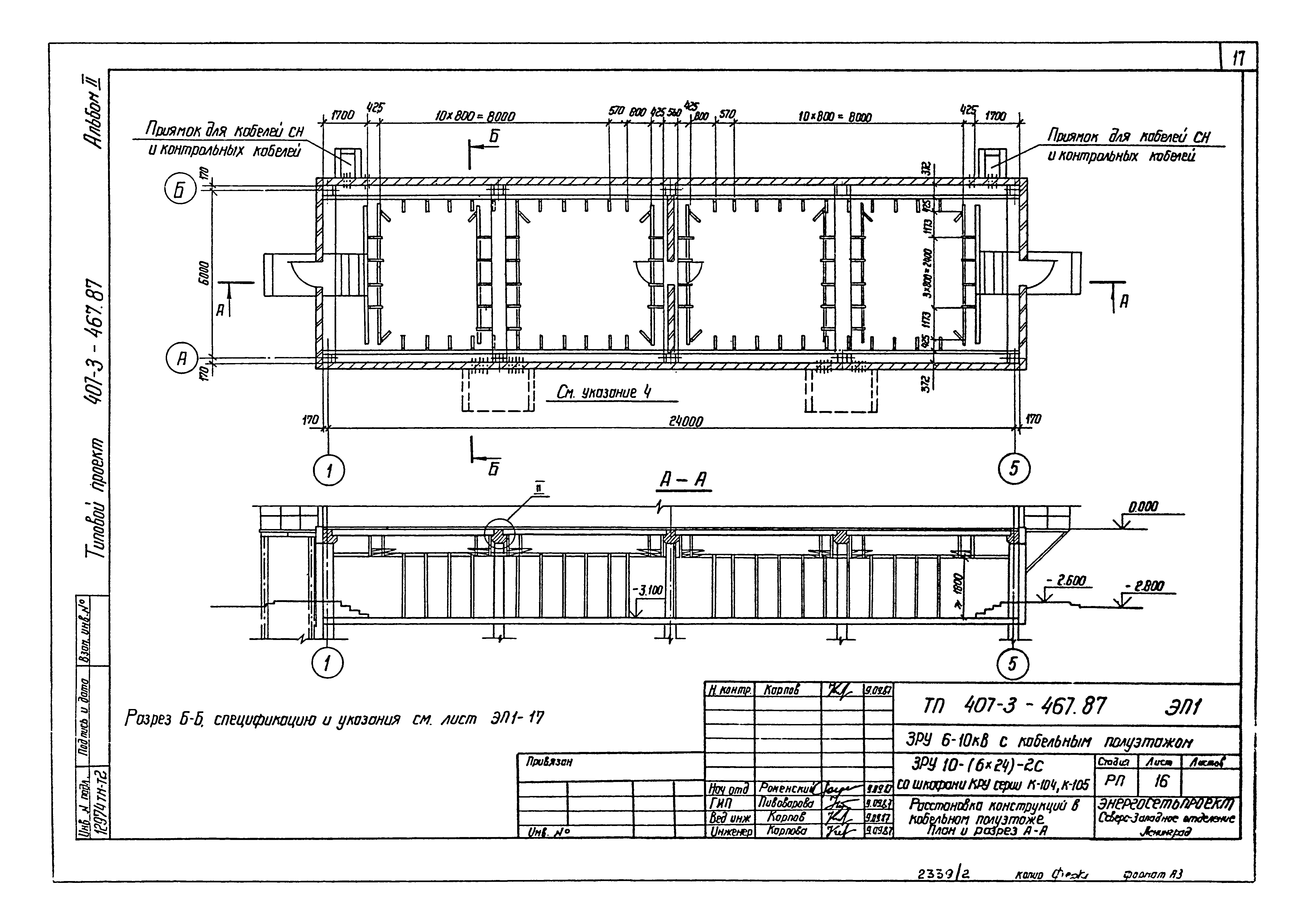
Альбом II. Электротехнические, строительные и сантехнические чертежиОбозначение: | Типовой проект 407-3-467.87 | Обозначение англ: | 407-3-467.87 | Статус: | заменен | Название рус.: | Альбом II. Электротехнические, строительные и сантехнические чертежи | Дата добавления в базу: | 12.02.2016 | Дата актуализации: | 05.05.2017 | Дата введения: | 01.04.1992 | Разработан: | Северо-западное отделение института Энергосетьпроект
| Утверждён: | 04.09.1987 Минэнерго СССР (USSR Minenergo 38)
| Расположен в: |
| Заменяет собой: | | Чем заменён: | |
                                                                                                                        
|