Информационная система
«Ёшкин Кот»

Скачать базу одним архивом
Скачать обновления
История создания базы
Карта сайта

Скачать Типовой проект 409-15-101.87 Альбом 1. Общая пояснительная записка. Технология производства. Архитектурные решения. Конструкции железобетонные. Внутренние водопровод и канализация. Отопление и вентиляция. Силовое электрооборудование. Автоматизация отопления и вентиляции. Связь и сигнализация. Пожарная сигнализация

Дата актуализации: 10.08.2017

Типовой проект 409-15-101.87

Альбом 1. Общая пояснительная записка. Технология производства. Архитектурные решения. Конструкции железобетонные. Внутренние водопровод и канализация. Отопление и вентиляция. Силовое электрооборудование. Автоматизация отопления и вентиляции. Связь и сигнализация. Пожарная сигнализация

Обозначение: Типовой проект 409-15-101.87
Обозначение англ: 409-15-101.87
Статус:не определен законодательством
Название рус.:Альбом 1. Общая пояснительная записка. Технология производства. Архитектурные решения. Конструкции железобетонные. Внутренние водопровод и канализация. Отопление и вентиляция. Силовое электрооборудование. Автоматизация отопления и вентиляции. Связь и сигнализация. Пожарная сигнализация
Дата добавления в базу:01.09.2013
Дата актуализации:05.05.2017
Дата введения:01.10.1987
Оглавление:Общая пояснительная записка
Технология производства
   Общие данные
   План расположения технологического оборудования на отм. 0.000
   План и схема расположения трубопроводов сжатого воздуха
   План расположения гидрофильтра. Разрезы
   Эскизные чертежи общих видов нетиповых конструкций
Архитектурные решения
   Общие данные
   План на отм. 0.000
   Фрагмент 1. План на отм. 3.600. Разрезы 1-1 - 3-3. Виды А, Б, В
   Фасады 1 - 12; 12 - 1; В - А; А - В
   Планы полов и отверстий на отм. 0.000 и 3.600 в стенах и перегородках
   Схема расположения подвесных путей и лестницы Л1
   Узлы 1 - 9
   План кровли. Схема расположения элементов перекрытия. Стремянка СХ-46
   Схема расположения каркаса под фильтр. Сечения
Конструкции железобетонные
   Общие данные
   Схема расположения фундаментов. Фрагмент 1
   Фрагменты 2 - 10
   Фрагменты 11 - 20
   Фрагмент 21. Фундаменты ФА1-1, ФА2-1, ФА2-1-1, ФА2-1-02
   Фундаменты Ф2, Ф4, Ф7
   Фундаменты Ф8, Ф10, Ф13
   Фундаменты ФА4-1, ФА5-1, ФА6-1, ФА6-1-01
   Схема расположения фундаментов под оборудование и подпольных каналов. Фундаменты ФО1 - ФО8
   Фундаменты ФО9 - ФО12. Сечения
   Фрагмент 1. Сечения
   Схема расположения перекрытия приямка для гидрофильтра. Сечения
   Схема расположения колонн, стоек и балок. Разрезы 1-1 - 5-5
   Узлы А - Л
   Схемы расположения панелей стен по осям А, В, 3, 9, 12
   Схемы расположения плит покрытия и перекрытия
   Участки монолитные УМ1 - УМ6
Внутренние водопровод и канализация
   Общие данные
   План на отм. 0.000. Фрагмент 1
   Схемы систем В1, К1, К3, Т3 и Т4
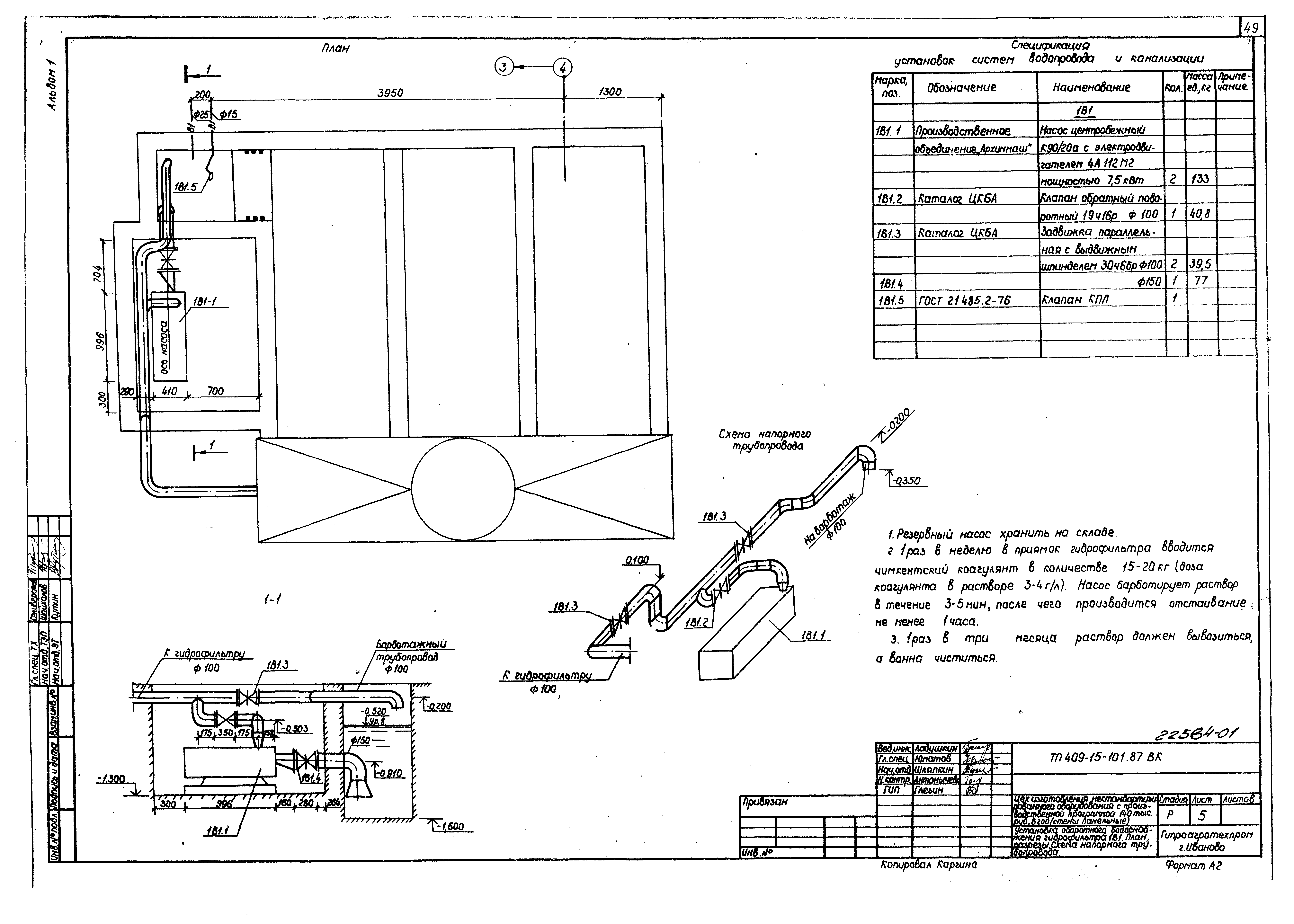
   Установка оборотного водоснабжения гидрофильтра 1В1. План, разрезы. Схема напорного трубопровода
Отопление и вентиляция
   Общие данные
   Таблица местных отсосов от технологического оборудования
   Планы на отм. 0.000 и 3.600
   Индивидуальный тепловой пункт. Распределительная гребенка. Схема систем теплоснабжения установок П1 - П4, А1
   Схемы систем отопления 1, 2
   Схемы систем вентиляции П1 - П4, В1 - В3, ВЕ1 - ВЕ4, ТВ1
   Установки систем П1 - П3, В1
   Установки систем П4, В2, В3
   Спецификация установок систем вентиляции П1 - П3, В1, В4, В5, А1
Силовое электрооборудование
   Общие данные
   План расположения и установки электрического оборудования и прокладки силовых сетей на отм. 0.000 и 3.600
   Планы расположения труб силовой сети на отм. - 0.100 и 3.500
   Принципиальная электрическая схема питающей и распределительной сетей 380/220 В (ШВ, 1ШР)
   Принципиальная электрическая схема распределительной сети 380/220 В (2ШР)
   Принципиальная электрическая схема распределительной сети 380/220 В (3ШР, 4ШР)
   Кабельный журнал
   Молниезащита. Фрагменты плана кровли и фасада
   Планы расположения и установки электрического оборудования и прокладки осветительных сетей на отм. 0.000 и 3.600
Автоматизация отопления и вентиляции
   Общие данные
   Приточные системы П1, П2, П4. Схема автоматизации
   Отопительный агрегат А1. Схема автоматизации. Схема электрическая принципиальная управления электродвигателем
   Индивидуальный тепловой пункт. Коллектор 1. Схема автоматизации. Схема внешних проводок
   Приточные системы П1, П2, П4. Схема электрическая принципиальная регулирования
   Приточные системы П1, П2, П4. Схемы электрические принципиальные управления, аварийной сигнализации и отключения при пожаре
   Приточная система П3. Схемы электрические принципиальные управления электродвигателями и перекидным клапаном
   Циркуляционный насос. Схема электрическая принципиальная управления. Схема внешних проводок
   Приточные системы П1, П2, П4. Схема внешних проводок
   Приточная система П3. Схема внешних проводок
   Отопительный агрегат А1. Схема внешних проводок
   Аварийная сигнализация. Схема внешних проводок
   Отключение вентиляции при пожаре. Схема внешних проводок
   Венткамеры. План расположения на отм. 0.000 и 3.600
   Планы расположения на отм. 0.000 и 3.600
Связь и сигнализация
   Общие данные
   План и схемы расположения сетей телефонизации и радиофикации на отм. 0.000
Пожарная сигнализация
   Общие данные
   Схема соединений устройств пожарной сигнализации
   План расположения сетей пожарной сигнализации на отм. 0.000
Разработан: Гипроагротехпром
Утверждён:01.10.1987 Гипроагротехпром (461)
Издан: ЦИТП Госстроя СССР (CITP, Gosstroy (USSR) 1988 г. )
Расположен в:Техническая документация Строительство Справочные документы Типовые строительные конструкции, изделия и узлы Общероссийский строительный каталог Сельскохозяйственные предприятия, здания и сооружения Предприятия, здания и сооружения по ремонту, техническому обслуживанию, хранению и обеспечению горюче-смазочными материалами сельхозтехники Ремонтные предприятия "Сельхозэнерго"
Типовой проект 409-15-101.87Типовой проект 409-15-101.87Типовой проект 409-15-101.87Типовой проект 409-15-101.87Типовой проект 409-15-101.87Типовой проект 409-15-101.87Типовой проект 409-15-101.87Типовой проект 409-15-101.87Типовой проект 409-15-101.87Типовой проект 409-15-101.87Типовой проект 409-15-101.87Типовой проект 409-15-101.87Типовой проект 409-15-101.87Типовой проект 409-15-101.87Типовой проект 409-15-101.87Типовой проект 409-15-101.87Типовой проект 409-15-101.87Типовой проект 409-15-101.87Типовой проект 409-15-101.87Типовой проект 409-15-101.87Типовой проект 409-15-101.87Типовой проект 409-15-101.87Типовой проект 409-15-101.87Типовой проект 409-15-101.87Типовой проект 409-15-101.87Типовой проект 409-15-101.87Типовой проект 409-15-101.87Типовой проект 409-15-101.87Типовой проект 409-15-101.87Типовой проект 409-15-101.87Типовой проект 409-15-101.87Типовой проект 409-15-101.87Типовой проект 409-15-101.87Типовой проект 409-15-101.87Типовой проект 409-15-101.87Типовой проект 409-15-101.87Типовой проект 409-15-101.87Типовой проект 409-15-101.87Типовой проект 409-15-101.87Типовой проект 409-15-101.87Типовой проект 409-15-101.87Типовой проект 409-15-101.87Типовой проект 409-15-101.87Типовой проект 409-15-101.87Типовой проект 409-15-101.87Типовой проект 409-15-101.87Типовой проект 409-15-101.87Типовой проект 409-15-101.87Типовой проект 409-15-101.87Типовой проект 409-15-101.87Типовой проект 409-15-101.87Типовой проект 409-15-101.87Типовой проект 409-15-101.87Типовой проект 409-15-101.87Типовой проект 409-15-101.87Типовой проект 409-15-101.87Типовой проект 409-15-101.87Типовой проект 409-15-101.87Типовой проект 409-15-101.87Типовой проект 409-15-101.87Типовой проект 409-15-101.87Типовой проект 409-15-101.87Типовой проект 409-15-101.87Типовой проект 409-15-101.87Типовой проект 409-15-101.87Типовой проект 409-15-101.87Типовой проект 409-15-101.87Типовой проект 409-15-101.87Типовой проект 409-15-101.87Типовой проект 409-15-101.87Типовой проект 409-15-101.87Типовой проект 409-15-101.87Типовой проект 409-15-101.87Типовой проект 409-15-101.87Типовой проект 409-15-101.87Типовой проект 409-15-101.87Типовой проект 409-15-101.87Типовой проект 409-15-101.87Типовой проект 409-15-101.87Типовой проект 409-15-101.87Типовой проект 409-15-101.87Типовой проект 409-15-101.87Типовой проект 409-15-101.87Типовой проект 409-15-101.87Типовой проект 409-15-101.87Типовой проект 409-15-101.87Типовой проект 409-15-101.87Типовой проект 409-15-101.87Типовой проект 409-15-101.87Типовой проект 409-15-101.87Типовой проект 409-15-101.87Типовой проект 409-15-101.87Типовой проект 409-15-101.87Типовой проект 409-15-101.87

© 2013 Ёшкин Кот :-) Карта сайта