Информационная система
«Ёшкин Кот»

Скачать базу одним архивом
Скачать обновления
История создания базы
Карта сайта

Скачать Типовой проект 903-1-252.87 Альбом I. Пояснительная записка. Техническое оборудование. Силовое электрооборудование и электроосвещение. Автоматизация и КИП. Архитектурно-строительные решения. Отопление и вентиляция. Водопровод и канализация

Дата актуализации: 10.08.2017

Типовой проект 903-1-252.87

Альбом I. Пояснительная записка. Техническое оборудование. Силовое электрооборудование и электроосвещение. Автоматизация и КИП. Архитектурно-строительные решения. Отопление и вентиляция. Водопровод и канализация

Обозначение: Типовой проект 903-1-252.87
Обозначение англ: 903-1-252.87
Статус:не определен законодательством
Название рус.:Альбом I. Пояснительная записка. Техническое оборудование. Силовое электрооборудование и электроосвещение. Автоматизация и КИП. Архитектурно-строительные решения. Отопление и вентиляция. Водопровод и канализация
Дата добавления в базу:01.09.2013
Дата актуализации:05.05.2017
Дата введения:30.11.1987
Оглавление:Пояснительная записка
Чертежи основного комплекта марки ТМ
   Общие данные
   Компоновка оборудования. План
   Компоновка оборудования. Разрез 1-1, 2-2, 3-3
   Тепловая схема
   Трубопроводы. План
   Трубопроводы. Разрез 1-1, 2-2, 3-3
   Трубопроводы. Разрез 4-4. Сечения а-а, б-б, в-в
   Спецификация трубопроводов
   Оборудование аккумуляторного бака
   Оборудование бака горячего водоснабжения
   Установка шайбового дозатора
   Установка дозировочной шайбы
Чертежи основного комплекта марки ЭМ
   Общие данные
   Питающая и распределительная сеть 380 В. Схема однолинейная
   Схема принципиальная электрическая управления ЭПЗ-250ИЗ
   Приводы 1…7. Схема принципиальная электрическая управления
   Схема подключения шкафа управления
   Схема подключения ящика управления
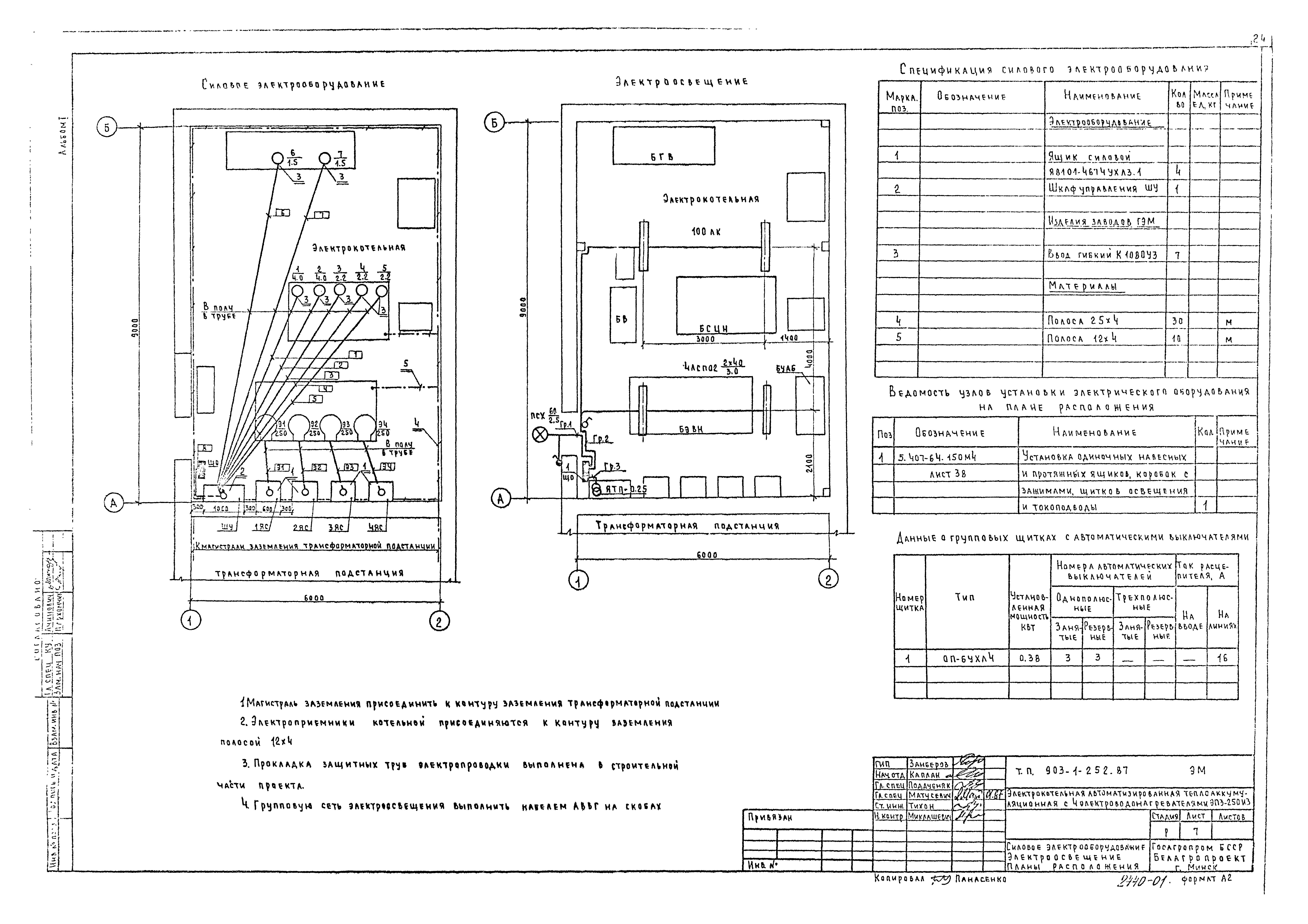
   Силовое электрооборудование. Электроосвещение. Планы расположения
Чертежи основного комплекта марки АТМ
   Общие данные
   Схема функциональная
   Схема принципиальная электрическая питания
   Схема принципиальная электрическая управления
   Схема принципиальная электрическая сигнализации
   Схема соединений внешних проводок
   План расположения
Чертежи основного комплекта марки АС
   Общие данные
   Фасады
   План на отм. 0.000. Разрезы 1-1, 2-2
   План кровли. План полов. Схема расположения элементов лестницы
   Схема расположения элементов фундаментов
   Схема расположения фундаментов под оборудование
   Схемы расположения колонн, балок и плит покрытия
   Схема расположения стеновых панелей
   Узлы 1…7
   Вариант с кирпичными стенами
      Фасады
      Планы на отм. 0.000; 3.630. Разрез 1-1…3-3
      Виды "А", "Б", "В", "Г", "Д", "Е"
      План кровли. План полов
      Схема расположения элементов фундаментов
      Схема расположения фундаментов под оборудование
      Схемы расположения плит покрытия и перекрытия
      Схема расположения элементов лестницы ЛМ1
   Для вариантов в сборных конструкциях и с кирпичными стенами
      Схема расположения труб в полу
      Схема расположения опор под трубопроводы и основания под баки
      Сечения 1-1…3-3
      Фундаменты ФОМ8…ФОМ14
      Схема расположения элементов площадки
Чертежи основного комплекта марки ОВ
   Общие данные. План на отм. 0.000. Схемы систем отопления ВЕ1
Чертежи основного комплекта марки ВК
   Общие данные
   План на отм. 0.000. Схемы систем В1, К3
Разработан: Белагропроект
Утверждён:30.11.1987 Белагропроект (163)
Расположен в:Техническая документация Строительство Справочные документы Типовые строительные конструкции, изделия и узлы Общероссийский строительный каталог Промышленные предприятия, здания и сооружения Здания и сооружения санитарно-технические Теплоснабжение Котельные установки Электрокотельные
Типовой проект 903-1-252.87Типовой проект 903-1-252.87Типовой проект 903-1-252.87Типовой проект 903-1-252.87Типовой проект 903-1-252.87Типовой проект 903-1-252.87Типовой проект 903-1-252.87Типовой проект 903-1-252.87Типовой проект 903-1-252.87Типовой проект 903-1-252.87Типовой проект 903-1-252.87Типовой проект 903-1-252.87Типовой проект 903-1-252.87Типовой проект 903-1-252.87Типовой проект 903-1-252.87Типовой проект 903-1-252.87Типовой проект 903-1-252.87Типовой проект 903-1-252.87Типовой проект 903-1-252.87Типовой проект 903-1-252.87Типовой проект 903-1-252.87Типовой проект 903-1-252.87Типовой проект 903-1-252.87Типовой проект 903-1-252.87Типовой проект 903-1-252.87Типовой проект 903-1-252.87Типовой проект 903-1-252.87Типовой проект 903-1-252.87Типовой проект 903-1-252.87Типовой проект 903-1-252.87Типовой проект 903-1-252.87Типовой проект 903-1-252.87Типовой проект 903-1-252.87Типовой проект 903-1-252.87Типовой проект 903-1-252.87Типовой проект 903-1-252.87Типовой проект 903-1-252.87Типовой проект 903-1-252.87Типовой проект 903-1-252.87Типовой проект 903-1-252.87Типовой проект 903-1-252.87Типовой проект 903-1-252.87Типовой проект 903-1-252.87Типовой проект 903-1-252.87Типовой проект 903-1-252.87Типовой проект 903-1-252.87Типовой проект 903-1-252.87Типовой проект 903-1-252.87Типовой проект 903-1-252.87Типовой проект 903-1-252.87Типовой проект 903-1-252.87Типовой проект 903-1-252.87Типовой проект 903-1-252.87Типовой проект 903-1-252.87Типовой проект 903-1-252.87Типовой проект 903-1-252.87Типовой проект 903-1-252.87Типовой проект 903-1-252.87Типовой проект 903-1-252.87

© 2013 Ёшкин Кот :-) Карта сайта