Информационная система
«Ёшкин Кот»

Скачать базу одним архивом
Скачать обновления
История создания базы
Карта сайта

Скачать Типовой проект 416-9-33.87 Альбом V. Задание заводу-изготовителю низковольтных комплектных устройств

Дата актуализации: 10.08.2017

Типовой проект 416-9-33.87

Альбом V. Задание заводу-изготовителю низковольтных комплектных устройств

Обозначение: Типовой проект 416-9-33.87
Обозначение англ: 416-9-33.87
Статус:не действует
Название рус.:Альбом V. Задание заводу-изготовителю низковольтных комплектных устройств
Дата добавления в базу:01.09.2013
Дата актуализации:05.05.2017
Оглавление:Содержание альбома
Перечень комплектных устройств
Щит разряда 1Щ щелочных аккумуляторных батарей. Чертеж общего вида
Щит разряда 1Щ щелочных аккумуляторных батарей. Технические данные аппаратов. Таблица
Щит разряда 1Щ щелочных аккумуляторных батарей. Таблица перечня надписей
Щит разряда 1Щ щелочных аккумуляторных батарей. Схема электрическая соединений
Щит разряда 1Щ кислотных аккумуляторных батарей. Чертеж общего вида
Щит разряда 1Щ кислотных аккумуляторных батарей. Технические данные аппаратов. Таблица
Щит разряда 1Щ кислотных аккумуляторных батарей. Таблица перечня надписей
Щит разряда 1Щ кислотных аккумуляторных батарей. Схема электрическая соединений
Ящик разряда Я1 щелочных аккумуляторных батарей. Чертеж общего вида
Ящик разряда Я1 щелочных аккумуляторных батарей. Технические данные аппаратов. Таблица
Ящик разряда Я1 щелочных аккумуляторных батарей. Таблица перечня надписей
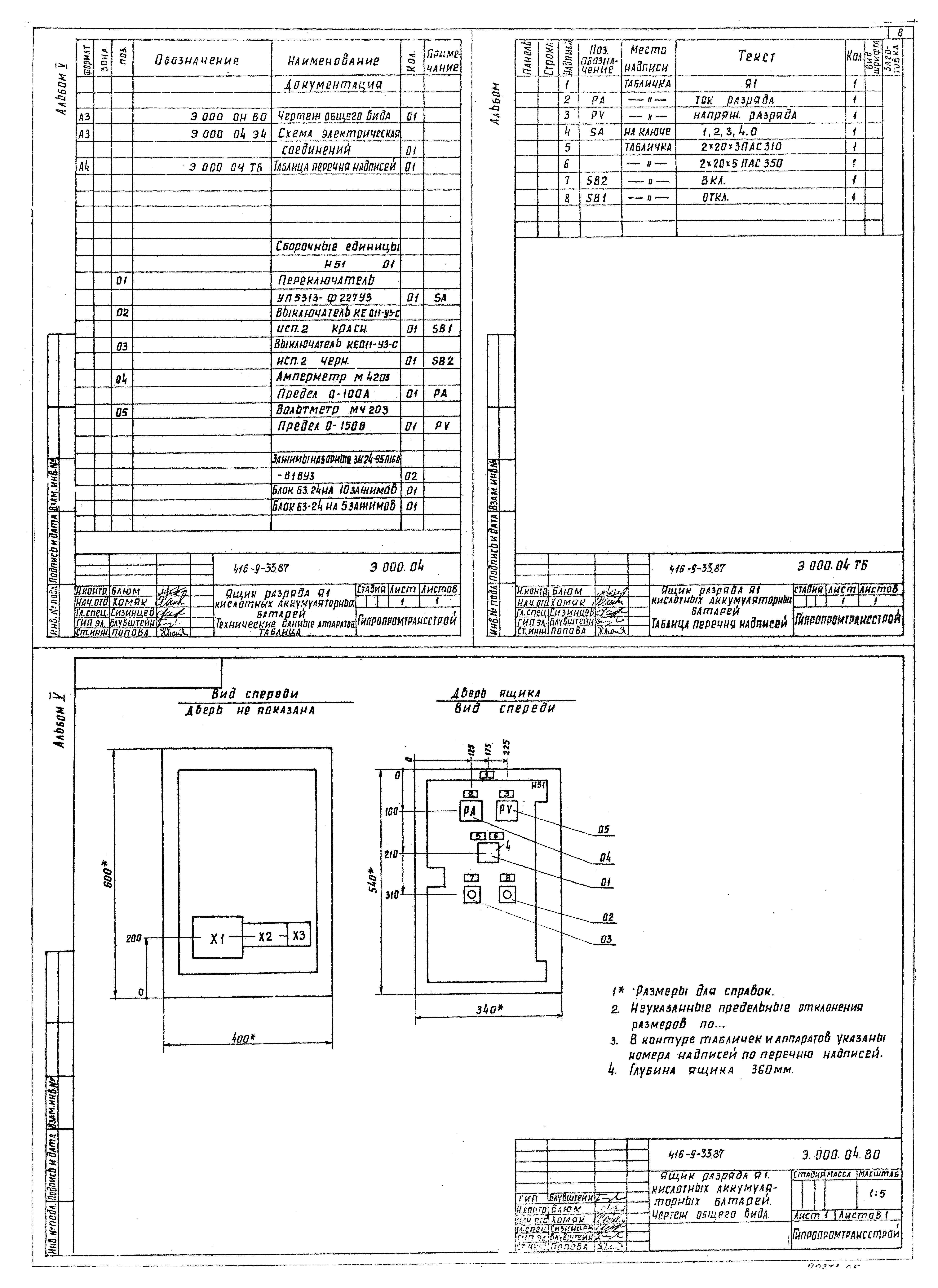
Ящик разряда Я1 кислотных аккумуляторных батарей. Чертеж общего вида
Ящик разряда Я1 кислотных аккумуляторных батарей. Технические данные аппаратов. Таблица
Ящик разряда Я1 кислотных аккумуляторных батарей. Таблица перечня надписей
Ящик разряда Я1 щелочных аккумуляторных батарей. Схема электрическая соединений
Ящик разряда Я1 кислотных аккумуляторных батарей. Схема электрическая соединений
Ящик Я2. Чертеж общего вида
Ящик Я2. Технические данные аппаратов. Таблица
Ящик Я2. Таблица перечня надписей
Ящик Я2. Схема электрическая соединений
Ящик 9Я. Чертеж общего вида
Ящик 9Я. Технические данные аппаратов. Таблица
Ящик 9Я. Таблица перечня надписей
Ящик 9Я. Схема электрическая соединений
Разработан: Гипропромтрансстрой
Утверждён:02.07.1987 Министерство путей сообщения СССР (USSR Ministry of Railroads 3619У)
Издан: ЦИТП Госстроя СССР (CITP, Gosstroy (USSR) 1988 г. )
Расположен в:Техническая документация Строительство Справочные документы Типовые строительные конструкции, изделия и узлы Общероссийский строительный каталог Промышленные предприятия, здания и сооружения Предприятия, здания и сооружения промышленности и электроэнергетики Ремонтные предприятия. Административно-бытовые, производственные и вспомогательные здания и сооружения промышленных предприятий Ремонтные предприятия, производственные и вспомогательные здания и сооружения
Типовой проект 416-9-33.87Типовой проект 416-9-33.87Типовой проект 416-9-33.87Типовой проект 416-9-33.87Типовой проект 416-9-33.87Типовой проект 416-9-33.87Типовой проект 416-9-33.87Типовой проект 416-9-33.87Типовой проект 416-9-33.87Типовой проект 416-9-33.87Типовой проект 416-9-33.87Типовой проект 416-9-33.87Типовой проект 416-9-33.87Типовой проект 416-9-33.87Типовой проект 416-9-33.87

© 2013 Ёшкин Кот :-) Карта сайта