Информационная система
«Ёшкин Кот»

Скачать базу одним архивом
Скачать обновления
История создания базы
Карта сайта

Скачать Типовой проект 901-3-237.87 Альбом III. Строительные изделия

Дата актуализации: 10.08.2017

Типовой проект 901-3-237.87

Альбом III. Строительные изделия

Обозначение: Типовой проект 901-3-237.87
Обозначение англ: 901-3-237.87
Статус:не определен законодательством
Название рус.:Альбом III. Строительные изделия
Дата добавления в базу:01.09.2013
Дата актуализации:05.05.2017
Дата введения:27.04.1987
Оглавление:901-3-237.87-КЖ.И.С Содержание альбома
901-3-237.87-КЖ.И.ТТ Технические требования
901-3-237.87-КЖ.И.1.05 Сетка арматурная (С3, С4)
901-3-237.87-КЖ.И.1.01 Каркас плоский (КР1)
901-3-237.87-КЖ.И.1.02 Каркас плоский (КР2)
901-3-237.87-КЖ.И.1.03 Сетка арматурная (С1)
901-3-237.87-КЖ.И.1.04 Сетка арматурная (С2)
901-3-237.87-КЖ.И.1.06 Каркас плоский (КР1, КР2)
901-3-237.87-КЖ.И.1.07 Изделие закладное (М1)
901-3-237.87-КЖ.И.2.01 Панель стеновая ПС
901-3-237.87-КЖ.И.2.02 Панель ПСЦ
901-3-237.87-КЖ.И.3.01 Сетка арматурная (С1, С2)
901-3-237.87-КЖ.И.4.01 Колонна (К36-2а, К36-2б)
901-3-237.87-КЖ.И.4.02 Колонна (К60-7а, К60-7б, К60-7в)
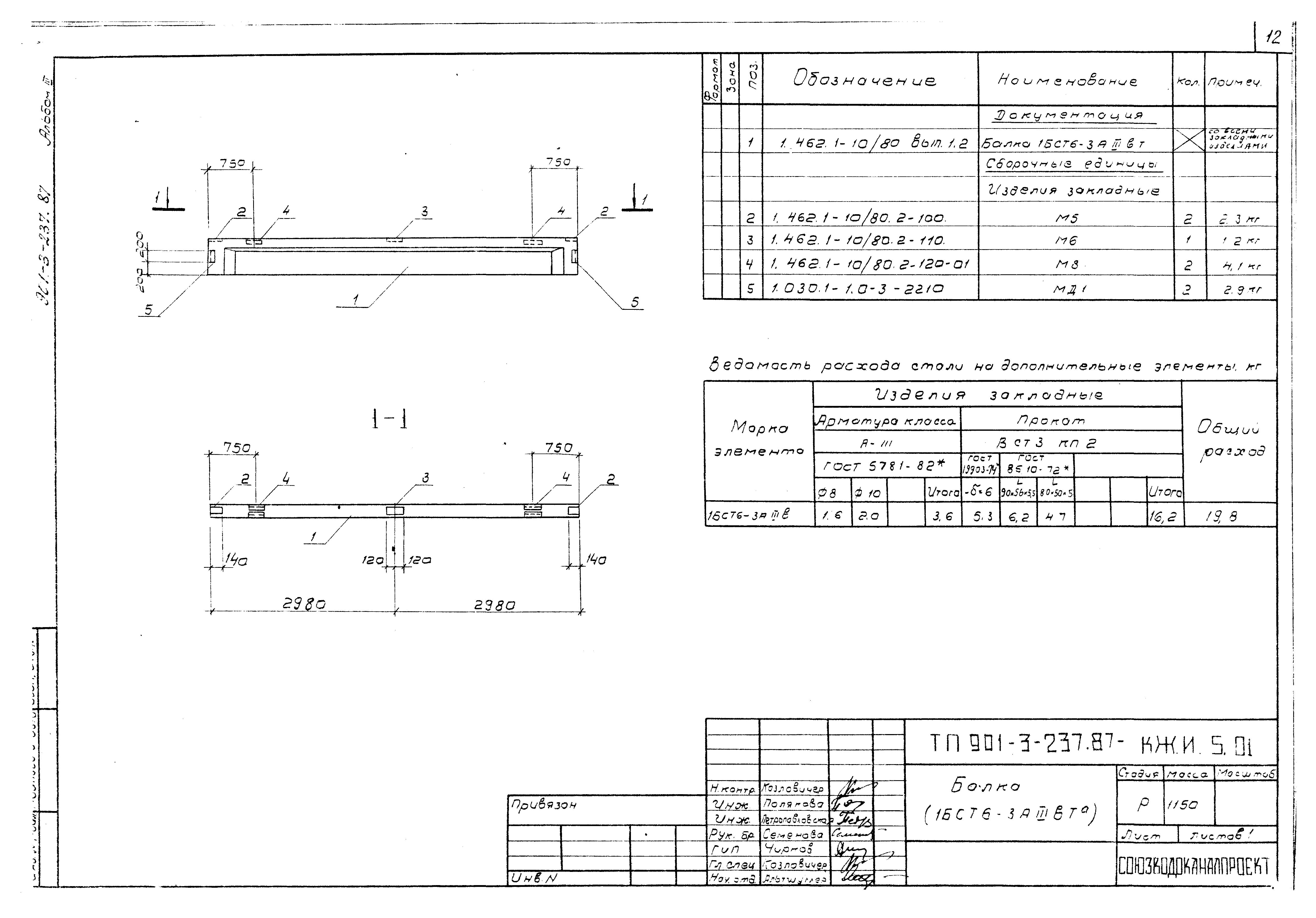
901-3-237.87-КЖ.И.5.01 Балка
901-3-237.87-КЖ.И.6.01 Плита покрытия
901-3-237.87-КЖ.И.7.01 Стойка фахверка (СФ1)
901-3-237.87-КЖ.И.7.02 Деталь подводящего трубопровода
Разработан: Союзводоканалпроект
Утверждён:25.12.1986 Госстрой СССР (Государственный комитет Совета Министров СССР по делам строительства) (USSR Gosstroy АЧ-95)
Расположен в:Техническая документация Строительство Справочные документы Типовые строительные конструкции, изделия и узлы Общероссийский строительный каталог Промышленные предприятия, здания и сооружения Здания и сооружения санитарно-технические Водоснабжение Сооружения и установки по обеззараживанию воды Сооружения для обработки осадка
Типовой проект 901-3-237.87Типовой проект 901-3-237.87Типовой проект 901-3-237.87Типовой проект 901-3-237.87Типовой проект 901-3-237.87Типовой проект 901-3-237.87Типовой проект 901-3-237.87Типовой проект 901-3-237.87Типовой проект 901-3-237.87Типовой проект 901-3-237.87Типовой проект 901-3-237.87Типовой проект 901-3-237.87Типовой проект 901-3-237.87Типовой проект 901-3-237.87Типовой проект 901-3-237.87Типовой проект 901-3-237.87

© 2013 Ёшкин Кот :-) Карта сайта