Информационная система
«Ёшкин Кот»

Скачать базу одним архивом
Скачать обновления
История создания базы
Карта сайта

Скачать Типовой проект 411-9-10.85 Альбом I. Общая пояснительная записка. Технологические чертежи. Архитектурно-строительные решения. Конструкции железобетонные. Внутренние водопровод и канализация. Отопление и вентиляция. Силовое и осветительное электрооборудование

Дата актуализации: 10.08.2017

Типовой проект 411-9-10.85

Альбом I. Общая пояснительная записка. Технологические чертежи. Архитектурно-строительные решения. Конструкции железобетонные. Внутренние водопровод и канализация. Отопление и вентиляция. Силовое и осветительное электрооборудование

Обозначение: Типовой проект 411-9-10.85
Обозначение англ: 411-9-10.85
Статус:не определен законодательством
Название рус.:Альбом I. Общая пояснительная записка. Технологические чертежи. Архитектурно-строительные решения. Конструкции железобетонные. Внутренние водопровод и канализация. Отопление и вентиляция. Силовое и осветительное электрооборудование
Дата добавления в базу:01.09.2013
Дата актуализации:05.05.2017
Дата введения:24.09.1984
Оглавление:Содержание альбома
Пояснительная записка
Технология производства
   Общие данные. Фрагмент 1. Спецификация
   Схемы размещения поддонов на складе
Архитектурные решения
   Общие данные
   Тип I. План кровли. План и экспликация полов. Спецификации. Ведомость отделки помещений
   Тип I. План. Разрезы 1-1, 2-2, 3-3
   Фрагмент 1. Ведомость перемычек
   Тип I. Фасады 1 - 11; 11 - 1; А - В; В - А
   Тип II. План кровли. План и экспликация полов. Спецификации. Ведомость отделки помещений
   Тип II. План. Разрезы 1-1, 2-2, 3-3
   Тип II. Фасады 1 - 11; 11 - 1; А - В; В - А
   Тип III. План кровли. План и экспликация полов. Спецификации. Ведомость отделки помещений
   Тип III. План на отм. 0.000. Разрезы 1-1, 2-2, 3-3
   Тип III. Фасады 1 - 11; 11 - 1; А - В; В - А
   Тип IV. План кровли. План и экспликация полов. Спецификации. Ведомость отделки помещений
   Тип IV. План на отм. 0.000. Разрезы 1-1, 2-2, 3-3
   Тип IV. Фасады 1 - 11; 11 - 1; А - В; В - А
Конструкции железобетонные
   Общие данные
   Тип I. Монолитные фундаменты. Схема расположения фундаментов. Фрагмент 3
   Тип II. Монолитные фундаменты. Схема расположения фундаментов. Фрагменты 3 и 4
   Тип I, II. Монолитные фундаменты. Сечения 1-1 - 7-7
   Тип I, II. Монолитные фундаменты. Сечения 8-8 - 12-12. Фрагменты 1 и 2
   Тип I, II. Конструкция фундаментов Фм1 - Фм4
   Тип I, II. Конструкция фундаментов Фм5 - Фм8 для t = минус 20 градусов Цельсия
   Тип I, II. Конструкция фундаментов Фм5 - Фм8 для t = минус 30 градусов Цельсия
   Тип I, II. Конструкция фундаментов Фм5 - Фм8 для t = минус 40 градусов Цельсия
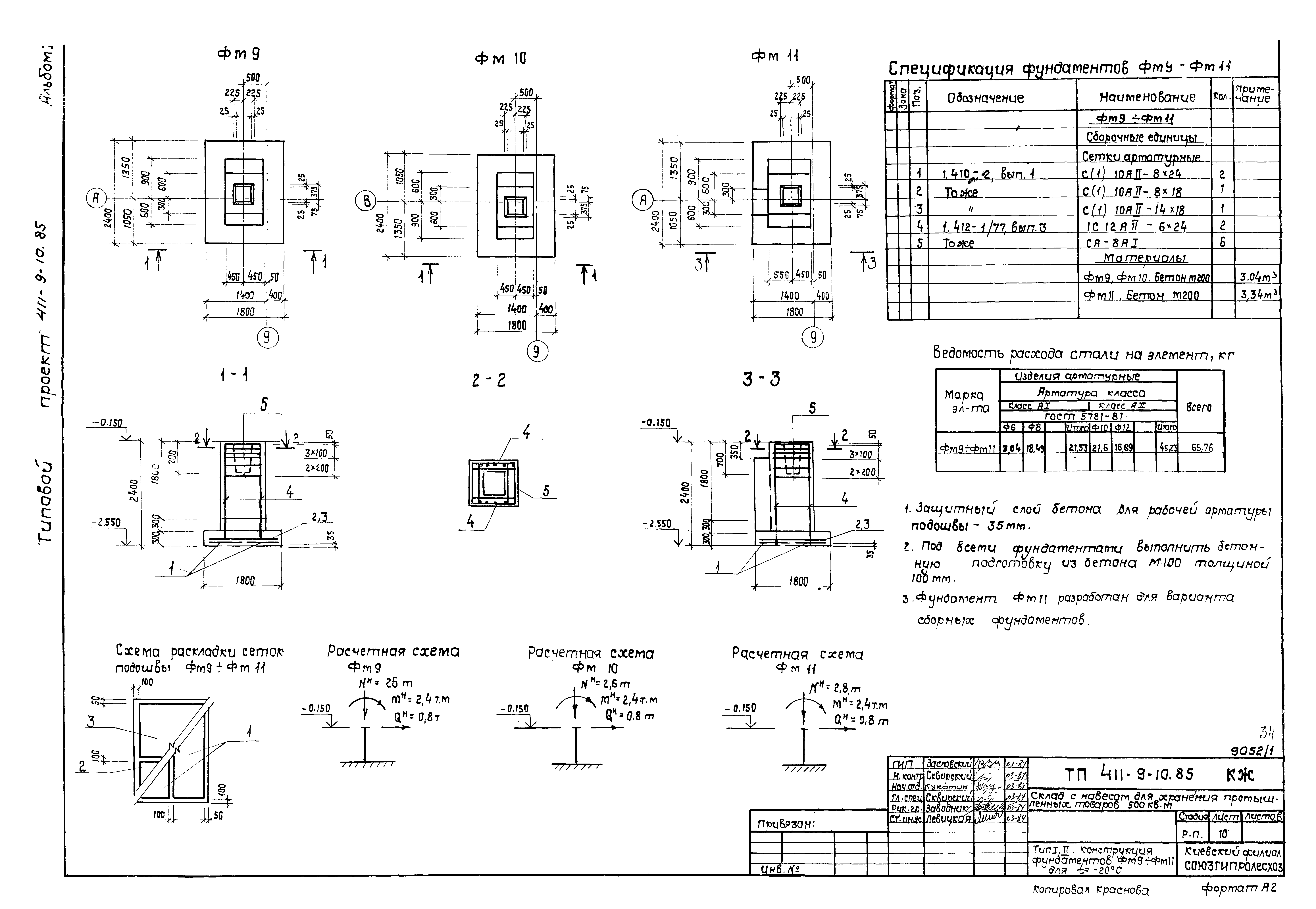
   Тип I, II. Конструкция фундаментов Фм9 - Фм11 для t = минус 20 градусов Цельсия
   Тип I, II. Конструкция фундаментов Фм9 - Фм11 для t = минус 30 градусов Цельсия
   Тип I, II. Конструкция фундаментов Фм9 - Фм11 для t = минус 40 градусов Цельсия
   Тип I. Фундаменты сборные. Схема расположения фундаментов. Фрагмент 1
   Тип II. Фундаменты сборные. Схема расположения фундаментов. Фрагмент 1
   Тип I, II. Фундаменты сборные. Схема расположения фундаментов. Фрагменты 2 и 3
   Тип I, II. Фундаменты сборные. Схема расположения фундаментов. Фрагменты 4 и 5. Сечения В-В, Г-Г, Д-Д
   Тип I. Фундаменты сборные. Фрагмент 6. Сечение 6-6. Схема расположения плит рампы
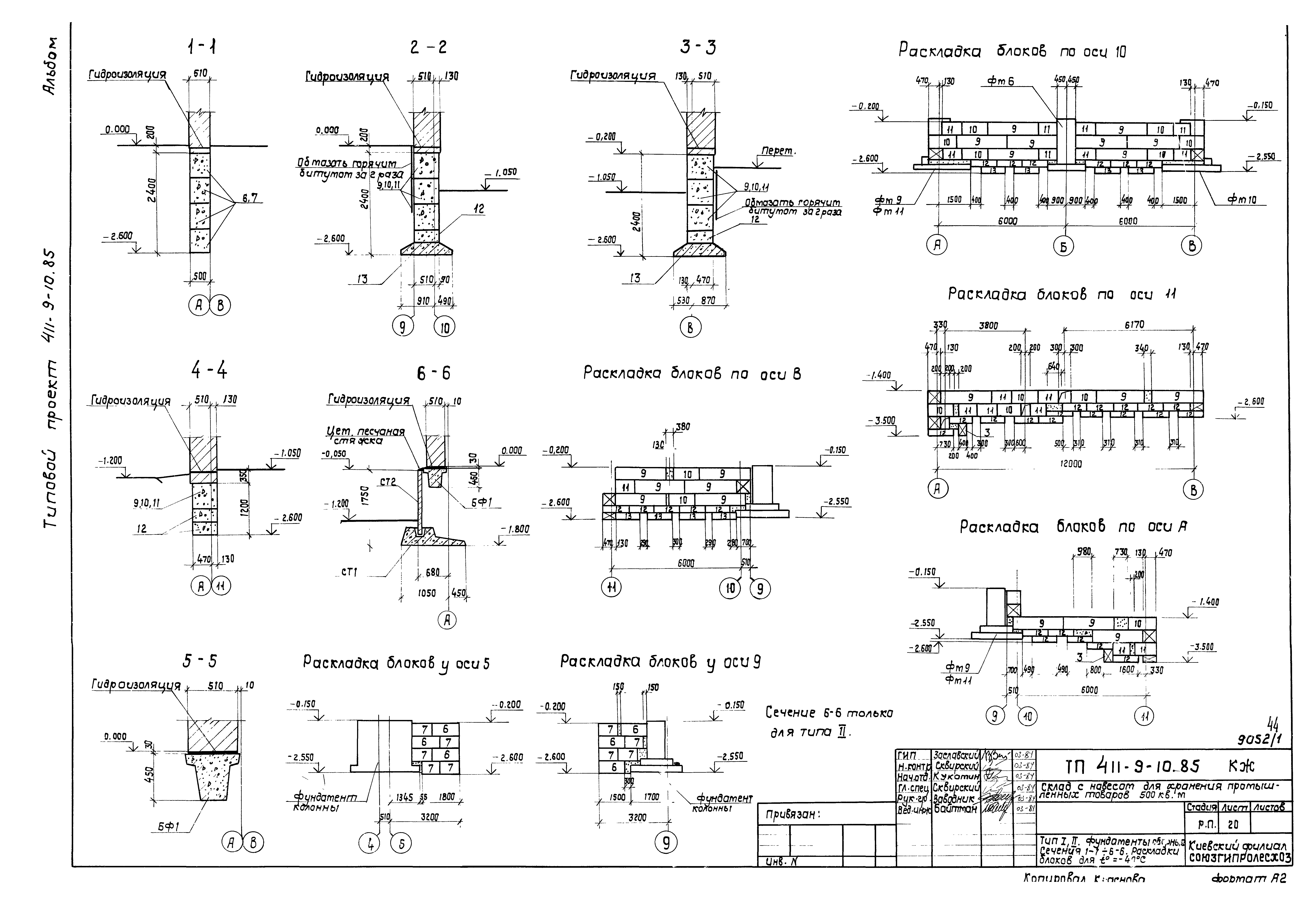
   Тип I, II. Фундаменты сборные. Сечения 1-1 - 6-6. Раскладки блоков для t = минус 20 градусов Цельсия
   Тип I, II. Фундаменты сборные. Сечения 1-1 - 6-6. Раскладки блоков для t = минус 30 градусов Цельсия
   Тип I, II. Фундаменты сборные. Сечения 1-1 - 6-6. Раскладки блоков для t = минус 40 градусов Цельсия
   Тип I. Фундаменты сборные. Спецификация элементов к схеме расположения фундаментов
   Тип II. Фундаменты сборные. Спецификация элементов к схеме расположения фундаментов
   Тип III, IV. Схема расположения фундаментов
   Тип III, IV. Сечения 1-1 - 4-4. Раскладки блоков для t = минус 20 градусов Цельсия
   Тип III, IV. Сечения 1-1 - 4-4. Раскладки блоков для t = минус 30 градусов Цельсия
   Тип III, IV. Сечения 1-1 - 4-4. Раскладки блоков для t = минус 40 градусов Цельсия
   Тип III, IV. Конструкция фундаментов Фм12 и Фм13
   Тип III, IV. Конструкция фундаментов Фм14 и Фм15 для t = минус 20 градусов Цельсия
   Тип III, IV. Конструкция фундаментов Фм14 и Фм15 для t = минус 30 градусов Цельсия
   Тип III, IV. Конструкция фундаментов Фм14 и Фм15 для t = минус 40 градусов Цельсия
   Тип III, IV. Конструкция фундаментов Фм16 - Фм18 для t = минус 20 градусов Цельсия
   Тип III, IV. Конструкция фундаментов Фм16 - Фм18 для t = минус 30 градусов Цельсия
   Тип III, IV. Конструкция фундаментов Фм16 - Фм18 для t = минус 40 градусов Цельсия
   Тип I. Схема расположения колонн, балок. Тип I, IV и плит покрытия
   Тип II - IV. Схема расположения колонн и балок покрытия
   Тип I - III. Монолитные участки Ум1 - Ум3
   Тип I - IV. Балки Б1 - Б5. Колонны К1 - К3. Плита П2
   Тип I - IV. Схема расположения козырьков
   Тип I - IV. Конструкция козырьков КР1 - КР2
   Тип IV. Подвесной путь
   Тип I - IV. Сетки С1 - С11. Изделия закладные МН1 и МН2. Решетка Р1
   Тип I - III. Молниезащита
Внутренние водопровод и канализация
   Общие данные
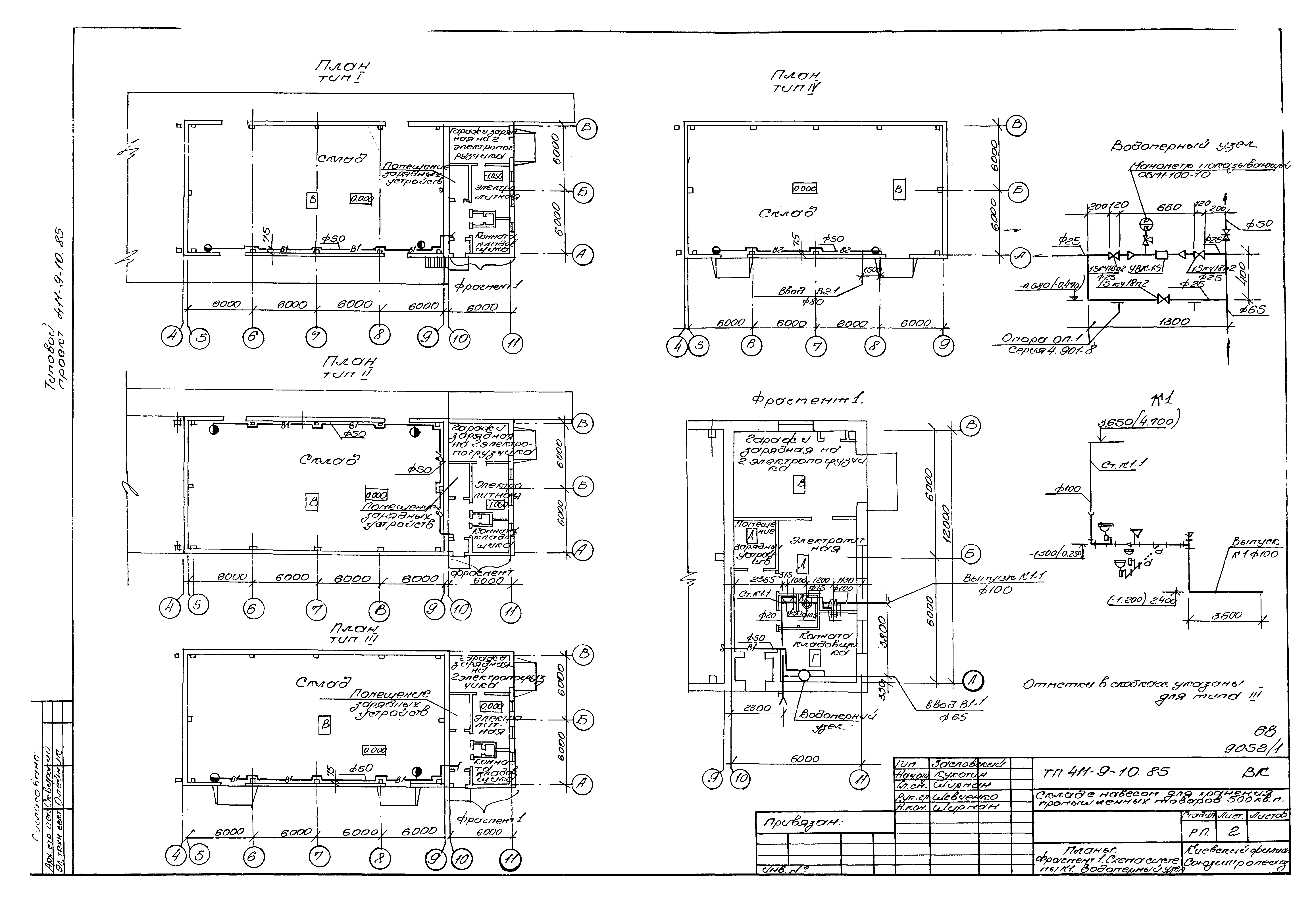
   Планы. Фрагмент 1. Схема системы К1. Водомерный узел
   Схемы систем В1, В2
Отопление и вентиляция
   Общие данные
   Планы
   Схемы систем отопления 1 (тип I, II) и 2 (тип I, II, III)
   Схемы систем отопления (тип III, IV)
   Схемы систем ВЕ1, ВЕ2, ВЕ3, ВЕ4, ВЕ5, ВЕ6, ВЕ7
   Тепловой узел
   Зонт. Общий вид
Силовое электрооборудование
   Общие данные. Спецификация
   План. Расчетные таблицы. Кабельный журнал
Электрическое освещение
   Общие данные
   Тип I. План. Спецификация. Таблица щитков. Схема питающей сети
   Тип II. План. Спецификация. Таблица щитков. Схема питающей сети
   Тип III. План. Спецификация. Таблица щитков. Схема питающей сети
   Тип IV. План. Спецификация. Таблица щитков. Схема питающей сети
   Радиофикация и телефонизация. План сетей
Разработан: Киевский филиал Союзгипролесхоз
Утверждён:06.08.1984 Гослесхоз СССР (USSR Gosleskhoz 11)
Расположен в:Техническая документация Строительство Справочные документы Типовые строительные конструкции, изделия и узлы Общероссийский строительный каталог Промышленные предприятия, здания и сооружения Предприятия, здания и сооружения складские Склады разные Склады лесоматериалов, лесных семян, лесохозяйственного инвентаря, бумаги и хлопка
Типовой проект 411-9-10.85Типовой проект 411-9-10.85Типовой проект 411-9-10.85Типовой проект 411-9-10.85Типовой проект 411-9-10.85Типовой проект 411-9-10.85Типовой проект 411-9-10.85Типовой проект 411-9-10.85Типовой проект 411-9-10.85Типовой проект 411-9-10.85Типовой проект 411-9-10.85Типовой проект 411-9-10.85Типовой проект 411-9-10.85Типовой проект 411-9-10.85Типовой проект 411-9-10.85Типовой проект 411-9-10.85Типовой проект 411-9-10.85Типовой проект 411-9-10.85Типовой проект 411-9-10.85Типовой проект 411-9-10.85Типовой проект 411-9-10.85Типовой проект 411-9-10.85Типовой проект 411-9-10.85Типовой проект 411-9-10.85Типовой проект 411-9-10.85Типовой проект 411-9-10.85Типовой проект 411-9-10.85Типовой проект 411-9-10.85Типовой проект 411-9-10.85Типовой проект 411-9-10.85Типовой проект 411-9-10.85Типовой проект 411-9-10.85Типовой проект 411-9-10.85Типовой проект 411-9-10.85Типовой проект 411-9-10.85Типовой проект 411-9-10.85Типовой проект 411-9-10.85Типовой проект 411-9-10.85Типовой проект 411-9-10.85Типовой проект 411-9-10.85Типовой проект 411-9-10.85Типовой проект 411-9-10.85Типовой проект 411-9-10.85Типовой проект 411-9-10.85Типовой проект 411-9-10.85Типовой проект 411-9-10.85Типовой проект 411-9-10.85Типовой проект 411-9-10.85Типовой проект 411-9-10.85Типовой проект 411-9-10.85Типовой проект 411-9-10.85Типовой проект 411-9-10.85Типовой проект 411-9-10.85Типовой проект 411-9-10.85Типовой проект 411-9-10.85Типовой проект 411-9-10.85Типовой проект 411-9-10.85Типовой проект 411-9-10.85Типовой проект 411-9-10.85Типовой проект 411-9-10.85Типовой проект 411-9-10.85Типовой проект 411-9-10.85Типовой проект 411-9-10.85Типовой проект 411-9-10.85Типовой проект 411-9-10.85Типовой проект 411-9-10.85Типовой проект 411-9-10.85Типовой проект 411-9-10.85Типовой проект 411-9-10.85Типовой проект 411-9-10.85Типовой проект 411-9-10.85Типовой проект 411-9-10.85Типовой проект 411-9-10.85Типовой проект 411-9-10.85Типовой проект 411-9-10.85Типовой проект 411-9-10.85Типовой проект 411-9-10.85Типовой проект 411-9-10.85Типовой проект 411-9-10.85Типовой проект 411-9-10.85Типовой проект 411-9-10.85Типовой проект 411-9-10.85Типовой проект 411-9-10.85Типовой проект 411-9-10.85Типовой проект 411-9-10.85

© 2013 Ёшкин Кот :-) Карта сайта