| ||||||||||||||||||||||||||||
Скачать Типовые материалы для проектирования 407-0-171.87 Альбом 1. Электротехнические решения. Спецификации оборудованияДата актуализации: 10.08.2017
|
| Обозначение: | Типовые материалы для проектирования 407-0-171.87 |
| Обозначение англ: | 407-0-171.87 |
| Статус: | cправочные материалы, мп, тпр |
| Название рус.: | Альбом 1. Электротехнические решения. Спецификации оборудования |
| Дата добавления в базу: | 01.09.2013 |
| Дата актуализации: | 05.05.2017 |
| Дата введения: | 28.08.1987 |
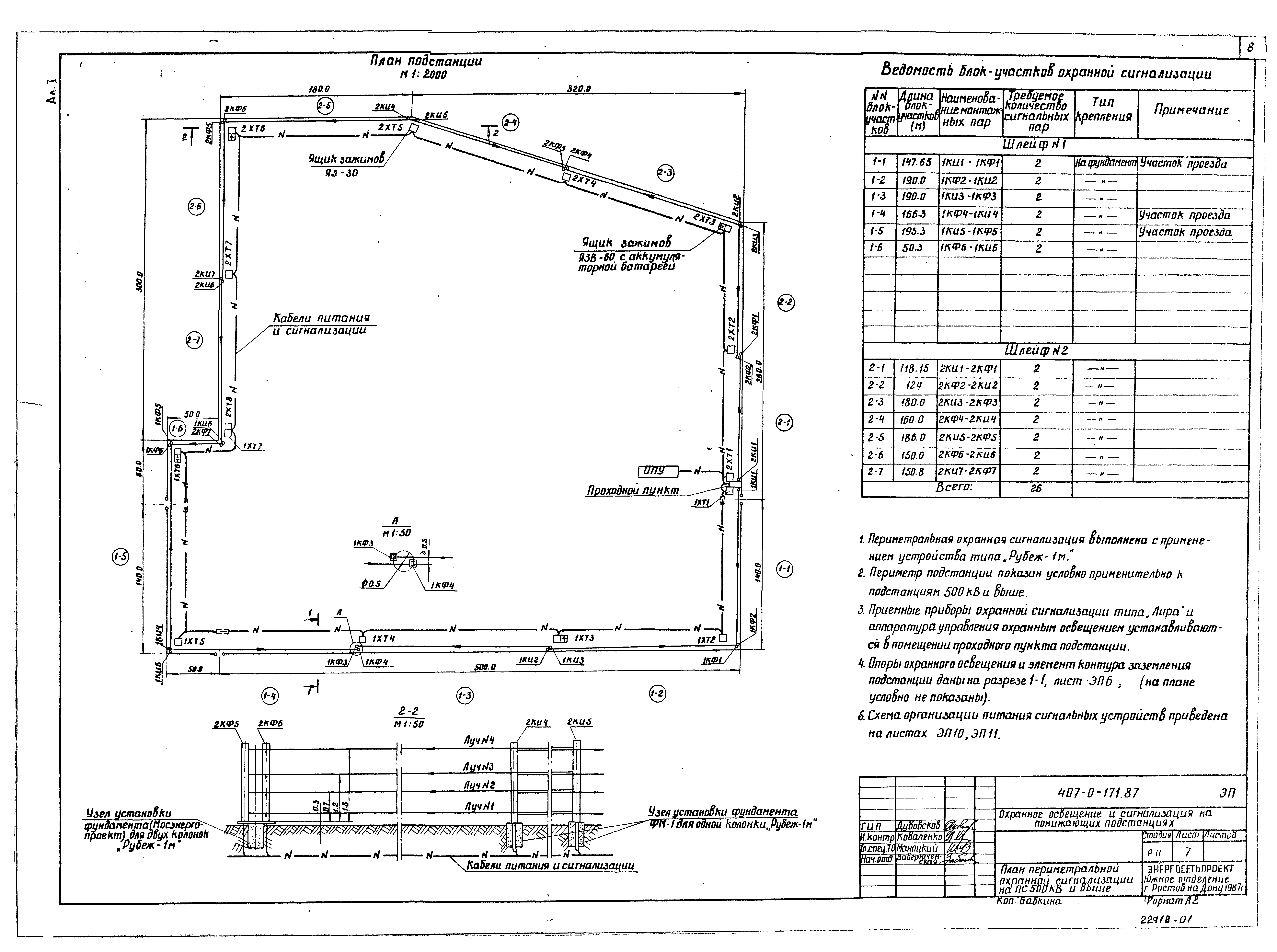
| Оглавление: | Чертежи основного комплекта марки ЭП Общие данные План периметральной охранной сигнализации для ПС 220 - 330 кВ План периметральной охранной сигнализации для ПС 500 кВ и выше Охранное освещение. План Охранное освещение. Ведомость опор, оборудования и материалов Схема организации питания сигнальных устройств и охранного освещения Схема организации питания охранных извещателей "Рубеж-1м" Размещение оборудования на стене помещения ПУ Ящик зажимов ЯЗВ-60 с аккумуляторной батареей 10х2ФНК-9-1У3 Узел установки фундамента ФМ-1 для одной колонки "Рубеж-1м" (вариант 1) Узел установки фундамента ФМ-1 для одной колонки "Рубеж-1м" (вариант 2) Узел установки фундамента "Мосэнергопроект" для двух колонок "Рубеж-1м" Журнал силовых кабелей Чертежи основного комплекта марки ЭВ Охранная сигнализация. Схема электрическая полная Охранная сигнализация. Схема кабельных связей цепей управления и сигнализации Охранная сигнализация. Извещатель. Схема подключения Охранная сигнализация. Аппаратура в пункте управления. Схема подключения Охранное освещение. Схема управления Журнал контрольных кабелей Спецификации оборудования |
| Разработан: | Южное отделение Энергосетьпроекта |
| Утверждён: | 28.08.1987 Минэнерго СССР (USSR Minenergo 36) |
| Расположен в: | |
| Заменяет собой: |
|

































