Информационная система
«Ёшкин Кот»

Скачать базу одним архивом
Скачать обновления
История создания базы
Карта сайта

Скачать Типовой проект 902-1-164.90 Альбом 2. Технология производства. Внутренний водопровод и канализация. Отопление и вентиляция

Дата актуализации: 10.08.2017

Типовой проект 902-1-164.90

Альбом 2. Технология производства. Внутренний водопровод и канализация. Отопление и вентиляция

Обозначение: Типовой проект 902-1-164.90
Обозначение англ: 902-1-164.90
Статус:не определен законодательством
Название рус.:Альбом 2. Технология производства. Внутренний водопровод и канализация. Отопление и вентиляция
Дата добавления в базу:01.09.2013
Дата актуализации:05.05.2017
Дата введения:15.05.1990
Оглавление:Технология производства ТХ
   Общие данные
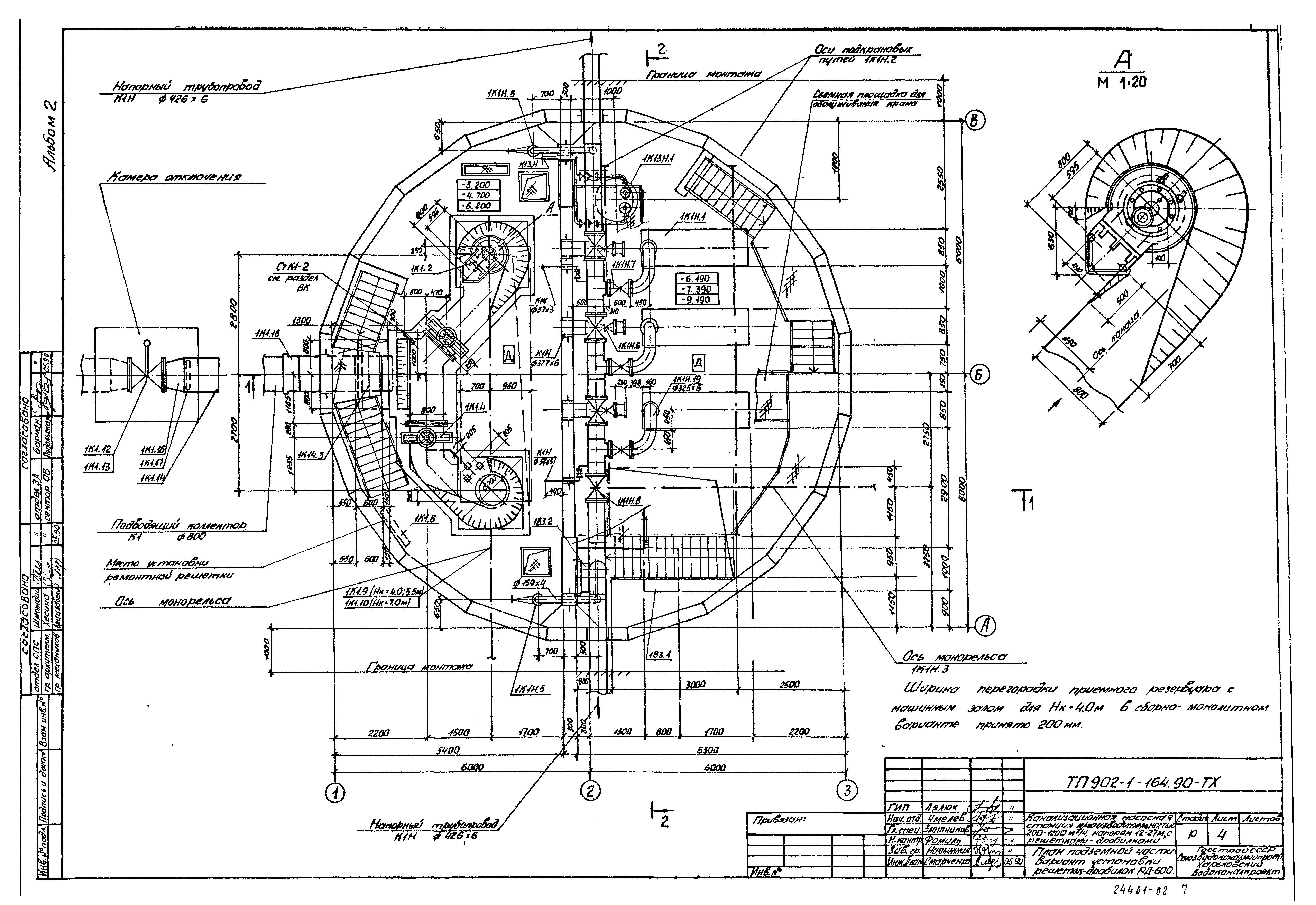
   План подземной части. Вариант установки решеток-дробилок КРД40М
   План надземной части. Вариант установки решеток-дробилок РД-600
   Разрез 1-1 (установка решеток-дробилок КРД40М)
   Разрез 1-1 (установка решеток-дробилок РД-600)
   Разрез 2-2
   План приемного резервуара. Разрез 3-3
   Схема узла подводящего коллектора. Схемы систем 1К1, 1К1Н. Схема управления аварийной заслонкой
   План машинного зала с системой В3. Схемы систем 1В3, 1К13, 1К13Н
Внутренний водопровод и канализация ВК
   Общие данные. План на отм. 0.000. Схемы систем В1, К1, Т3
Отопление и вентиляция ОВ
   Общие данные
   План на отм. 0.000
   План на отм. - 3.200; - 4.700; - 6.200; - 6.190. Разрез 1-1, 2-2
   План на отм. - 7.390; - 9.190 между осями 2 - 3. Схемы систем П1, П2, В2, ВЕ1
   Схемы систем отопления, теплоснабжения водоподогревателя, установки П1. Узла управления
   Установки систем П1, П2
   Установки систем В1, В2
Разработан: Харьковский Водоканалпроект
Утверждён:15.05.1990 СоюзводоканалНИИпроект (SoyuzvodokanalNIIproject 9)
Издан: ЦИТП Госстроя СССР (CITP, Gosstroy (USSR) 1990 г. )
Расположен в:Техническая документация Строительство Справочные документы Типовые строительные конструкции, изделия и узлы Общероссийский строительный каталог Промышленные предприятия, здания и сооружения Здания и сооружения санитарно-технические Канализация Станции насосные Станции насосные для перекачки бытовых сточных вод
Заменяет собой:
Типовой проект 902-1-164.90Типовой проект 902-1-164.90Типовой проект 902-1-164.90Типовой проект 902-1-164.90Типовой проект 902-1-164.90Типовой проект 902-1-164.90Типовой проект 902-1-164.90Типовой проект 902-1-164.90Типовой проект 902-1-164.90Типовой проект 902-1-164.90Типовой проект 902-1-164.90Типовой проект 902-1-164.90Типовой проект 902-1-164.90Типовой проект 902-1-164.90Типовой проект 902-1-164.90Типовой проект 902-1-164.90Типовой проект 902-1-164.90Типовой проект 902-1-164.90Типовой проект 902-1-164.90Типовой проект 902-1-164.90Типовой проект 902-1-164.90

© 2013 Ёшкин Кот :-) Карта сайта