Скачать Типовой проект 407-3-636.92 Альбом 2. Электротехнические чертежи (вариант со шкафами КРУ серии К-104М). Строительные чертежи (вариант со шкафами КРУ серии К-104М). Электротехнические чертежи (вариант со шкафами КРУ серий КМ-1М, КМ-1Ф). Строительные чертежи (вариант со шкафами КРУ серий КМ-1М, КМ-1Ф). Отопление и вентиляцияДата актуализации: 10.08.2017 Типовой проект 407-3-636.92
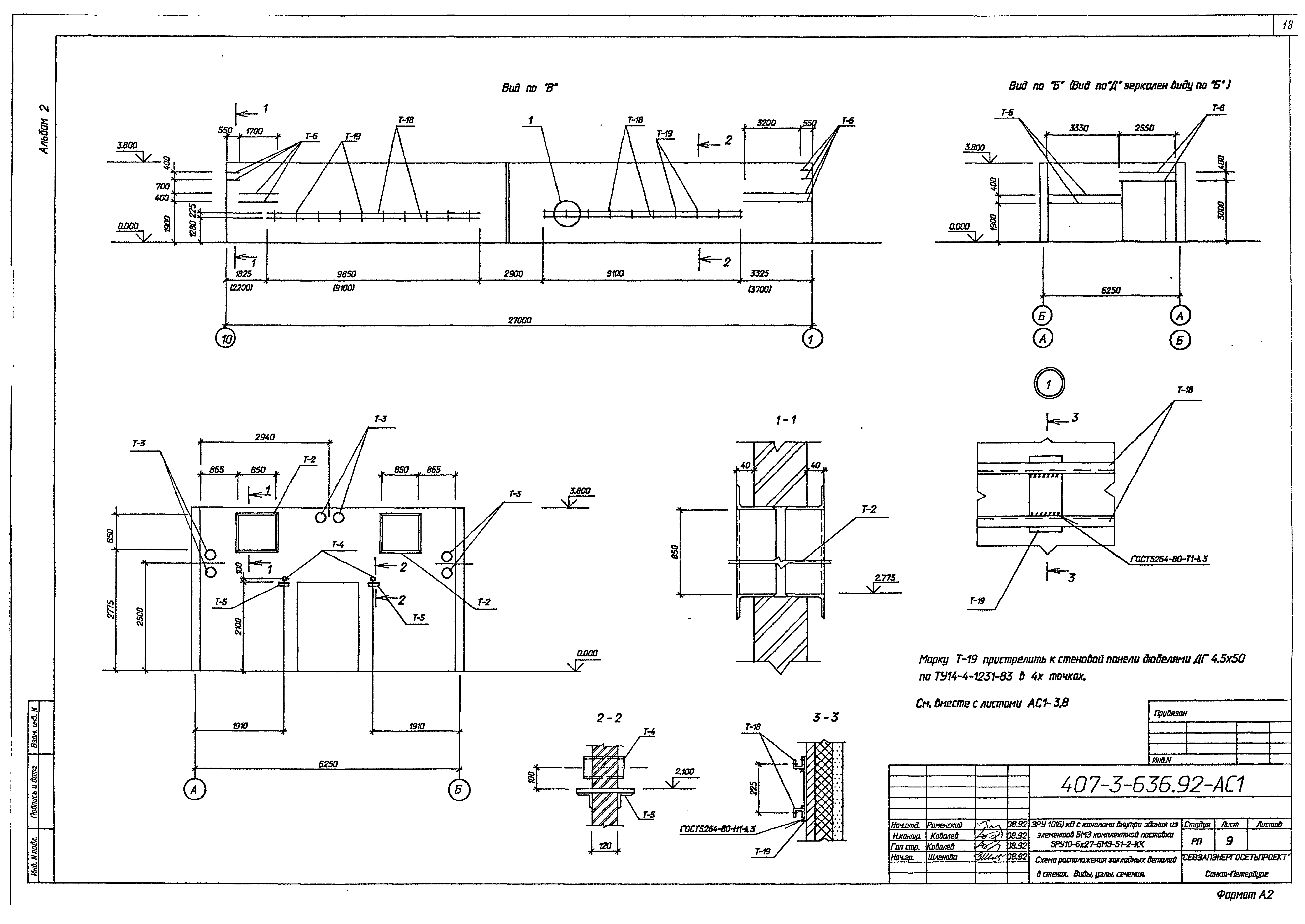
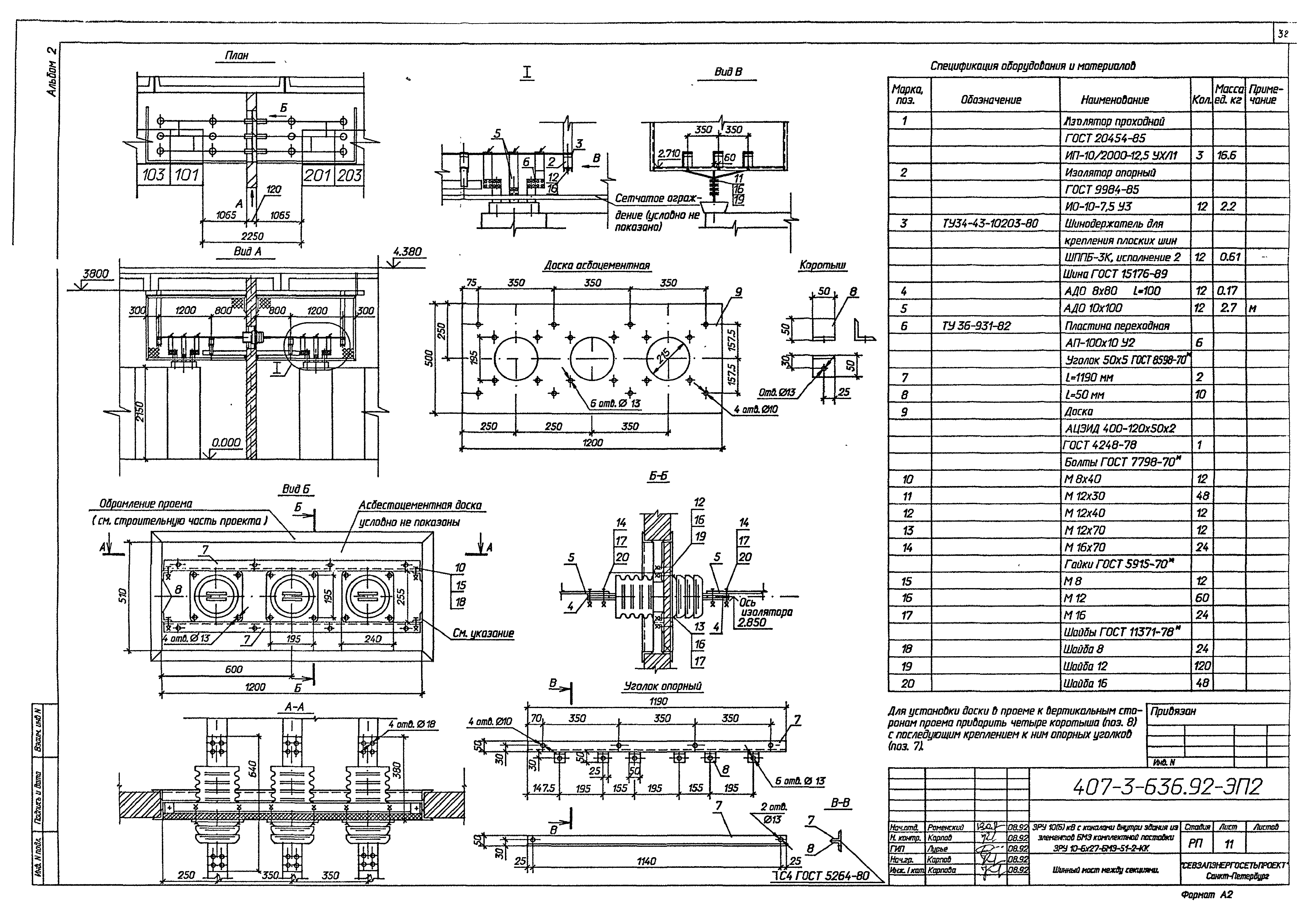
Альбом 2. Электротехнические чертежи (вариант со шкафами КРУ серии К-104М). Строительные чертежи (вариант со шкафами КРУ серии К-104М). Электротехнические чертежи (вариант со шкафами КРУ серий КМ-1М, КМ-1Ф). Строительные чертежи (вариант со шкафами КРУ серий КМ-1М, КМ-1Ф). Отопление и вентиляцияОбозначение: | Типовой проект 407-3-636.92 | Обозначение англ: | 407-3-636.92 | Статус: | cправочные материалы, мп, тпр | Название рус.: | Альбом 2. Электротехнические чертежи (вариант со шкафами КРУ серии К-104М). Строительные чертежи (вариант со шкафами КРУ серии К-104М). Электротехнические чертежи (вариант со шкафами КРУ серий КМ-1М, КМ-1Ф). Строительные чертежи (вариант со шкафами КРУ серий КМ-1М, КМ-1Ф). Отопление и вентиляция | Дата добавления в базу: | 01.09.2013 | Дата актуализации: | 05.05.2017 | Дата введения: | 28.08.1992 | Оглавление: | Чертежи основного комплекта марки ЭП1 Общие данные Расстановка шкафов КРУ на ток 1600 А. План, разрезы А-А, Б-Б Расстановка шкафов КРУ на ток 2600 А. План, разрезы А-А, Б-Б Освещение Электрическое отопление и вентиляция Журнал силовых кабелей Установка шкафа КРУ серии К-104М Установка перемычки 10(6) кВ Установка шинного ввода Разводка кабелей 10(6) кВ Схемы заполнения шкафов КРУ Расстановка кабельных конструкций. План, разрезы А-А, Б-Б Чертежи основного комплекта марки АС1 Общие данные План на отм. 0.000 Разрезы. План кровли Архитектурные узлы А, Б. Фрагмент входа №1 Фасады Фрагмент фасада 1 Схема расположения закладных деталей в стенах. План, вид по "А" Схема расположения закладных деталей в стенах. Виды, узлы, сечения Схема расположения фундаментов здания. План Схема расположения фундаментов здания. Узлы, сечения Схема расположения стеновых панелей Схема расположения плит покрытия здания Схема расположения каналов, приямков и плит покрытия Схема расположения каналов, приямков и плит покрытия. Сечения Чертежи основного комплекта марки ЭП2 Общие данные Расстановка шкафов КРУ на ток 1600 А. План, разрезы А-А, Б-Б Расстановка шкафов КРУ на ток 3150 А. План, разрезы А-А, Б-Б Освещение Электрическое отопление и вентиляция Журнал силовых кабелей Установка шкафа КРУ серии КМ-1ф, КМ-1М Разводка кабелей 10(6) кВ Конструкция для крепления шинного ввода (ШШВ) и шкафа шинной перемычки (ШШП) Установка проходных изоляторов Шинный мост между секциями Расстановка кабельных конструкций. План, разрезы А-А, Б-Б Схемы заполнения шкафов КРУ Чертежи основного комплекта марки АС2 Общие данные План на отм. 0.000 Разрезы. План кровли Архитектурные узлы А, Б. Фрагмент входа №1 Фасады Фрагмент фасада 1 Схема расположения закладных деталей в стенах. План, виды Схема расположения закладных деталей в стенах. Вид по "Г" Схема расположения фундаментов здания. План Схема расположения фундаментов здания. Узлы, сечения Схема расположения стеновых панелей Схема расположения плит покрытия здания Схема расположения плит покрытия здания. Фрагмент 1 Схемы расположения каналов, приямков и плит покрытия Схемы расположения каналов, приямков и плит покрытия. Сечения Чертежи основного комплекта марки ОВ Общие данные План на отм. 0.000. Общие указания Установка и рамы для установки 2-х электропечей Установка и рамы для установки 3-х электропечей | Разработан: | Севзапэнергосетьпроект
| Утверждён: | 28.08.1992 Севзапэнергосетьпроект (7)
| Принят: | Минсктиппроект
| Расположен в: |
|
                                                   
|