Информационная система
«Ёшкин Кот»

Скачать базу одним архивом
Скачать обновления
История создания базы
Карта сайта

Скачать Типовой проект 407-3-596.90 Альбом 8. Отопление и вентиляция. Внутренние водопровод и канализация

Дата актуализации: 10.08.2017

Типовой проект 407-3-596.90

Альбом 8. Отопление и вентиляция. Внутренние водопровод и канализация

Обозначение: Типовой проект 407-3-596.90
Обозначение англ: 407-3-596.90
Статус:не определен законодательством
Название рус.:Альбом 8. Отопление и вентиляция. Внутренние водопровод и канализация
Дата добавления в базу:01.09.2013
Дата актуализации:05.05.2017
Дата введения:01.02.1991
Оглавление:Отопление и вентиляция
   Общие данные
   План кабельного помещения на отм. - 3.100
   План на отм. 0.000 в осях 1…8
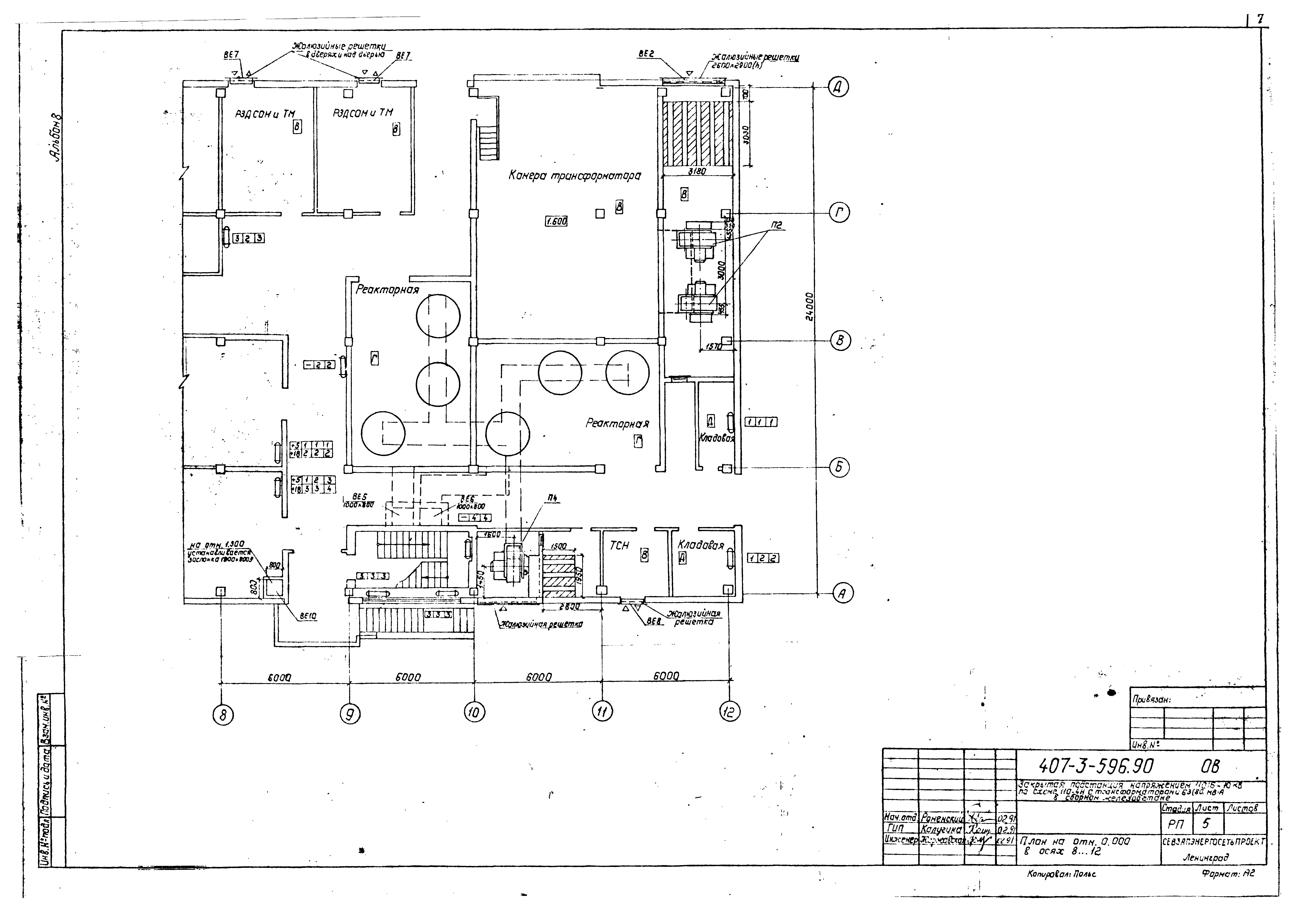
   План на отм. 0.000 в осях 8…12
   План на отм. 4.800 в осях 1…8
   План на отм. 4.800 в осях 8…12
   Приточные установки П1, П2 для вентиляции трансформаторов
   Камера шумоглушения в осях 1.2, 11.12 на отм. 4.800. Установка ВЕ1, ВЕ2 для трансформаторов
   Приточные установки П3, П4 для вентиляции реакторных камер
   Схемы вентиляционных систем
   Установка двух и трех электропечей
Водоснабжение и канализация
   Общие данные
   План кабельного помещения с сетями водоснабжения и канализации (вариант с воздушными (кабельными) вводами)
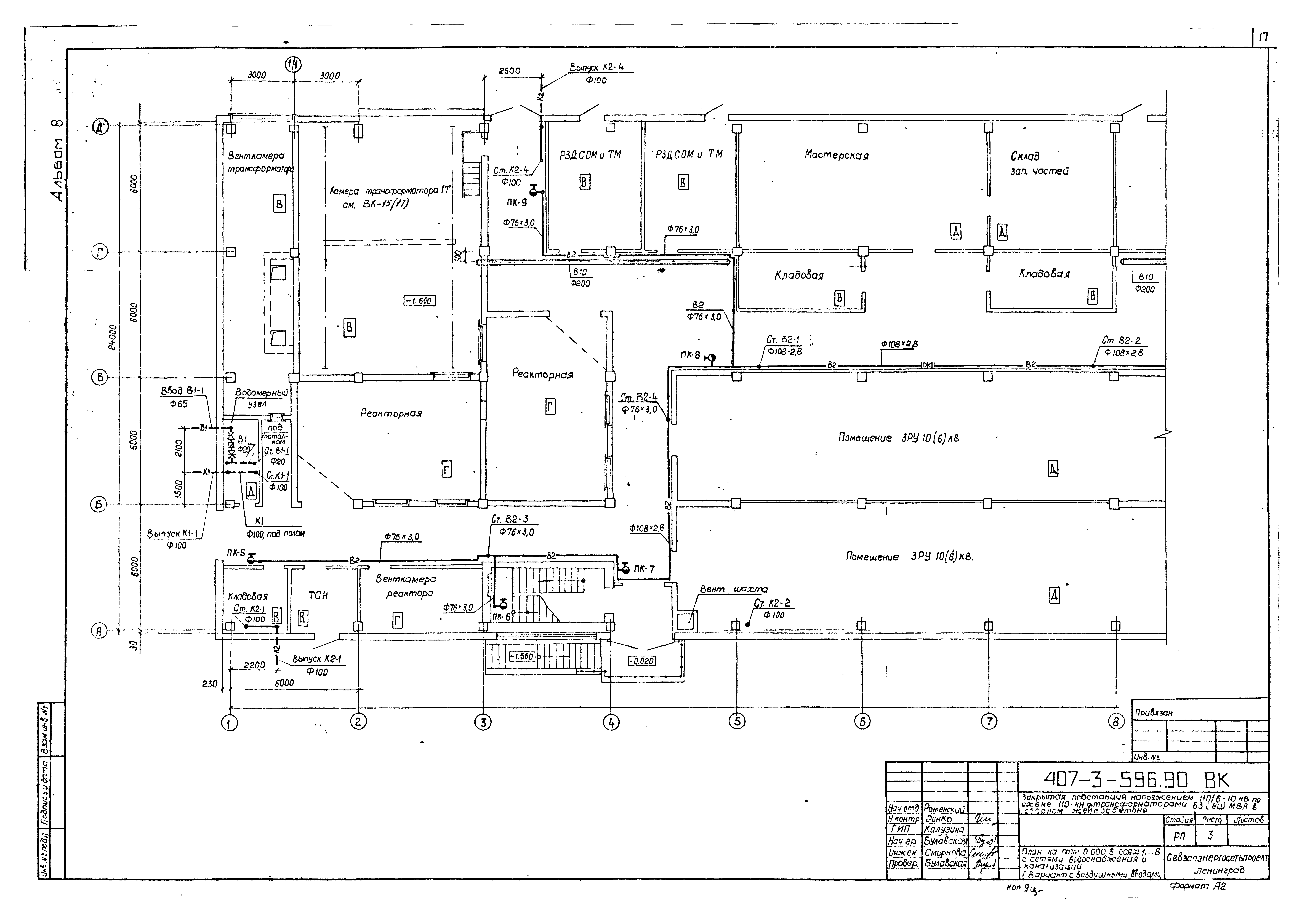
   План на отм. 0.000 в осях 1…8 с сетями водоснабжения и канализации (вариант с воздушными вводами)
   План на отм. 0.000 в осях 8…12 с сетями водоснабжения и канализации (вариант с воздушными вводами)
   План на отм. 4.800 в осях 1…8 с сетями водоснабжения и канализации (вариант с воздушными (кабельными) вводами)
   План на отм. 4.800 в осях 8…12 с сетями водоснабжения и канализации (вариант с воздушными (кабельными) вводами)
   Насосная станция пожаротушения и узлы управления. План на отм. - 3.800. Разрезы (вариант с воздушными вводами)
   Насосная станция пожаротушения и узлы управления. План на отм. - 3.800. Разрезы (вариант с кабельными вводами)
   Насосная станция пожаротушения и узлы управления. Аксонометрическая схема (вариант с воздушными вводами)
   Насосная станция пожаротушения и узлы управления. Аксонометрическая схема (вариант с кабельными вводами)
   Фрагмент плана на отм. 0.000. Схема системы В10 в кабельных помещениях и помещениях для кабельных муфт (вариант с воздушными (кабельными) вводами)
   Схемы систем В1, В10 (вариант с воздушными (кабельными) вводами)
   План кровли с водосточными воронками. Схемы системы К2 (вариант с воздушными (кабельными) вводами)
   Схемы систем К1, К3.1, К13 (вариант с воздушными (кабельными) вводами)
   Трубная обвязка трансформатора Т1 типа ТРДН-63000/110. План. Разрезы (с кабельными (воздушными) вводами)
   Трубная обвязка трансформатора Т2 типа ТРДН-63000/110. План. Разрезы (с кабельными (воздушными) вводами)
   Трубная обвязка трансформатора Т1 типа ТРДН-80000/110. План. Разрезы (с кабельными (воздушными) вводами)
   Трубная обвязка трансформатора Т2 типа ТРДН-80000/110. План. Разрезы (с кабельными (воздушными) вводами)
   Трубная обвязка трансформаторов 63(80) МВА. Аксонометрическая схема (с кабельными (воздушными) вводами)
Разработан: Севзапэнергосетьпроект
Утверждён:01.02.1991 Минэнерго СССР (USSR Minenergo 1)
Издан: Севзапэнергосетьпроект (1991 г. )
Расположен в:Техническая документация Строительство Справочные документы Типовые строительные конструкции, изделия и узлы Общероссийский строительный каталог Промышленные предприятия, здания и сооружения Предприятия, здания и сооружения промышленности и электроэнергетики Электроэнергетика Устройства и подстанции распределительные
Типовой проект 407-3-596.90Типовой проект 407-3-596.90Типовой проект 407-3-596.90Типовой проект 407-3-596.90Типовой проект 407-3-596.90Типовой проект 407-3-596.90Типовой проект 407-3-596.90Типовой проект 407-3-596.90Типовой проект 407-3-596.90Типовой проект 407-3-596.90Типовой проект 407-3-596.90Типовой проект 407-3-596.90Типовой проект 407-3-596.90Типовой проект 407-3-596.90Типовой проект 407-3-596.90Типовой проект 407-3-596.90Типовой проект 407-3-596.90Типовой проект 407-3-596.90Типовой проект 407-3-596.90Типовой проект 407-3-596.90Типовой проект 407-3-596.90Типовой проект 407-3-596.90Типовой проект 407-3-596.90Типовой проект 407-3-596.90Типовой проект 407-3-596.90Типовой проект 407-3-596.90Типовой проект 407-3-596.90Типовой проект 407-3-596.90Типовой проект 407-3-596.90Типовой проект 407-3-596.90Типовой проект 407-3-596.90Типовой проект 407-3-596.90Типовой проект 407-3-596.90Типовой проект 407-3-596.90

© 2013 Ёшкин Кот :-) Карта сайта