Информационная система
«Ёшкин Кот»

Скачать базу одним архивом
Скачать обновления
История создания базы
Карта сайта

Скачать Типовой проект 407-3-596.90 Альбом 6. Конструкции металлические

Дата актуализации: 10.08.2017

Типовой проект 407-3-596.90

Альбом 6. Конструкции металлические

Обозначение: Типовой проект 407-3-596.90
Обозначение англ: 407-3-596.90
Статус:не определен законодательством
Название рус.:Альбом 6. Конструкции металлические
Дата добавления в базу:01.09.2013
Дата актуализации:05.05.2017
Дата введения:01.02.1991
Оглавление:Общие данные
Схемы установки стремянок в камеры трансформаторов по осям А и Д
Монолитные участки УМ-1, УМ-2, УМ-3, УМ-10. Схемы расположения стальных элементов
Монолитные участки УМ-4…УМ-9. Схемы расположения стальных элементов
Схемы расположения металлоконструкций для установки глушителей на отм. 0.000 в осях 1 - 1/1; 2 - 3
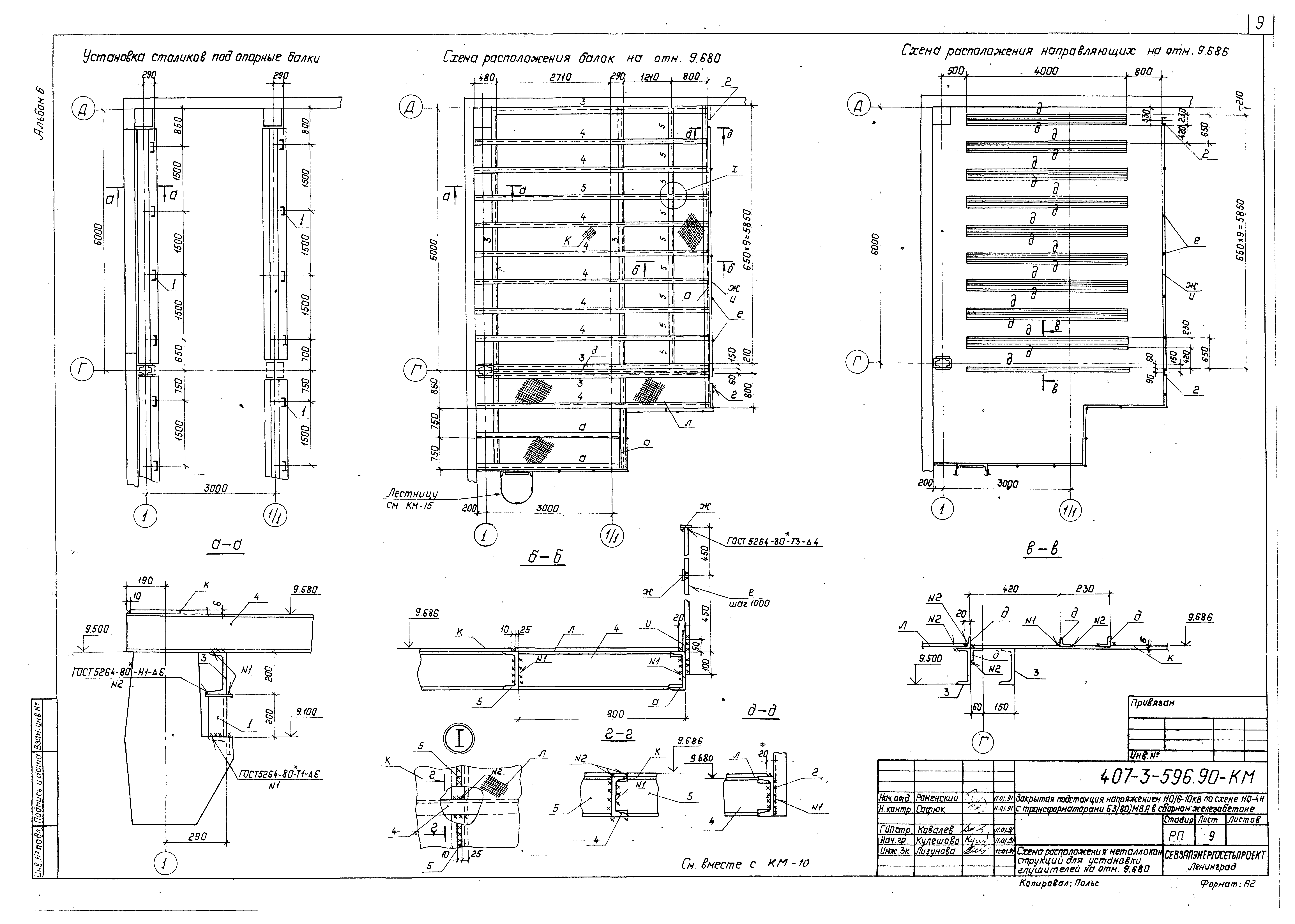
Схемы расположения металлоконструкций для установки глушителей на отм. 9.680
Схемы расположения металлоконструкций для установки глушителей на отм. 9.680. Узлы А…Г. Спецификация
Схема расположения площадок на отм. 9.250; 10.770; 11.000. Фрагмент 1
Схема расположения площадок на отм. 9.250; 10.770; 11.000. Фрагмент 2
Схема расположения площадок на отм. 9.250; 10.770; 11.000. Фрагмент 3
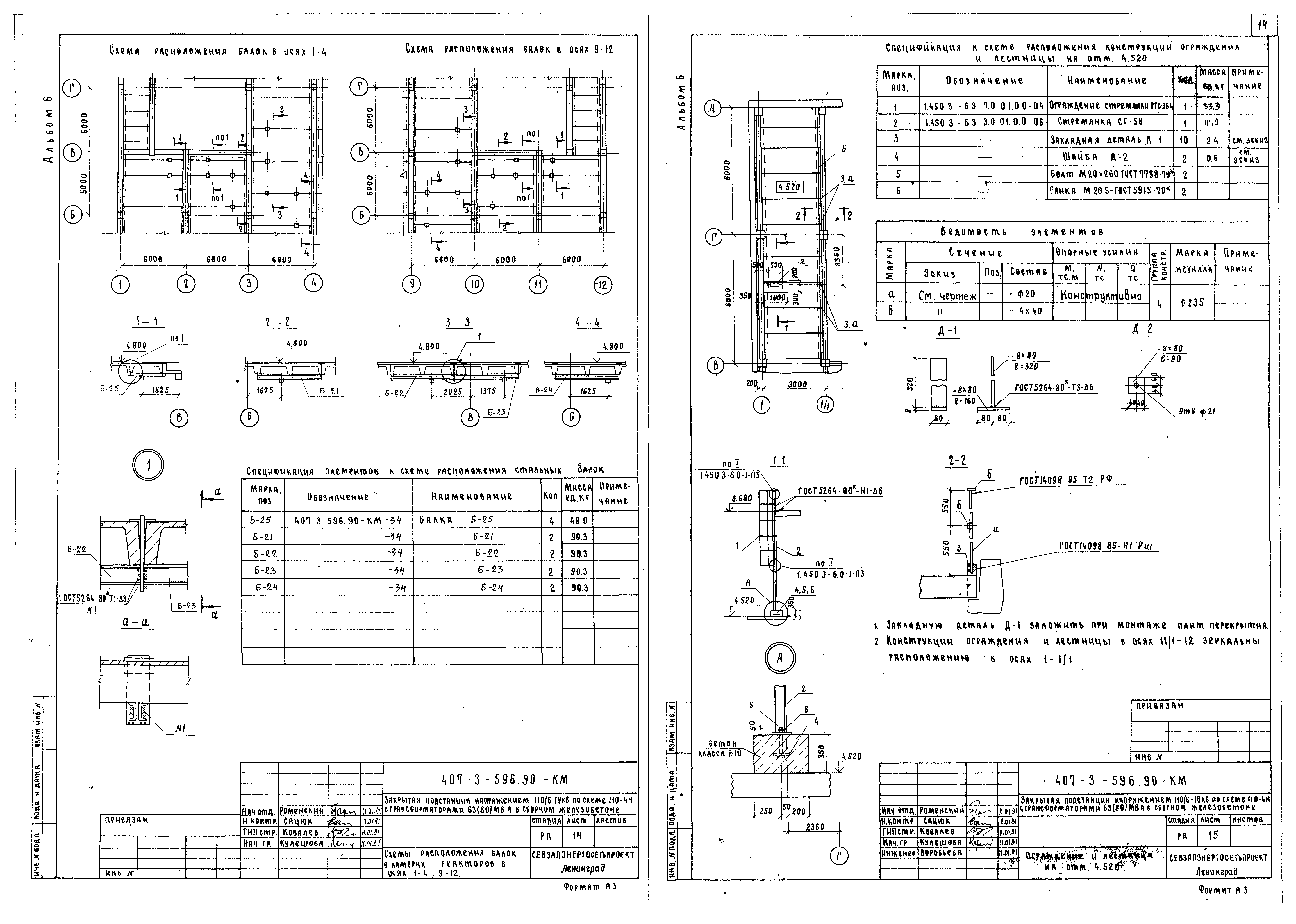
Схемы расположения балок в камерах реакторов в осях 1 - 4; 9 - 12
Ограждение и лестница на отм. 4.520
Лестница ЛМ-1 в камерах трансформаторов Т1, Т2
Лестница ЛМ-2 в помещении насосной
Лестницы пожарные ЛП-1, ЛП-2
Схема расположения кранбалок и монорельсов. Разрезы 1-1…4-4
Схема расположения кранбалок и монорельсов. Разрезы 5-5, 6-6. Узлы
Схема расположения опор под оборудование в ЗРУ110 кВ
Камеры трансформаторов Т1, Т2. Схемы расположения опор под оборудование
Установочный чертеж дверей МТ-2, МТ-3
Схема расположения элементов портала в ЗРУ110 кВ
Схемы расположения защитных козырьков над входами в камеры ТСН, ТМ и РЗДСОМ
Металлическая дверь МТ-2, МТ-3. Ведомость элементов
Схема расположения шинных мостов в камере трансформатора Т1
Схема расположения шинных мостов в камере трансформатора Т2
Спецификация элементов к схеме расположения шинных мостов в камере трансформатора Т1
Спецификация элементов к схеме расположения шинных мостов в камере трансформатора Т2
Схемы расположения шинных мостов в коридорах на отм. 2.700 и 3.250
Схемы расположения шинных мостов в коридорах на отм. 2.700 и 3.250. Сечения 1-1…8-8. Узлы I…III
Балки Б-7…Б-20
Балки Б-21…Б-29. Изделия М-1…М-6, М-11
Стремянка СГ-1, ограждение стремянки ОГС-1, стойка ограждения стремянки СТПГ-1. Балка Б-1
Лестницы Л-1…Л-3. Ограждение ОГ-1, стремянка СГ-2
Балки МБ-1…МБ-6
Балки МБ-7…МБ-12
Балка Б-2
Опора ТО-1 под разъединитель РДЗ-1(2)-110/1000УХЛ1
Опора ТО-2 под трансформатор напряжения НКФ-110-83У1
Опора ТО-3 под высокочастотный заградитель ВЗ-630-0,5У1 и конденсатор связи СМП-110V3-6,4У1
Опора ТО-4 под разрядник вентильного типа РВС-110М
Опора ТО-5 под выключатель ВМТ-110Б-25/1250УХЛ1
Опора ТО-6 под трансформатор тока ТФЗМ-110Б-IVУ1
Опора ТО-7 под шинную опору ШО-110-УХЛ1
Металлическая дверь МТ-4. Ведомость элементов
Траверса Т-1
Стойка СК-1
Ограждение ЛО-1, ЛО-2
Балки Б-30, Б-31
Балки Б-3, Б-4
Ограждение сетчатое СО-12
Изделия М-7…М-10
Балки Б-5, Б-6
Ограждение сетчатое СО-1…СО-11
Связи СП1, СП2
Стойка СФ-10А
Панель П1, П2
Металлическая дверь МТ-1
Металлическая дверь МТ-1. Комплекты "Б", "В", "Г", "К"
Металлическая дверь МТ-1. Комплекты "Ж", "И", "Л"
Металлическая дверь МТ-2, МТ-3. Общий вид
Металлическая дверь МТ-4. Общий вид
Металлическая дверь МДШ-1п, МДШ-1л
Металлическая дверь МДШ-1п, МДШ-1л. Узлы
Металлическая дверь МДШ-1п, МДШ-1л. Марка СШ-1
Металлическая дверь МДШ-1п, МДШ-1л. Марки СШ-2…СШ-7
Металлическая дверь МДШ-1п, МДШ-1л. Петля левая (правая) ПВл (ПВп), нижняя левая (правая) ПНл (ПНп)
Изделия МШ-1…МШ-13, МШ-16…МШ-21
Опора МШ-14
Изделия МШ-22…МШ-25, МШ-63
Изделия МШ-26…МШ-35
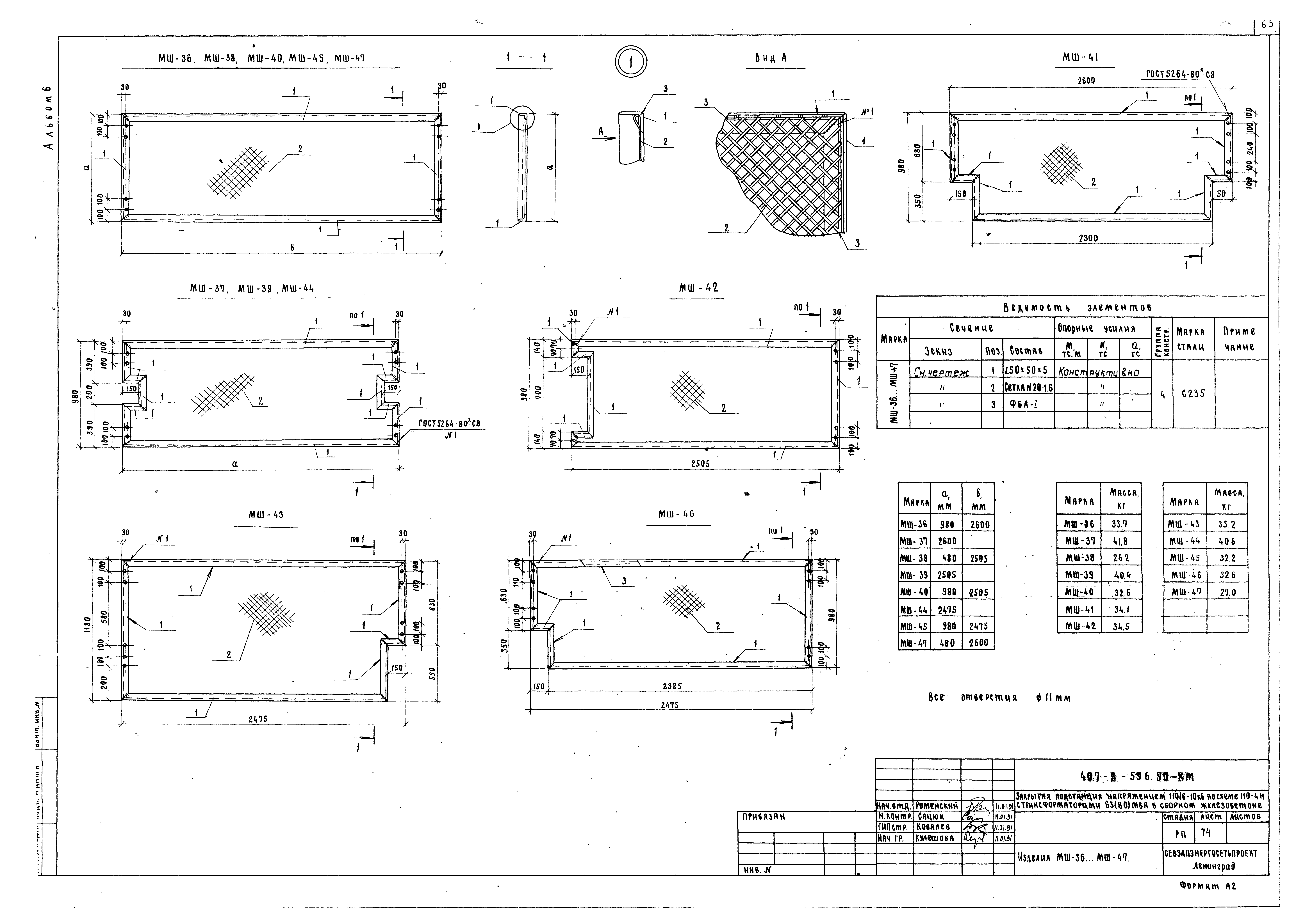
Изделия МШ-36…МШ-47
Изделия МШ-48…МШ-62
Площадка монтажная ПМ-1
Разработан: Севзапэнергосетьпроект
Утверждён:01.02.1991 Минэнерго СССР (USSR Minenergo 1)
Издан: Севзапэнергосетьпроект (1991 г. )
Расположен в:Техническая документация Строительство Справочные документы Типовые строительные конструкции, изделия и узлы Общероссийский строительный каталог Промышленные предприятия, здания и сооружения Предприятия, здания и сооружения промышленности и электроэнергетики Электроэнергетика Устройства и подстанции распределительные
Типовой проект 407-3-596.90Типовой проект 407-3-596.90Типовой проект 407-3-596.90Типовой проект 407-3-596.90Типовой проект 407-3-596.90Типовой проект 407-3-596.90Типовой проект 407-3-596.90Типовой проект 407-3-596.90Типовой проект 407-3-596.90Типовой проект 407-3-596.90Типовой проект 407-3-596.90Типовой проект 407-3-596.90Типовой проект 407-3-596.90Типовой проект 407-3-596.90Типовой проект 407-3-596.90Типовой проект 407-3-596.90Типовой проект 407-3-596.90Типовой проект 407-3-596.90Типовой проект 407-3-596.90Типовой проект 407-3-596.90Типовой проект 407-3-596.90Типовой проект 407-3-596.90Типовой проект 407-3-596.90Типовой проект 407-3-596.90Типовой проект 407-3-596.90Типовой проект 407-3-596.90Типовой проект 407-3-596.90Типовой проект 407-3-596.90Типовой проект 407-3-596.90Типовой проект 407-3-596.90Типовой проект 407-3-596.90Типовой проект 407-3-596.90Типовой проект 407-3-596.90Типовой проект 407-3-596.90Типовой проект 407-3-596.90Типовой проект 407-3-596.90Типовой проект 407-3-596.90Типовой проект 407-3-596.90Типовой проект 407-3-596.90Типовой проект 407-3-596.90Типовой проект 407-3-596.90Типовой проект 407-3-596.90Типовой проект 407-3-596.90Типовой проект 407-3-596.90Типовой проект 407-3-596.90Типовой проект 407-3-596.90Типовой проект 407-3-596.90Типовой проект 407-3-596.90Типовой проект 407-3-596.90Типовой проект 407-3-596.90Типовой проект 407-3-596.90Типовой проект 407-3-596.90Типовой проект 407-3-596.90Типовой проект 407-3-596.90Типовой проект 407-3-596.90Типовой проект 407-3-596.90Типовой проект 407-3-596.90Типовой проект 407-3-596.90Типовой проект 407-3-596.90Типовой проект 407-3-596.90Типовой проект 407-3-596.90Типовой проект 407-3-596.90Типовой проект 407-3-596.90Типовой проект 407-3-596.90Типовой проект 407-3-596.90Типовой проект 407-3-596.90Типовой проект 407-3-596.90Типовой проект 407-3-596.90

© 2013 Ёшкин Кот :-) Карта сайта