Скачать Типовой проект 407-3-596.90 Альбом 2. Часть 1. Электротехнические решения. Схемы, компоновочные и конструктивно-монтажные чертежиДата актуализации: 10.08.2017 Типовой проект 407-3-596.90
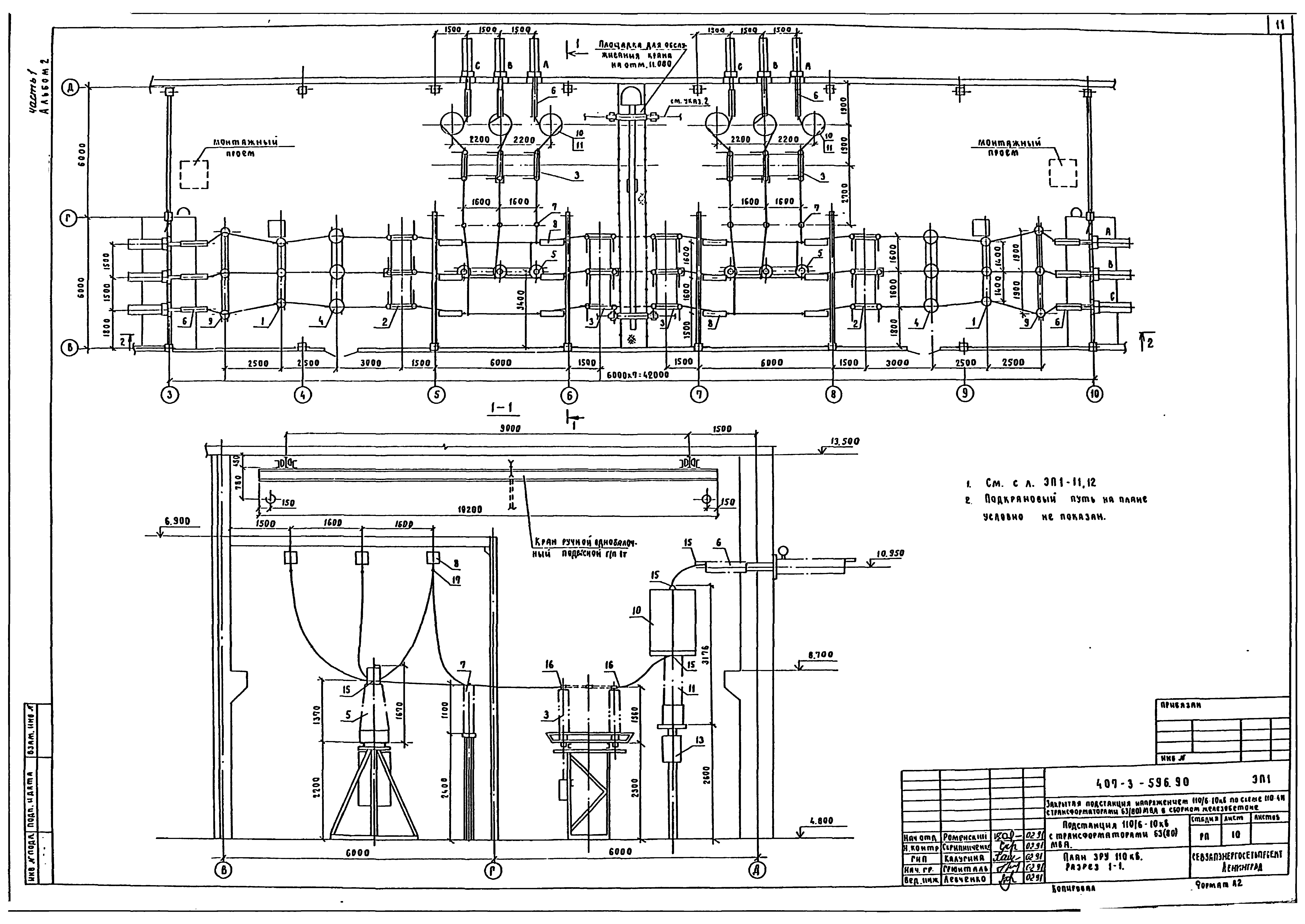
Альбом 2. Часть 1. Электротехнические решения. Схемы, компоновочные и конструктивно-монтажные чертежиОбозначение: | Типовой проект 407-3-596.90 | Обозначение англ: | 407-3-596.90 | Статус: | не определен законодательством | Название рус.: | Альбом 2. Часть 1. Электротехнические решения. Схемы, компоновочные и конструктивно-монтажные чертежи | Дата добавления в базу: | 01.09.2013 | Дата актуализации: | 05.05.2017 | Дата введения: | 01.02.1991 | Оглавление: | Общие данные Подстанция 110/10 кВ с трансформаторами 63, 80 МВА с реакторами. Схема электрическая принципиальная (со шкафами серии КМ-1Ф, КМ-1, К-104 на ток до 1600А) Подстанция 110/6 кВ с трансформаторами 63, 80 МВА с реакторами. Схема электрическая принципиальная (со шкафами серии К-104 на ток до 2600 А) Подстанция 110/10 кВ с трансформаторами 63 МВА без реакторов. Схема электрическая принципиальная (со шкафами серии К-104 на ток до 2600 А) Подстанция 110/10 кВ с трансформаторами 63 МВА без реакторов (со шкафами серии КМ-1Ф, КМ-1 на ток до 3150А) Схема собственных нужд переменного тока напряжением 380/220 В План на отм. 0.000 и 4.800. Разрез А-А План на отм. - 3.100; - 3.800. Разрез Б-Б План ЗРУ 110 кВ. Разрез 1-1 ЗРУ 110 кВ. Разрез 2-2 Спецификация оборудования и материалов к ЭП1-10, 11 Установка трансформаторов типа ТРДН-63000/110-60У1Т1 и Т2. Планы Установка трансформаторов типа ТРДН-63000/110-60У1Т1 и Т2. Разрезы А-А, В-В Установка трансформаторов типа ТРДН-63000/110-60У1Т1 и Т2. Разрезы Б-Б, Г-Г Установка трансформатора типа ТРДН-63000/110-80У1. Ошиновка 10 кВ в камере трансформатора Т1. План Установка трансформатора типа ТРДН-63000/110-80У1. Ошиновка 10 кВ в камере трансформатора Т1. Разрез А-А Установка трансформатора типа ТРДН-63000/110-80У1. Ошиновка 10 кВ в камере трансформатора Т1. Разрез Б-Б Установка трансформатора типа ТРДН-63000/110-80У1. Ошиновка 10 кВ в камере трансформатора Т2. План Установка трансформатора типа ТРДН-63000/110-80У1. Ошиновка 10 кВ в камере трансформатора Т2. Разрез А-А Установка трансформатора типа ТРДН-63000/110-80У1. Ошиновка 10 кВ в камере трансформатора Т2. Разрез Б-Б Установка трансформатора типа ТРДН-63000/110-80У1. Узлы, разрезы и спецификация Установка трансформатора собственных нужд типа ТМ-400/ У, ХЛ1 Установка трансформатора типа ТМ- и заземляющего реактора типа РЗДСОМ-. План. Разрезы А-А и Б-Б Установка трансформатора типа ТМ- и заземляющего реактора типа РЗДСОМ-. Разрез В-В. Вид Г Металлоконструкции марок МКЭ1…16 Спецификация оборудования и материалов к листу ЭЛ1-26 Установка сдвоенных бетонных реакторов РБСГ-10-2х1600-0,14 в камере LR1. План. Разрезы Установка сдвоенных бетонных реакторов РБСГ-10-2х1600-0,14 в камере LR2. План. Разрезы Установка сдвоенных бетонных реакторов РБСГ-10-2х1600-0,14. Узлы. Спецификация Установка щита направляющего поток охлажденного воздуха над реакторами. Общий вид. Узел Помещение панелей. План. Разрез А-А ЗРУ10(6) кВ по схеме 10(6)-3 со шкафами серии КМ-1Ф (КМ-1) на ток до 1600 А. План. Разрез. Спецификация ЗРУ10(6) кВ по схеме 10(6)-3 со шкафами серии К-104 на ток до 1600 А. План. Разрез. Спецификация ЗРУ10(6) кВ по схеме 10(6)-3 со шкафами серии К-104 на ток до 1600 А. Шинный мост первой секции. План. Разрез А-А ЗРУ10(6) кВ по схеме 10(6)-3 со шкафами серии К-104 на ток до 1600 А. Шинный мост первой секции. Разрезы Б-Б и В-В ЗРУ10(6) кВ по схеме 10(6)-3 со шкафами серии К-104 на ток до 1600 А. Шинный мост второй секции. План. Разрез А-А ЗРУ10(6) кВ по схеме 10(6)-3 со шкафами серии К-104 на ток до 1600 А. Шинный мост второй секции. Разрезы Б-Б и В-В ЗРУ10(6) кВ по схеме 10(6)-3 со шкафами серии К-104 на ток до 1600 А. Шинный мост третьей и пятой секции. План. Разрез А-А ЗРУ10(6) кВ по схеме 10(6)-3 со шкафами серии К-104 на ток до 1600 А. Шинный мост третьей и пятой секции. Разрезы Б-Б и В-В ЗРУ10(6) кВ по схеме 10(6)-3 со шкафами серии К-104 на ток до 1600 А. Шинный мост четвертой и шестой секции. План ЗРУ10(6) кВ по схеме 10(6)-3 со шкафами серии К-104 на ток до 1600 А. Шинный мост четвертой и шестой секции. Разрезы А-А и Б-Б ЗРУ10(6) кВ по схеме 10(6)-3 со шкафами серии К-104 на ток до 1600 А. Шинный мост четвертой и шестой секции. Разрезы В-В и Г-Г ЗРУ10(6) кВ по схеме 10(6)-3 со шкафами серии К-104 на ток до 1600 А. Шинный мост седьмой секции. План. Разрез А-А ЗРУ10(6) кВ по схеме 10(6)-3 со шкафами серии К-104 на ток до 1600 А. Шинный мост седьмой секции. Разрезы Б-Б и В-В ЗРУ10(6) кВ по схеме 10(6)-3 со шкафами серии К-104 на ток до 1600 А. Шинный мост восьмой секции. План. Разрез А-А ЗРУ10(6) кВ по схеме 10(6)-3 со шкафами серии К-104 на ток до 1600 А. Шинный мост восьмой секции. Разрезы Б-Б и В-В Шинный мост в коридоре в осях 2…5. План Шинный мост в коридоре в осях 2…5. Разрезы Доска проходная внутренней установки с трансформаторами тока типа ТЛш-10У3 на ток 3000 А Доска проходная внутренней установки с трансформаторами тока типа ТЛш-10У3 на ток 5000 А Доска проходная внутренней установки с изоляторами типа ИП-10/1000-3150-3000У/проем 500х1480/ Доска проходная внутренней установки с изоляторами типа ИП-10/1000-3150-3000У/проем 800х1850/ План сети освещения на отм. 4.800 в осях 1…8. Схема управления освещением с двух мест План сети освещения на отм. 4.800 в осях 8…12. Схемы сети освещения и сварки План сети освещения на отм. 0.000 в осях 1…8 План сети освещения на отм. 0.000 в осях 8…12. Схемы сети освещения и сварки План сети освещения на отм. - 3.100. Схема сети освещения Спецификация оборудования и материалов к листам ЭП1-54 - 58 | Разработан: | Севзапэнергосетьпроект
| Утверждён: | 01.02.1991 Минэнерго СССР (USSR Minenergo 1)
| Издан: | Севзапэнергосетьпроект (1991 г. )
| Расположен в: |
|
                                                           
|