Информационная система
«Ёшкин Кот»

Скачать базу одним архивом
Скачать обновления
История создания базы
Карта сайта

Скачать Типовой проект 407-3-401м.86 Альбом II. Архитектурно-строительные решения

Дата актуализации: 10.08.2017

Типовой проект 407-3-401м.86

Альбом II. Архитектурно-строительные решения

Обозначение: Типовой проект 407-3-401м.86
Обозначение англ: 407-3-401м.86
Статус:не определен законодательством
Название рус.:Альбом II. Архитектурно-строительные решения
Дата добавления в базу:01.10.2014
Дата актуализации:05.05.2017
Дата введения:21.05.1984
Оглавление:Содержание альбома
Чертежи основного комплекта марки АС
   Общие данные
   План на отм. 0.000
   Разрезы 1-1, 2-2
   Фасады 1 - 9; 9 - 1; А - Б; Б - А
   Схема расположения свай
   Опалубка цокольного перекрытия ПРм1
   Цокольное перекрытие ПРм1. Раскладка верхних и нижних сеток. Сечение 1-1
   Цокольное перекрытие ПРм1. Раскладка каркасов и надопорных стержней. Сечение 2-2
   Спецификация цокольного перекрытия ПРм1
   Цокольное перекрытие ПРм1. Сечения 3-3…5-5
   Цокольное перекрытие ПРм1. Сечения 6-6…9-9
   Схема расположения плит покрытия
   Схемы расположения металлических марок, асбестоцементных досок
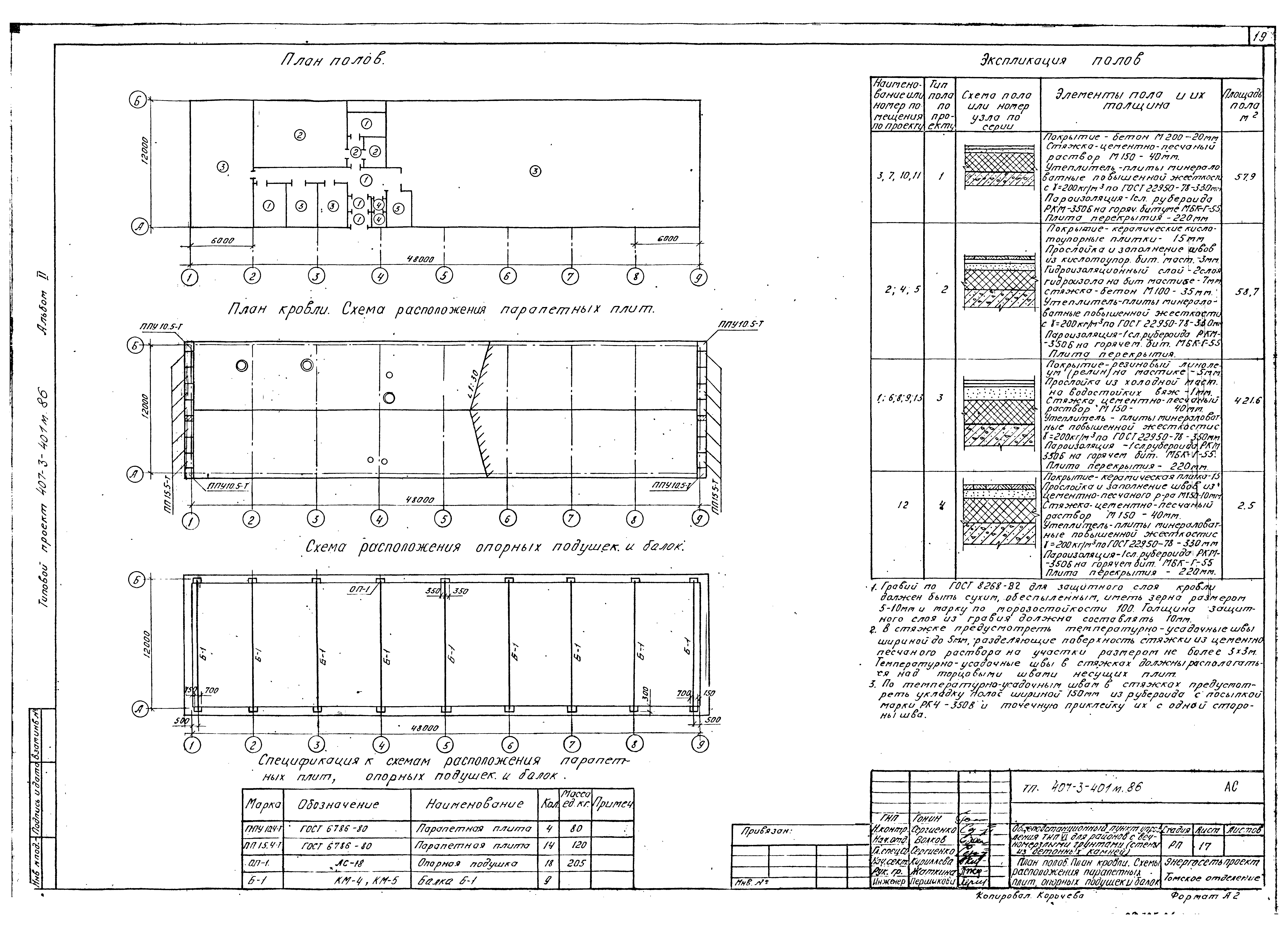
   План полов. План кровли. Схемы расположения парапетных плит, опорных подушек и балок
   Опорная подушка ОП-1
   Вентиляционная камера. Фрагмент 1. Разрезы 1-1, 2-2. Узел 1
   Узел 2. Фрагмент 2
   Узлы 3…15
Сборно-монолитное цокольное перекрытие
   Схема расположения плит цокольного перекрытия
   Опалубка и армирование ростверка РКм1
   Ростверк РКм1. Сечение 1-1…6-6
Чертежи основного комплекта марки КМ
   Общие данные
   Схемы расположения лестниц №1, №2, балок покрытия
   Разрез 1-1. Узлы 1, 2, 3. Сечения 2-2…8-8
Разработан: Томское отделение Энергосетьпроекта
Утверждён:21.05.1984 Минэнерго СССР (USSR Minenergo 19)
Расположен в:Техническая документация Строительство Справочные документы Типовые строительные конструкции, изделия и узлы Общероссийский строительный каталог Промышленные предприятия, здания и сооружения Предприятия, здания и сооружения промышленности и электроэнергетики Электроэнергетика Устройства и подстанции распределительные
Типовой проект 407-3-401м.86Типовой проект 407-3-401м.86Типовой проект 407-3-401м.86Типовой проект 407-3-401м.86Типовой проект 407-3-401м.86Типовой проект 407-3-401м.86Типовой проект 407-3-401м.86Типовой проект 407-3-401м.86Типовой проект 407-3-401м.86Типовой проект 407-3-401м.86Типовой проект 407-3-401м.86Типовой проект 407-3-401м.86Типовой проект 407-3-401м.86Типовой проект 407-3-401м.86Типовой проект 407-3-401м.86Типовой проект 407-3-401м.86Типовой проект 407-3-401м.86Типовой проект 407-3-401м.86Типовой проект 407-3-401м.86Типовой проект 407-3-401м.86Типовой проект 407-3-401м.86Типовой проект 407-3-401м.86Типовой проект 407-3-401м.86Типовой проект 407-3-401м.86Типовой проект 407-3-401м.86Типовой проект 407-3-401м.86Типовой проект 407-3-401м.86Типовой проект 407-3-401м.86Типовой проект 407-3-401м.86Типовой проект 407-3-401м.86Типовой проект 407-3-401м.86Типовой проект 407-3-401м.86

© 2013 Ёшкин Кот :-) Карта сайта