Информационная система
«Ёшкин Кот»

Скачать базу одним архивом
Скачать обновления
История создания базы
Карта сайта

Скачать Типовой проект 407-3-396м.86 Альбом II. Архитектурно-строительные решения

Дата актуализации: 10.08.2017

Типовой проект 407-3-396м.86

Альбом II. Архитектурно-строительные решения

Обозначение: Типовой проект 407-3-396м.86
Обозначение англ: 407-3-396м.86
Статус:не определен законодательством
Название рус.:Альбом II. Архитектурно-строительные решения
Дата добавления в базу:01.10.2014
Дата актуализации:05.05.2017
Дата введения:21.05.1984
Оглавление:Содержание альбома
Чертежи основного комплекта марки АС
   Общие данные
   План на отм. 0.000. Разрез 1-1
   Разрез 2-2
   Фасады 1 - 8; 8 - 1; А - В; В - А
   Схема расположения свай
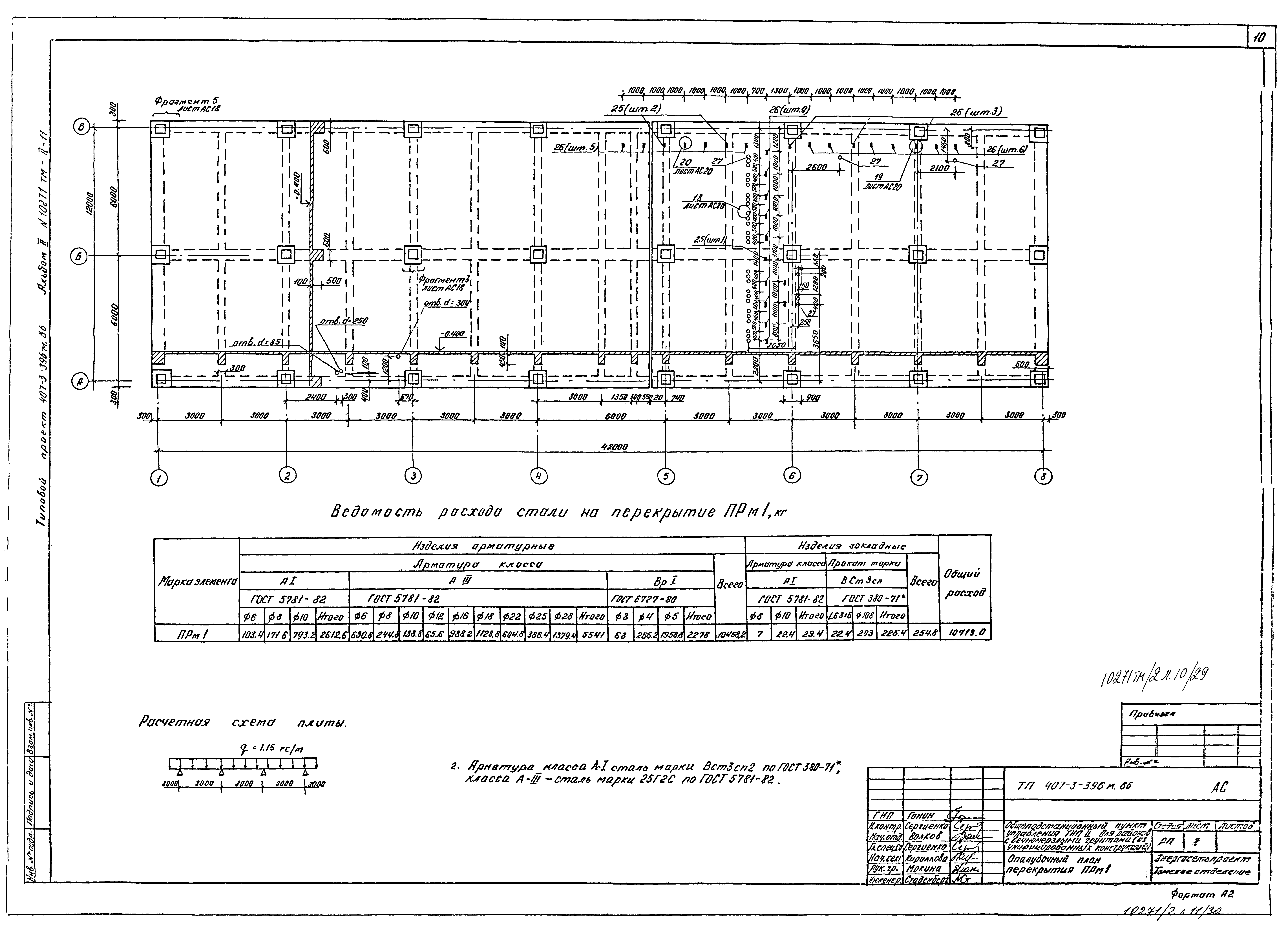
   Опалубочный чертеж перекрытия ПРм-1
   ПРм-1. Раскладка каркасов и отдельных стержней. Разрезы 1-1…3-3
   ПРм-1. Раскладка сеток. Разрез 4-4. Армирование стакана
   Спецификация перекрытия ПРм-1
   Схемы расположения колонн, балок покрытия, плит покрытия. Разрез 1-1
   Схемы расположения стеновых панелей и насадок фахверка
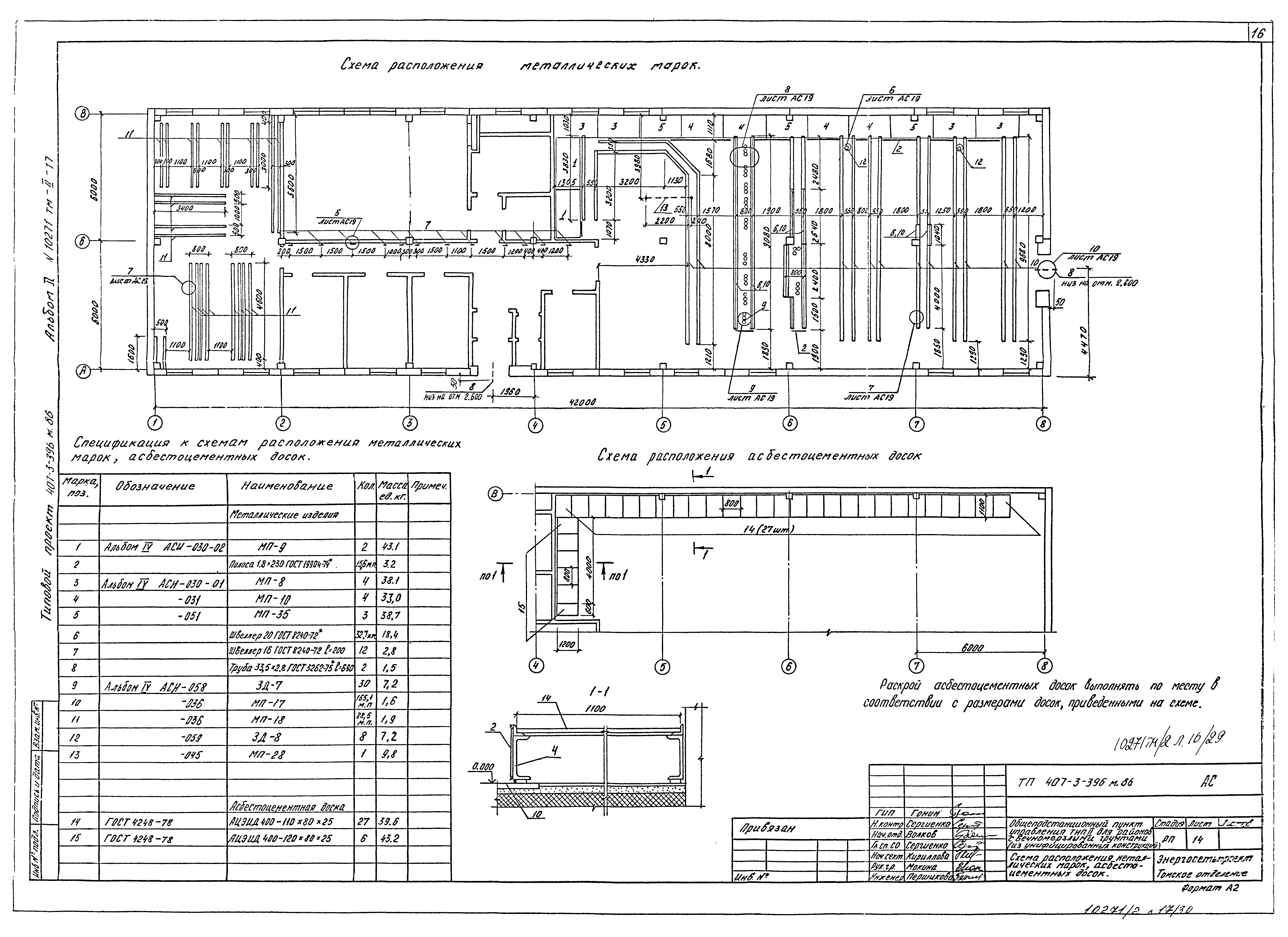
   Схемы расположения металлических марок и асбестоцементных досок
   План полов. План кровли. Схема расположения парапетных плит
   Вентиляционная камера. Фрагмент 1. Разрез 1-1, 2-2. Узел 1
   Узел 2. Фрагмент 2
   Фрагменты 3…6
   Узлы 3…14
   Узлы 15…22
Сборно-монолитное цокольное перекрытие
   Схема расположения плит цокольного перекрытия
   Опалубочный план ростверка РКм-1
   РКм-1. Раскладка каркасов. Разрезы 1-1…5-5. Армирование стакана
   РКм-1. Раскладка сеток и отдельных стержней
Чертежи основного комплекта марки КМ
   Общие данные
   Схемы расположения лестниц №1 и №2. Разрез 1-1. Виды 2-2, 3-3
Разработан: Томское отделение Энергосетьпроекта
Утверждён:21.05.1984 Минэнерго СССР (USSR Minenergo 19)
Расположен в:Техническая документация Строительство Справочные документы Типовые строительные конструкции, изделия и узлы Общероссийский строительный каталог Промышленные предприятия, здания и сооружения Предприятия, здания и сооружения промышленности и электроэнергетики Электроэнергетика Устройства и подстанции распределительные
Типовой проект 407-3-396м.86Типовой проект 407-3-396м.86Типовой проект 407-3-396м.86Типовой проект 407-3-396м.86Типовой проект 407-3-396м.86Типовой проект 407-3-396м.86Типовой проект 407-3-396м.86Типовой проект 407-3-396м.86Типовой проект 407-3-396м.86Типовой проект 407-3-396м.86Типовой проект 407-3-396м.86Типовой проект 407-3-396м.86Типовой проект 407-3-396м.86Типовой проект 407-3-396м.86Типовой проект 407-3-396м.86Типовой проект 407-3-396м.86Типовой проект 407-3-396м.86Типовой проект 407-3-396м.86Типовой проект 407-3-396м.86Типовой проект 407-3-396м.86Типовой проект 407-3-396м.86Типовой проект 407-3-396м.86Типовой проект 407-3-396м.86Типовой проект 407-3-396м.86Типовой проект 407-3-396м.86Типовой проект 407-3-396м.86Типовой проект 407-3-396м.86Типовой проект 407-3-396м.86Типовой проект 407-3-396м.86

© 2013 Ёшкин Кот :-) Карта сайта