| ||||||||||||||||||||||||||||||||
Скачать ТТК 7.06.02.08 Типовая технологическая карта на монтаж строительных конструкций. Испытание и промывка систем отопленияДата актуализации: 10.08.2017
|
| Обозначение: | ТТК 7.06.02.08 |
| Обозначение англ: | 7.06.02.08 |
| Статус: | не установлен срок действия |
| Название рус.: | Типовая технологическая карта на монтаж строительных конструкций. Испытание и промывка систем отопления |
| Дата добавления в базу: | 01.09.2013 |
| Дата актуализации: | 05.05.2017 |
| Дата введения: | 01.02.1987 |
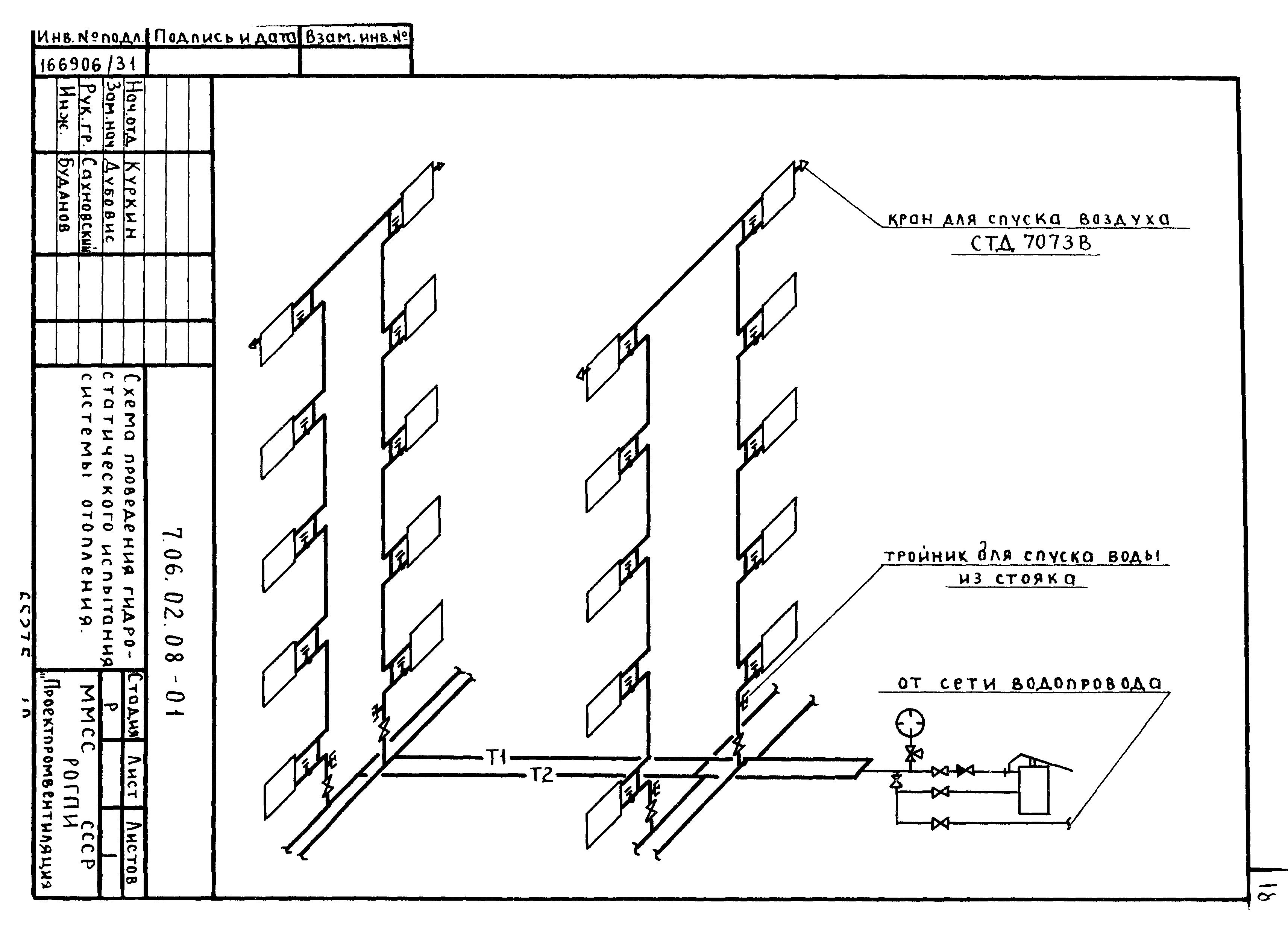
| Область применения: | Технологическая карта разработана на промывку, гидростатическое, манометрическое и тепловое испытание систем центрального отопления из стальных труб с местными отопительными приборами |
| Оглавление: | 7.06.02.08-00 Содержание 7.06.02.08-00П3 Пояснительная записка 7.06.02.08-01 Схема проведения гидростатического испытания системы отопления 7.06.02.08-02 Схема промывки системы отопления 7.06.02.08-03 Последовательность пуска стояков системы отопления 7.06.02.08-04 Калькуляция трудозатрат на гидростатическое испытание системы центрального отопления с местными отопительными приборами. Тепловое испытание |
| Разработан: | Ростовское отделение ГПИ Проектпромвентиляция Минмонтажспецстроя СССР |
| Утверждён: | 14.08.1986 Госстрой СССР (Государственный комитет Совета Министров СССР по делам строительства) (USSR Gosstroy 31-69) |
| Принят: | Главпромвентиляция Минмонтажспецстроя СССР (Glavpromventilyatsiya, USSR Minmontazhspetsstroy ) |
| Расположен в: | |
| Нормативные ссылки: |
|






















