Информационная система
«Ёшкин Кот»

Скачать базу одним архивом
Скачать обновления
История создания базы
Карта сайта

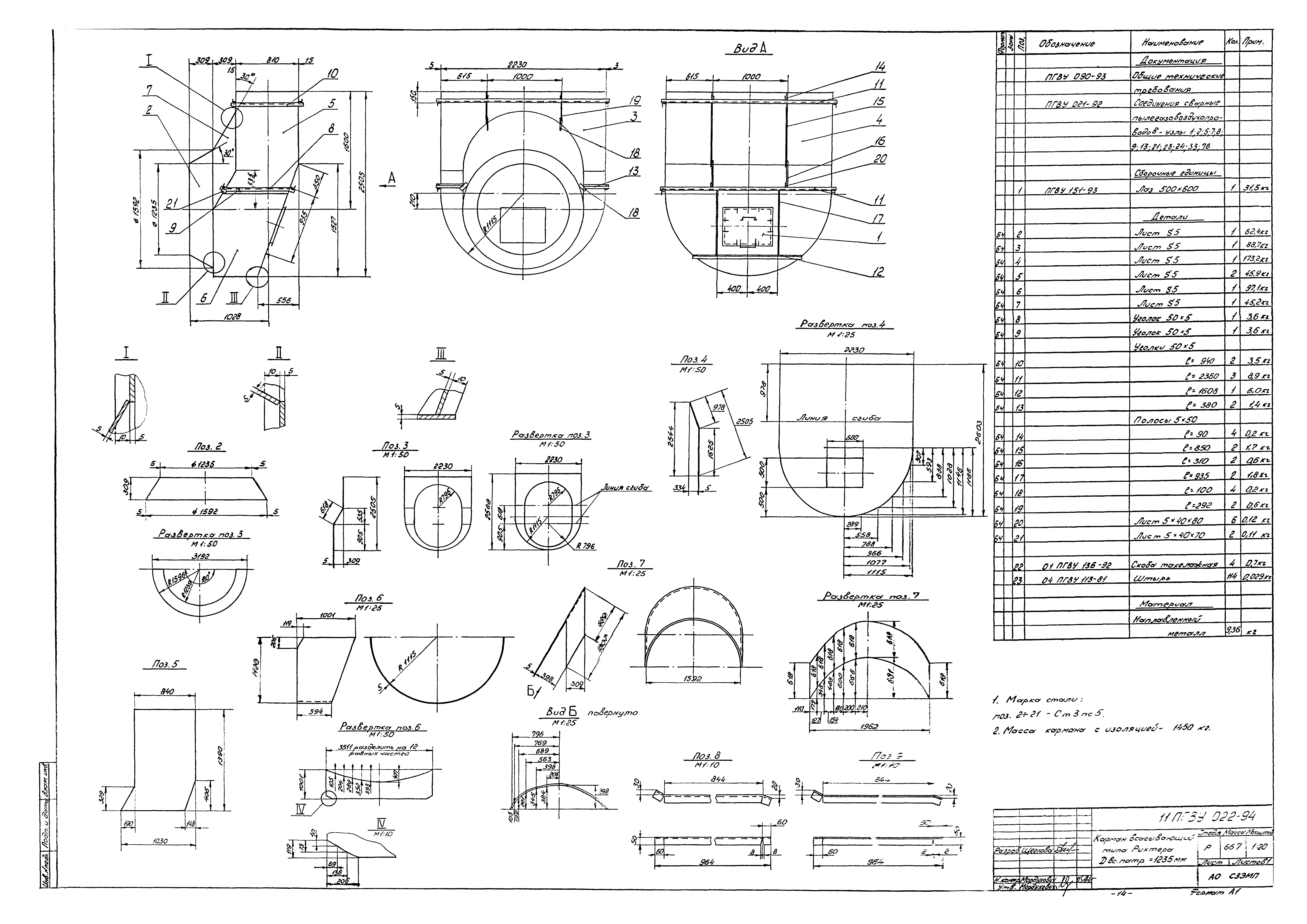
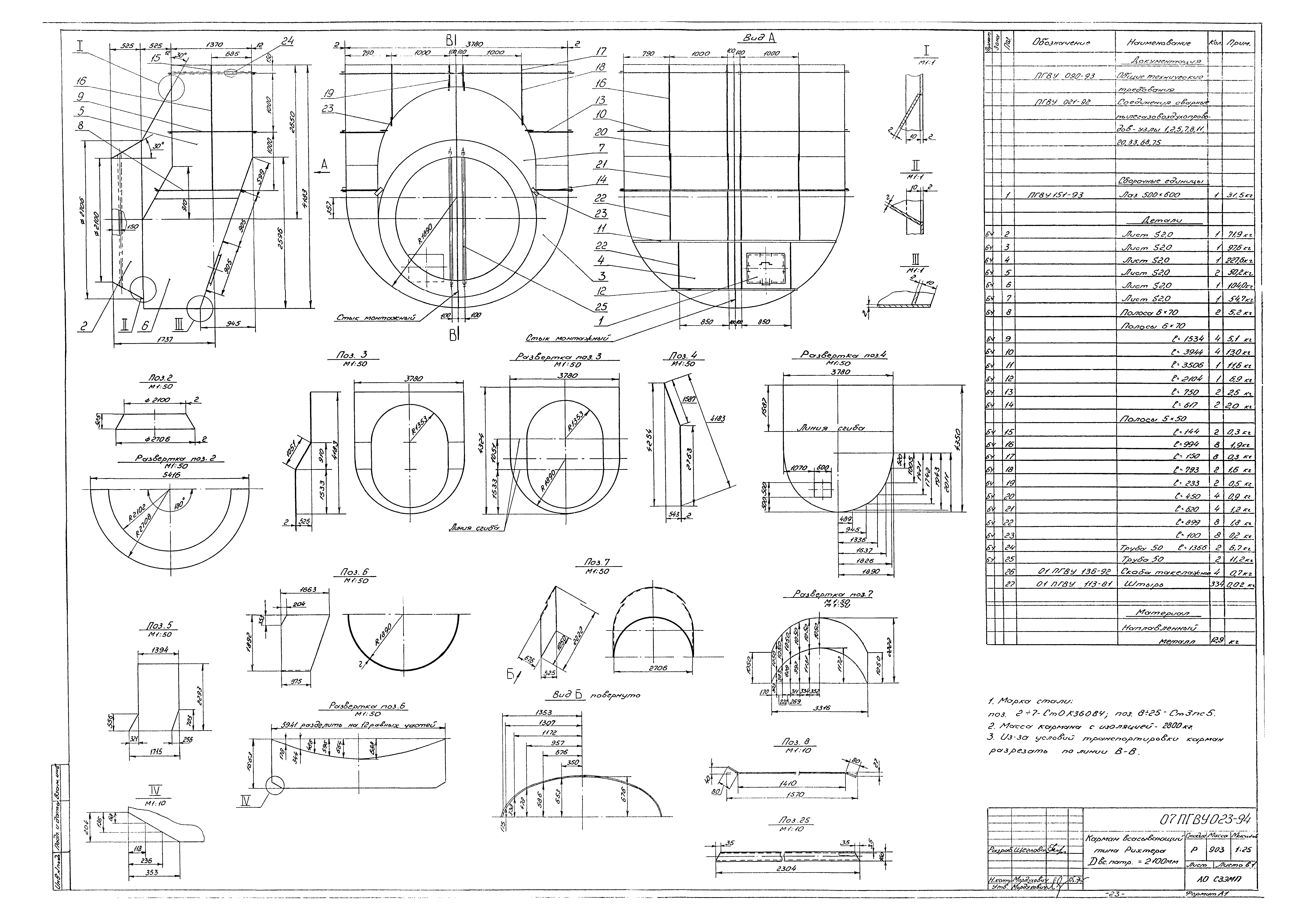
Скачать ПГВУ 022-94 Элементы пылегазовоздухопроводов унифицированные. Карманы всасывающие типа Рихтера. Конструкция и размеры

Дата актуализации: 10.08.2017

ПГВУ 022-94

Элементы пылегазовоздухопроводов унифицированные. Карманы всасывающие типа Рихтера. Конструкция и размеры

Обозначение: ПГВУ 022-94
Обозначение англ: 022-94
Статус:не определен законодательством
Название рус.:Элементы пылегазовоздухопроводов унифицированные. Карманы всасывающие типа Рихтера. Конструкция и размеры
Дата добавления в базу:01.09.2013
Дата актуализации:05.05.2017
Дата введения:01.06.1994
Область применения:Сборник содержит типовые унифицированные рабочие чертежи карманов всасывающих типа Рихтера, устанавливаемых у всасывающих патрубков тягодувных машин ТЭС и котельных
Оглавление:ПГВУ 022-94
ПГВУ 023-94
Разработан: АООТ Севзапэнергомонтажпроект
Утверждён:01.06.1994 АО Энергомонтажпроект
Расположен в:Техническая документация Строительство Справочные документы Типовые строительные конструкции, изделия и узлы Разработанные другими министерствами, ведомствами и организациями
Заменяет собой:
ПГВУ 022-94ПГВУ 022-94ПГВУ 022-94ПГВУ 022-94ПГВУ 022-94ПГВУ 022-94ПГВУ 022-94ПГВУ 022-94ПГВУ 022-94ПГВУ 022-94ПГВУ 022-94ПГВУ 022-94ПГВУ 022-94ПГВУ 022-94ПГВУ 022-94

© 2013 Ёшкин Кот :-) Карта сайта