Информационная система
«Ёшкин Кот»

Скачать базу одним архивом
Скачать обновления
История создания базы
Карта сайта

Скачать Типовой проект 901-3-267.89 Альбом 7. Автоматизация

Дата актуализации: 10.08.2017

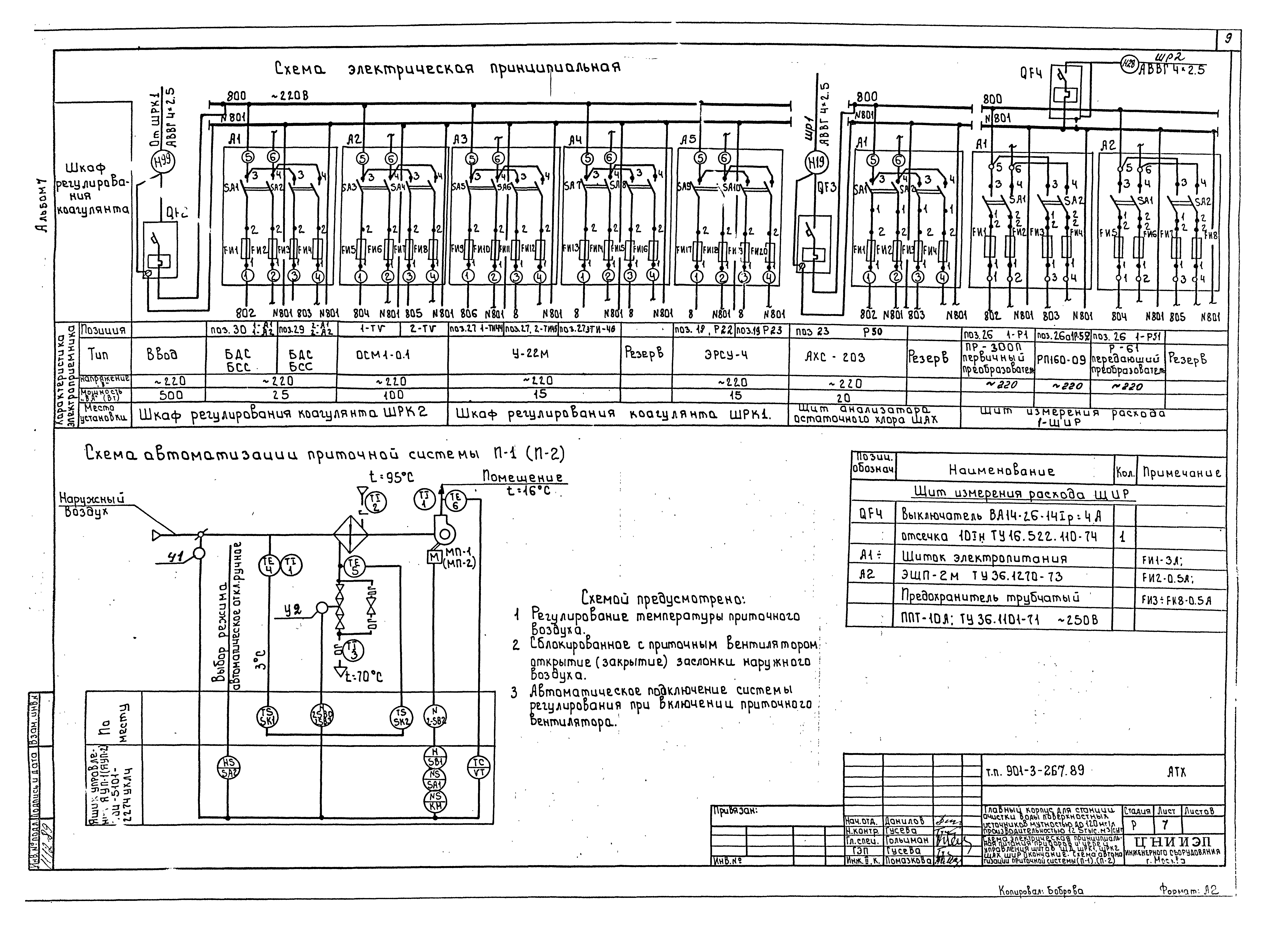
Типовой проект 901-3-267.89

Альбом 7. Автоматизация

Обозначение: Типовой проект 901-3-267.89
Обозначение англ: 901-3-267.89
Статус:не определен законодательством
Название рус.:Альбом 7. Автоматизация
Дата добавления в базу:01.09.2013
Дата актуализации:05.05.2017
Дата введения:29.07.1986
Оглавление:Схема автоматизации
Схема электрическая принципиальная управления приточной системой П1 (П2)
Схема электрическая принципиальная питания приборов и сетей управления щитов и цепей ЩА, ЩРК1, ЩРК2, ЩАК, ЩИР
Схема автоматизации приточной системы П-1, П-2
Схема электрическая принципиальная сигнализации. Общестанционная
Схема электрическая принципиальная сигнализации. Основные реагенты
Схема структурная автоматизации и дозирования коагулянта
Регулирование дозы коагулянта. Схема электрическая соединений
Измерение расхода воды, воздуха, остаточного хлора. Схема электрическая принципиальная
Схема соединений внешних проводок
Размещение приборов технологического контроля и прокладка кабеля. Планы на отм. - 2.400; 0.000; 4.200; 7.000. Насосная станция, отделение БС, диспетчерская спецификация
Размещение приборов технологического контроля и прокладка кабеля. Планы на отм. 0.000; -1.200; 1.200. Венткамеры. Отделение растворных баков. Дозаторная
Размещение приборов технологического контроля и прокладка кабеля. Планы на отм. 0.000; 3.600. Зал контактных осветлителей
Щиты диспетчера ЩД, регулирования коагулянта ЩРК1, ЩРК2, анализатора хлора ЩАХ, измерения расхода ЩИР. Схема подключения
Разработан: ЦНИИЭП иженерного оборудования
Утверждён:29.07.1986 Госгражданстрой (Gosgrazhdanstroy 242)
Расположен в:Техническая документация Строительство Справочные документы Типовые строительные конструкции, изделия и узлы Общероссийский строительный каталог Промышленные предприятия, здания и сооружения Здания и сооружения санитарно-технические Водоснабжение Очистные сооружения Станции очистки воды
Типовой проект 901-3-267.89Типовой проект 901-3-267.89Типовой проект 901-3-267.89Типовой проект 901-3-267.89Типовой проект 901-3-267.89Типовой проект 901-3-267.89Типовой проект 901-3-267.89Типовой проект 901-3-267.89Типовой проект 901-3-267.89Типовой проект 901-3-267.89Типовой проект 901-3-267.89Типовой проект 901-3-267.89Типовой проект 901-3-267.89Типовой проект 901-3-267.89Типовой проект 901-3-267.89Типовой проект 901-3-267.89Типовой проект 901-3-267.89Типовой проект 901-3-267.89Типовой проект 901-3-267.89Типовой проект 901-3-267.89Типовой проект 901-3-267.89

© 2013 Ёшкин Кот :-) Карта сайта