Информационная система
«Ёшкин Кот»

Скачать базу одним архивом
Скачать обновления
История создания базы
Карта сайта

Скачать Типовой проект 901-3-267.89 Альбом 6. Силовое электрооборудование. Электрическое освещение. Связь и сигнализация

Дата актуализации: 10.08.2017

Типовой проект 901-3-267.89

Альбом 6. Силовое электрооборудование. Электрическое освещение. Связь и сигнализация

Обозначение: Типовой проект 901-3-267.89
Обозначение англ: 901-3-267.89
Статус:не определен законодательством
Название рус.:Альбом 6. Силовое электрооборудование. Электрическое освещение. Связь и сигнализация
Дата добавления в базу:01.09.2013
Дата актуализации:05.05.2017
Дата введения:29.07.1986
Оглавление:Содержание
Силовое электрооборудование
   Общие данные
   Схема электрическая питающей сети 0,4 кВ
   Схема электрическая принципиальная распределительной сети 380/220 кВ
   Схема электрическая принципиальная управления задвижками, затворами М82 - М96, МК1 - МК32, М33 - М37, М71 - М81
   Схема электрическая принципиальная управления задвижками, затворами М51 - М59, М78 - М81
   Схемы электрические принципиальные управления вытяжными вентиляторами В2, В3, В4
   Схема подключения электрооборудования. Шкаф РТ301 - РТ307. Затворы, задвижки
   Схема подключения электрооборудования. Шкаф РТ308 - РТ309. Задвижки, затворы М51 - М59, М78 - М81
   Схема подключения электрооборудования. Ящики ЯУП-1 (ЯУП-2), Я7, 8
   Схема подключения электрооборудования. Ящики ЯВ2 - ЯВ4. Пускатели КМВ1, КМВ5 - КМВ9
   Схема подключения электрооборудования. Шкаф Ш1 - Ш6
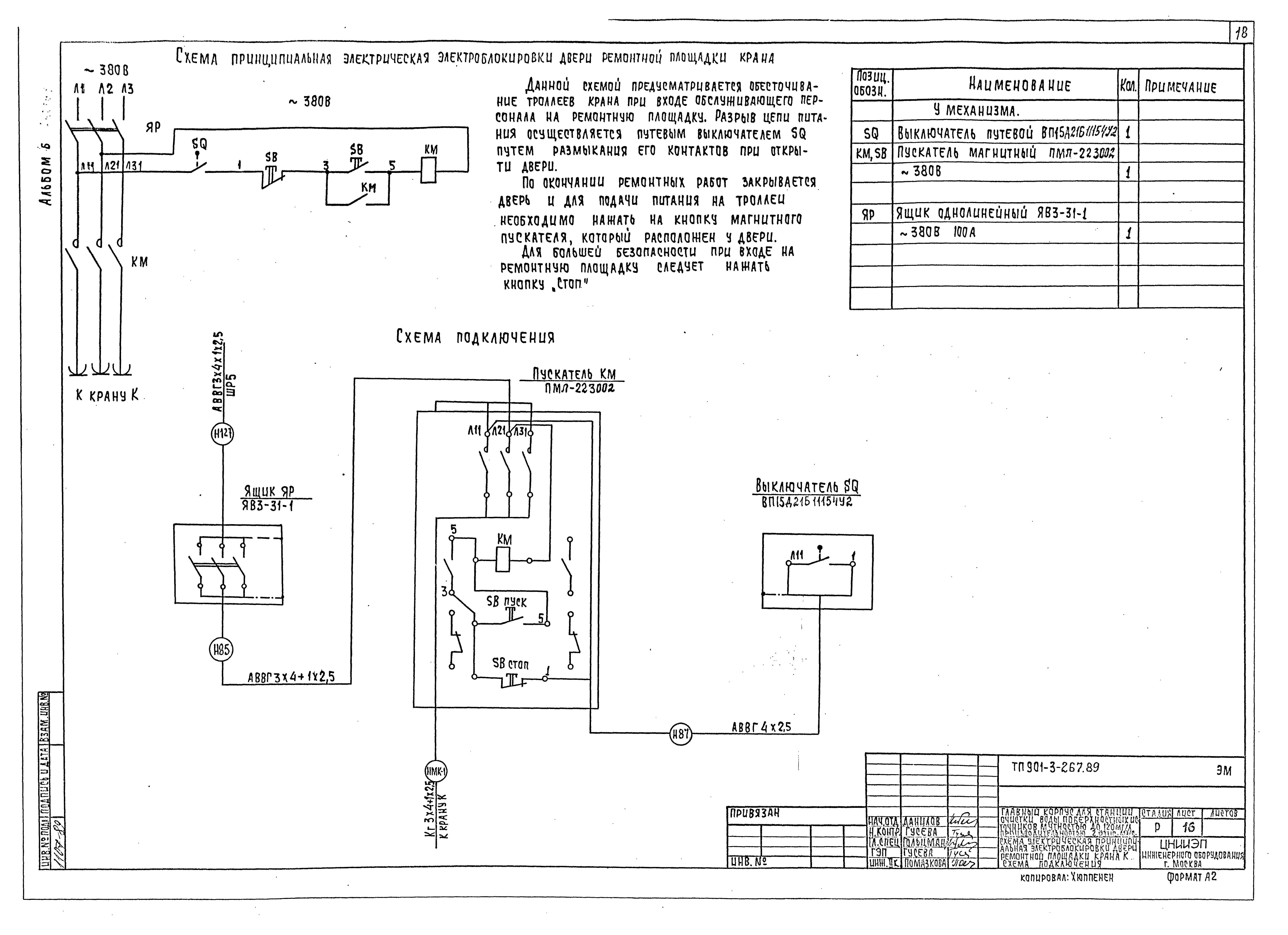
   Схема принципиальная электрическая электроблокировки двери и ремонтной площадки крана К. Схема подключения
   Кабельно-трубный журнал
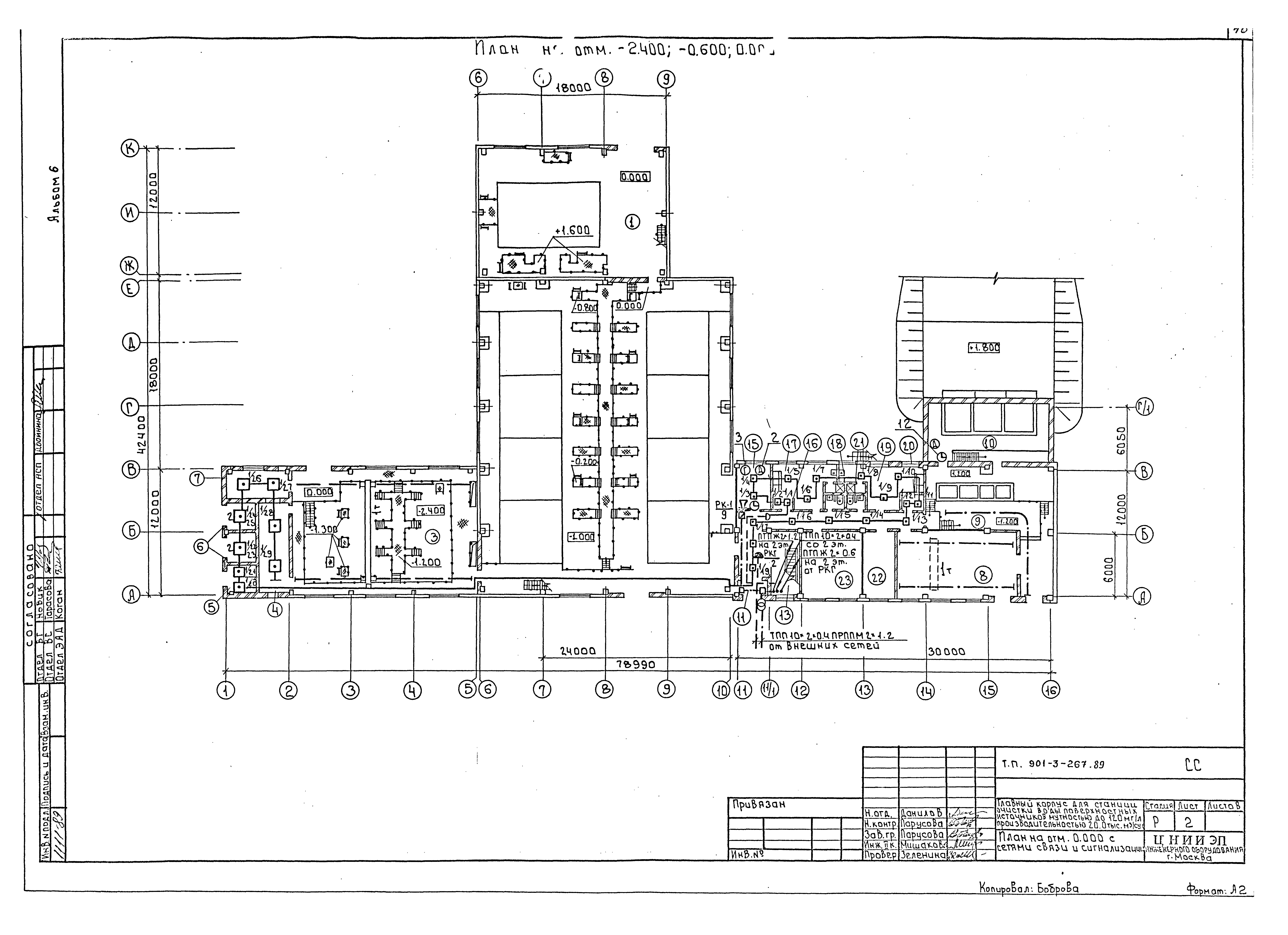
   Размещение электрооборудования и прокладка кабеля. План на отм. - 2.400, 0.000. Насосная станция
   Размещение электрооборудования и прокладка кабеля. Зал контактных осветлителей. Планы на отм. - 0.600; 0.000; 3.600
   Размещение электрооборудования и прокладка кабеля. Планы на отм. - 1.200; 0.000; 1.200. Венткамера. Воздуходувная. Дозаторная
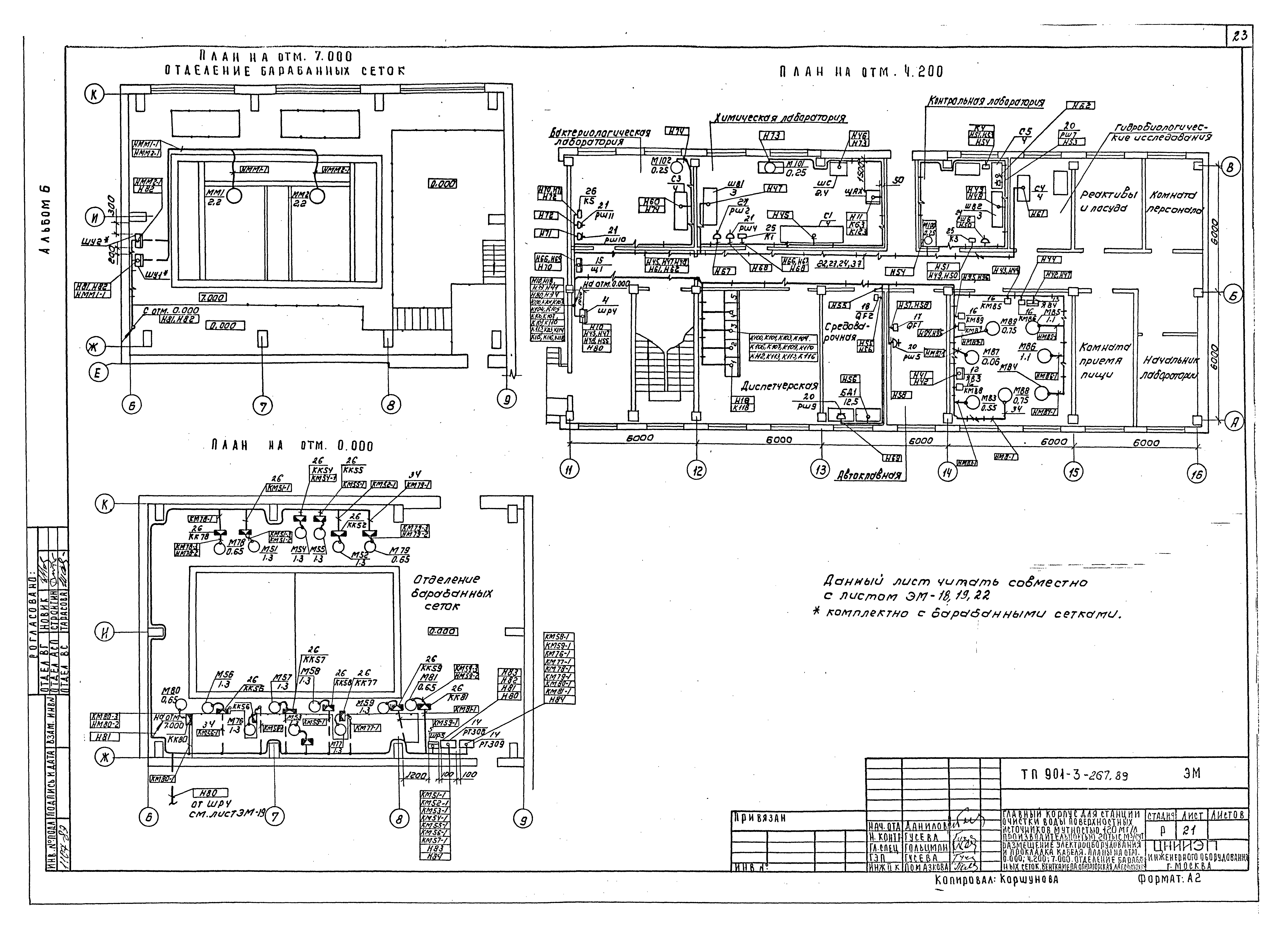
   Размещение электрооборудования и прокладка кабеля. Планы на отм. 0.000; 4.200; 7.000. Отделение барабанных сеток. Венткамера. Операторская. Лаборатории
   Размещение электрооборудования и прокладка кабеля. Спецификация
   Прокладка гибкого токопровода для крана К, К1, К2, Т1, Т2. Планы на отм. 3.600; 7.000
   Заземление. Планы на отм. 0.000
   Заземление. Планы на отм. 3.600
   Трансформаторная подстанция. Установка электрооборудования
   Трансформаторная подстанция. Узлы установки электрооборудования
   Трансформаторная подстанция. Заземление
   Опросный лист для заказа камер серии КСО-386
   Опросный лист для заказа щита из панелей ЩО-70
   Ведомость изделий мастерских электромонтажных заготовок (МЭЗ). Ведомость потребности в материалах для изделий МЭЗ
   Барьер в камере трансформатора
   Плита проходная для шин 0,4 кВ
   Конструкция для трех изоляторов
   Конструкция для крепления кабеля
Электрическое освещение
   Общие данные
   Принципиальная схема питающей сети
   План питающих сетей на отм. 0.000
   План питающих сетей на отм. 3.600; 4.200
   Электрическое освещение. Планы на отм. 0.000 в осях 1 - 5, на отм. - 2.400 в осях 2 - 5
   Электрическое освещение. План на отм. - 1.000; - 0.400; 0.000 в осях 5 - 11; А - Ж
   Электрическое освещение. План на отм. 3.600 в осях 5 - 11, А - Ж
   Электрическое освещение. План на отм. 0.000 в осях 11 - 16
   Электрическое освещение. План на отм. 4.200 в осях 11 - 16. Фрагмент плана на отм. - 1.200 в осях 14 - 16
   Блок барабанных сеток. Электрическое освещение. Планы на отм. 0.000; 3.600; 7.000 и 11.000
Связь и сигнализация
   Общие данные. Скелетная схема. Спецификация
   План на отм. 0.000 с сетями связи и сигнализации
   План на отм. 4.200 с сетями связи и сигнализации
Разработан: ЦНИИЭП иженерного оборудования
Утверждён:29.07.1986 Госгражданстрой (Gosgrazhdanstroy 242)
Расположен в:Техническая документация Строительство Справочные документы Типовые строительные конструкции, изделия и узлы Общероссийский строительный каталог Промышленные предприятия, здания и сооружения Здания и сооружения санитарно-технические Водоснабжение Очистные сооружения Станции очистки воды
Типовой проект 901-3-267.89Типовой проект 901-3-267.89Типовой проект 901-3-267.89Типовой проект 901-3-267.89Типовой проект 901-3-267.89Типовой проект 901-3-267.89Типовой проект 901-3-267.89Типовой проект 901-3-267.89Типовой проект 901-3-267.89Типовой проект 901-3-267.89Типовой проект 901-3-267.89Типовой проект 901-3-267.89Типовой проект 901-3-267.89Типовой проект 901-3-267.89Типовой проект 901-3-267.89Типовой проект 901-3-267.89Типовой проект 901-3-267.89Типовой проект 901-3-267.89Типовой проект 901-3-267.89Типовой проект 901-3-267.89Типовой проект 901-3-267.89Типовой проект 901-3-267.89Типовой проект 901-3-267.89Типовой проект 901-3-267.89Типовой проект 901-3-267.89Типовой проект 901-3-267.89Типовой проект 901-3-267.89Типовой проект 901-3-267.89Типовой проект 901-3-267.89Типовой проект 901-3-267.89Типовой проект 901-3-267.89Типовой проект 901-3-267.89Типовой проект 901-3-267.89Типовой проект 901-3-267.89Типовой проект 901-3-267.89Типовой проект 901-3-267.89Типовой проект 901-3-267.89Типовой проект 901-3-267.89Типовой проект 901-3-267.89Типовой проект 901-3-267.89Типовой проект 901-3-267.89Типовой проект 901-3-267.89Типовой проект 901-3-267.89Типовой проект 901-3-267.89Типовой проект 901-3-267.89Типовой проект 901-3-267.89Типовой проект 901-3-267.89Типовой проект 901-3-267.89

© 2013 Ёшкин Кот :-) Карта сайта