Информационная система
«Ёшкин Кот»

Скачать базу одним архивом
Скачать обновления
История создания базы
Карта сайта

Скачать Типовой проект 262-21-37 Альбом XI. Часть 1. Вариант проекта со стоянкой на 36 легковых автомобилей. Архитектурные и конструктивные чертежи

Дата актуализации: 10.08.2017

Типовой проект 262-21-37

Альбом XI. Часть 1. Вариант проекта со стоянкой на 36 легковых автомобилей. Архитектурные и конструктивные чертежи

Обозначение: Типовой проект 262-21-37
Обозначение англ: 262-21-37
Статус:не определен законодательством
Название рус.:Альбом XI. Часть 1. Вариант проекта со стоянкой на 36 легковых автомобилей. Архитектурные и конструктивные чертежи
Дата добавления в базу:01.09.2013
Дата актуализации:05.05.2017
Дата введения:06.04.1982
Оглавление:Общие данные
План техподполья, подвала и стоянки для автомобилей между осями "1 - 5"
План техподполья, подвала и стоянки для автомобилей между осями "5 - 10"
План техподполья, подвала и стоянки для автомобилей между осями "10 - 14"
План первого этажа между осями "1 - 5"
План первого этажа между осями "5 - 10"
План первого этажа между осями "10 - 14"
Разрез 1-1
Разрез 2-2
Фасады одноэтажной части здания
Воздухозаборная шахта №2 и выбросная шахта №2
Дополнительная спецификация столярных изделий. Ведомость отделки помещений стоянки
Фундаменты. План м/о 1 - 8
Фундаменты. План м/о 8 - 14
Фундаменты. Сечения 1-1 - 4-4, развертки по осям 13, 14, Б
Фундаменты. Развертки по осям Г, 1у, оси Е, ФМВ-22, сечение 6-6
Фундаменты. Развертки по осям В, 9у, оси Е, сечение 5-5
Фундаменты. Развертка по оси 12 общие примечания
Монолитные ж/б фундаменты ФМ1 - ФМ3
Монолитные ж/б вставки подпорных стен ФМВ-1 - ФМВ-3; ФМВ-5
ФМВт/н, ФМВ-7
ФМВ-8 - ФМВ-12
ФМВ-13 - ФМВ-17т/н
ФМВ-20 - ФМВ-21
ФМВ-18, ФМВ-19. Выборка стали
Перечень элементов на ФМВ-1 - ФМВ-11
Перечень элементов на ФМВ-12 - ФМВ-22
Перекрытие на отм. - 0,1. План балок и колонн
План балок и колонн. Узлы 1 - 2, деталь Б
Перекрытие на отм. - 0,1. БМ-1, БМ-2. Спецификация арматуры и расход материалов
Колонны КМ-2, КМ-4. Опалубка и армирование
Колонны КМ-1, КМ-3. Опалубка и армирование
Колонна КМ-5. Опалубка и армирование
Колонны КМ-1 - КМ-5. Ведомость стержней, перечень элементов, выборка стали
Колонны КМ-1 - КМ-5. С-1, М-1, М-2, М-3, М-4, М-5, поз. 9 - 15
Перекрытие на отм. - 0,1. План м/о 1 - 8
Перекрытие на отм. - 0,1. План м/о 8 - 14
Перекрытие на отм. - 0,1. Сечения 1-1 - 9-9
Перекрытие на отм. - 0,1. Сечения 10-10 - 13-13, узел 1, деталь А
Эвакуационные выходы. Фундаменты. План и развертки по I-I, II-II, III-III
Эвакуационные выходы. Фундаменты. Развертки по IV-IV, сечения V-V, VI-VI, ФМ23 - ФМ25, ФМ-27
Эвакуационные выходы. Фундаменты ФМВ-26 т/н; ФМВ-28 т/н - ФМВ-32 т/н
Эвакуационные выходы. Перекрытие на отм. - 0.88; 1.0 - 2.36
Эвакуационные выходы. Лестницы
Эвакуационные выходы. Перечень элементов на узлы 2, 5, ФМВ-23, ФМВ-24, ФМВ-26 - ФМВ-33
Эвакуационные выходы. ФМВ-33. Перечень элементов на ЭМВ-25 т/н. Выборка стали на 1 элемент
Фасад панелей по осям 2, 13, А м/о 2 - 6 и 9 - 13
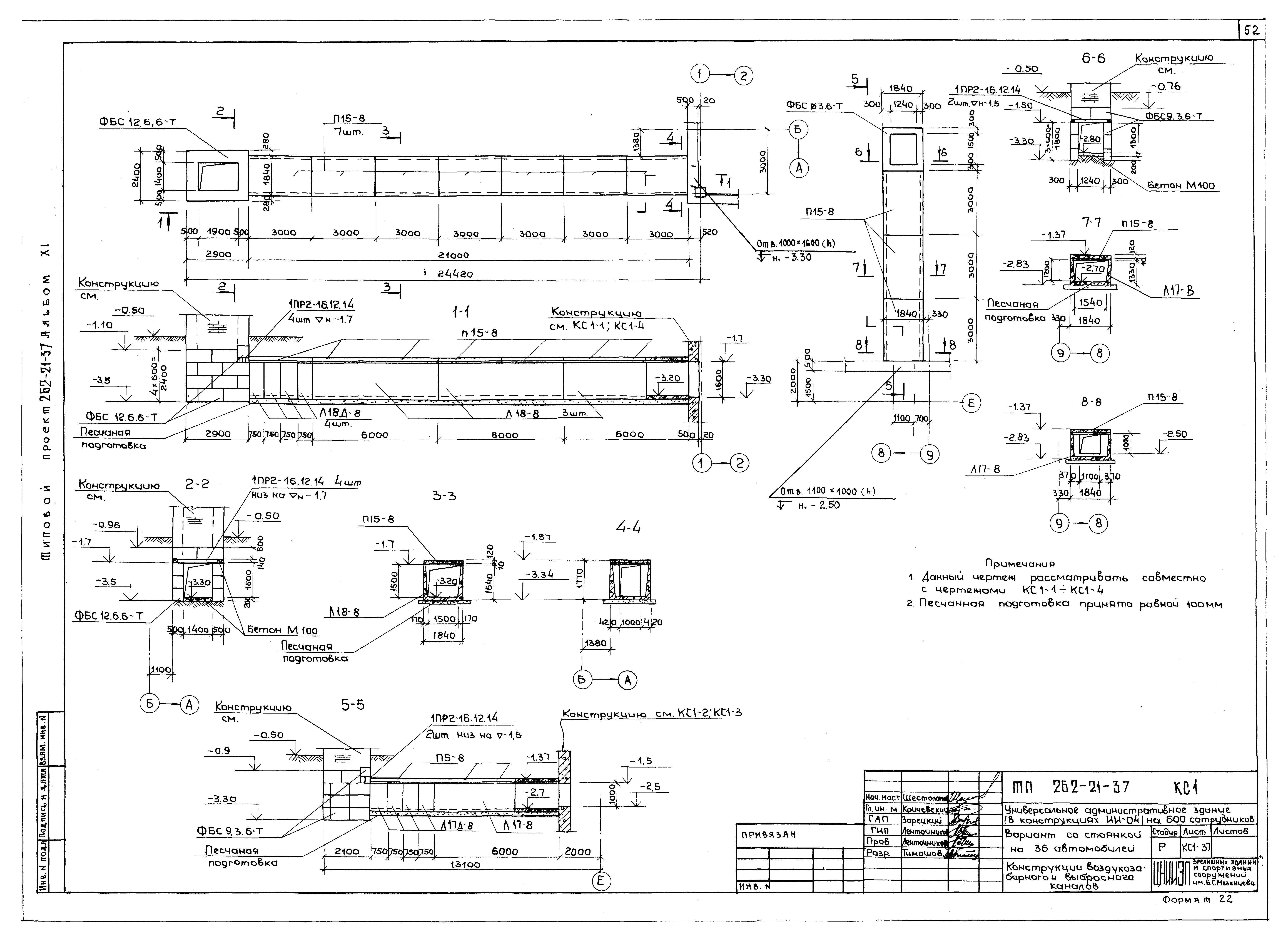
Конструкция воздухозаборного и выбросного каналов
Конструкции камеры глушения
Въезды. План подпорных стен
Въезды. Развертки подпорных стен
Каркас. Монтажная схема на отм. - 0.11; - 0.32
Каркас. Монтажная схема на отм. 3.49
Каркас. Монтажная схема на отм. 6.79; 6.81
Каркас. Монтажная схема по оси Б
Каркас. Монтажная схема по оси В
Каркас. Разрезы по оси Г и в осях 1 - 2; 13 - 14; А - В
Каркас. Монтажные схемы по осям Д, Е
План перекрытия на отм. 3.52 м/о 1 - 7
План перекрытия на отм. 3.52 м/о 8 - 14
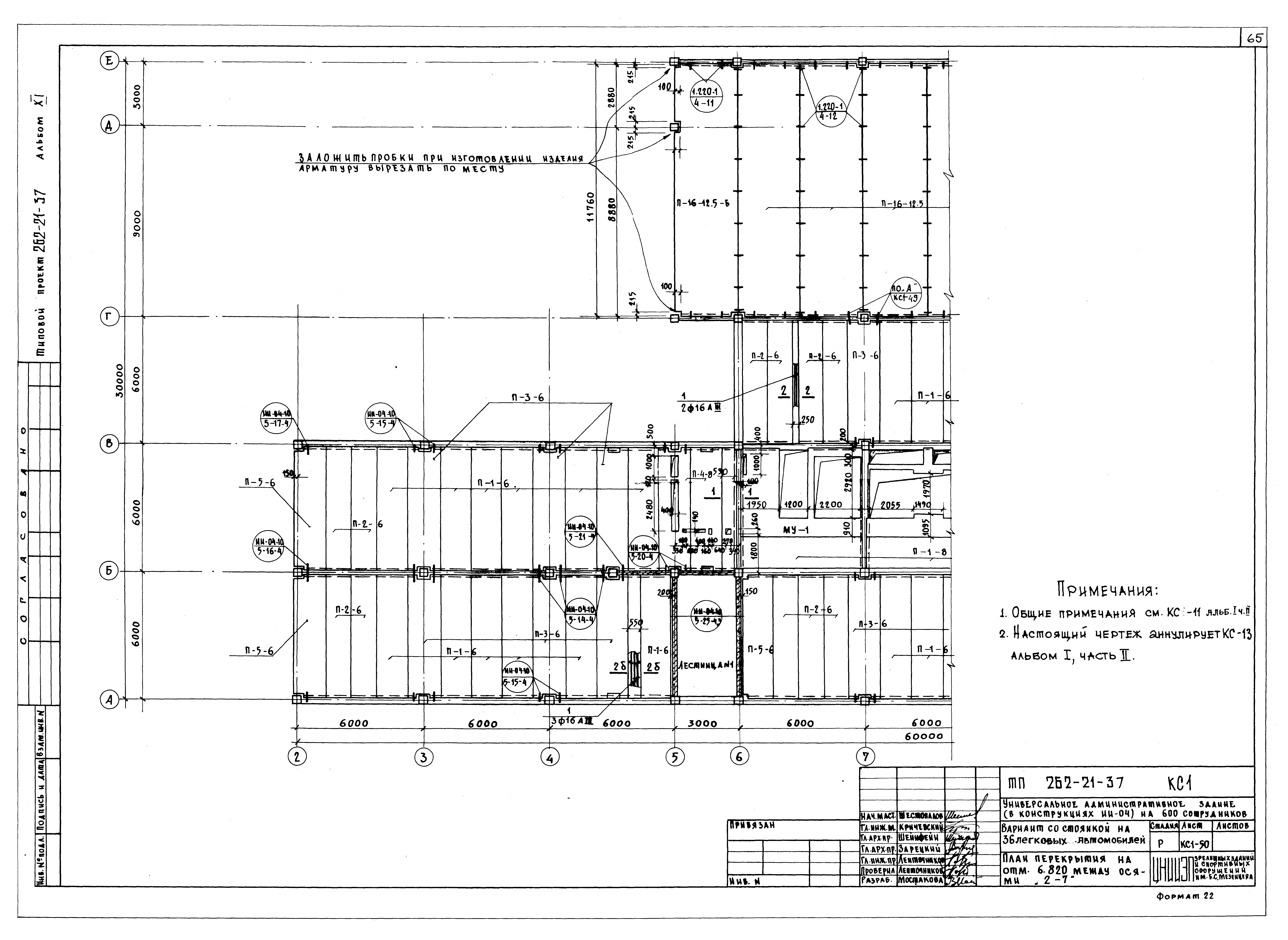
План перекрытия на отм. 6.82 м/о 2 - 7
План перекрытия на отм. 6.82 м/о 8 - 13
Фасады панелей по осям 1, А/1 м/о 1 - 2
Фасады панелей по осям 14 м/о А - Е, А/1 м/о 13 - 14
Фасады панелей по осям 5, 10, Г м/о 9 - 10 и 5 - 6
Фасады панелей по оси Е
Въезды. Сечения 3-3, а-а, б-б, в-в, г-г, д-д, е-е
Разработан: ЦНИИЭП зрелищных зданий и спортивных сооружений Госгражданстроя
Утверждён:21.02.1980 Госгражданстрой (Gosgrazhdanstroy 64)
Расположен в:Техническая документация Строительство Справочные документы Типовые строительные конструкции, изделия и узлы Общероссийский строительный каталог Общественные здания в городах и поселках городского типа Зрелищные и культурно-просветительские учреждения. Здания для органов управления и общественных организаций Здания для органов управления и общественных организаций Здания для органов управления Защитные сооружения гражданской обороны Типовые проекты защитных сооружений гражданской обороны для жилищно-гражданского строительства Для строительства в городах и поселках городского типа Встроенные помещения, приспосабливаемые под противорадиационные укрытия в общественных зданиях Противорадиационные укрытия в административных зданиях и в зданиях проектных организаций
Типовой проект 262-21-37Типовой проект 262-21-37Типовой проект 262-21-37Типовой проект 262-21-37Типовой проект 262-21-37Типовой проект 262-21-37Типовой проект 262-21-37Типовой проект 262-21-37Типовой проект 262-21-37Типовой проект 262-21-37Типовой проект 262-21-37Типовой проект 262-21-37Типовой проект 262-21-37Типовой проект 262-21-37Типовой проект 262-21-37Типовой проект 262-21-37Типовой проект 262-21-37Типовой проект 262-21-37Типовой проект 262-21-37Типовой проект 262-21-37Типовой проект 262-21-37Типовой проект 262-21-37Типовой проект 262-21-37Типовой проект 262-21-37Типовой проект 262-21-37Типовой проект 262-21-37Типовой проект 262-21-37Типовой проект 262-21-37Типовой проект 262-21-37Типовой проект 262-21-37Типовой проект 262-21-37Типовой проект 262-21-37Типовой проект 262-21-37Типовой проект 262-21-37Типовой проект 262-21-37Типовой проект 262-21-37Типовой проект 262-21-37Типовой проект 262-21-37Типовой проект 262-21-37Типовой проект 262-21-37Типовой проект 262-21-37Типовой проект 262-21-37Типовой проект 262-21-37Типовой проект 262-21-37Типовой проект 262-21-37Типовой проект 262-21-37Типовой проект 262-21-37Типовой проект 262-21-37Типовой проект 262-21-37Типовой проект 262-21-37Типовой проект 262-21-37Типовой проект 262-21-37Типовой проект 262-21-37Типовой проект 262-21-37Типовой проект 262-21-37Типовой проект 262-21-37Типовой проект 262-21-37Типовой проект 262-21-37Типовой проект 262-21-37Типовой проект 262-21-37Типовой проект 262-21-37Типовой проект 262-21-37Типовой проект 262-21-37Типовой проект 262-21-37Типовой проект 262-21-37Типовой проект 262-21-37Типовой проект 262-21-37Типовой проект 262-21-37Типовой проект 262-21-37Типовой проект 262-21-37Типовой проект 262-21-37

© 2013 Ёшкин Кот :-) Карта сайта