Информационная система
«Ёшкин Кот»

Скачать базу одним архивом
Скачать обновления
История создания базы
Карта сайта

Скачать Типовой проект 262-21-37 Альбом VIII. Изделия заводского изготовления

Дата актуализации: 10.08.2017

Типовой проект 262-21-37

Альбом VIII. Изделия заводского изготовления

Обозначение: Типовой проект 262-21-37
Обозначение англ: 262-21-37
Статус:не определен законодательством
Название рус.:Альбом VIII. Изделия заводского изготовления
Дата добавления в базу:01.09.2013
Дата актуализации:05.05.2017
Дата введения:06.04.1982
Оглавление:Общие данные
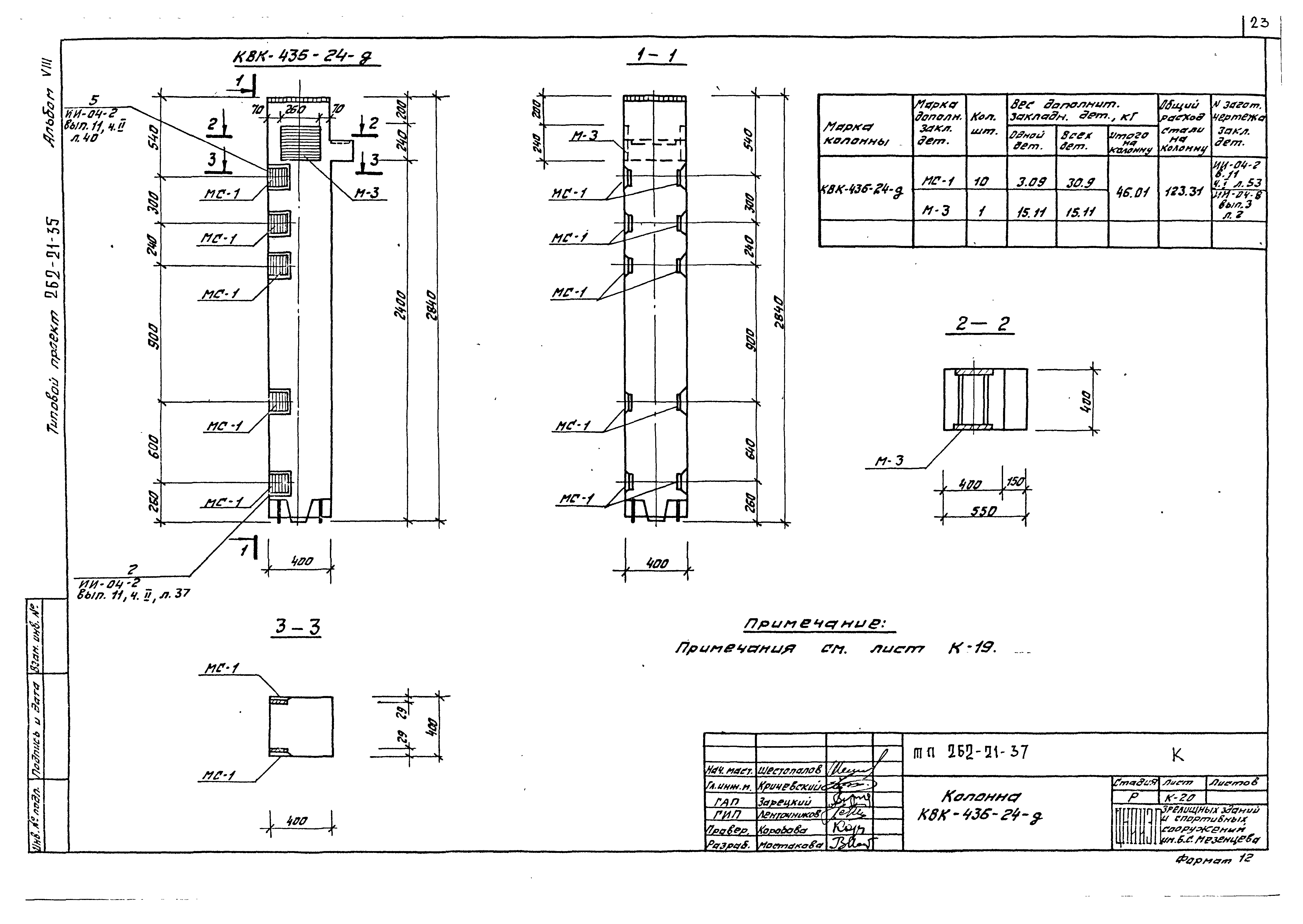
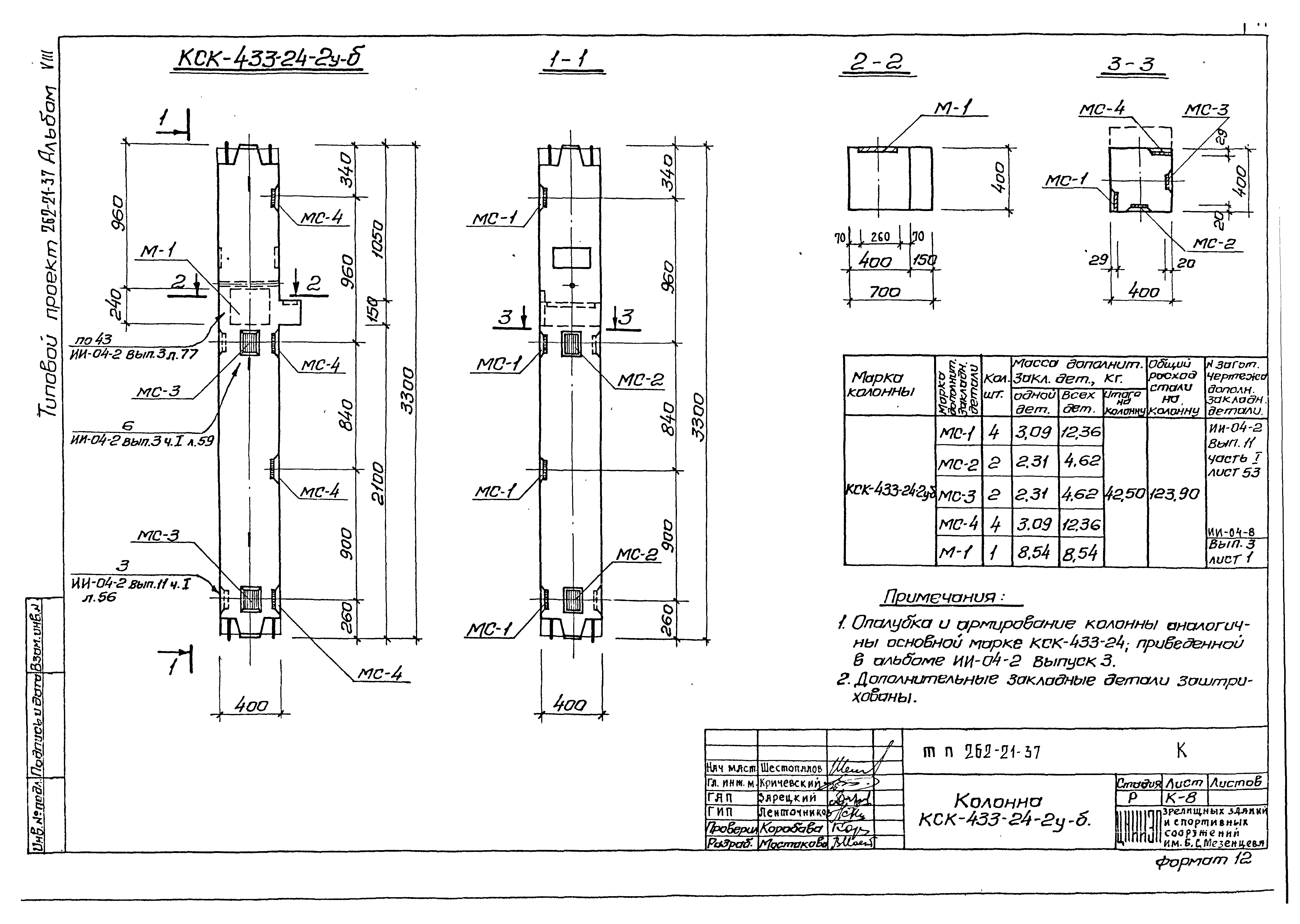
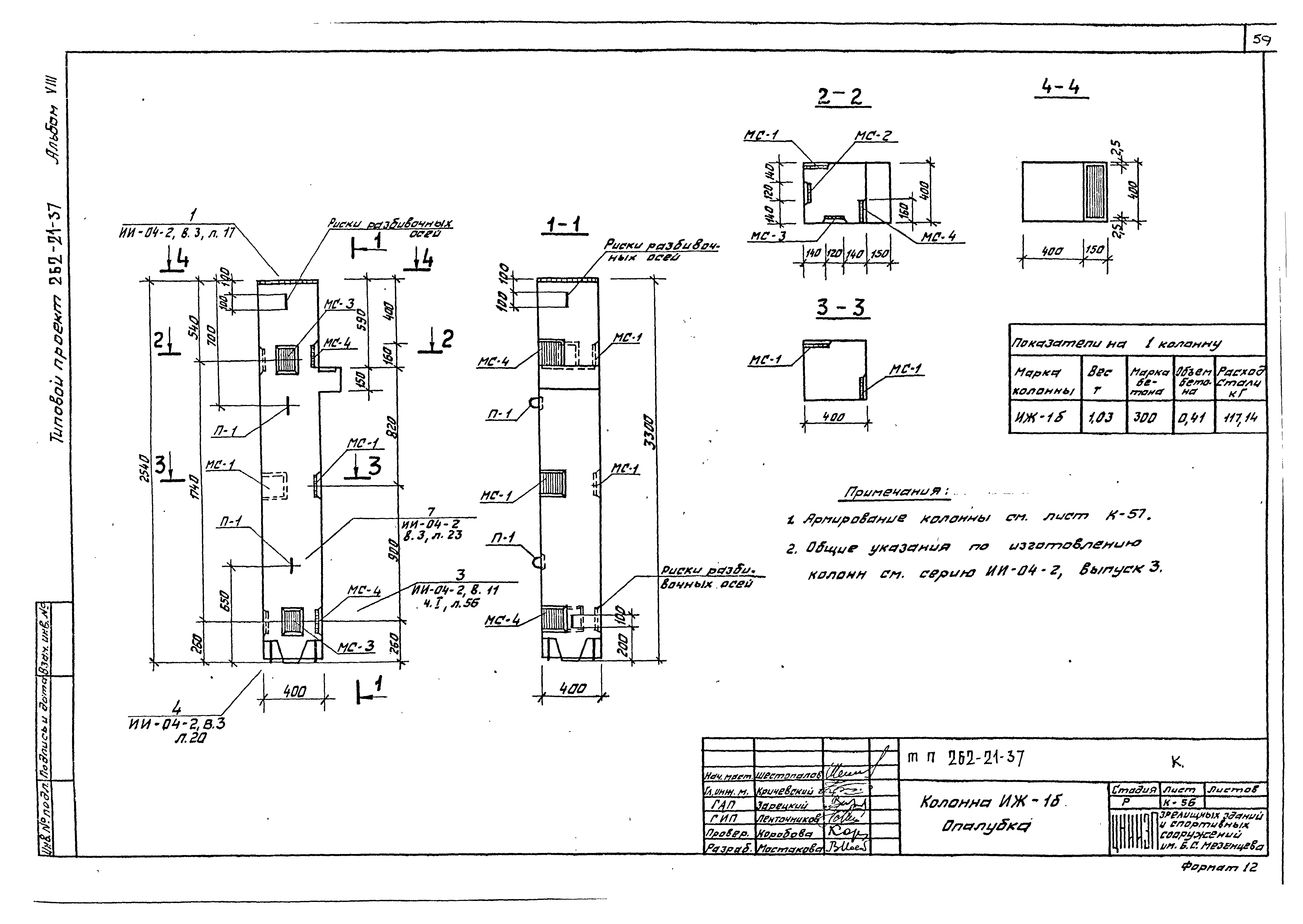
Колонны
Диафрагма Д-3и
Плоские каркасы
Ригели
Колонны
Стеновая панель
Каркасы
Пространственный каркас
Панели
Железобетонный наличник ИН-1
Разработан: ЦНИИЭП зрелищных зданий и спортивных сооружений Госгражданстроя
Утверждён:21.02.1980 Госгражданстрой (Gosgrazhdanstroy 64)
Расположен в:Техническая документация Строительство Справочные документы Типовые строительные конструкции, изделия и узлы Общероссийский строительный каталог Общественные здания в городах и поселках городского типа Зрелищные и культурно-просветительские учреждения. Здания для органов управления и общественных организаций Здания для органов управления и общественных организаций Здания для органов управления Защитные сооружения гражданской обороны Типовые проекты защитных сооружений гражданской обороны для жилищно-гражданского строительства Для строительства в городах и поселках городского типа Встроенные помещения, приспосабливаемые под противорадиационные укрытия в общественных зданиях Противорадиационные укрытия в административных зданиях и в зданиях проектных организаций
Типовой проект 262-21-37Типовой проект 262-21-37Типовой проект 262-21-37Типовой проект 262-21-37Типовой проект 262-21-37Типовой проект 262-21-37Типовой проект 262-21-37Типовой проект 262-21-37Типовой проект 262-21-37Типовой проект 262-21-37Типовой проект 262-21-37Типовой проект 262-21-37Типовой проект 262-21-37Типовой проект 262-21-37Типовой проект 262-21-37Типовой проект 262-21-37Типовой проект 262-21-37Типовой проект 262-21-37Типовой проект 262-21-37Типовой проект 262-21-37Типовой проект 262-21-37Типовой проект 262-21-37Типовой проект 262-21-37Типовой проект 262-21-37Типовой проект 262-21-37Типовой проект 262-21-37Типовой проект 262-21-37Типовой проект 262-21-37Типовой проект 262-21-37Типовой проект 262-21-37Типовой проект 262-21-37Типовой проект 262-21-37Типовой проект 262-21-37Типовой проект 262-21-37Типовой проект 262-21-37Типовой проект 262-21-37Типовой проект 262-21-37Типовой проект 262-21-37Типовой проект 262-21-37Типовой проект 262-21-37Типовой проект 262-21-37Типовой проект 262-21-37Типовой проект 262-21-37Типовой проект 262-21-37Типовой проект 262-21-37Типовой проект 262-21-37Типовой проект 262-21-37Типовой проект 262-21-37Типовой проект 262-21-37Типовой проект 262-21-37Типовой проект 262-21-37Типовой проект 262-21-37Типовой проект 262-21-37Типовой проект 262-21-37Типовой проект 262-21-37Типовой проект 262-21-37Типовой проект 262-21-37Типовой проект 262-21-37Типовой проект 262-21-37Типовой проект 262-21-37Типовой проект 262-21-37Типовой проект 262-21-37Типовой проект 262-21-37Типовой проект 262-21-37Типовой проект 262-21-37Типовой проект 262-21-37Типовой проект 262-21-37Типовой проект 262-21-37Типовой проект 262-21-37Типовой проект 262-21-37Типовой проект 262-21-37Типовой проект 262-21-37Типовой проект 262-21-37Типовой проект 262-21-37Типовой проект 262-21-37Типовой проект 262-21-37Типовой проект 262-21-37Типовой проект 262-21-37Типовой проект 262-21-37Типовой проект 262-21-37Типовой проект 262-21-37Типовой проект 262-21-37Типовой проект 262-21-37Типовой проект 262-21-37Типовой проект 262-21-37Типовой проект 262-21-37Типовой проект 262-21-37Типовой проект 262-21-37Типовой проект 262-21-37Типовой проект 262-21-37Типовой проект 262-21-37Типовой проект 262-21-37Типовой проект 262-21-37Типовой проект 262-21-37Типовой проект 262-21-37Типовой проект 262-21-37Типовой проект 262-21-37Типовой проект 262-21-37Типовой проект 262-21-37Типовой проект 262-21-37

© 2013 Ёшкин Кот :-) Карта сайта