Информационная система
«Ёшкин Кот»

Скачать базу одним архивом
Скачать обновления
История создания базы
Карта сайта

Скачать Типовой проект 262-21-37 Альбом V. Электротехнические чертежи

Дата актуализации: 10.08.2017

Типовой проект 262-21-37

Альбом V. Электротехнические чертежи

Обозначение: Типовой проект 262-21-37
Обозначение англ: 262-21-37
Статус:не определен законодательством
Название рус.:Альбом V. Электротехнические чертежи
Дата добавления в базу:01.09.2013
Дата актуализации:05.05.2017
Дата введения:06.04.1982
Оглавление:Титульный лист
Общие данные
Сводная спецификация на электрооборудование и материалы
Вводно-распределительное устройство 1ВРУ. Схема принципиальная однолинейная
Вводно-распределительное устройство 1ВРУ. Опросный лист
Шкаф распределительный 2ШР-С. Схема принципиальная однолинейная. Кнопки пожарных кранов. Схема соединений
Шкафы распределительные 3ШР-С, 8ШР-С. Схемы принципиальные однолинейные
Шкафы распределительные 4ШР-С, 5ШР-С, 11ШР-С. Схемы принципиальные однолинейные
Шкаф распределительный 6ШР-С. Схема принципиальная однолинейная
Шкаф распределительный 7ШР-С. Схема принципиальная однолинейная
Шкафы распределительные 9ШР-С, 10ШР-С. Схемы принципиальные однолинейные
Приводы 11 - 22; 26 - 30; 38; 51; 52; 119 - 134. Схемы принципиальные
Шкафы управления 5ШУ-С - 14ШУ-С. Схема принципиальная однолинейная
Шкафы управления 16ШУ-С - 23ШУ-С. Схема принципиальная однолинейная
Шкафы управления 5ШУ-С - 7ШУ-С. Схемы подключений
Шкафы управления 8ШУ-С - 10ШУ-С. Схемы подключений
Шкафы управления 11ШУ-С, 14ШУ-С. Схемы подключений
Шкафы управления 12ШУ-С, 13ШУ-С. Схемы подключений
Шкафы управления 16ШУ-С, 17ШУ-С. Схемы подключений
Шкафы управления 19ШУ-С, 21ШУ-С. Схемы подключений
Шкафы управления 18ШУ-С, 20ШУ-С. Схемы подключений
Шкафы управления 22ШУ-С, 28ШУ-С. Схемы подключений
Электроосвещение. Расчетная схема питающей сети (2ВРУ)
Вводно-распределительной устройство 2ВРУ. Опросный лист
Управление рабочим и дежурным освещением конференц-зала. Схемы принципиальные
Шкаф управления освещением конференц-зала 1ШУ-0. Схема подключений
Электроосвещение. План подвала между осями "2 - 8"
Электроосвещение. План подвала между осями "8 - 13"
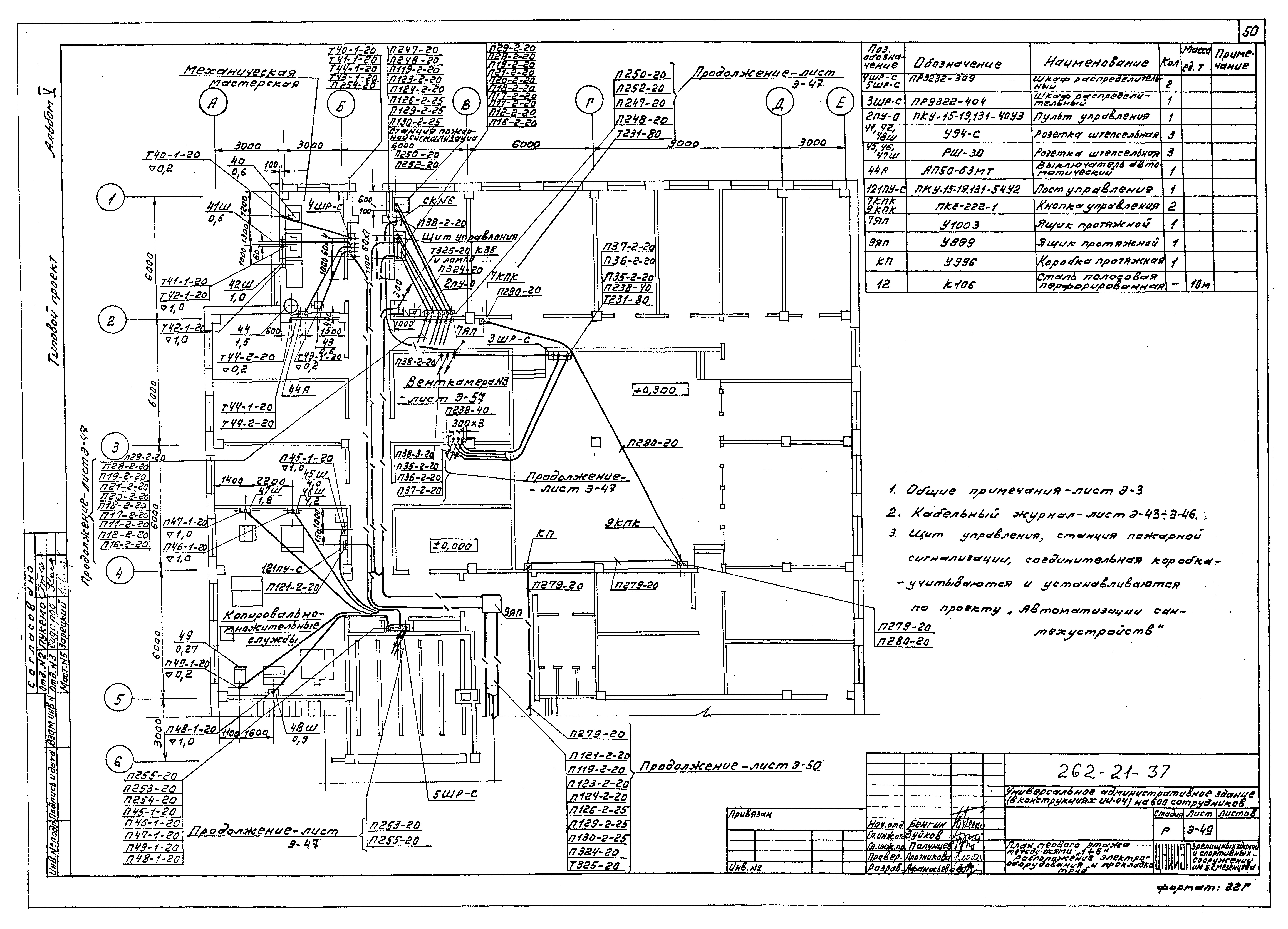
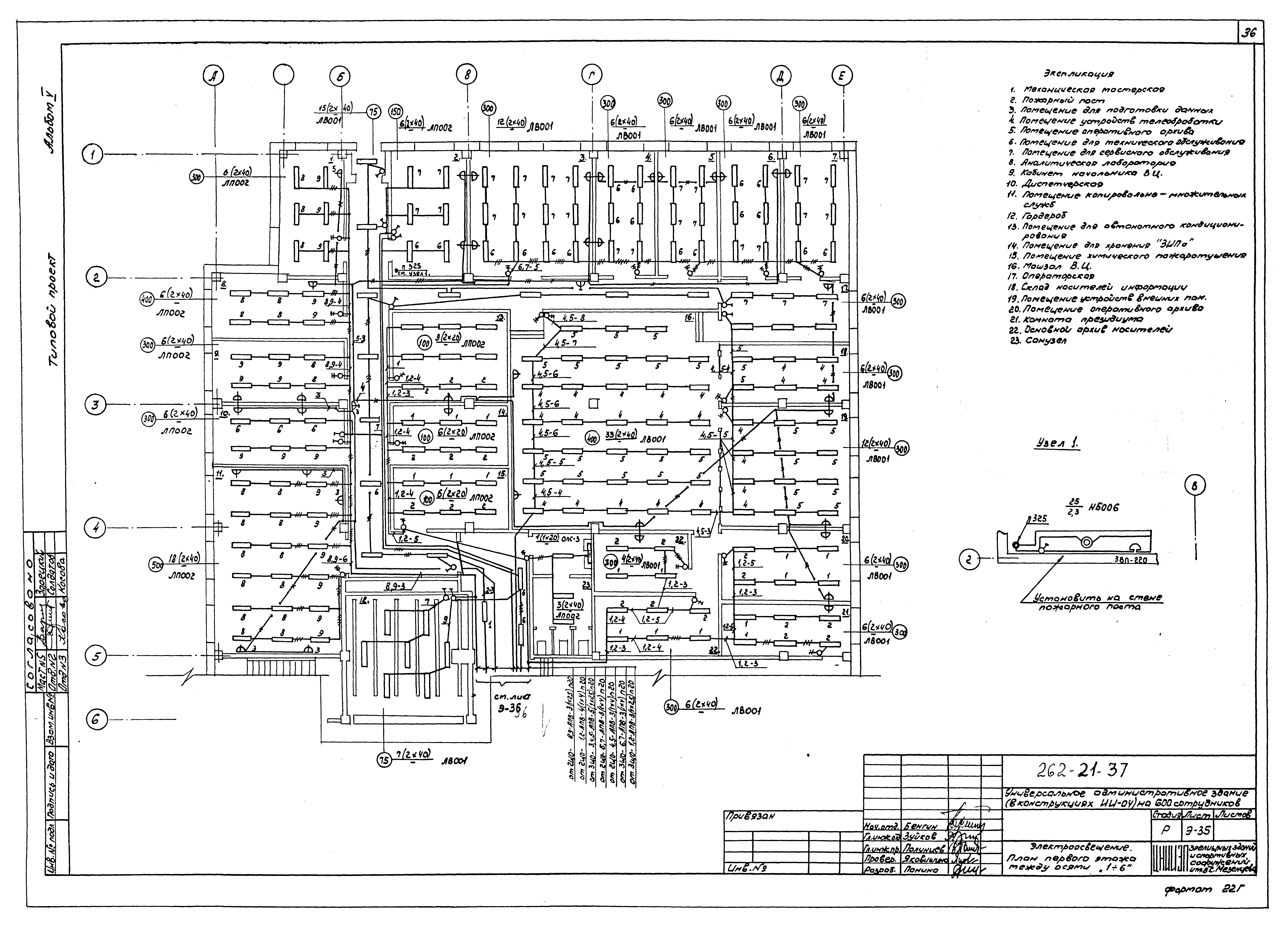
Электроосвещение. План первого этажа между осями "1 - 6"
Электроосвещение. План первого этажа между осями "5 - 10"
Электроосвещение. План первого этажа между осями "9 - 14"
Электроосвещение. План второго этажа между осями "2 - 6" и "6 - 10"
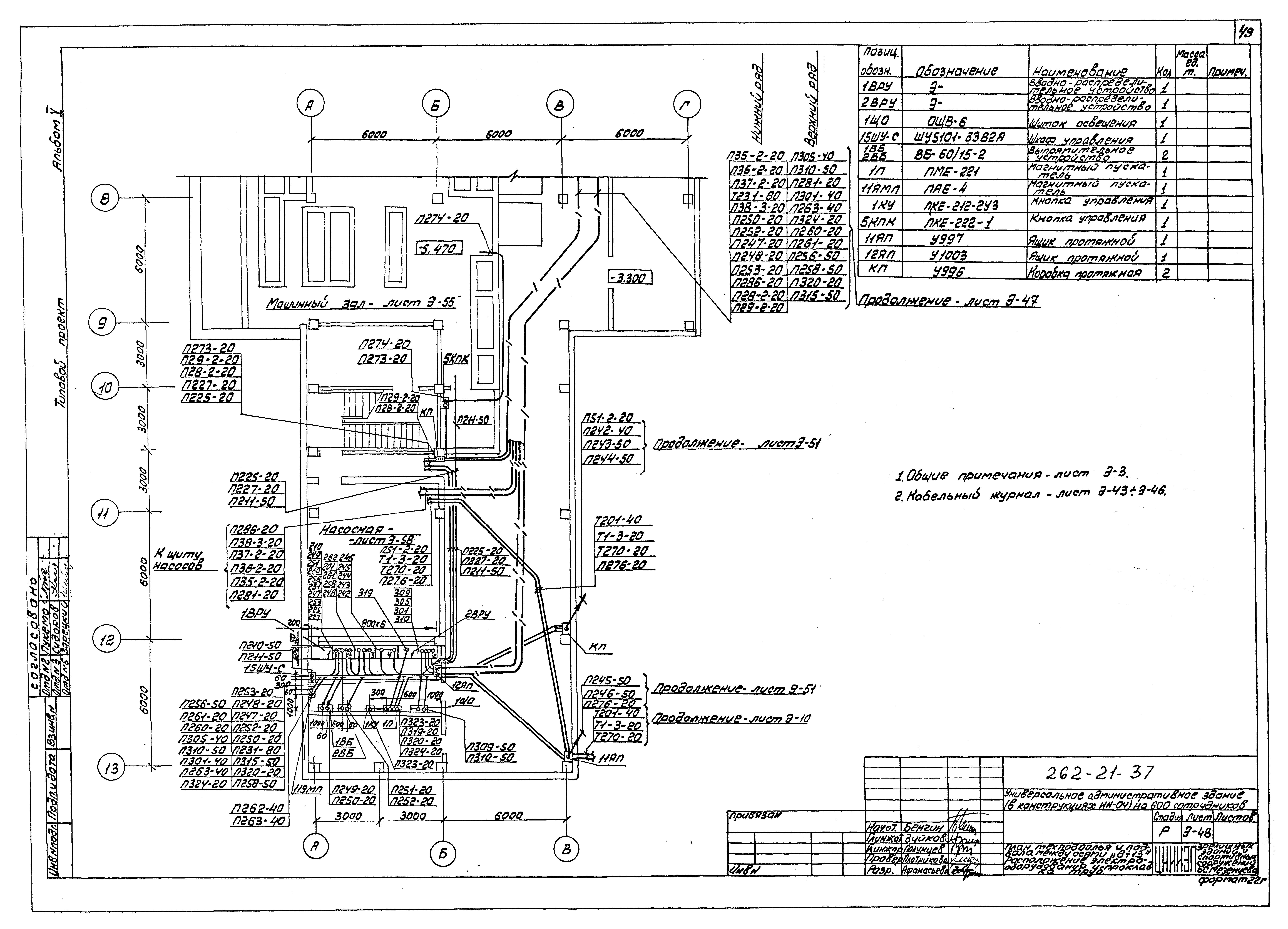
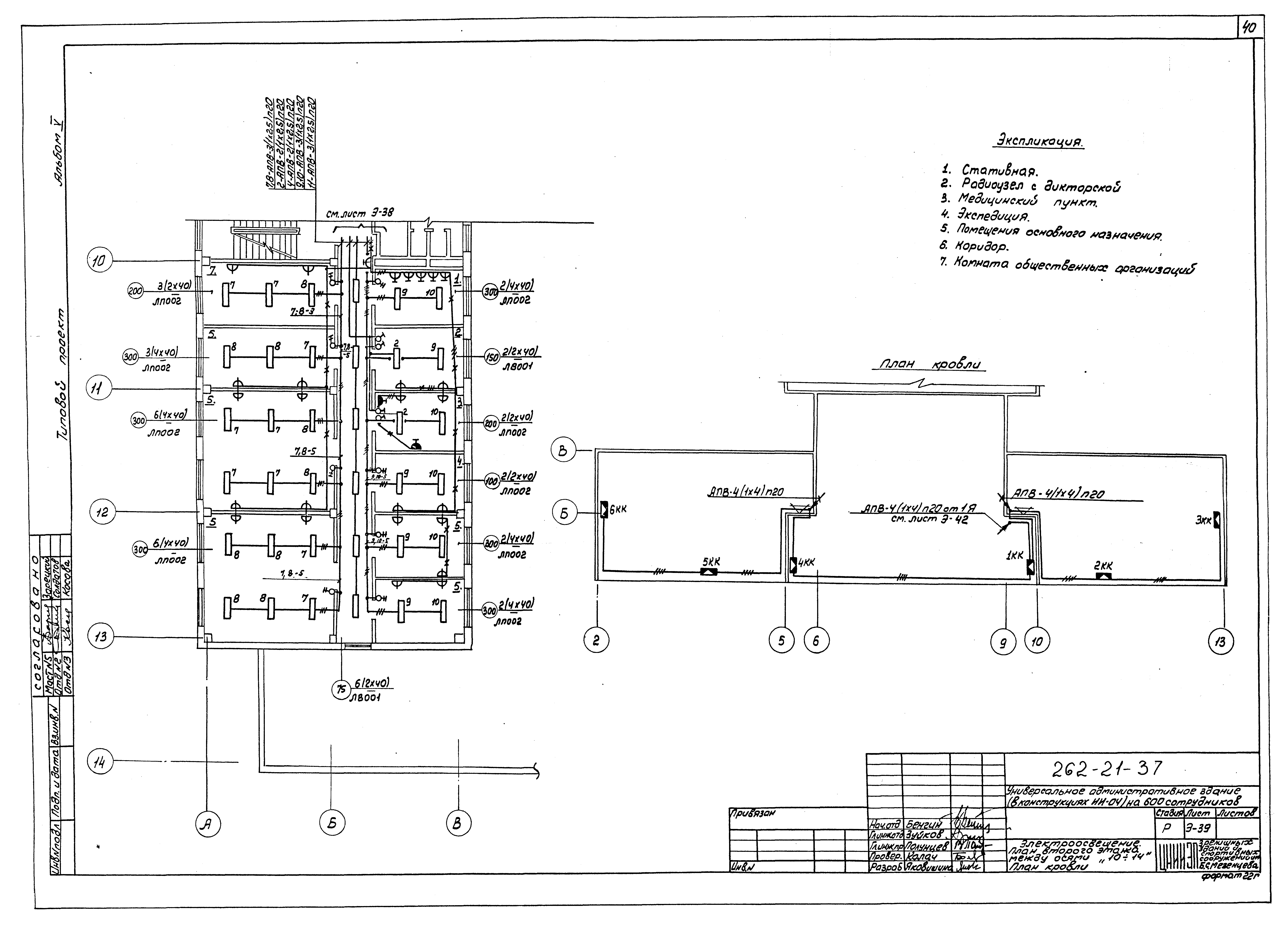
Электроосвещение. План второго этажа между осями "10 - 14". План кровли
Электроосвещение. План типового этажа на отм. 6.90; 10.20; 13.50; 16.80 между осями "2 - 6" и "6 - 10"
Электроосвещение. План типового этажа в осях "10 - 14". План управления 1ПУ-0. Опросный лист
Электроосвещение. План технического этажа. Управление освещением иллюминации. Схема принципиальная
Кабельный журнал
Расположение электрооборудования и прокладка труб. План техподполья и подвала между осями "2 - 8"
Расположение электрооборудования и прокладка труб. План техподполья и подвала между осями "8 - 13"
Расположение электрооборудования и прокладка труб. План первого этажа между осями "1 - 6"
Расположение электрооборудования и прокладка труб. План первого этажа между осями "5 - 10"
Расположение электрооборудования и прокладка труб. План первого этажа между осями "9 - 14"
Расположение электрооборудования и прокладка труб. План второго этажа между осями "5 - 10"
Расположение электрооборудования и прокладка труб. План 3, 4, 5, 6 этажей между осями "5 - 10"
Расположение электрооборудования и прокладка труб. План технического этажа
Расположение электрооборудования и прокладка труб. Машинный зал кондиционирования
Расположение электрооборудования и прокладка труб. Венткамера №1
Расположение электрооборудования и прокладка труб. Венткамеры №1 и №3
Расположение электрооборудования и прокладка труб. Насосная
Расположение электрооборудования и прокладка труб. Штепсельная коробка
Разработан: ЦНИИЭП зрелищных зданий и спортивных сооружений Госгражданстроя
Утверждён:21.02.1980 Госгражданстрой (Gosgrazhdanstroy 64)
Расположен в:Техническая документация Строительство Справочные документы Типовые строительные конструкции, изделия и узлы Общероссийский строительный каталог Общественные здания в городах и поселках городского типа Зрелищные и культурно-просветительские учреждения. Здания для органов управления и общественных организаций Здания для органов управления и общественных организаций Здания для органов управления Защитные сооружения гражданской обороны Типовые проекты защитных сооружений гражданской обороны для жилищно-гражданского строительства Для строительства в городах и поселках городского типа Встроенные помещения, приспосабливаемые под противорадиационные укрытия в общественных зданиях Противорадиационные укрытия в административных зданиях и в зданиях проектных организаций
Типовой проект 262-21-37Типовой проект 262-21-37Типовой проект 262-21-37Типовой проект 262-21-37Типовой проект 262-21-37Типовой проект 262-21-37Типовой проект 262-21-37Типовой проект 262-21-37Типовой проект 262-21-37Типовой проект 262-21-37Типовой проект 262-21-37Типовой проект 262-21-37Типовой проект 262-21-37Типовой проект 262-21-37Типовой проект 262-21-37Типовой проект 262-21-37Типовой проект 262-21-37Типовой проект 262-21-37Типовой проект 262-21-37Типовой проект 262-21-37Типовой проект 262-21-37Типовой проект 262-21-37Типовой проект 262-21-37Типовой проект 262-21-37Типовой проект 262-21-37Типовой проект 262-21-37Типовой проект 262-21-37Типовой проект 262-21-37Типовой проект 262-21-37Типовой проект 262-21-37Типовой проект 262-21-37Типовой проект 262-21-37Типовой проект 262-21-37Типовой проект 262-21-37Типовой проект 262-21-37Типовой проект 262-21-37Типовой проект 262-21-37Типовой проект 262-21-37Типовой проект 262-21-37Типовой проект 262-21-37Типовой проект 262-21-37Типовой проект 262-21-37Типовой проект 262-21-37Типовой проект 262-21-37Типовой проект 262-21-37Типовой проект 262-21-37Типовой проект 262-21-37Типовой проект 262-21-37Типовой проект 262-21-37Типовой проект 262-21-37Типовой проект 262-21-37Типовой проект 262-21-37Типовой проект 262-21-37Типовой проект 262-21-37Типовой проект 262-21-37Типовой проект 262-21-37Типовой проект 262-21-37Типовой проект 262-21-37Типовой проект 262-21-37Типовой проект 262-21-37Типовой проект 262-21-37

© 2013 Ёшкин Кот :-) Карта сайта